Log In/Sign Up
Your email has been sent.
5215 Todd Ave 3.49 Acres of Commercial Land Offered at $3,050,000 in Baltimore, MD 21206

Investment Highlights
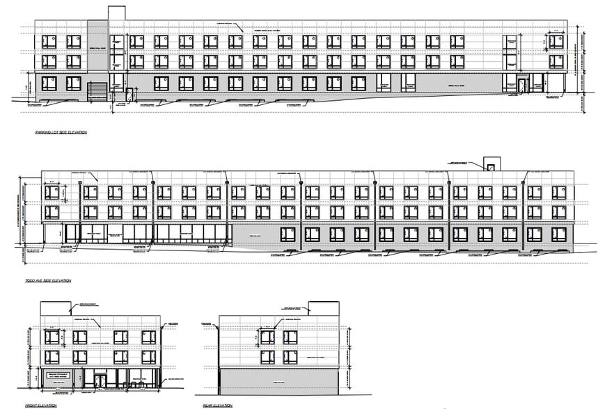
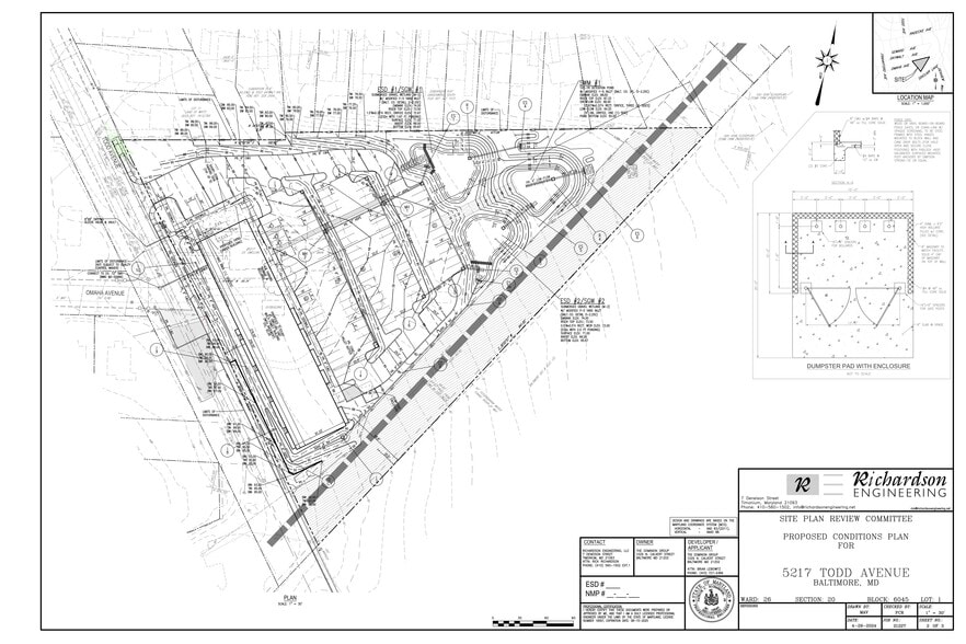
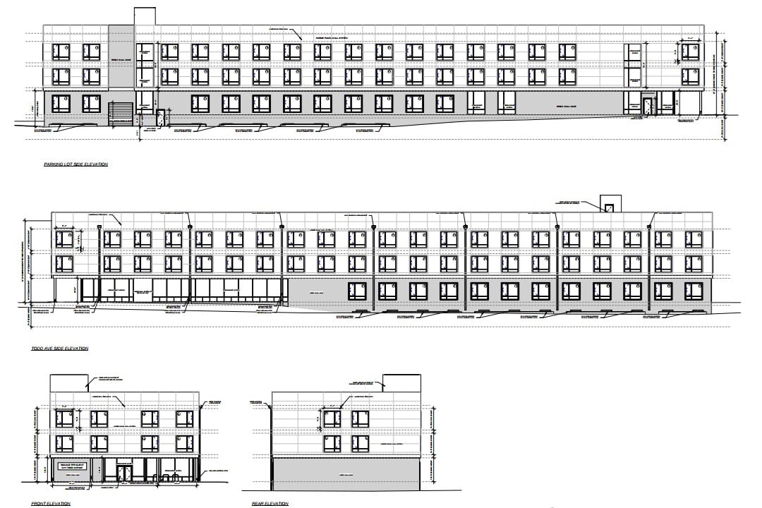
- Fully Designed and Permits Pending with Baltimore City
- Property to feature large modern lobby, 90 parking spaces, 2 elevators, and additional storage in basement
- Building Designed as 61 units - 2-studios, 53-1bd/1ba, 4-2bd/1ba, and 4 ADA compliant 1bd/1ba
Executive Summary
Now available! Permits pending for 61 unit apartment building with 90 parking spots. Full architectural design plans, engineering plans, and site plan available in documents section. Approximate building size is estimated at 61,000sqft over 3 floors above grade and 1 floor below
Financial Summary (Pro Forma - 2026) |
Annual | Annual Per AC |
|---|---|---|
| Gross Rental Income |
$1,022,400
|
$292,951.29
|
| Other Income |
-
|
-
|
| Vacancy Loss |
-
|
-
|
| Effective Gross Income |
$1,022,400
|
$292,951.29
|
| Taxes |
$125,000
|
$35,816.62
|
| Operating Expenses |
$200,000
|
$57,306.59
|
| Total Expenses |
$325,000
|
$93,123.21
|
| Net Operating Income |
$697,400
|
$199,828.08
|
Financial Summary (Pro Forma - 2026)
| Gross Rental Income | |
|---|---|
| Annual | $1,022,400 |
| Annual Per AC | $292,951.29 |
| Other Income | |
|---|---|
| Annual | - |
| Annual Per AC | - |
| Vacancy Loss | |
|---|---|
| Annual | - |
| Annual Per AC | - |
| Effective Gross Income | |
|---|---|
| Annual | $1,022,400 |
| Annual Per AC | $292,951.29 |
| Taxes | |
|---|---|
| Annual | $125,000 |
| Annual Per AC | $35,816.62 |
| Operating Expenses | |
|---|---|
| Annual | $200,000 |
| Annual Per AC | $57,306.59 |
| Total Expenses | |
|---|---|
| Annual | $325,000 |
| Annual Per AC | $93,123.21 |
| Net Operating Income | |
|---|---|
| Annual | $697,400 |
| Annual Per AC | $199,828.08 |
Property Facts
| Price | $3,050,000 | Property Type | Land |
| Sale Type | Investment | Property Subtype | Commercial |
| Sale Condition | Redevelopment Project | Proposed Use | Apartment Units |
| No. Lots | 1 | Total Lot Size | 3.49 AC |
| Zoning | R-5 - Residential zoning | ||
| Price | $3,050,000 |
| Sale Type | Investment |
| Sale Condition | Redevelopment Project |
| No. Lots | 1 |
| Property Type | Land |
| Property Subtype | Commercial |
| Proposed Use | Apartment Units |
| Total Lot Size | 3.49 AC |
| Zoning | R-5 - Residential zoning |
1 Lot Available
Lot
| Price | $3,050,000 | Lot Size | 3.49 AC |
| Price Per AC | $873,925.50 |
| Price | $3,050,000 |
| Price Per AC | $873,925.50 |
| Lot Size | 3.49 AC |
Addresses 5215 and 5217 have been consolidated with Baltimore City and now represent +/- 3.4990 ac in total.
1 1
Moderately walkable
60/100
Very drivable
80/100
Limited public transit
30/100
Fairly bikeable
50/100
1 of 2
Videos
Matterport 3D Exterior
Matterport 3D Tour
Photos
Street View
Street
Map
1 of 1
Presented by
5215 Todd Ave
Already a member? Log In
Hmm, there seems to have been an error sending your message. Please try again.
Thanks! Your message was sent.
