Your email has been sent.
Friendship Medical Center 5225 Wisconsin Ave NW 798 - 28,077 SF of Office/Medical Space Available in Washington, DC 20015



HIGHLIGHTS
- Building upgrades to enhance the patients experience
- New common corridors & directional signage
- Abundant visitor parking: 1.4 / 1,000 SF parking ratio
- Renovated lobby with digital tenant directory
- ADA restrooms on multiple floors
ALL AVAILABLE SPACES(10)
Display Rental Rate as
- SPACE
- SIZE
- TERM
- RENTAL RATE
- SPACE USE
- CONDITION
- AVAILABLE
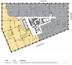
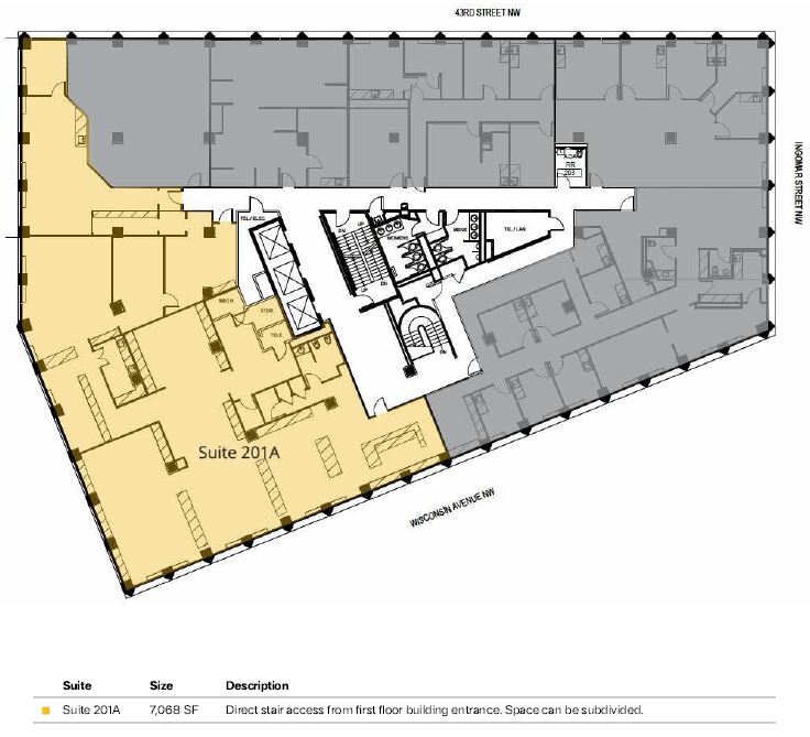
Direct stair access from first floor building entrance. Space can be subdivided
- Rate includes utilities, building services and property expenses
- Mostly Open Floor Plan Layout
- Fully Built-Out as Standard Office
- Rate includes utilities, building services and property expenses
- Office intensive layout
- Fully Built-Out as Standard Office
Built out suite with waiting area, kitchenette, conference room and two windowed offices.
- Rate includes utilities, building services and property expenses
Move-in ready spec suite available immediately! Three private, windowed offices, pantry, open work area, and reception. FINAL REMAINING OFFICE SPEC SUITE AT 5225 WISCONSIN! PRICE DROPPED TO $43.00 FS TO FINISH SPEC LEASING!
- Rate includes utilities, building services and property expenses
- Space is in Excellent Condition
- Mostly Open Floor Plan Layout
Space includes 3 private, windowed offices and reception/waiting area.
- Rate includes utilities, building services and property expenses
- Office intensive layout
- Fully Built-Out as Standard Office
Space includes 8 windowed offices, conference room, reception/waiting area, pantry/copy room, and IT/storage closet.
- Rate includes utilities, building services and property expenses
- Office intensive layout
- Fully Built-Out as Standard Office
Corner suite with immediate elevator exposure. Great window line and views to Tysons Corner. Space currently in shell condition, with perimeter offices and kitchenette in-place.
- Rate includes utilities, building services and property expenses
- Mostly Open Floor Plan Layout
- Partially Built-Out as Standard Office
- Can be combined with additional space(s) for up to 11,659 SF of adjacent space
Space includes 3 windowed offices, kitchenette/pantry, open work area and reception/waiting area.
- Rate includes utilities, building services and property expenses
- Office intensive layout
- Fully Built-Out as Standard Office
- Can be combined with additional space(s) for up to 11,659 SF of adjacent space
Available immediately. Space includes reception/waiting area, five windowed offices, kitchen, open work area, and internal restroom. Modern finishes.
- Rate includes utilities, building services and property expenses
- Can be combined with additional space(s) for up to 11,659 SF of adjacent space
- Space is in Excellent Condition
- Rate includes utilities, building services and property expenses
- Can be combined with additional space(s) for up to 11,659 SF of adjacent space
| Space | Size | Term | Rental Rate | Space Use | Condition | Available |
| 2nd Floor, Ste 201A | 7,068 SF | Negotiable | $48.00 /SF/YR $4.00 /SF/MO $339,264 /YR $28,272 /MO | Office/Medical | Full Build-Out | Now |
| 3rd Floor, Ste 300 | 3,117 SF | Negotiable | $47.00 /SF/YR $3.92 /SF/MO $146,499 /YR $12,208 /MO | Office/Medical | Full Build-Out | Now |
| 3rd Floor, Ste 312 | 798 SF | Negotiable | $47.00 /SF/YR $3.92 /SF/MO $37,506 /YR $3,126 /MO | Office/Medical | - | Now |
| 4th Floor, Ste 404 | 1,384 SF | Negotiable | $43.00 /SF/YR $3.58 /SF/MO $59,512 /YR $4,959 /MO | Office/Medical | Spec Suite | Now |
| 5th Floor, Ste 501 | 933 SF | Negotiable | $47.00 /SF/YR $3.92 /SF/MO $43,851 /YR $3,654 /MO | Office/Medical | Full Build-Out | Now |
| 5th Floor, Ste 513 | 3,118 SF | Negotiable | $47.00 /SF/YR $3.92 /SF/MO $146,546 /YR $12,212 /MO | Office/Medical | Full Build-Out | Now |
| 6th Floor, Ste 600B | 3,018 SF | Negotiable | $48.00 /SF/YR $4.00 /SF/MO $144,864 /YR $12,072 /MO | Office/Medical | Partial Build-Out | Now |
| 6th Floor, Ste 601 | 1,326 SF | Negotiable | $48.00 /SF/YR $4.00 /SF/MO $63,648 /YR $5,304 /MO | Office/Medical | Full Build-Out | Now |
| 6th Floor, Ste 603 | 1,981 SF | Negotiable | $48.00 /SF/YR $4.00 /SF/MO $95,088 /YR $7,924 /MO | Office/Medical | Full Build-Out | Now |
| 6th Floor, Ste 605 | 5,334 SF | Negotiable | $48.00 /SF/YR $4.00 /SF/MO $256,032 /YR $21,336 /MO | Office/Medical | - | October 01, 2026 |
2nd Floor, Ste 201A
| Size |
| 7,068 SF |
| Term |
| Negotiable |
| Rental Rate |
| $48.00 /SF/YR $4.00 /SF/MO $339,264 /YR $28,272 /MO |
| Space Use |
| Office/Medical |
| Condition |
| Full Build-Out |
| Available |
| Now |
3rd Floor, Ste 300
| Size |
| 3,117 SF |
| Term |
| Negotiable |
| Rental Rate |
| $47.00 /SF/YR $3.92 /SF/MO $146,499 /YR $12,208 /MO |
| Space Use |
| Office/Medical |
| Condition |
| Full Build-Out |
| Available |
| Now |
3rd Floor, Ste 312
| Size |
| 798 SF |
| Term |
| Negotiable |
| Rental Rate |
| $47.00 /SF/YR $3.92 /SF/MO $37,506 /YR $3,126 /MO |
| Space Use |
| Office/Medical |
| Condition |
| - |
| Available |
| Now |
4th Floor, Ste 404
| Size |
| 1,384 SF |
| Term |
| Negotiable |
| Rental Rate |
| $43.00 /SF/YR $3.58 /SF/MO $59,512 /YR $4,959 /MO |
| Space Use |
| Office/Medical |
| Condition |
| Spec Suite |
| Available |
| Now |
5th Floor, Ste 501
| Size |
| 933 SF |
| Term |
| Negotiable |
| Rental Rate |
| $47.00 /SF/YR $3.92 /SF/MO $43,851 /YR $3,654 /MO |
| Space Use |
| Office/Medical |
| Condition |
| Full Build-Out |
| Available |
| Now |
5th Floor, Ste 513
| Size |
| 3,118 SF |
| Term |
| Negotiable |
| Rental Rate |
| $47.00 /SF/YR $3.92 /SF/MO $146,546 /YR $12,212 /MO |
| Space Use |
| Office/Medical |
| Condition |
| Full Build-Out |
| Available |
| Now |
6th Floor, Ste 600B
| Size |
| 3,018 SF |
| Term |
| Negotiable |
| Rental Rate |
| $48.00 /SF/YR $4.00 /SF/MO $144,864 /YR $12,072 /MO |
| Space Use |
| Office/Medical |
| Condition |
| Partial Build-Out |
| Available |
| Now |
6th Floor, Ste 601
| Size |
| 1,326 SF |
| Term |
| Negotiable |
| Rental Rate |
| $48.00 /SF/YR $4.00 /SF/MO $63,648 /YR $5,304 /MO |
| Space Use |
| Office/Medical |
| Condition |
| Full Build-Out |
| Available |
| Now |
6th Floor, Ste 603
| Size |
| 1,981 SF |
| Term |
| Negotiable |
| Rental Rate |
| $48.00 /SF/YR $4.00 /SF/MO $95,088 /YR $7,924 /MO |
| Space Use |
| Office/Medical |
| Condition |
| Full Build-Out |
| Available |
| Now |
6th Floor, Ste 605
| Size |
| 5,334 SF |
| Term |
| Negotiable |
| Rental Rate |
| $48.00 /SF/YR $4.00 /SF/MO $256,032 /YR $21,336 /MO |
| Space Use |
| Office/Medical |
| Condition |
| - |
| Available |
| October 01, 2026 |
2nd Floor, Ste 201A
| Size | 7,068 SF |
| Term | Negotiable |
| Rental Rate | $48.00 /SF/YR |
| Space Use | Office/Medical |
| Condition | Full Build-Out |
| Available | Now |
Direct stair access from first floor building entrance. Space can be subdivided
- Rate includes utilities, building services and property expenses
- Fully Built-Out as Standard Office
- Mostly Open Floor Plan Layout
3rd Floor, Ste 300
| Size | 3,117 SF |
| Term | Negotiable |
| Rental Rate | $47.00 /SF/YR |
| Space Use | Office/Medical |
| Condition | Full Build-Out |
| Available | Now |
- Rate includes utilities, building services and property expenses
- Fully Built-Out as Standard Office
- Office intensive layout
3rd Floor, Ste 312
| Size | 798 SF |
| Term | Negotiable |
| Rental Rate | $47.00 /SF/YR |
| Space Use | Office/Medical |
| Condition | - |
| Available | Now |
Built out suite with waiting area, kitchenette, conference room and two windowed offices.
- Rate includes utilities, building services and property expenses
4th Floor, Ste 404
| Size | 1,384 SF |
| Term | Negotiable |
| Rental Rate | $43.00 /SF/YR |
| Space Use | Office/Medical |
| Condition | Spec Suite |
| Available | Now |
Move-in ready spec suite available immediately! Three private, windowed offices, pantry, open work area, and reception. FINAL REMAINING OFFICE SPEC SUITE AT 5225 WISCONSIN! PRICE DROPPED TO $43.00 FS TO FINISH SPEC LEASING!
- Rate includes utilities, building services and property expenses
- Mostly Open Floor Plan Layout
- Space is in Excellent Condition
5th Floor, Ste 501
| Size | 933 SF |
| Term | Negotiable |
| Rental Rate | $47.00 /SF/YR |
| Space Use | Office/Medical |
| Condition | Full Build-Out |
| Available | Now |
Space includes 3 private, windowed offices and reception/waiting area.
- Rate includes utilities, building services and property expenses
- Fully Built-Out as Standard Office
- Office intensive layout
5th Floor, Ste 513
| Size | 3,118 SF |
| Term | Negotiable |
| Rental Rate | $47.00 /SF/YR |
| Space Use | Office/Medical |
| Condition | Full Build-Out |
| Available | Now |
Space includes 8 windowed offices, conference room, reception/waiting area, pantry/copy room, and IT/storage closet.
- Rate includes utilities, building services and property expenses
- Fully Built-Out as Standard Office
- Office intensive layout
6th Floor, Ste 600B
| Size | 3,018 SF |
| Term | Negotiable |
| Rental Rate | $48.00 /SF/YR |
| Space Use | Office/Medical |
| Condition | Partial Build-Out |
| Available | Now |
Corner suite with immediate elevator exposure. Great window line and views to Tysons Corner. Space currently in shell condition, with perimeter offices and kitchenette in-place.
- Rate includes utilities, building services and property expenses
- Partially Built-Out as Standard Office
- Mostly Open Floor Plan Layout
- Can be combined with additional space(s) for up to 11,659 SF of adjacent space
6th Floor, Ste 601
| Size | 1,326 SF |
| Term | Negotiable |
| Rental Rate | $48.00 /SF/YR |
| Space Use | Office/Medical |
| Condition | Full Build-Out |
| Available | Now |
Space includes 3 windowed offices, kitchenette/pantry, open work area and reception/waiting area.
- Rate includes utilities, building services and property expenses
- Fully Built-Out as Standard Office
- Office intensive layout
- Can be combined with additional space(s) for up to 11,659 SF of adjacent space
6th Floor, Ste 603
| Size | 1,981 SF |
| Term | Negotiable |
| Rental Rate | $48.00 /SF/YR |
| Space Use | Office/Medical |
| Condition | Full Build-Out |
| Available | Now |
Available immediately. Space includes reception/waiting area, five windowed offices, kitchen, open work area, and internal restroom. Modern finishes.
- Rate includes utilities, building services and property expenses
- Space is in Excellent Condition
- Can be combined with additional space(s) for up to 11,659 SF of adjacent space
6th Floor, Ste 605
| Size | 5,334 SF |
| Term | Negotiable |
| Rental Rate | $48.00 /SF/YR |
| Space Use | Office/Medical |
| Condition | - |
| Available | October 01, 2026 |
- Rate includes utilities, building services and property expenses
- Can be combined with additional space(s) for up to 11,659 SF of adjacent space
PROPERTY OVERVIEW
Medical office building in Friendship Heights across the street from the Friendship Heights Metro entrance. Excellent signage and visibility on Wisconsin Avenue.
- Property Manager on Site
PROPERTY FACTS
SELECT TENANTS
- FLOOR
- TENANT NAME
- 5th
- American Senior Housing Association
- 5th
- Blake Dental Group
- 1st
- FedEx Office
- 3rd
- Global Engineering Solutions of Washington DC
- 5th
- Marvin Liss Law Offices
- 4th
- National Integrated Health Associates
- 3rd
- The Hirschel Group, PC
- 4th
- The Ross Center for Anxiety & Related Disorders
- 5th
- Washington Psychological Center, P.C.












