Your email has been sent.
55 Morley St 9,540 SF Industrial Building Hamilton, ON L8H 3R8 $1,855,922 USD ($194.54 USD/SF)



Investment Highlights
- Freestanding industrial building in central Hamilton.
- Two drive-in doors and 14-foot clear height.
- Excellent access to QEW and Red Hill Valley Parkway.
- Includes ±800 sq. ft. of enclosed storage with roll-up doors.
- 1-ton jib crane included with property.
Executive Summary
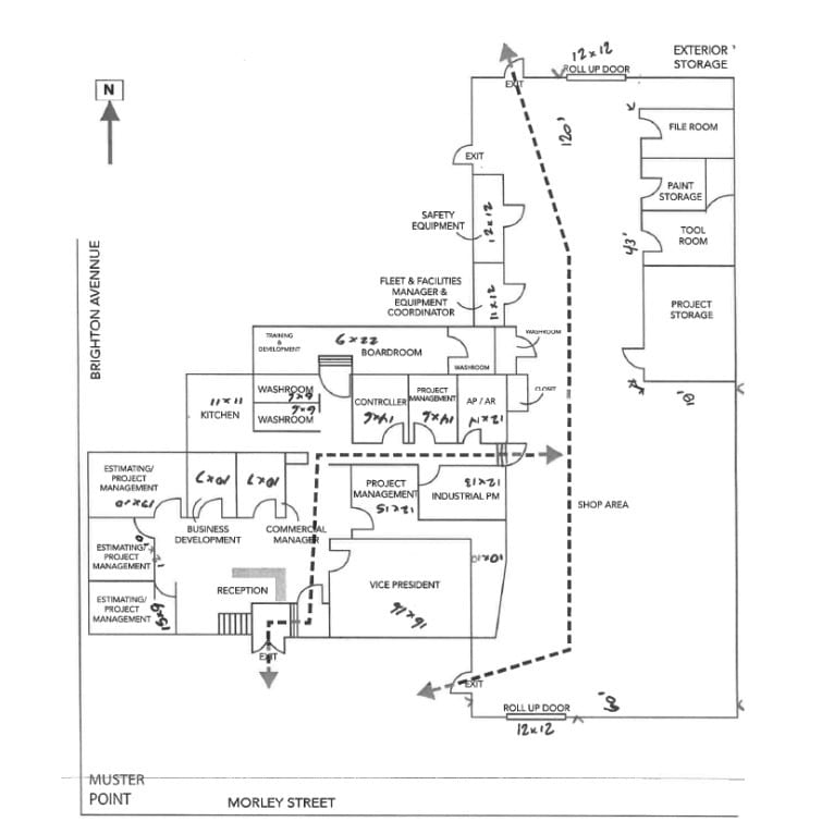
The interior features 2,340 sq. ft. of well-appointed office space with multiple private offices, complemented by 7,200 sq. ft. of warehouse space with 14-foot clear height and two drive-in doors. A 1-ton jib crane is included, and a small basement area offers extra storage not counted in the total square footage. The site is ideal for light manufacturing, distribution, or service operations looking to capitalize on Hamilton’s industrial infrastructure and proximity to major transportation routes.
With a sale price of $2,799,000 and property taxes of just over $7,000 annually, this asset presents a strong value proposition in a tightening industrial market. The surrounding area includes a mix of industrial and residential uses, enhancing workforce accessibility and operational flexibility.
Property Facts Under Contract
| Price | $1,855,922 USD | Rentable Building Area | 9,540 SF |
| Price Per SF | $194.54 USD | No. Stories | 1 |
| Sale Type | Investment or Owner User | Year Built | 1980 |
| Property Type | Industrial | Tenancy | Single |
| Property Subtype | Manufacturing | Parking Ratio | 1.26/1,000 SF |
| Building Class | C | Clear Ceiling Height | 14’ |
| Lot Size | 0.49 AC | No. Drive In / Grade-Level Doors | 3 |
| Zoning | M6 - Industrial | ||
| Price | $1,855,922 USD |
| Price Per SF | $194.54 USD |
| Sale Type | Investment or Owner User |
| Property Type | Industrial |
| Property Subtype | Manufacturing |
| Building Class | C |
| Lot Size | 0.49 AC |
| Rentable Building Area | 9,540 SF |
| No. Stories | 1 |
| Year Built | 1980 |
| Tenancy | Single |
| Parking Ratio | 1.26/1,000 SF |
| Clear Ceiling Height | 14’ |
| No. Drive In / Grade-Level Doors | 3 |
| Zoning | M6 - Industrial |
Amenities
- Fenced Lot
- Security System
- Signage
- Wheelchair Accessible
- Storage Space
- Air Conditioning
- Smoke Detector
Space Availability
- Space
- Size
- Space Use
- Build-Out
- Available
Available for lease at $14.00 net per sq. ft., this freestanding industrial building offers a turnkey solution for businesses seeking short-term or flexible occupancy in a core Hamilton location. The property includes 2,340 sq. ft. of office space and 7,200 sq. ft. of warehouse, supported by two drive-in doors and a 1-ton jib crane. The additional ±800 sq. ft. of enclosed storage space, accessible via three roll-up doors, provides valuable overflow capacity for inventory or equipment. The site’s proximity to the QEW and Red Hill Valley Parkway ensures efficient logistics and regional connectivity. The owner is open to short-term lease arrangements, making this an ideal option for transitional operations, project-based occupancy, or seasonal warehousing. The building’s layout includes a mix of private offices, boardroom, kitchen, and washrooms, with a small basement area for supplemental storage. This configuration supports a wide range of industrial users, from contractors and distributors to service providers and light manufacturers.
| Space | Size | Space Use | Build-Out | Available |
| 1st Floor | 9,540 SF | Industrial | Full Build-Out | Now |
1st Floor
| Size |
| 9,540 SF |
| Space Use |
| Industrial |
| Build-Out |
| Full Build-Out |
| Available |
| Now |
1st Floor
| Size | 9,540 SF |
| Space Use | Industrial |
| Build-Out | Full Build-Out |
| Available | Now |
Available for lease at $14.00 net per sq. ft., this freestanding industrial building offers a turnkey solution for businesses seeking short-term or flexible occupancy in a core Hamilton location. The property includes 2,340 sq. ft. of office space and 7,200 sq. ft. of warehouse, supported by two drive-in doors and a 1-ton jib crane. The additional ±800 sq. ft. of enclosed storage space, accessible via three roll-up doors, provides valuable overflow capacity for inventory or equipment. The site’s proximity to the QEW and Red Hill Valley Parkway ensures efficient logistics and regional connectivity. The owner is open to short-term lease arrangements, making this an ideal option for transitional operations, project-based occupancy, or seasonal warehousing. The building’s layout includes a mix of private offices, boardroom, kitchen, and washrooms, with a small basement area for supplemental storage. This configuration supports a wide range of industrial users, from contractors and distributors to service providers and light manufacturers.
Presented by
55 Morley St
Hmm, there seems to have been an error sending your message. Please try again.
Thanks! Your message was sent.



