Your email has been sent.
Features
Display Rental Rate as
- Space
- Size
- Term
- Rental Rate
- Space Use
- Condition
- Available
Available from Grid Property Management, LLC: View the property website here: www.FarragutFactory.com Office/Retail flex space available for lease in Inner NE Portland. Located in the Piedmont neighborhood of inner NE Portland, the two-story building hosts a variety of office/retail, production, and manufacturing tenants. There are nine separate suites on-site ranging in size from 532 square feet to 6,539 square feet. The property's central location offers convenient access to I-5 and the greater Portland metro. This suite is located on the street level of the building. The space features exposed brick and timber, soaring ceilings, and plenty of natural light. The suite is a total of 2,362 RSF. The RSF of Suite 2/3 is split between an office unit and a flex/showroom space immediately next door. These suites are separated by a bathroom with a shower in between. This restroom is available for sole use by future tenants of Suite 2. The suite has direct access to an additional shared restroom, high interior clearance, and two standard entry doors. The suite has ample power, ample lighting, and gas heat. Power: Information Pending Lease Highlights: • Base Rent: $16.25/SF/year or $3,198.54/month • NNN Charges: $4.50/SF/year or $885.75/month • All-In Rent: $4,084.29/month • Annual Increase: 5% Increase in Base Rent Move-In Special Details: • Sign a lease for at least 24 Months • Get FREE base rent for months 4 and 8 (save $6,397.08 in year one) • Effective All-In Rent for Year 1 is $3,551.20/month after we apply the 2 months FREE base rent • This is a limited-time offer for new tenants only and may end at any time. • Tenants will still pay the standard all-in rent of $4,084.29/month in all months except 4 and 8, when base rent is waived. The savings in those two months reduce your total annual cost—resulting in an average or effective monthly rent of $3,551.20 in Year 1. Tenants are responsible for their own electricity, gas, and garbage. Serious inquiries only. Courtesy to brokers.
- Lease rate does not include utilities, property expenses or building services
Available from Grid Property Management, LLC: Office/Retail flex space available for lease in Inner NE Portland. Located in the Piedmont neighborhood of inner NE Portland, the two-story building hosts a variety of office/retail, production, and manufacturing tenants. There are nine separate suites on-site ranging in size from 532 square feet to 6,539 square feet. The property's central location offers convenient access to I-5 and the greater Portland metro. This suite is located on the street level of the building. The space features exposed brick and timber, soaring ceilings, and plenty of natural light. The suite is a total of 1,727 RSF. Suite 3 can be combined with neighboring Suite 2 which is an office suite. Suite 3 has a private bathroom. The suite has direct access to an additional shared restroom, high interior clearance, and 1 standard entry door. The suite has ample power, ample lighting, and gas heat. Power: Information Pending Lease Highlights: • Base Rent: $16.25/SF/year or $2,338.65/month • NNN Charges: $4.50/SF/year or $647.63/month • All-In Rent: $2,986.27/month • Annual Increase: 5% Increase in Base Rent Move-In Special Details: • Sign a lease for at least 24 Months • Get FREE base rent for months 4 and 8 (save $4,677.30 in year one) • Effective All-In Rent for Year 1 is $2,596.50/month after we apply the 2 months FREE base rent • This is a limited-time offer for new tenants only and may end at any time. • Tenants will still pay the standard all-in rent of $2,986.27/month in all months except 4 and 8, when base rent is waived. The savings in those two months reduce your total annual cost—resulting in an average or effective monthly rent of $2,596.50 in Year 1. Tenants are responsible for their own electricity, gas, and garbage. Serious inquiries only. Courtesy to brokers.
- Lease rate does not include utilities, property expenses or building services
- Private Restrooms
| Space | Size | Term | Rental Rate | Space Use | Condition | Available |
| 1st Floor - 2/3 | 2,362 SF | Negotiable | $13.54 /SF/YR $1.13 /SF/MO $31,981 /YR $2,665 /MO | Flex | Partial Build-Out | Now |
| 1st Floor - 3 | 1,727 SF | 2 Years | $13.54 /SF/YR $1.13 /SF/MO $23,384 /YR $1,949 /MO | Flex | Partial Build-Out | Now |
1st Floor - 2/3
| Size |
| 2,362 SF |
| Term |
| Negotiable |
| Rental Rate |
| $13.54 /SF/YR $1.13 /SF/MO $31,981 /YR $2,665 /MO |
| Space Use |
| Flex |
| Condition |
| Partial Build-Out |
| Available |
| Now |
1st Floor - 3
| Size |
| 1,727 SF |
| Term |
| 2 Years |
| Rental Rate |
| $13.54 /SF/YR $1.13 /SF/MO $23,384 /YR $1,949 /MO |
| Space Use |
| Flex |
| Condition |
| Partial Build-Out |
| Available |
| Now |
- Space
- Size
- Term
- Rental Rate
- Space Use
- Condition
- Available
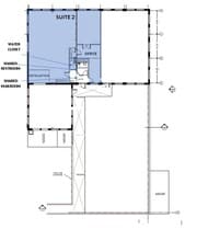
Available from Grid Property Management, LLC: View the property website here: www.FarragutFactory.com Office/Retail flex space available for lease in Inner NE Portland. Located in the Piedmont neighborhood of inner NE Portland, the two-story building hosts a variety of office/retail, production, and manufacturing tenants. There are nine separate suites on-site ranging in size from 532 square feet to 6,539 square feet. The property's central location offers convenient access to I-5 and the greater Portland metro. This suite is located on the street level of the building. The space features vinyl windows and plenty of natural light. The office suite also features a sink and would be a great creative space or private office. The RSF of Suite 2 is 619 RSF. Suite 2 is an office unit and can be combined with neighboring flex/showroom space immediately next door. These suites are separated by a bathroom with a shower in between. Suite 2 has direct access to a shared restroom and mail room. The suite has ample power, ample lighting, and gas heat. Power: Information Pending Lease Highlights: • Base Rent: $16.25/SF/year or $838.23/month • NNN Charges: $4.50/SF/year or $232.13/month • All-In Rent: $1,070.35/month • Annual Increase: 5% Increase in Base Rent Move-In Special Details: • Sign a lease for at least 24 Months • Get FREE base rent for months 4 and 8 (save $1,676.46 in year one) • Effective All-In Rent for Year 1 is $930.65/month after we apply the 2 months FREE base rent • This is a limited-time offer for new tenants only and may end at any time. • Tenants will still pay the standard all-in rent of $1,070.35/month in all months except 4 and 8, when base rent is waived. The savings in those two months reduce your total annual cost—resulting in an average or effective monthly rent of $930.65 in Year 1. Tenants are responsible for their own electricity, gas, and garbage. Serious inquiries only. Courtesy to brokers.
- Lease rate does not include utilities, property expenses or building services
- Partially Built-Out as Standard Office
Available from Grid Property Management, LLC: View the property website here: www.FarragutFactory.com This industrial/office space available for lease in Inner NE Portland. This suite is located in a two-story mixed-use office/retail and industrial building with a handful of other tenants. The business park is located at 55 NE Farragut Street right off of N Lombard and MLK Jr. Blvd with close proximity to I-5. Suite 6 is located on the ground floor of a warehouse style insulated building. The suite is 6,300 RSF. Suite 6 has high interior clearance, one (1) rollup door, and two standard entry doors. Suite 6 has direct access to shared bathrooms in the common corridor. The suite has ample power, ample lighting, and gas heat. Power: Information Pending Parking: Tenant shall have the right to park up to 6 vehicles in East lot. Lease Highlights: • Base Rent: $11.20/SF/year or $5,880.00/month • NNN Charges: $4.50/SF/year or $2,362.50/month • All-In Rent: $8,242.50/month • Annual Increase: 5% Increase in Base Rent Move-In Special Details: • Sign a lease for at least 24 Months • Get FREE base rent for months 4 and 8 (save $11,760.00 in year one) • Effective All-In Rent for Year 1 is $7,262.50/month after we apply the 2 months FREE base rent • This is a limited-time offer for new tenants only and may end at any time. • Tenants will still pay the standard all-in rent of $8,242.50/month in all months except 4 and 8, when base rent is waived. The savings in those two months reduce your total annual cost—resulting in an average or effective monthly rent of $7,262.50 in Year 1. Tenants responsible for their own electricity, gas, and garbage. Serious inquiries only. Courtesy to brokers.
- Lease rate does not include utilities, property expenses or building services
Available from Grid Property Management, LLC: View the property website here: www.FarragutFactory.com Office/Retail flex space available for lease in Inner NE Portland. Located in the Piedmont neighborhood of inner NE Portland, the two-story building hosts a variety of office/retail, production, and manufacturing tenants. There are nine separate suites on-site ranging in size from 532 square feet to 6,539 square feet. The property's central location offers convenient access to I-5 and the greater Portland metro. This suite is located on the street level of the building. The space features exposed brick and timber, soaring ceilings, and plenty of natural light. The suite is a total of 2,362 RSF. The RSF of Suite 2/3 is split between an office unit and a flex/showroom space immediately next door. These suites are separated by a bathroom with a shower in between. This restroom is available for sole use by future tenants of Suite 2. The suite has direct access to an additional shared restroom, high interior clearance, and two standard entry doors. The suite has ample power, ample lighting, and gas heat. Power: Information Pending Lease Highlights: • Base Rent: $16.25/SF/year or $3,198.54/month • NNN Charges: $4.50/SF/year or $885.75/month • All-In Rent: $4,084.29/month • Annual Increase: 5% Increase in Base Rent Move-In Special Details: • Sign a lease for at least 24 Months • Get FREE base rent for months 4 and 8 (save $6,397.08 in year one) • Effective All-In Rent for Year 1 is $3,551.20/month after we apply the 2 months FREE base rent • This is a limited-time offer for new tenants only and may end at any time. • Tenants will still pay the standard all-in rent of $4,084.29/month in all months except 4 and 8, when base rent is waived. The savings in those two months reduce your total annual cost—resulting in an average or effective monthly rent of $3,551.20 in Year 1. Tenants are responsible for their own electricity, gas, and garbage. Serious inquiries only. Courtesy to brokers.
- Lease rate does not include utilities, property expenses or building services
Available from Grid Property Management, LLC: Office/Retail flex space available for lease in Inner NE Portland. Located in the Piedmont neighborhood of inner NE Portland, the two-story building hosts a variety of office/retail, production, and manufacturing tenants. There are nine separate suites on-site ranging in size from 532 square feet to 6,539 square feet. The property's central location offers convenient access to I-5 and the greater Portland metro. This suite is located on the street level of the building. The space features exposed brick and timber, soaring ceilings, and plenty of natural light. The suite is a total of 1,727 RSF. Suite 3 can be combined with neighboring Suite 2 which is an office suite. Suite 3 has a private bathroom. The suite has direct access to an additional shared restroom, high interior clearance, and 1 standard entry door. The suite has ample power, ample lighting, and gas heat. Power: Information Pending Lease Highlights: • Base Rent: $16.25/SF/year or $2,338.65/month • NNN Charges: $4.50/SF/year or $647.63/month • All-In Rent: $2,986.27/month • Annual Increase: 5% Increase in Base Rent Move-In Special Details: • Sign a lease for at least 24 Months • Get FREE base rent for months 4 and 8 (save $4,677.30 in year one) • Effective All-In Rent for Year 1 is $2,596.50/month after we apply the 2 months FREE base rent • This is a limited-time offer for new tenants only and may end at any time. • Tenants will still pay the standard all-in rent of $2,986.27/month in all months except 4 and 8, when base rent is waived. The savings in those two months reduce your total annual cost—resulting in an average or effective monthly rent of $2,596.50 in Year 1. Tenants are responsible for their own electricity, gas, and garbage. Serious inquiries only. Courtesy to brokers.
- Lease rate does not include utilities, property expenses or building services
- Private Restrooms
Industrial warehouse space available for lease in Inner NE Portland. This suite is located in a two-story mixed-use office/retail and industrial building with 8 other tenants. 55 NE Farragut Street is located right off of N Lombard and MLK Jr. Blvd, in the Piedmont neighborhood, with close proximity to I-5. Suite 8 is located on the ground floor of a warehouse-style building. The suite is 2,293 RSF. Suite 8 has high interior clearance, one (1) rollup door, and two standard entry doors, and a walk-in cooler. This current tenant uses this space as a beverage/food product production space. Suite 8 has direct access to shared bathrooms in the common corridor. The suite has ample power, ample lighting, and gas heat. Power: The Suite's power infrastructure will be confirmed soon. Lease Highlights: • Base Rent: $15.00/SF/year or $2,866.25/month • NNN Charges: $4.50/SF/year or $859.88/month • All-In Rent: $3,726.13/month • Annual Increase: 5% Increase in Base Rent Move-In Special Details: • Sign a lease for at least 24 Months • Get FREE base rent for months 4 and 8 (save $5,732.50 in year one) • Effective All-In Rent for Year 1 is $3,248.42/month after we apply the 2 months FREE base rent • This is a limited-time offer for new tenants only and may end at any time. • Tenants will still pay the standard all-in rent of $3,726.13/month in all months except 4 and 8, when base rent is waived. The savings in those two months reduce your total annual cost—resulting in an average or effective monthly rent of $3,248.42 in Year 1. Tenants are responsible for their own electricity, gas, and garbage. Serious inquiries only. Courtesy to brokers.
- Lease rate does not include utilities, property expenses or building services
| Space | Size | Term | Rental Rate | Space Use | Condition | Available |
| 1st Floor, Ste 02 | 619 SF | 2 Years | $13.54 /SF/YR $1.13 /SF/MO $8,381 /YR $698.44 /MO | Office | Partial Build-Out | Now |
| 1st Floor - 06 | 6,300 SF | 2 Years | $9.33 /SF/YR $0.78 /SF/MO $58,779 /YR $4,898 /MO | Industrial | Partial Build-Out | Now |
| 1st Floor - 2/3 | 2,362 SF | Negotiable | $13.54 /SF/YR $1.13 /SF/MO $31,981 /YR $2,665 /MO | Flex | Partial Build-Out | Now |
| 1st Floor - 3 | 1,727 SF | 2 Years | $13.54 /SF/YR $1.13 /SF/MO $23,384 /YR $1,949 /MO | Flex | Partial Build-Out | Now |
| 1st Floor - 8 | 2,293 SF | 2 Years | $12.50 /SF/YR $1.04 /SF/MO $28,663 /YR $2,389 /MO | Industrial | Partial Build-Out | March 24, 2026 |
1st Floor, Ste 02
| Size |
| 619 SF |
| Term |
| 2 Years |
| Rental Rate |
| $13.54 /SF/YR $1.13 /SF/MO $8,381 /YR $698.44 /MO |
| Space Use |
| Office |
| Condition |
| Partial Build-Out |
| Available |
| Now |
1st Floor - 06
| Size |
| 6,300 SF |
| Term |
| 2 Years |
| Rental Rate |
| $9.33 /SF/YR $0.78 /SF/MO $58,779 /YR $4,898 /MO |
| Space Use |
| Industrial |
| Condition |
| Partial Build-Out |
| Available |
| Now |
1st Floor - 2/3
| Size |
| 2,362 SF |
| Term |
| Negotiable |
| Rental Rate |
| $13.54 /SF/YR $1.13 /SF/MO $31,981 /YR $2,665 /MO |
| Space Use |
| Flex |
| Condition |
| Partial Build-Out |
| Available |
| Now |
1st Floor - 3
| Size |
| 1,727 SF |
| Term |
| 2 Years |
| Rental Rate |
| $13.54 /SF/YR $1.13 /SF/MO $23,384 /YR $1,949 /MO |
| Space Use |
| Flex |
| Condition |
| Partial Build-Out |
| Available |
| Now |
1st Floor - 8
| Size |
| 2,293 SF |
| Term |
| 2 Years |
| Rental Rate |
| $12.50 /SF/YR $1.04 /SF/MO $28,663 /YR $2,389 /MO |
| Space Use |
| Industrial |
| Condition |
| Partial Build-Out |
| Available |
| March 24, 2026 |
1st Floor, Ste 02
| Size | 619 SF |
| Term | 2 Years |
| Rental Rate | $13.54 /SF/YR |
| Space Use | Office |
| Condition | Partial Build-Out |
| Available | Now |
Available from Grid Property Management, LLC: View the property website here: www.FarragutFactory.com Office/Retail flex space available for lease in Inner NE Portland. Located in the Piedmont neighborhood of inner NE Portland, the two-story building hosts a variety of office/retail, production, and manufacturing tenants. There are nine separate suites on-site ranging in size from 532 square feet to 6,539 square feet. The property's central location offers convenient access to I-5 and the greater Portland metro. This suite is located on the street level of the building. The space features vinyl windows and plenty of natural light. The office suite also features a sink and would be a great creative space or private office. The RSF of Suite 2 is 619 RSF. Suite 2 is an office unit and can be combined with neighboring flex/showroom space immediately next door. These suites are separated by a bathroom with a shower in between. Suite 2 has direct access to a shared restroom and mail room. The suite has ample power, ample lighting, and gas heat. Power: Information Pending Lease Highlights: • Base Rent: $16.25/SF/year or $838.23/month • NNN Charges: $4.50/SF/year or $232.13/month • All-In Rent: $1,070.35/month • Annual Increase: 5% Increase in Base Rent Move-In Special Details: • Sign a lease for at least 24 Months • Get FREE base rent for months 4 and 8 (save $1,676.46 in year one) • Effective All-In Rent for Year 1 is $930.65/month after we apply the 2 months FREE base rent • This is a limited-time offer for new tenants only and may end at any time. • Tenants will still pay the standard all-in rent of $1,070.35/month in all months except 4 and 8, when base rent is waived. The savings in those two months reduce your total annual cost—resulting in an average or effective monthly rent of $930.65 in Year 1. Tenants are responsible for their own electricity, gas, and garbage. Serious inquiries only. Courtesy to brokers.
- Lease rate does not include utilities, property expenses or building services
- Partially Built-Out as Standard Office
1st Floor - 06
| Size | 6,300 SF |
| Term | 2 Years |
| Rental Rate | $9.33 /SF/YR |
| Space Use | Industrial |
| Condition | Partial Build-Out |
| Available | Now |
Available from Grid Property Management, LLC: View the property website here: www.FarragutFactory.com This industrial/office space available for lease in Inner NE Portland. This suite is located in a two-story mixed-use office/retail and industrial building with a handful of other tenants. The business park is located at 55 NE Farragut Street right off of N Lombard and MLK Jr. Blvd with close proximity to I-5. Suite 6 is located on the ground floor of a warehouse style insulated building. The suite is 6,300 RSF. Suite 6 has high interior clearance, one (1) rollup door, and two standard entry doors. Suite 6 has direct access to shared bathrooms in the common corridor. The suite has ample power, ample lighting, and gas heat. Power: Information Pending Parking: Tenant shall have the right to park up to 6 vehicles in East lot. Lease Highlights: • Base Rent: $11.20/SF/year or $5,880.00/month • NNN Charges: $4.50/SF/year or $2,362.50/month • All-In Rent: $8,242.50/month • Annual Increase: 5% Increase in Base Rent Move-In Special Details: • Sign a lease for at least 24 Months • Get FREE base rent for months 4 and 8 (save $11,760.00 in year one) • Effective All-In Rent for Year 1 is $7,262.50/month after we apply the 2 months FREE base rent • This is a limited-time offer for new tenants only and may end at any time. • Tenants will still pay the standard all-in rent of $8,242.50/month in all months except 4 and 8, when base rent is waived. The savings in those two months reduce your total annual cost—resulting in an average or effective monthly rent of $7,262.50 in Year 1. Tenants responsible for their own electricity, gas, and garbage. Serious inquiries only. Courtesy to brokers.
- Lease rate does not include utilities, property expenses or building services
1st Floor - 2/3
| Size | 2,362 SF |
| Term | Negotiable |
| Rental Rate | $13.54 /SF/YR |
| Space Use | Flex |
| Condition | Partial Build-Out |
| Available | Now |
Available from Grid Property Management, LLC: View the property website here: www.FarragutFactory.com Office/Retail flex space available for lease in Inner NE Portland. Located in the Piedmont neighborhood of inner NE Portland, the two-story building hosts a variety of office/retail, production, and manufacturing tenants. There are nine separate suites on-site ranging in size from 532 square feet to 6,539 square feet. The property's central location offers convenient access to I-5 and the greater Portland metro. This suite is located on the street level of the building. The space features exposed brick and timber, soaring ceilings, and plenty of natural light. The suite is a total of 2,362 RSF. The RSF of Suite 2/3 is split between an office unit and a flex/showroom space immediately next door. These suites are separated by a bathroom with a shower in between. This restroom is available for sole use by future tenants of Suite 2. The suite has direct access to an additional shared restroom, high interior clearance, and two standard entry doors. The suite has ample power, ample lighting, and gas heat. Power: Information Pending Lease Highlights: • Base Rent: $16.25/SF/year or $3,198.54/month • NNN Charges: $4.50/SF/year or $885.75/month • All-In Rent: $4,084.29/month • Annual Increase: 5% Increase in Base Rent Move-In Special Details: • Sign a lease for at least 24 Months • Get FREE base rent for months 4 and 8 (save $6,397.08 in year one) • Effective All-In Rent for Year 1 is $3,551.20/month after we apply the 2 months FREE base rent • This is a limited-time offer for new tenants only and may end at any time. • Tenants will still pay the standard all-in rent of $4,084.29/month in all months except 4 and 8, when base rent is waived. The savings in those two months reduce your total annual cost—resulting in an average or effective monthly rent of $3,551.20 in Year 1. Tenants are responsible for their own electricity, gas, and garbage. Serious inquiries only. Courtesy to brokers.
- Lease rate does not include utilities, property expenses or building services
1st Floor - 3
| Size | 1,727 SF |
| Term | 2 Years |
| Rental Rate | $13.54 /SF/YR |
| Space Use | Flex |
| Condition | Partial Build-Out |
| Available | Now |
Available from Grid Property Management, LLC: Office/Retail flex space available for lease in Inner NE Portland. Located in the Piedmont neighborhood of inner NE Portland, the two-story building hosts a variety of office/retail, production, and manufacturing tenants. There are nine separate suites on-site ranging in size from 532 square feet to 6,539 square feet. The property's central location offers convenient access to I-5 and the greater Portland metro. This suite is located on the street level of the building. The space features exposed brick and timber, soaring ceilings, and plenty of natural light. The suite is a total of 1,727 RSF. Suite 3 can be combined with neighboring Suite 2 which is an office suite. Suite 3 has a private bathroom. The suite has direct access to an additional shared restroom, high interior clearance, and 1 standard entry door. The suite has ample power, ample lighting, and gas heat. Power: Information Pending Lease Highlights: • Base Rent: $16.25/SF/year or $2,338.65/month • NNN Charges: $4.50/SF/year or $647.63/month • All-In Rent: $2,986.27/month • Annual Increase: 5% Increase in Base Rent Move-In Special Details: • Sign a lease for at least 24 Months • Get FREE base rent for months 4 and 8 (save $4,677.30 in year one) • Effective All-In Rent for Year 1 is $2,596.50/month after we apply the 2 months FREE base rent • This is a limited-time offer for new tenants only and may end at any time. • Tenants will still pay the standard all-in rent of $2,986.27/month in all months except 4 and 8, when base rent is waived. The savings in those two months reduce your total annual cost—resulting in an average or effective monthly rent of $2,596.50 in Year 1. Tenants are responsible for their own electricity, gas, and garbage. Serious inquiries only. Courtesy to brokers.
- Lease rate does not include utilities, property expenses or building services
- Private Restrooms
1st Floor - 8
| Size | 2,293 SF |
| Term | 2 Years |
| Rental Rate | $12.50 /SF/YR |
| Space Use | Industrial |
| Condition | Partial Build-Out |
| Available | March 24, 2026 |
Industrial warehouse space available for lease in Inner NE Portland. This suite is located in a two-story mixed-use office/retail and industrial building with 8 other tenants. 55 NE Farragut Street is located right off of N Lombard and MLK Jr. Blvd, in the Piedmont neighborhood, with close proximity to I-5. Suite 8 is located on the ground floor of a warehouse-style building. The suite is 2,293 RSF. Suite 8 has high interior clearance, one (1) rollup door, and two standard entry doors, and a walk-in cooler. This current tenant uses this space as a beverage/food product production space. Suite 8 has direct access to shared bathrooms in the common corridor. The suite has ample power, ample lighting, and gas heat. Power: The Suite's power infrastructure will be confirmed soon. Lease Highlights: • Base Rent: $15.00/SF/year or $2,866.25/month • NNN Charges: $4.50/SF/year or $859.88/month • All-In Rent: $3,726.13/month • Annual Increase: 5% Increase in Base Rent Move-In Special Details: • Sign a lease for at least 24 Months • Get FREE base rent for months 4 and 8 (save $5,732.50 in year one) • Effective All-In Rent for Year 1 is $3,248.42/month after we apply the 2 months FREE base rent • This is a limited-time offer for new tenants only and may end at any time. • Tenants will still pay the standard all-in rent of $3,726.13/month in all months except 4 and 8, when base rent is waived. The savings in those two months reduce your total annual cost—resulting in an average or effective monthly rent of $3,248.42 in Year 1. Tenants are responsible for their own electricity, gas, and garbage. Serious inquiries only. Courtesy to brokers.
- Lease rate does not include utilities, property expenses or building services
Property Overview
View full marketing details at www.FarragutFactory.com The Farragut Factory Business Center is located at 55 NE Farragut Street in Portland, OR. The property consists of one building that comprises approximately 22,157 square feet of leasable space. Located in the Piedmont neighborhood of inner NE Portland, the two-story building hosts a variety of office, retail, production, and manufacturing businesses. The property is centrally located and offers tenants quick access to I-5 and the larger Portland metro. There are nine separate suites located on-site ranging in size from 532 square feet to 6,539 square feet. The lease rates for all suites are as shown in the suite-level detail pages below. Each tenant will also pay their own garbage, electricity, and natural gas. Serious inquiries only. Courtesy to brokers.
Warehouse Facility Facts
Select Tenants
- Floor
- Tenant Name
- Industry
- 1st
- Alchemy Arts Collective LLC
- Arts, Entertainment, and Recreation
- 1st
- Amo Ironworks, LLC
- Services
- 1st
- Either Or, LLC, dba Tanglewood Beverage Company
- Manufacturing
- 1st
- Keep Trucking Garage
- Services
- 1st
- Mouser Electronics, Inc.
- Administrative and Support Services
- 1st
- Portal Tea Company, LLC
- Manufacturing
- 1st
- Rebeckah Puppo Photography LLC
- Services
- 1st
- Skofin, LLC
- Retailer
- 1st
- Tustan, LLC
- Services
Contact the Leasing Agent
Farragut Factory | 55 NE Farragut St


















