Log In/Sign Up
Your email has been sent.
5500 Central Ave 1,496 SF Office Building Saint Petersburg, FL 33707 $625,000 ($417.78/SF)



Investment Highlights
- Heavy trafficked area with stand-alone signage: passed by over 15,600 daily drivers.
- Renovated and Modernized
Executive Summary
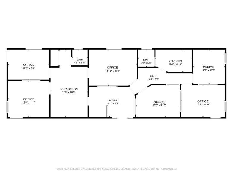
GREAT INVESTMENT! NEW 36 MONTH LEASE JUST SIGNED AT $4,000 PER MONTH. GREAT INVESTMENT POTENTIAL OR 1031 EXCHANGE! Prime High & Dry Location! Flood Zone X. Located on Heavily Trafficked Central Avenue! This Property Features 5 Private Offices, 2 Bathrooms, Kitchen, Conference Room, Waiting Area, Stand-Alone Signage, Parking, and Additional Storage on the Side. Inside Has Been Updated Tastefully. Attractive Curb Appeal. Suitable for General Office, Accounting, Travel, Employment, Title Company, etc. Contact for further detail.
Property Facts
Sale Type
Investment or Owner User
Property Type
Office
Property Subtype
Office/Residential
Building Size
1,496 SF
Building Class
B
Year Built
1976
Price
$625,000
Price Per SF
$417.78
Tenancy
Single
Building Height
1 Story
Typical Floor Size
1,496 SF
Building FAR
0.31
Lot Size
0.11 AC
Zoning
OIP - Office Institutional Professional
Parking
9 Spaces (6 Spaces per 1,000 SF Leased)
Amenities
- Signage
- Storage Space
- Air Conditioning
1 1
Bike Score®
Very Bikeable (82)
Property Taxes
| Parcel Number | 21-31-16-14463-007-0010 | Improvements Assessment | $186,607 |
| Land Assessment | $155,893 | Total Assessment | $342,500 |
Property Taxes
Parcel Number
21-31-16-14463-007-0010
Land Assessment
$155,893
Improvements Assessment
$186,607
Total Assessment
$342,500
1 of 22
Videos
Matterport 3D Exterior
Matterport 3D Tour
Photos
Street View
Street
Map
1 of 1
Presented by
5500 Central Ave
Already a member? Log In
Hmm, there seems to have been an error sending your message. Please try again.
Thanks! Your message was sent.
Your message has been sent!
Activate your LoopNet account now to track properties, get real-time alerts, save time on future inquiries, and more.

