Your email has been sent.
Highlights
- 551 Madison Avenue is a 17-story boutique building in the heart of Madison Avenue's coveted commercial and retail corridor.
- The building features a 24/7 lobby attendant, private tenant lounge, coffee galley, and more.
- Located in the heart of New York’s most premier business district, 551 is convenient to many businesses, restaurants, shopping, and the park.
- 551 Madison Avenue is conveniently located near major transportation and is just a few blocks from Central Park.
All Available Spaces(5)
Display Rental Rate as
- Space
- Size
- Term
- Rental Rate
- Space Use
- Condition
- Available
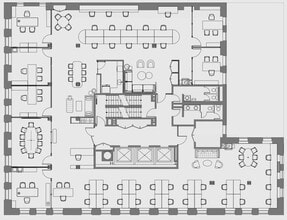
o Space features 8 offices, 1 conference room, 1 breakout area, pantry, and reception area. Offices feature individual temperature control. o The lobby was recently renovated and has a 24/7 lobby attendant. This is an owner-occupied building with a new amenity center.
- Fully Built-Out as Standard Office
- 8 Private Offices
- 2 Workstations
- Reception Area
- Mostly Open Floor Plan Layout
- 1 Conference Room
- Space is in Excellent Condition
This full space has seven offices, a large board room, a small conference room, a pantry, and an open area for 15-20+ people. The space has a private bathroom and the offices feature individual temperature control. The space can be divided down to as small as 3,837 square feet as shown on the plan in green. Alternate divisions are also considered by the landlord. The lobby was recently renovated and has a 24/7 lobby attendant. This is an owner-occupied building with a new amenity center. View the space at: http://workat551.com/
- Fully Built-Out as Standard Office
- 7 Private Offices
- Space is in Excellent Condition
- Central Air and Heating
- Kitchen
- Private Restrooms
- Fully Furnished & Wired.
- Mostly Open Floor Plan Layout
- 2 Conference Rooms
- Plug & Play
- Reception Area
- Elevator Access
- Natural Light
The landlord is in the process of pre-building this floor with a mix of meeting rooms, offices, and an open area. This high-end installation has exposed ceilings, concrete floors, and glass fronts. Ownership can modify the plan per the tenant’s requirements. The building features a recently renovated lobby and an exclusive tenant-only lounge and meeting room.
- Fully Built-Out as Standard Office
- 5 Private Offices
- Can be combined with additional space(s) for up to 22,777 SF of adjacent space
- Mostly Open Floor Plan Layout
- Space is in Excellent Condition
This space currently features a creatively built installation. The landlord has the ability to modify or demolish and pre-build the floor with high-end finishes. This is a highly efficient floor plate with exposed columns. The space features two terraces: a beautiful wrap-around terrace and a private terrace for an executive office. There is the ability to create an exclusive, contiguous block of ~40K square feet with a unique private terrace opportunity on the 17th floor. The block user also has a significant branding opportunity along Madison Avenue. The building features a recently renovated lobby and an exclusive tenant-only lounge and meeting room.
- Fully Built-Out as Standard Office
- Space is in Excellent Condition
- Central Air and Heating
- Three sides of light.
- Mostly Open Floor Plan Layout
- Can be combined with additional space(s) for up to 22,777 SF of adjacent space
- Natural Light
This space currently features a creatively built installation. The landlord has the ability to modify or demolish and pre-build the floor with high-end finishes. This is a highly efficient floor plate with exposed columns. The space features two terraces: a beautiful wrap-around terrace and a private terrace for an executive office. There is the ability to create an exclusive, contiguous block of ~40K square feet with a unique private terrace opportunity on the 17th floor. The block user also has a significant branding opportunity along Madison Avenue. The building features a recently renovated lobby and an exclusive tenant-only lounge and meeting room.
- Fully Built-Out as Standard Office
- Space is in Excellent Condition
- Central Air and Heating
- Three sides of light.
- Mostly Open Floor Plan Layout
- Can be combined with additional space(s) for up to 22,777 SF of adjacent space
- Natural Light
| Space | Size | Term | Rental Rate | Space Use | Condition | Available |
| 4th Floor | 3,541 SF | Negotiable | Upon Request Upon Request Upon Request Upon Request | Office | Full Build-Out | Now |
| 8th Floor | 3,837-6,516 SF | Negotiable | Upon Request Upon Request Upon Request Upon Request | Office | Full Build-Out | Now |
| 15th Floor | 8,330 SF | Negotiable | Upon Request Upon Request Upon Request Upon Request | Office | Full Build-Out | Now |
| 16th Floor | 7,822 SF | Negotiable | Upon Request Upon Request Upon Request Upon Request | Office | Full Build-Out | Now |
| Penthouse | 6,625 SF | Negotiable | Upon Request Upon Request Upon Request Upon Request | Office | Full Build-Out | Now |
4th Floor
| Size |
| 3,541 SF |
| Term |
| Negotiable |
| Rental Rate |
| Upon Request Upon Request Upon Request Upon Request |
| Space Use |
| Office |
| Condition |
| Full Build-Out |
| Available |
| Now |
8th Floor
| Size |
| 3,837-6,516 SF |
| Term |
| Negotiable |
| Rental Rate |
| Upon Request Upon Request Upon Request Upon Request |
| Space Use |
| Office |
| Condition |
| Full Build-Out |
| Available |
| Now |
15th Floor
| Size |
| 8,330 SF |
| Term |
| Negotiable |
| Rental Rate |
| Upon Request Upon Request Upon Request Upon Request |
| Space Use |
| Office |
| Condition |
| Full Build-Out |
| Available |
| Now |
16th Floor
| Size |
| 7,822 SF |
| Term |
| Negotiable |
| Rental Rate |
| Upon Request Upon Request Upon Request Upon Request |
| Space Use |
| Office |
| Condition |
| Full Build-Out |
| Available |
| Now |
Penthouse
| Size |
| 6,625 SF |
| Term |
| Negotiable |
| Rental Rate |
| Upon Request Upon Request Upon Request Upon Request |
| Space Use |
| Office |
| Condition |
| Full Build-Out |
| Available |
| Now |
4th Floor
| Size | 3,541 SF |
| Term | Negotiable |
| Rental Rate | Upon Request |
| Space Use | Office |
| Condition | Full Build-Out |
| Available | Now |
o Space features 8 offices, 1 conference room, 1 breakout area, pantry, and reception area. Offices feature individual temperature control. o The lobby was recently renovated and has a 24/7 lobby attendant. This is an owner-occupied building with a new amenity center.
- Fully Built-Out as Standard Office
- Mostly Open Floor Plan Layout
- 8 Private Offices
- 1 Conference Room
- 2 Workstations
- Space is in Excellent Condition
- Reception Area
8th Floor
| Size | 3,837-6,516 SF |
| Term | Negotiable |
| Rental Rate | Upon Request |
| Space Use | Office |
| Condition | Full Build-Out |
| Available | Now |
This full space has seven offices, a large board room, a small conference room, a pantry, and an open area for 15-20+ people. The space has a private bathroom and the offices feature individual temperature control. The space can be divided down to as small as 3,837 square feet as shown on the plan in green. Alternate divisions are also considered by the landlord. The lobby was recently renovated and has a 24/7 lobby attendant. This is an owner-occupied building with a new amenity center. View the space at: http://workat551.com/
- Fully Built-Out as Standard Office
- Mostly Open Floor Plan Layout
- 7 Private Offices
- 2 Conference Rooms
- Space is in Excellent Condition
- Plug & Play
- Central Air and Heating
- Reception Area
- Kitchen
- Elevator Access
- Private Restrooms
- Natural Light
- Fully Furnished & Wired.
15th Floor
| Size | 8,330 SF |
| Term | Negotiable |
| Rental Rate | Upon Request |
| Space Use | Office |
| Condition | Full Build-Out |
| Available | Now |
The landlord is in the process of pre-building this floor with a mix of meeting rooms, offices, and an open area. This high-end installation has exposed ceilings, concrete floors, and glass fronts. Ownership can modify the plan per the tenant’s requirements. The building features a recently renovated lobby and an exclusive tenant-only lounge and meeting room.
- Fully Built-Out as Standard Office
- Mostly Open Floor Plan Layout
- 5 Private Offices
- Space is in Excellent Condition
- Can be combined with additional space(s) for up to 22,777 SF of adjacent space
16th Floor
| Size | 7,822 SF |
| Term | Negotiable |
| Rental Rate | Upon Request |
| Space Use | Office |
| Condition | Full Build-Out |
| Available | Now |
This space currently features a creatively built installation. The landlord has the ability to modify or demolish and pre-build the floor with high-end finishes. This is a highly efficient floor plate with exposed columns. The space features two terraces: a beautiful wrap-around terrace and a private terrace for an executive office. There is the ability to create an exclusive, contiguous block of ~40K square feet with a unique private terrace opportunity on the 17th floor. The block user also has a significant branding opportunity along Madison Avenue. The building features a recently renovated lobby and an exclusive tenant-only lounge and meeting room.
- Fully Built-Out as Standard Office
- Mostly Open Floor Plan Layout
- Space is in Excellent Condition
- Can be combined with additional space(s) for up to 22,777 SF of adjacent space
- Central Air and Heating
- Natural Light
- Three sides of light.
Penthouse
| Size | 6,625 SF |
| Term | Negotiable |
| Rental Rate | Upon Request |
| Space Use | Office |
| Condition | Full Build-Out |
| Available | Now |
This space currently features a creatively built installation. The landlord has the ability to modify or demolish and pre-build the floor with high-end finishes. This is a highly efficient floor plate with exposed columns. The space features two terraces: a beautiful wrap-around terrace and a private terrace for an executive office. There is the ability to create an exclusive, contiguous block of ~40K square feet with a unique private terrace opportunity on the 17th floor. The block user also has a significant branding opportunity along Madison Avenue. The building features a recently renovated lobby and an exclusive tenant-only lounge and meeting room.
- Fully Built-Out as Standard Office
- Mostly Open Floor Plan Layout
- Space is in Excellent Condition
- Can be combined with additional space(s) for up to 22,777 SF of adjacent space
- Central Air and Heating
- Natural Light
- Three sides of light.
Property Overview
551 Madison Avenue offers office spaces designed for meaningful work. Great care has been put into aesthetic and environmental details so your team can focus, be more productive, and collaborate better in the office than at home. When it comes to work, space matters. Midtown Manhattan is the largest Central Business District in the world. It is known as the country’s largest office concentration and a major hub for media, entertainment, and financial businesses. 551 is located in the heart of this commercial and retail corridor, with close proximity to everything your business needs to thrive.
- 24 Hour Access
- Bus Line
- Conferencing Facility
- Fitness Center
- Metro/Subway
- Kitchen
- Reception
- Central Heating
- Direct Elevator Exposure
- Natural Light
- Air Conditioning
Property Facts
Select Tenants
- Floor
- Tenant Name
- Industry
- GRND
- Allen Edmonds
- Manufacturing
- 10th
- Anat Lebow PLLC
- Health Care and Social Assistance
- 12th
- Complete Wellness
- Health Care and Social Assistance
- 2nd
- ConnectOne Bank
- Finance and Insurance
- 8th
- Convector Capital Management
- Administrative and Support Services
- 11th
- Corniche Capital
- Finance and Insurance
- GRND
- Gregorys Coffee
- Accommodation and Food Services
- 3rd
- KTR Real Estate Advisors
- Professional, Scientific, and Technical Services
- 7th
- New York Medical Associates, PC
- Health Care and Social Assistance
- 5th
- Oma Fertility
- Health Care and Social Assistance
Sustainability
Sustainability
LEED Certification Developed by the U.S. Green Building Council (USGBC), the Leadership in Energy and Environmental Design (LEED) is a green building certification program focused on the design, construction, operation, and maintenance of green buildings, homes, and neighborhoods, which aims to help building owners and operators be environmentally responsible and use resources efficiently. LEED certification is a globally recognized symbol of sustainability achievement and leadership. To achieve LEED certification, a project earns points by adhering to prerequisites and credits that address carbon, energy, water, waste, transportation, materials, health and indoor environmental quality. Projects go through a verification and review process and are awarded points that correspond to a level of LEED certification: Platinum (80+ points) Gold (60-79 points) Silver (50-59 points) Certified (40-49 points)
Presented by
551 Madison Ave
Hmm, there seems to have been an error sending your message. Please try again.
Thanks! Your message was sent.

















