Your email has been sent.
555 Richards St
Vancouver, BC V6B 2Z5
Office Property For Lease
·
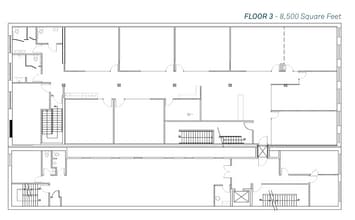
28,200 SF


Property Overview
WHOLE BUILDING LEASING OPPORTUNITY IN THE HEART OF DOWNTOWN VANCOUVER Unlock the potential of this exceptional whole-building leasing opportunity at 555 Richards Street, located in the vibrant core of Downtown Vancouver. Key Features: - Rentable Area: 31849 sq. ft. across 5 floors. - Availability: Ready for occupancy in September 2025. - Current Build-Out: Designed for school use, featuring: - Private classrooms. - Fully equipped kitchens. - A welcoming lobby area, perfect for creating a professional first impression. An ideal opportunity for educational institutions, training centers, or other businesses looking for a centrally located, purpose-built facility. Benefit from the central location with excellent access to public transit, including SkyTrain stations, major bus routes, and cycling paths. Whether you’re expanding an existing institution or launching a new flagship location, 555 Richards Street offers the space, location, and facilities to meet your needs. Contact us today to schedule a tour or learn more about this exciting leasing opportunity!
- Bus Line
