Your email has been sent.
Industrial Shop/Office w/Wash-Bay 5620 FM 1788 (Lot 4) 11,375 SF Industrial Building Midland, TX 79706 $2,161,250 ($190/SF)



Investment Highlights
- 11,375 SF on ± 6.18 Acres
- Up to 2,000 SF Unfinished Mezzanine Ideal for Apartment Space or Breakroom
- (7) 14’x16’ Overhead Doors
- 2,000 SF Office | 7,500 SF Shop
- 10-ton Crane
- 3-Phase Power, 20 GPM Water Capacity, Fiber Internet
Executive Summary
Property Facts
| Price | $2,161,250 | Rentable Building Area | 11,375 SF |
| Price Per SF | $190 | No. Stories | 1 |
| Sale Type | Owner User | Year Built | 2025 |
| Property Type | Industrial | Tenancy | Single |
| Property Subtype | Warehouse | Parking Ratio | 3.81/1,000 SF |
| Building Class | B | Clear Ceiling Height | 26’ |
| Lot Size | 6.18 AC | No. Drive In / Grade-Level Doors | 7 |
| Zoning | No Zoning - Outside City Limits | ||
| Price | $2,161,250 |
| Price Per SF | $190 |
| Sale Type | Owner User |
| Property Type | Industrial |
| Property Subtype | Warehouse |
| Building Class | B |
| Lot Size | 6.18 AC |
| Rentable Building Area | 11,375 SF |
| No. Stories | 1 |
| Year Built | 2025 |
| Tenancy | Single |
| Parking Ratio | 3.81/1,000 SF |
| Clear Ceiling Height | 26’ |
| No. Drive In / Grade-Level Doors | 7 |
| Zoning | No Zoning - Outside City Limits |
Utilities
- Lighting
- Gas
- Water
- Sewer
- Heating
Space Availability
- Space
- Size
- Space Use
- Build-Out
- Available
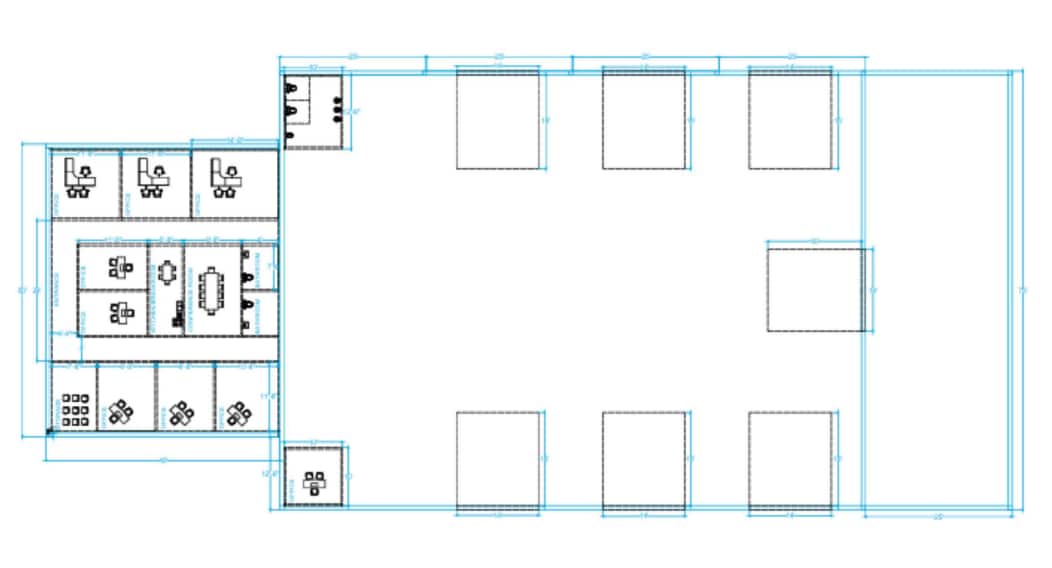
This property offers a 11,375 SF newly constructed industrial building situated on 6.182 acres. The office is 2,000 SF with 7 private offices, a large conference room, 2 bathrooms, a kitchen/breakroom, and a storage office. The second-floor space features up to 2,000 SF unfinished mezzanine plumbed for 2 bathrooms, showers, and a kitchen - ideal for an additional breakroom or apartment set up. The fully insulated warehouse offers a 10-ton crane, 3 drive-through bays with (6) 14’x16’ OH doors, an additional office, and a bathroom with a shower. At the rear of the building is a covered 1,875 SF wash-bay and an additional 14'x16' overhead door. The property has fiber internet access, is fully fenced and secured, and is serviced by 3-Phase/ 600-amp power and 20 GPM water capacity. Contact Dakota Flowers or Amy Brasher Barnett for additional details.
| Space | Size | Space Use | Build-Out | Available |
| 1st Floor | 11,375 SF | Industrial | Partial Build-Out | Now |
1st Floor
| Size |
| 11,375 SF |
| Space Use |
| Industrial |
| Build-Out |
| Partial Build-Out |
| Available |
| Now |
1st Floor
| Size | 11,375 SF |
| Space Use | Industrial |
| Build-Out | Partial Build-Out |
| Available | Now |
This property offers a 11,375 SF newly constructed industrial building situated on 6.182 acres. The office is 2,000 SF with 7 private offices, a large conference room, 2 bathrooms, a kitchen/breakroom, and a storage office. The second-floor space features up to 2,000 SF unfinished mezzanine plumbed for 2 bathrooms, showers, and a kitchen - ideal for an additional breakroom or apartment set up. The fully insulated warehouse offers a 10-ton crane, 3 drive-through bays with (6) 14’x16’ OH doors, an additional office, and a bathroom with a shower. At the rear of the building is a covered 1,875 SF wash-bay and an additional 14'x16' overhead door. The property has fiber internet access, is fully fenced and secured, and is serviced by 3-Phase/ 600-amp power and 20 GPM water capacity. Contact Dakota Flowers or Amy Brasher Barnett for additional details.
Property Taxes
| Parcel Number | R000215-121 | Improvements Assessment | $528,150 |
| Land Assessment | $77,220 | Total Assessment | $605,370 |
Property Taxes
Presented by
Industrial Shop/Office w/Wash-Bay | 5620 FM 1788 (Lot 4)
Hmm, there seems to have been an error sending your message. Please try again.
Thanks! Your message was sent.



