Log In/Sign Up
Your email has been sent.
Investment Highlights
- Turnkey Day Care Facility – 9,732 SF purpose-built center with classrooms, art and music studios, and a performing stage.
- Prime Northwest Las Vegas Location – Positioned on N. Rainbow Blvd. near W. Ann Rd. with traffic counts exceeding 35,000 vehicles daily.
Executive Summary
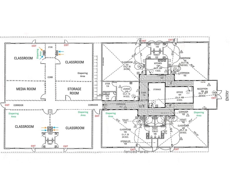
Hiltz Commercial Group is proud to present an exceptional opportunity to acquire a purpose-built day care facility in the heart of Northwest Las Vegas.
Constructed in 2004, this modern, well-maintained building totals 9,732 square feet on 0.94 acres and is specifically designed for education and childcare. The facility includes multiple classrooms, dedicated art and music studios, a performing stage, and thoughtfully planned spaces that foster creativity, social development, and early learning.
Located on N. Rainbow Blvd. just north of Ann Road, the property benefits from high daily traffic counts exceeding 35,000 vehicles at nearby intersections, excellent visibility, and convenient access to major residential communities. Surrounding demographics support strong demand for family-focused services and educational uses.
With its turnkey layout, ample parking, and desirable location, 5695 N. Rainbow Blvd. represents a rare opportunity for operators, investors, or education-focused organizations seeking a flagship presence in a growing Las Vegas corridor.
Constructed in 2004, this modern, well-maintained building totals 9,732 square feet on 0.94 acres and is specifically designed for education and childcare. The facility includes multiple classrooms, dedicated art and music studios, a performing stage, and thoughtfully planned spaces that foster creativity, social development, and early learning.
Located on N. Rainbow Blvd. just north of Ann Road, the property benefits from high daily traffic counts exceeding 35,000 vehicles at nearby intersections, excellent visibility, and convenient access to major residential communities. Surrounding demographics support strong demand for family-focused services and educational uses.
With its turnkey layout, ample parking, and desirable location, 5695 N. Rainbow Blvd. represents a rare opportunity for operators, investors, or education-focused organizations seeking a flagship presence in a growing Las Vegas corridor.
Property Facts
Sale Type
Owner User
Property Type
Retail
Property Subtype
Day Care Center
Building Size
9,732 SF
Building Class
C
Year Built
2004
Price
$3,200,000
Price Per SF
$328.81
Tenancy
Single
Building Height
1 Story
Building FAR
0.24
Lot Size
0.94 AC
Zoning
RD - Building is Zoned R-D (Residential District)
Parking
36 Spaces (3.69 Spaces per 1,000 SF Leased)
Frontage
Space Availability
- Space
- Size
- Space Use
- Position
- Available
5695 N. Rainbow Boulevard is located right in heart of Las Vegas, Nevada and offers a fully renovated facility that is perfect for any children-related uses.
| Space | Size | Space Use | Position | Available |
| 1st Floor | 9,732 SF | Retail | - | Now |
1st Floor
| Size |
| 9,732 SF |
| Space Use |
| Retail |
| Position |
| - |
| Available |
| Now |
1st Floor
| Size | 9,732 SF |
| Space Use | Retail |
| Position | - |
| Available | Now |
5695 N. Rainbow Boulevard is located right in heart of Las Vegas, Nevada and offers a fully renovated facility that is perfect for any children-related uses.
Fairly walkable
50/100
Exceptionally drivable
100/100
Limited public transit
30/100
Fairly bikeable
50/100
Nearby Major Retailers
Property Taxes
| Parcel Number | 125-27-803-005 | Improvements Assessment | $471,890 |
| Land Assessment | $157,642 | Total Assessment | $629,532 |
Property Taxes
Parcel Number
125-27-803-005
Land Assessment
$157,642
Improvements Assessment
$471,890
Total Assessment
$629,532
1 of 12
Videos
Matterport 3D Exterior
Matterport 3D Tour
Photos
Street View
Street
Map
Presented by
5695 N Rainbow Blvd
Already a member? Log In
Hmm, there seems to have been an error sending your message. Please try again.
Thanks! Your message was sent.



