Your email has been sent.
PARK HIGHLIGHTS
- Beltway 8 Business Park, 5829 W Sam Houston Parkway N, is an established flex-industrial campus comprising high-quality brick buildings.
- Well-maintained suites with private entrances, oversized grade-level doors, insulated warehouses, 18' to 20' clear heights, and office/showroom space.
- Strategically located along Beltway 8, offering immediate access to the major arterial, and 2 miles to Highway 290 and 5 miles to Interstate 10.
- Offering select frontage spaces with windowed storefronts and visibility to Beltway 8 with over 133,000 daily drivers.
- Prime address within a 10-minute drive of CITYCENTRE, The Home Depot, H-E-B, Walmart Supercenter, multiple hotels, and over 50 restaurants.
- Tapped into Northwest Houston’s best industrial workforce, as approximately 57% of laborers within a 5-mile radius are in the blue-collar sector.
PARK FACTS
FEATURES AND AMENITIES
- 24 Hour Access
- Air Conditioning
- Freeway Visibility
- Property Manager on Site
- Signage
- Skylights
- Tenant Controlled HVAC
- Drive Thru
ALL AVAILABLE SPACES(17)
Display Rental Rate as
- SPACE
- SIZE
- TERM
- RENTAL RATE
- SPACE USE
- CONDITION
- AVAILABLE
The suite features an open warehouse area, private offices, restrooms, and a mezzanine.
- Lease rate does not include utilities, property expenses or building services
Featuring 1,424 square feet of warehouse space, 977 square feet of first-floor offices, a 977-square-foot mezzanine, and an overhead door.
- Lease rate does not include utilities, property expenses or building services
- 1 Drive Bay
- Includes 977 SF of dedicated office space
Open warehouse with an overhead door.
- Lease rate does not include utilities, property expenses or building services
- 1 Drive Bay
- Includes 575 SF of dedicated office space
Comprises 1,560 square feet of warehouse space, 840 square feet of office space, an 840-square-foot mezzanine, and an overhead door.
- Lease rate does not include utilities, property expenses or building services
- 1 Drive Bay
- Includes 840 SF of dedicated office space
Featuring an overhead door, 1,560 square feet of warehouse space, an 840-square-foot first-floor office, a 200-square-foot second-floor office, and a 640-square foot mezzanine.
- Includes 1,040 SF of dedicated office space
- 1 Drive Bay
| Space | Size | Term | Rental Rate | Space Use | Condition | Available |
| 1st Floor - 1003 | 4,800 SF | Negotiable | Upon Request Upon Request Upon Request Upon Request | Flex | - | Now |
| 1st Floor - 1005 | 3,378 SF | Negotiable | Upon Request Upon Request Upon Request Upon Request | Flex | - | Now |
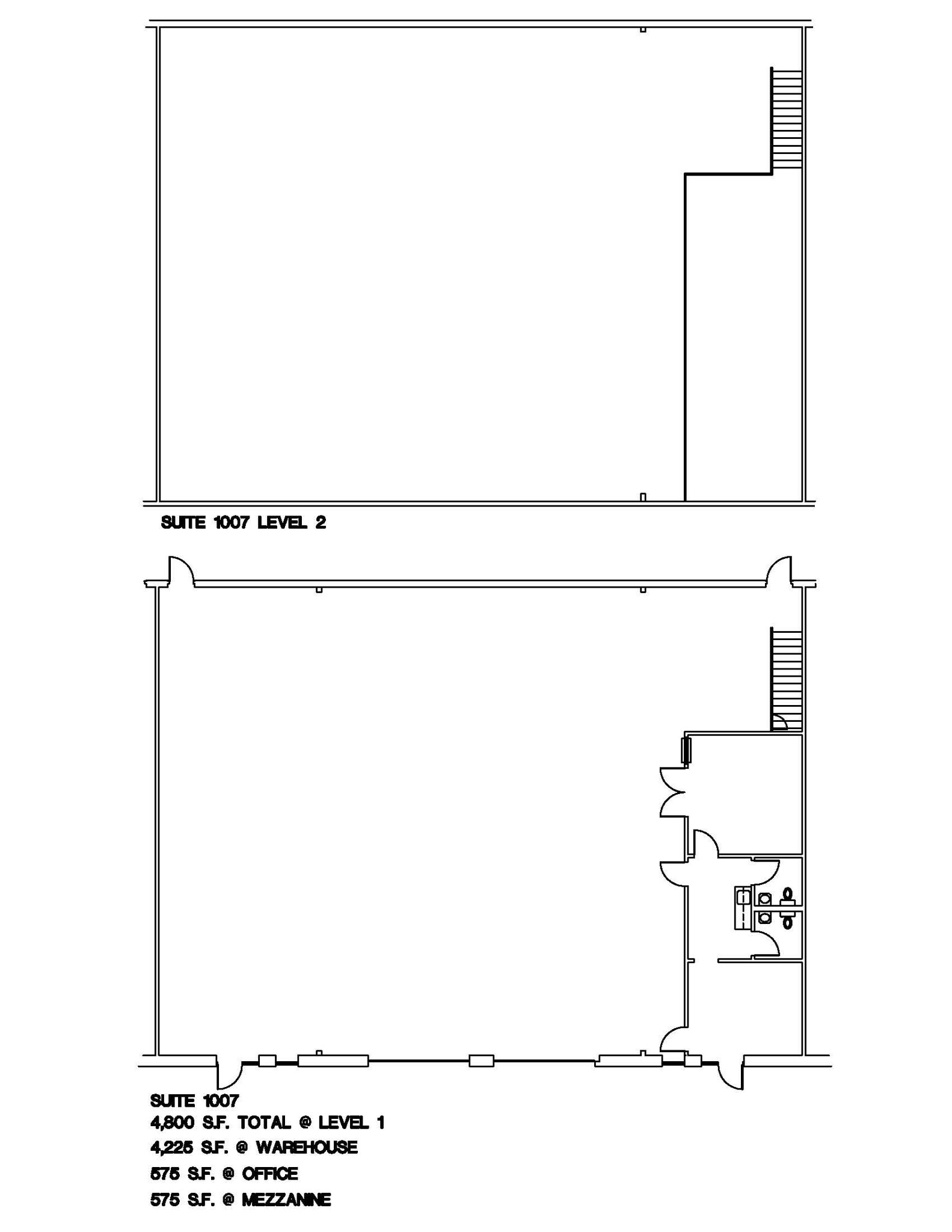
| 1st Floor - 1007 | 4,800 SF | Negotiable | Upon Request Upon Request Upon Request Upon Request | Flex | Full Build-Out | Now |
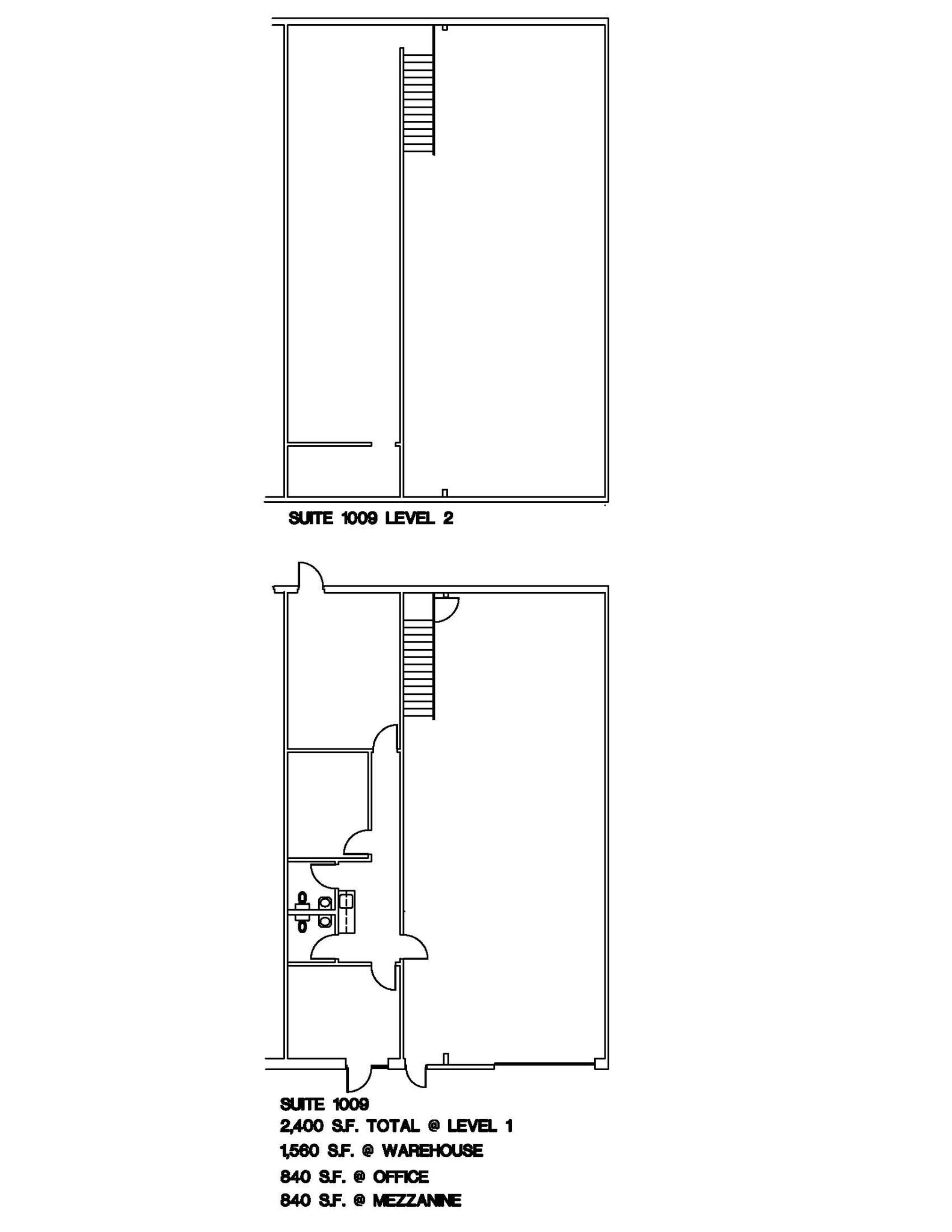
| 1st Floor - 1009 | 3,240 SF | Negotiable | Upon Request Upon Request Upon Request Upon Request | Flex | - | Now |
| 1st Floor - 1010 | 3,240 SF | Negotiable | Upon Request Upon Request Upon Request Upon Request | Flex | Partial Build-Out | Now |
5829 W Sam Houston Pky N - 1st Floor - 1003
5829 W Sam Houston Pky N - 1st Floor - 1005
5829 W Sam Houston Pky N - 1st Floor - 1007
5829 W Sam Houston Pky N - 1st Floor - 1009
5829 W Sam Houston Pky N - 1st Floor - 1010
- SPACE
- SIZE
- TERM
- RENTAL RATE
- SPACE USE
- CONDITION
- AVAILABLE
The space totals approximately 3,680 square feet, including a 1,280-square-foot first-floor office, a 1,208-square-foot second-floor mezzanine, an overhead door, and a 1,120-square-foot warehouse.
- Includes 1,280 SF of dedicated office space
- 1 Drive Bay
The space totals approximately 3,240 square feet and features an 18-foot clear height, one 12-by-14-foot grade-level door, and three-phase power with 480 volts and 200 amps.
- Includes 1,582 SF of dedicated office space
The space totals approximately 3,240 square feet, including a 1,680-square-foot office. It features an 18-foot clear height, one 12-by-14-foot grade-level door, and three-phase power with 480 volts and 200 amps.
- Lease rate does not include utilities, property expenses or building services
- 1 Drive Bay
- Includes 1,680 SF of dedicated office space
| Space | Size | Term | Rental Rate | Space Use | Condition | Available |
| 1st Floor - 1102 | 3,680 SF | Negotiable | Upon Request Upon Request Upon Request Upon Request | Flex | Full Build-Out | Now |
| 1st Floor - 1104 | 3,240 SF | Negotiable | Upon Request Upon Request Upon Request Upon Request | Flex | Partial Build-Out | Now |
| 1st Floor - 1105 | 3,240 SF | Negotiable | Upon Request Upon Request Upon Request Upon Request | Flex | - | Now |
5829 W Sam Houston Pky N - 1st Floor - 1102
5829 W Sam Houston Pky N - 1st Floor - 1104
5829 W Sam Houston Pky N - 1st Floor - 1105
- SPACE
- SIZE
- TERM
- RENTAL RATE
- SPACE USE
- CONDITION
- AVAILABLE
The space totals approximately 5,113 square feet, including a 753-square-foot first-floor office, a 613-square-foot second-floor mezzanine, and a 3,747-square-foot warehouse. It is equipped with two overhead doors and three-phase power.
- Lease rate does not include utilities, property expenses or building services
- 2 Drive Ins
- Includes 753 SF of dedicated office space
The space totals approximately 8,662 square feet, including a 2,220-square-foot first-floor office and a 1,162-square-foot second-floor office. It is equipped with three-phase power.
- Lease rate does not include utilities, property expenses or building services
- Includes 3,382 SF of dedicated office space
The space totals approximately 4,080 square feet, including a 1,320-square-foot office. It features an 18-foot clear height, one overhead door, and three-phase power with 480 volts and 200 amps.
- Includes 1,320 SF of dedicated office space
- 1 Drive Bay
| Space | Size | Term | Rental Rate | Space Use | Condition | Available |
| 1st Floor - 1201 | 5,113 SF | Negotiable | Upon Request Upon Request Upon Request Upon Request | Flex | - | Now |
| 1st Floor - 1202 | 8,662 SF | Negotiable | Upon Request Upon Request Upon Request Upon Request | Flex | - | Now |
| 1st Floor - 1206 | 4,080 SF | Negotiable | Upon Request Upon Request Upon Request Upon Request | Flex | Partial Build-Out | Now |
5829 W Sam Houston Pky N - 1st Floor - 1201
5829 W Sam Houston Pky N - 1st Floor - 1202
5829 W Sam Houston Pky N - 1st Floor - 1206
- SPACE
- SIZE
- TERM
- RENTAL RATE
- SPACE USE
- CONDITION
- AVAILABLE
The space totals approximately 3,240 square feet, including an 840-square-foot first-floor office and a 1,560-square-foot warehouse. It features an 18-foot clear height, one 12-by-14-foot grade-level door, and three-phase power.
- Includes 840 SF of dedicated office space
- 1 Drive Bay
The space totals approximately 3,480 square feet, including a 1,080-square-foot first-floor office and a 1,320-square-foot warehouse. It features an 18-foot clear height, one 12-by-14-foot grade-level door, and three-phase power.
- Includes 1,080 SF of dedicated office space
- 1 Drive Bay
The space totals approximately 3,100 square feet, including a 1,000-square-foot first-floor office, a 1,000-square-foot second-floor mezzanine, and a 1,100-square-foot warehouse. It features an 18-foot clear height, one 12-by-14-foot grade-level door, and three-phase power.
- Includes 1,000 SF of dedicated office space
- 1 Drive Bay
| Space | Size | Term | Rental Rate | Space Use | Condition | Available |
| 1st Floor - 404 | 3,240 SF | Negotiable | Upon Request Upon Request Upon Request Upon Request | Flex | Partial Build-Out | Now |
| 1st Floor - 406 | 3,480 SF | Negotiable | Upon Request Upon Request Upon Request Upon Request | Flex | Partial Build-Out | Now |
| 1st Floor - 409 | 3,100 SF | Negotiable | Upon Request Upon Request Upon Request Upon Request | Flex | Partial Build-Out | Now |
5829 W Sam Houston Pky N - 1st Floor - 404
5829 W Sam Houston Pky N - 1st Floor - 406
5829 W Sam Houston Pky N - 1st Floor - 409
- SPACE
- SIZE
- TERM
- RENTAL RATE
- SPACE USE
- CONDITION
- AVAILABLE
The space totals approximately 3,574 square feet across two levels, including a 1,190-square-foot first-floor office, a 1,190-square-foot second-floor mezzanine, and a 1,194-square-foot warehouse with an overhead door.
- Lease rate does not include utilities, property expenses or building services
- 1 Drive Bay
- Includes 1,190 SF of dedicated office space
| Space | Size | Term | Rental Rate | Space Use | Condition | Available |
| 1st Floor - 704 | 3,574 SF | Negotiable | Upon Request Upon Request Upon Request Upon Request | Flex | Full Build-Out | Now |
5829 W Sam Houston Pky N - 1st Floor - 704
- SPACE
- SIZE
- TERM
- RENTAL RATE
- SPACE USE
- CONDITION
- AVAILABLE
The space totals approximately 3,000 square feet, with a first-floor office of about 1,500 square feet and a second-floor mezzanine of roughly 1,500 square feet. It features an 18-foot clear height and is equipped with three-phase power, 480 volts, and 200 amps.
- Lease rate does not include utilities, property expenses or building services
- 1 Drive Bay
- Includes 1,500 SF of dedicated office space
| Space | Size | Term | Rental Rate | Space Use | Condition | Available |
| 1st Floor - 803 | 3,000 SF | Negotiable | Upon Request Upon Request Upon Request Upon Request | Flex | Full Build-Out | Now |
5829 W Sam Houston Pky N - 1st Floor - 803
- SPACE
- SIZE
- TERM
- RENTAL RATE
- SPACE USE
- CONDITION
- AVAILABLE
Mainly office space with a 990-square-foot first-floor office, a 613-square-foot second-floor office, and private restrooms.
- Includes 1,603 SF of dedicated office space
| Space | Size | Term | Rental Rate | Space Use | Condition | Available |
| 1st Floor - 910 | 1,836 SF | Negotiable | Upon Request Upon Request Upon Request Upon Request | Flex | Partial Build-Out | Now |
5829 W Sam Houston Pky N - 1st Floor - 910
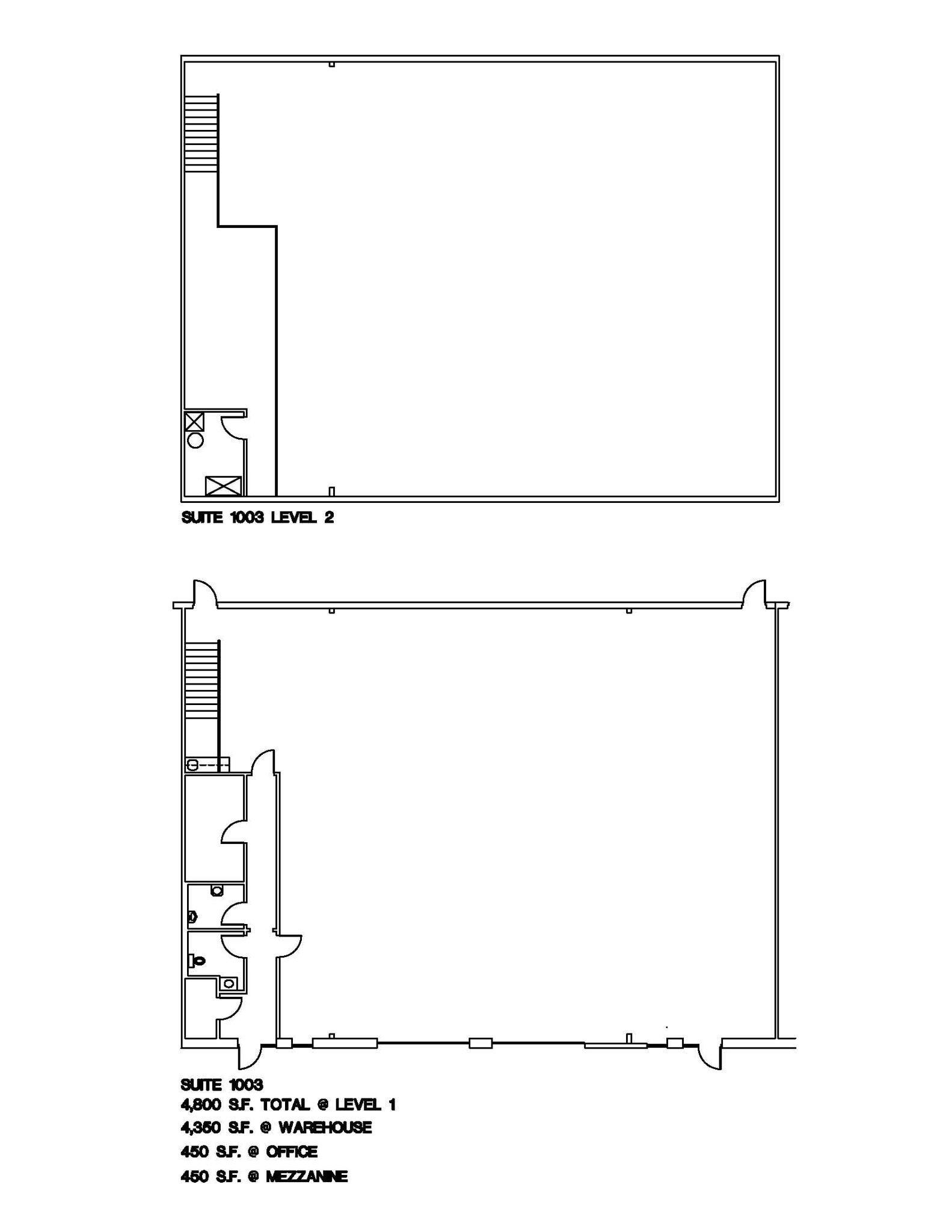
5829 W Sam Houston Pky N - 1st Floor - 1003
| Size | 4,800 SF |
| Term | Negotiable |
| Rental Rate | Upon Request |
| Space Use | Flex |
| Condition | - |
| Available | Now |
The suite features an open warehouse area, private offices, restrooms, and a mezzanine.
- Lease rate does not include utilities, property expenses or building services
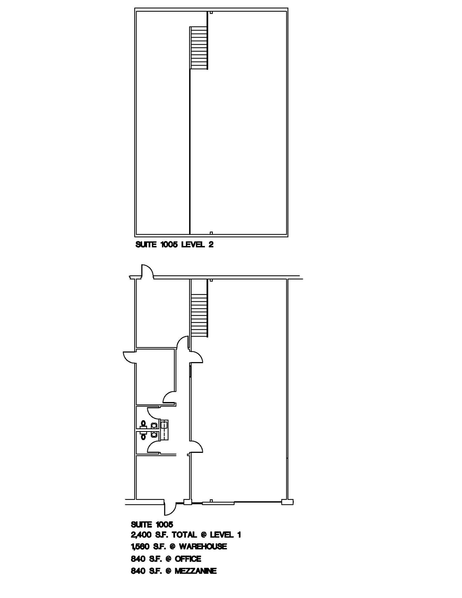
5829 W Sam Houston Pky N - 1st Floor - 1005
| Size | 3,378 SF |
| Term | Negotiable |
| Rental Rate | Upon Request |
| Space Use | Flex |
| Condition | - |
| Available | Now |
Featuring 1,424 square feet of warehouse space, 977 square feet of first-floor offices, a 977-square-foot mezzanine, and an overhead door.
- Lease rate does not include utilities, property expenses or building services
- Includes 977 SF of dedicated office space
- 1 Drive Bay
5829 W Sam Houston Pky N - 1st Floor - 1007
| Size | 4,800 SF |
| Term | Negotiable |
| Rental Rate | Upon Request |
| Space Use | Flex |
| Condition | Full Build-Out |
| Available | Now |
Open warehouse with an overhead door.
- Lease rate does not include utilities, property expenses or building services
- Includes 575 SF of dedicated office space
- 1 Drive Bay
5829 W Sam Houston Pky N - 1st Floor - 1009
| Size | 3,240 SF |
| Term | Negotiable |
| Rental Rate | Upon Request |
| Space Use | Flex |
| Condition | - |
| Available | Now |
Comprises 1,560 square feet of warehouse space, 840 square feet of office space, an 840-square-foot mezzanine, and an overhead door.
- Lease rate does not include utilities, property expenses or building services
- Includes 840 SF of dedicated office space
- 1 Drive Bay
5829 W Sam Houston Pky N - 1st Floor - 1010
| Size | 3,240 SF |
| Term | Negotiable |
| Rental Rate | Upon Request |
| Space Use | Flex |
| Condition | Partial Build-Out |
| Available | Now |
Featuring an overhead door, 1,560 square feet of warehouse space, an 840-square-foot first-floor office, a 200-square-foot second-floor office, and a 640-square foot mezzanine.
- Includes 1,040 SF of dedicated office space
- 1 Drive Bay
5829 W Sam Houston Pky N - 1st Floor - 1102
| Size | 3,680 SF |
| Term | Negotiable |
| Rental Rate | Upon Request |
| Space Use | Flex |
| Condition | Full Build-Out |
| Available | Now |
The space totals approximately 3,680 square feet, including a 1,280-square-foot first-floor office, a 1,208-square-foot second-floor mezzanine, an overhead door, and a 1,120-square-foot warehouse.
- Includes 1,280 SF of dedicated office space
- 1 Drive Bay
5829 W Sam Houston Pky N - 1st Floor - 1104
| Size | 3,240 SF |
| Term | Negotiable |
| Rental Rate | Upon Request |
| Space Use | Flex |
| Condition | Partial Build-Out |
| Available | Now |
The space totals approximately 3,240 square feet and features an 18-foot clear height, one 12-by-14-foot grade-level door, and three-phase power with 480 volts and 200 amps.
- Includes 1,582 SF of dedicated office space
5829 W Sam Houston Pky N - 1st Floor - 1105
| Size | 3,240 SF |
| Term | Negotiable |
| Rental Rate | Upon Request |
| Space Use | Flex |
| Condition | - |
| Available | Now |
The space totals approximately 3,240 square feet, including a 1,680-square-foot office. It features an 18-foot clear height, one 12-by-14-foot grade-level door, and three-phase power with 480 volts and 200 amps.
- Lease rate does not include utilities, property expenses or building services
- Includes 1,680 SF of dedicated office space
- 1 Drive Bay
5829 W Sam Houston Pky N - 1st Floor - 1201
| Size | 5,113 SF |
| Term | Negotiable |
| Rental Rate | Upon Request |
| Space Use | Flex |
| Condition | - |
| Available | Now |
The space totals approximately 5,113 square feet, including a 753-square-foot first-floor office, a 613-square-foot second-floor mezzanine, and a 3,747-square-foot warehouse. It is equipped with two overhead doors and three-phase power.
- Lease rate does not include utilities, property expenses or building services
- Includes 753 SF of dedicated office space
- 2 Drive Ins
5829 W Sam Houston Pky N - 1st Floor - 1202
| Size | 8,662 SF |
| Term | Negotiable |
| Rental Rate | Upon Request |
| Space Use | Flex |
| Condition | - |
| Available | Now |
The space totals approximately 8,662 square feet, including a 2,220-square-foot first-floor office and a 1,162-square-foot second-floor office. It is equipped with three-phase power.
- Lease rate does not include utilities, property expenses or building services
- Includes 3,382 SF of dedicated office space
5829 W Sam Houston Pky N - 1st Floor - 1206
| Size | 4,080 SF |
| Term | Negotiable |
| Rental Rate | Upon Request |
| Space Use | Flex |
| Condition | Partial Build-Out |
| Available | Now |
The space totals approximately 4,080 square feet, including a 1,320-square-foot office. It features an 18-foot clear height, one overhead door, and three-phase power with 480 volts and 200 amps.
- Includes 1,320 SF of dedicated office space
- 1 Drive Bay
5829 W Sam Houston Pky N - 1st Floor - 404
| Size | 3,240 SF |
| Term | Negotiable |
| Rental Rate | Upon Request |
| Space Use | Flex |
| Condition | Partial Build-Out |
| Available | Now |
The space totals approximately 3,240 square feet, including an 840-square-foot first-floor office and a 1,560-square-foot warehouse. It features an 18-foot clear height, one 12-by-14-foot grade-level door, and three-phase power.
- Includes 840 SF of dedicated office space
- 1 Drive Bay
5829 W Sam Houston Pky N - 1st Floor - 406
| Size | 3,480 SF |
| Term | Negotiable |
| Rental Rate | Upon Request |
| Space Use | Flex |
| Condition | Partial Build-Out |
| Available | Now |
The space totals approximately 3,480 square feet, including a 1,080-square-foot first-floor office and a 1,320-square-foot warehouse. It features an 18-foot clear height, one 12-by-14-foot grade-level door, and three-phase power.
- Includes 1,080 SF of dedicated office space
- 1 Drive Bay
5829 W Sam Houston Pky N - 1st Floor - 409
| Size | 3,100 SF |
| Term | Negotiable |
| Rental Rate | Upon Request |
| Space Use | Flex |
| Condition | Partial Build-Out |
| Available | Now |
The space totals approximately 3,100 square feet, including a 1,000-square-foot first-floor office, a 1,000-square-foot second-floor mezzanine, and a 1,100-square-foot warehouse. It features an 18-foot clear height, one 12-by-14-foot grade-level door, and three-phase power.
- Includes 1,000 SF of dedicated office space
- 1 Drive Bay
5829 W Sam Houston Pky N - 1st Floor - 704
| Size | 3,574 SF |
| Term | Negotiable |
| Rental Rate | Upon Request |
| Space Use | Flex |
| Condition | Full Build-Out |
| Available | Now |
The space totals approximately 3,574 square feet across two levels, including a 1,190-square-foot first-floor office, a 1,190-square-foot second-floor mezzanine, and a 1,194-square-foot warehouse with an overhead door.
- Lease rate does not include utilities, property expenses or building services
- Includes 1,190 SF of dedicated office space
- 1 Drive Bay
5829 W Sam Houston Pky N - 1st Floor - 803
| Size | 3,000 SF |
| Term | Negotiable |
| Rental Rate | Upon Request |
| Space Use | Flex |
| Condition | Full Build-Out |
| Available | Now |
The space totals approximately 3,000 square feet, with a first-floor office of about 1,500 square feet and a second-floor mezzanine of roughly 1,500 square feet. It features an 18-foot clear height and is equipped with three-phase power, 480 volts, and 200 amps.
- Lease rate does not include utilities, property expenses or building services
- Includes 1,500 SF of dedicated office space
- 1 Drive Bay
5829 W Sam Houston Pky N - 1st Floor - 910
| Size | 1,836 SF |
| Term | Negotiable |
| Rental Rate | Upon Request |
| Space Use | Flex |
| Condition | Partial Build-Out |
| Available | Now |
Mainly office space with a 990-square-foot first-floor office, a 613-square-foot second-floor office, and private restrooms.
- Includes 1,603 SF of dedicated office space
MATTERPORT 3D TOUR
Explore Suite 1206
SELECT TENANTS AT THIS PROPERTY
- FLOOR
- TENANT NAME
- INDUSTRY
- 1st
- AXYS Industrial Solutions
- Wholesaler
- 1st
- Texas Safety & Industrial
- Wholesaler
- 1st
- VIP Systems
- Professional, Scientific, and Technical Services
- 1st
- Wholesale Patio Design Store
- Wholesaler
PARK OVERVIEW
Situated in Northwest Houston, Beltway 8 Business Park is an established flex-industrial campus at 5829 W Sam Houston Parkway N. The well-maintained brick buildings feature private suite entrances, office/showroom space, oversized front-loading roll-up doors, and insulated warehouses with generous clear heights. Perfectly positioned with frontage on W Sam Houston Parkway N/Beltway 8, businesses can take advantage of exceptional exposure with building signage visible to 133,596 vehicles each day. Beltway 8 Business Park is ideally located 1 mile from Brittmoore and W Little York Roads, home to local eateries, and 2 miles to Clay Road with popular chain restaurants and multiple hotels. The amenity-rich area is highly convenient for employees, and a targeted industrial labor pool surrounds 5829 W Sam Houston Parkway N. The campus offers unmatched connectivity, with immediate access to Beltway 8, a point of ingress/egress at each building, and ample parking. Beltway 8 Business Park's strategic location affords easy access to air transportation: 23 miles to Houston George Bush Intercontinental Airport and 32 miles to William P. Hobby Airport.
PARK BROCHURE
DEMOGRAPHICS
REGIONAL ACCESSIBILITY
NEARBY AMENITIES
HOTELS |
|
|---|---|
| Comfort Suites |
69 rooms
4 min drive
|
| Four Points by Sheraton |
157 rooms
5 min drive
|
| Residence Inn |
133 rooms
6 min drive
|
| Spark by Hilton |
59 rooms
5 min drive
|
| Holiday Inn |
113 rooms
5 min drive
|
LEASING TEAM
John Kruse, Managing Director
Carter Holmes, Senior Director
Previously with Holt Lunsford Commercial, Carter developed an extensive client base serving both global and institutional firms.
Specializing in the leasing, acquisition, disposition and new development of single and multi-tenant industrial projects, Carter has completed hundreds of transactions and works on various real estate projects to service his clients.
ABOUT THE OWNER















