Your email has been sent.
HIGHLIGHTS
- 584-590 Broadway is a Class A, 12-story office building offering shell-to-full build-out office space.
- Olmstead Properties is pleased to offer 1,456 - 21,339 square feet of various office floor plans that can accommodate any tenant’s business needs.
- Commuters can easily access this SoHo office building as it is accessible via the B, D, F, M, N, R, W, and six subway lines.
- The building has renovated communal lobby space, a lobby attendant, passenger and freight elevators, and 24/7 key card access.
ALL AVAILABLE SPACES(10)
Display Rental Rate as
- SPACE
- SIZE
- TERM
- RENTAL RATE
- SPACE USE
- CONDITION
- AVAILABLE
currently occupied by Broadway Deli 16' ceilings, 20' frontage can deliver on 60 days notice approximately 1,500 sf of basement space
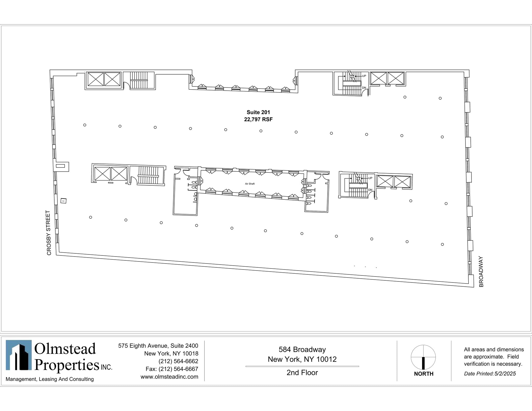
amazing opportunity built space wet pantry tenant controlled air cooled ac units furnished 14' ceilings amazing columns great bay windows facing Broadway can make the full floor available for a total of 22,797 sf
built space, tenant controlled air cooled ac unit, large wet pantry
great clean open small space
Sublet through 7/31/27, possibility for a direct deal Amazing space, directly off the elevators Arched windows, with great western exposure Furnished and ready to go
amazing space with arched windows with western exposures directly off the elevators tenant controlled air cooled ac unit large wet pantry furnished
- Fully Built-Out as Standard Office
- Space is in Excellent Condition
- Mostly Open Floor Plan Layout
amazing space with great eastern exposure, unique arched windows furnished tenant controlled air cooled ac unit wet pantry 5 meeting rooms large conference room
exposed brick wall, tenant controlled air cooled ac unit, wet pantry owner will do work
- Partially Built-Out as Standard Office
- Central Air Conditioning
- Open Floor Plan Layout
- Exposed Brick
Clean open space Owner will do work
great small space with Broadway exposure exposed brick wall wet pantry in place can be furnished
| Space | Size | Term | Rental Rate | Space Use | Condition | Available |
| Ground, Ste 102 | 2,300 SF | Negotiable | Upon Request Upon Request Upon Request Upon Request | Retail | - | 60 Days |
| 2nd Floor, Ste 201 | 17,500-22,797 SF | Negotiable | Upon Request Upon Request Upon Request Upon Request | Office | - | Now |
| 3rd Floor, Ste 308 | 5,115 SF | Negotiable | Upon Request Upon Request Upon Request Upon Request | Office | - | Now |
| 5th Floor, Ste 507 | 820 SF | Negotiable | Upon Request Upon Request Upon Request Upon Request | Office | - | Now |
| 9th Floor, Ste 901 | 4,321 SF | Negotiable | Upon Request Upon Request Upon Request Upon Request | Office | - | Now |
| 9th Floor, Ste 903 | 7,184 SF | Negotiable | Upon Request Upon Request Upon Request Upon Request | Office | Full Build-Out | Now |
| 9th Floor, Ste 907 | 5,347 SF | Negotiable | Upon Request Upon Request Upon Request Upon Request | Office | - | Now |
| 10th Floor, Ste 1005 | 3,392 SF | Negotiable | Upon Request Upon Request Upon Request Upon Request | Office | Partial Build-Out | Now |
| 10th Floor, Ste 1007 | 1,479 SF | Negotiable | Upon Request Upon Request Upon Request Upon Request | Office | - | Now |
| 11th Floor, Ste 1102 | 1,513 SF | Negotiable | Upon Request Upon Request Upon Request Upon Request | Office | - | Now |
Ground, Ste 102
| Size |
| 2,300 SF |
| Term |
| Negotiable |
| Rental Rate |
| Upon Request Upon Request Upon Request Upon Request |
| Space Use |
| Retail |
| Condition |
| - |
| Available |
| 60 Days |
2nd Floor, Ste 201
| Size |
| 17,500-22,797 SF |
| Term |
| Negotiable |
| Rental Rate |
| Upon Request Upon Request Upon Request Upon Request |
| Space Use |
| Office |
| Condition |
| - |
| Available |
| Now |
3rd Floor, Ste 308
| Size |
| 5,115 SF |
| Term |
| Negotiable |
| Rental Rate |
| Upon Request Upon Request Upon Request Upon Request |
| Space Use |
| Office |
| Condition |
| - |
| Available |
| Now |
5th Floor, Ste 507
| Size |
| 820 SF |
| Term |
| Negotiable |
| Rental Rate |
| Upon Request Upon Request Upon Request Upon Request |
| Space Use |
| Office |
| Condition |
| - |
| Available |
| Now |
9th Floor, Ste 901
| Size |
| 4,321 SF |
| Term |
| Negotiable |
| Rental Rate |
| Upon Request Upon Request Upon Request Upon Request |
| Space Use |
| Office |
| Condition |
| - |
| Available |
| Now |
9th Floor, Ste 903
| Size |
| 7,184 SF |
| Term |
| Negotiable |
| Rental Rate |
| Upon Request Upon Request Upon Request Upon Request |
| Space Use |
| Office |
| Condition |
| Full Build-Out |
| Available |
| Now |
9th Floor, Ste 907
| Size |
| 5,347 SF |
| Term |
| Negotiable |
| Rental Rate |
| Upon Request Upon Request Upon Request Upon Request |
| Space Use |
| Office |
| Condition |
| - |
| Available |
| Now |
10th Floor, Ste 1005
| Size |
| 3,392 SF |
| Term |
| Negotiable |
| Rental Rate |
| Upon Request Upon Request Upon Request Upon Request |
| Space Use |
| Office |
| Condition |
| Partial Build-Out |
| Available |
| Now |
10th Floor, Ste 1007
| Size |
| 1,479 SF |
| Term |
| Negotiable |
| Rental Rate |
| Upon Request Upon Request Upon Request Upon Request |
| Space Use |
| Office |
| Condition |
| - |
| Available |
| Now |
11th Floor, Ste 1102
| Size |
| 1,513 SF |
| Term |
| Negotiable |
| Rental Rate |
| Upon Request Upon Request Upon Request Upon Request |
| Space Use |
| Office |
| Condition |
| - |
| Available |
| Now |
Ground, Ste 102
| Size | 2,300 SF |
| Term | Negotiable |
| Rental Rate | Upon Request |
| Space Use | Retail |
| Condition | - |
| Available | 60 Days |
currently occupied by Broadway Deli 16' ceilings, 20' frontage can deliver on 60 days notice approximately 1,500 sf of basement space
2nd Floor, Ste 201
| Size | 17,500-22,797 SF |
| Term | Negotiable |
| Rental Rate | Upon Request |
| Space Use | Office |
| Condition | - |
| Available | Now |
amazing opportunity built space wet pantry tenant controlled air cooled ac units furnished 14' ceilings amazing columns great bay windows facing Broadway can make the full floor available for a total of 22,797 sf
3rd Floor, Ste 308
| Size | 5,115 SF |
| Term | Negotiable |
| Rental Rate | Upon Request |
| Space Use | Office |
| Condition | - |
| Available | Now |
built space, tenant controlled air cooled ac unit, large wet pantry
5th Floor, Ste 507
| Size | 820 SF |
| Term | Negotiable |
| Rental Rate | Upon Request |
| Space Use | Office |
| Condition | - |
| Available | Now |
great clean open small space
9th Floor, Ste 901
| Size | 4,321 SF |
| Term | Negotiable |
| Rental Rate | Upon Request |
| Space Use | Office |
| Condition | - |
| Available | Now |
Sublet through 7/31/27, possibility for a direct deal Amazing space, directly off the elevators Arched windows, with great western exposure Furnished and ready to go
9th Floor, Ste 903
| Size | 7,184 SF |
| Term | Negotiable |
| Rental Rate | Upon Request |
| Space Use | Office |
| Condition | Full Build-Out |
| Available | Now |
amazing space with arched windows with western exposures directly off the elevators tenant controlled air cooled ac unit large wet pantry furnished
- Fully Built-Out as Standard Office
- Mostly Open Floor Plan Layout
- Space is in Excellent Condition
9th Floor, Ste 907
| Size | 5,347 SF |
| Term | Negotiable |
| Rental Rate | Upon Request |
| Space Use | Office |
| Condition | - |
| Available | Now |
amazing space with great eastern exposure, unique arched windows furnished tenant controlled air cooled ac unit wet pantry 5 meeting rooms large conference room
10th Floor, Ste 1005
| Size | 3,392 SF |
| Term | Negotiable |
| Rental Rate | Upon Request |
| Space Use | Office |
| Condition | Partial Build-Out |
| Available | Now |
exposed brick wall, tenant controlled air cooled ac unit, wet pantry owner will do work
- Partially Built-Out as Standard Office
- Open Floor Plan Layout
- Central Air Conditioning
- Exposed Brick
10th Floor, Ste 1007
| Size | 1,479 SF |
| Term | Negotiable |
| Rental Rate | Upon Request |
| Space Use | Office |
| Condition | - |
| Available | Now |
Clean open space Owner will do work
11th Floor, Ste 1102
| Size | 1,513 SF |
| Term | Negotiable |
| Rental Rate | Upon Request |
| Space Use | Office |
| Condition | - |
| Available | Now |
great small space with Broadway exposure exposed brick wall wet pantry in place can be furnished
PROPERTY OVERVIEW
Welcome to 584-590 Broadway, a twelve-story, first-class office building located in the heart of SoHo. This building features two renovated lobbies with high-speed newly renovated elevators, renovated common areas and restrooms, and the convenience of an on-site owner-management office. 584 Broadway was originally built in 1897 using stone and wood. Tenants at 584 Broadway have access to everything the SoHo neighborhood offers. The neighborhood is rich in amenities, including restaurants, luxury retail stores, and art galleries, all just minutes away. Easy accessibility makes commuting a breeze via the metro’s commuter rail and public transit routes. For further business travel, LaGuardia Airport is about 10 miles away, and Newark Liberty International is approximately 12.5 miles away.
- 24 Hour Access
- Bus Line
- Metro/Subway
- Property Manager on Site
PROPERTY FACTS
Presented by
584-590 Broadway
Hmm, there seems to have been an error sending your message. Please try again.
Thanks! Your message was sent.





























