Your email has been sent.
Belle Haven Professional Center 5845 Richmond Hwy 97,851 SF 56% Leased 4-Star Office Building Alexandria, VA 22303 $13,500,000 ($137.96/SF)



Investment Highlights
- Incredible access to major arteries and Capital Beltway
- Ample Parking
- A 6,500 SF Retail pad site, approved for development at the corner of Fort Hunt Road and Richmond Highway
- Golf Course Views facing Belle Haven CC, Water Views of Potomac River and National Harbor
Executive Summary
Property Facts
Amenities
- Golf Course
- Metro/Subway
- Property Manager on Site
- Air Conditioning
- Smoke Detector
Space Availability
- Space
- Size
- Space Use
- Condition
- Available
Full Floor Opportunity. Prime views of the Potomac River.
Prime views of the Potomac River and medical use is permitted. Ideal Suite for Smaller Medical.
Prime views of the Potomac River and medical use is permitted. 2nd Gen Relet Space with Expansive Window Line.
Prime views of the Potomac River and medical use is permitted. Shell Condition with Elevator Lobby Exposure.
Prime views of the Potomac River and medical use is permitted. 2nd Gen Relet Space with Sweeping Views of BHCC Golf Course & Potomac River.
Prime views of the Potomac River and medical use is permitted.
| Space | Size | Space Use | Condition | Available |
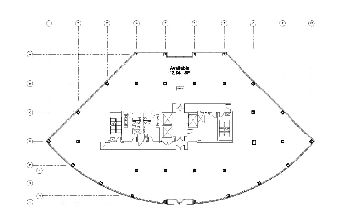
| 3rd Fl-Ste 300 | 5,000-12,841 SF | Office | Full Build-Out | Now |
| 4th Fl-Ste 415 | 2,792 SF | Office/Medical | Full Build-Out | Now |
| 5th Fl-Ste 500 | 7,205 SF | Office | Full Build-Out | Now |
| 5th Fl-Ste 550 | 5,636 SF | Office/Medical | Shell Space | Now |
| 7th Fl-Ste 710 | 4,500 SF | Office | Full Build-Out | Now |
| 8th Fl-Ste 810 | 3,416 SF | Office | Full Build-Out | Now |
3rd Fl-Ste 300
| Size |
| 5,000-12,841 SF |
| Space Use |
| Office |
| Condition |
| Full Build-Out |
| Available |
| Now |
4th Fl-Ste 415
| Size |
| 2,792 SF |
| Space Use |
| Office/Medical |
| Condition |
| Full Build-Out |
| Available |
| Now |
5th Fl-Ste 500
| Size |
| 7,205 SF |
| Space Use |
| Office |
| Condition |
| Full Build-Out |
| Available |
| Now |
5th Fl-Ste 550
| Size |
| 5,636 SF |
| Space Use |
| Office/Medical |
| Condition |
| Shell Space |
| Available |
| Now |
7th Fl-Ste 710
| Size |
| 4,500 SF |
| Space Use |
| Office |
| Condition |
| Full Build-Out |
| Available |
| Now |
8th Fl-Ste 810
| Size |
| 3,416 SF |
| Space Use |
| Office |
| Condition |
| Full Build-Out |
| Available |
| Now |
3rd Fl-Ste 300
| Size | 5,000-12,841 SF |
| Space Use | Office |
| Condition | Full Build-Out |
| Available | Now |
Full Floor Opportunity. Prime views of the Potomac River.
4th Fl-Ste 415
| Size | 2,792 SF |
| Space Use | Office/Medical |
| Condition | Full Build-Out |
| Available | Now |
Prime views of the Potomac River and medical use is permitted. Ideal Suite for Smaller Medical.
5th Fl-Ste 500
| Size | 7,205 SF |
| Space Use | Office |
| Condition | Full Build-Out |
| Available | Now |
Prime views of the Potomac River and medical use is permitted. 2nd Gen Relet Space with Expansive Window Line.
5th Fl-Ste 550
| Size | 5,636 SF |
| Space Use | Office/Medical |
| Condition | Shell Space |
| Available | Now |
Prime views of the Potomac River and medical use is permitted. Shell Condition with Elevator Lobby Exposure.
7th Fl-Ste 710
| Size | 4,500 SF |
| Space Use | Office |
| Condition | Full Build-Out |
| Available | Now |
Prime views of the Potomac River and medical use is permitted. 2nd Gen Relet Space with Sweeping Views of BHCC Golf Course & Potomac River.
8th Fl-Ste 810
| Size | 3,416 SF |
| Space Use | Office |
| Condition | Full Build-Out |
| Available | Now |
Prime views of the Potomac River and medical use is permitted.
Property Taxes
| Parcel Number | 0834-01-0011 | Improvements Assessment | $6,308,660 |
| Land Assessment | $3,333,830 | Total Assessment | $9,642,490 |
Property Taxes
Presented by
Belle Haven Professional Center | 5845 Richmond Hwy
Hmm, there seems to have been an error sending your message. Please try again.
Thanks! Your message was sent.
