Your email has been sent.
5967 Merle Hay Rd 2,400 SF of Office/Medical Space Available in Johnston, IA 50131



SPACE AVAILABILITY (1)
Display Rental Rate as
- SPACE
- SIZE
- TERM
- RENTAL RATE
- RENT TYPE
| Space | Size | Term | Rental Rate | Rent Type | ||
| 1st Floor, Ste 5967 | 2,400 SF | Negotiable | $12.00 /SF/YR $1.00 /SF/MO $28,800 /YR $2,400 /MO | Triple Net (NNN) |
1st Floor, Ste 5967
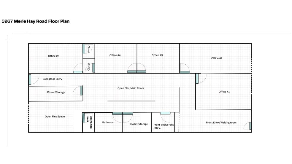
Office space for lease in Johnston, IA - located in a Strategic Growth Area. Office space is situated on Merle Hay Road, a high-traffic road (20,000+ cars daily drive by) offering businesses significant opportunity for high-visibility and long-term growth. Space Details: This space is partially built out - walls, drywall, trim, doors, lighting, etc. are complete. Currently has cement flooring throughout and exposed ceiling in parts of the unit - great opportunity for the new tenant to make the space their own! IDEAL FOR: -Smaller medical offices: Chiropractors, Physical Therapists, Physicians, Optometrists, Podiatrists, or other healthcare providers. -Professional offices: Legal firms, Financial Advisors, Real Estate Agencies, Consulting Firms, Construction Companies, and other professional services seeking a prestigious and accessible location. NEIGHBORING BUSINESSES: Hy-Vee, Trostel's Greenbriar, El Mariachi, Johnston Town Center, Wells Fargo, and more!
- Lease rate does not include utilities, property expenses or building services
- Fits 6 - 20 People
- 5 Private Offices
- 1 Conference Room
- 1 Workstation
Rent Types
The rent amount and type that the tenant (lessee) will be responsible to pay to the landlord (lessor) throughout the lease term is negotiated prior to both parties signing a lease agreement. The rent type will vary depending upon the services provided. For example, triple net rents are typically lower than full service rents due to additional expenses the tenant is required to pay in addition to the base rent. Contact the listing broker for a full understanding of any associated costs or additional expenses for each rent type.
1. Full Service: A rental rate that includes normal building standard services as provided by the landlord within a base year rental.
2. Double Net (NN): Tenant pays for only two of the building expenses; the landlord and tenant determine the specific expenses prior to signing the lease agreement.
3. Triple Net (NNN): A lease in which the tenant is responsible for all expenses associated with their proportional share of occupancy of the building.
4. Modified Gross: Modified Gross is a general type of lease rate where typically the tenant will be responsible for their proportional share of one or more of the expenses. The landlord will pay the remaining expenses. See the below list of common Modified Gross rental rate structures: 4. Plus All Utilities: A type of Modified Gross Lease where the tenant is responsible for their proportional share of utilities in addition to the rent. 4. Plus Cleaning: A type of Modified Gross Lease where the tenant is responsible for their proportional share of cleaning in addition to the rent. 4. Plus Electric: A type of Modified Gross Lease where the tenant is responsible for their proportional share of the electrical cost in addition to the rent. 4. Plus Electric & Cleaning: A type of Modified Gross Lease where the tenant is responsible for their proportional share of the electrical and cleaning cost in addition to the rent. 4. Plus Utilities and Char: A type of Modified Gross Lease where the tenant is responsible for their proportional share of the utilities and cleaning cost in addition to the rent. 4. Industrial Gross: A type of Modified Gross lease where the tenant pays one or more of the expenses in addition to the rent. The landlord and tenant determine these prior to signing the lease agreement.
5. Tenant Electric: The landlord pays for all services and the tenant is responsible for their usage of lights and electrical outlets in the space they occupy.
6. Negotiable or Upon Request: Used when the leasing contact does not provide the rent or service type.
7. TBD: To be determined; used for buildings for which no rent or service type is known, commonly utilized when the buildings are not yet built.
SITE PLAN
PROPERTY FACTS
| Total Space Available | 2,400 SF | Gross Leasable Area | 8,040 SF |
| Property Type | Retail | Year Built/Renovated | 1975/2001 |
| Property Subtype | Storefront Retail/Office | Parking Ratio | 6.72/1,000 SF |
| Total Space Available | 2,400 SF |
| Property Type | Retail |
| Property Subtype | Storefront Retail/Office |
| Gross Leasable Area | 8,040 SF |
| Year Built/Renovated | 1975/2001 |
| Parking Ratio | 6.72/1,000 SF |
NEARBY MAJOR RETAILERS
Presented by
EDF Management
5967 Merle Hay Rd
Hmm, there seems to have been an error sending your message. Please try again.
Thanks! Your message was sent.



