Your email has been sent.
Highlights
- This boutique office building has been luxuriously updated throughout, featuring a well-appointed modern entrance, common areas, and a lush courtyard.
- Located at the convergence of Long Ridge Rd, Cold Spring Rd, and High Ridge Rd, this building boasts excellent visibility and easy commuter access.
- Property management and concierge services on-site provide exceptional tenant assistance.
- The area boasts strong demographics with 134,870 residents and an average household income of $135,394 within a three-mile radius.
All Available Spaces(5)
Display Rental Rate as
- Space
- Size
- Term
- Rental Rate
- Space Use
- Condition
- Available
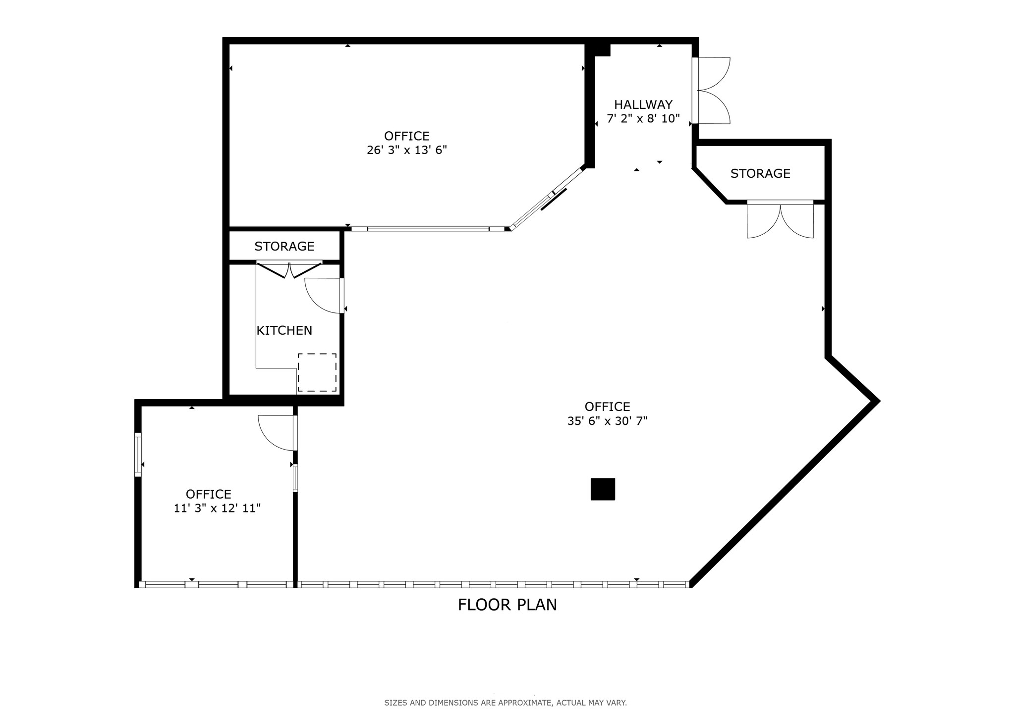
Two (2) private offices, two(2) open work areas and one(1) oversized storage room. To be freshly painted, carpeted and move-in ready!
- Fully Built-Out as Standard Office
- Fits 3 - 9 People
- 1 Workstation
- Secure Storage
- Mostly Open Floor Plan Layout
- 2 Private Offices
- Space is in Excellent Condition
- Newly renovated office spar
Single purpose office with wall of windows and tons of natural light. Suite offers direct access to common area hallway. Great alternative to a home office!
- Fully Built-Out as Standard Office
- 1 Private Office
- Natural Light
- Fits 1 - 3 People
- Space is in Excellent Condition
- Fits 6 - 18 People
- Fits 6 - 17 People
- Space is in Excellent Condition
This move-in ready, high-end office suite combines an excellent mixture of private offices and open workspace with an abundance of natural light.
- Listed lease rate plus proportional share of electrical cost
- Mostly Open Floor Plan Layout
- 1 Private Office
- Large windows provide natural light throughout.
- Fully Built-Out as Standard Office
- Fits 8 - 23 People
- Space is in Excellent Condition
- Flexible configurations provide tenant flexibility
| Space | Size | Term | Rental Rate | Space Use | Condition | Available |
| 2nd Floor, Ste 212 | 1,010 SF | Negotiable | Upon Request Upon Request Upon Request Upon Request | Office | Full Build-Out | Now |
| 2nd Floor, Ste 216 | 280 SF | Negotiable | Upon Request Upon Request Upon Request Upon Request | Office | Full Build-Out | Now |
| 3rd Floor, Ste 308 | 2,167 SF | 3-5 Years | Upon Request Upon Request Upon Request Upon Request | Office | - | Now |
| 4th Floor, Ste 403 | 2,110 SF | 3-5 Years | Upon Request Upon Request Upon Request Upon Request | Office | - | Now |
| 4th Floor, Ste 407 | 2,816 SF | 5-10 Years | $30.00 /SF/YR $2.50 /SF/MO $84,480 /YR $7,040 /MO | Office | Full Build-Out | Now |
2nd Floor, Ste 212
| Size |
| 1,010 SF |
| Term |
| Negotiable |
| Rental Rate |
| Upon Request Upon Request Upon Request Upon Request |
| Space Use |
| Office |
| Condition |
| Full Build-Out |
| Available |
| Now |
2nd Floor, Ste 216
| Size |
| 280 SF |
| Term |
| Negotiable |
| Rental Rate |
| Upon Request Upon Request Upon Request Upon Request |
| Space Use |
| Office |
| Condition |
| Full Build-Out |
| Available |
| Now |
3rd Floor, Ste 308
| Size |
| 2,167 SF |
| Term |
| 3-5 Years |
| Rental Rate |
| Upon Request Upon Request Upon Request Upon Request |
| Space Use |
| Office |
| Condition |
| - |
| Available |
| Now |
4th Floor, Ste 403
| Size |
| 2,110 SF |
| Term |
| 3-5 Years |
| Rental Rate |
| Upon Request Upon Request Upon Request Upon Request |
| Space Use |
| Office |
| Condition |
| - |
| Available |
| Now |
4th Floor, Ste 407
| Size |
| 2,816 SF |
| Term |
| 5-10 Years |
| Rental Rate |
| $30.00 /SF/YR $2.50 /SF/MO $84,480 /YR $7,040 /MO |
| Space Use |
| Office |
| Condition |
| Full Build-Out |
| Available |
| Now |
2nd Floor, Ste 212
| Size | 1,010 SF |
| Term | Negotiable |
| Rental Rate | Upon Request |
| Space Use | Office |
| Condition | Full Build-Out |
| Available | Now |
Two (2) private offices, two(2) open work areas and one(1) oversized storage room. To be freshly painted, carpeted and move-in ready!
- Fully Built-Out as Standard Office
- Mostly Open Floor Plan Layout
- Fits 3 - 9 People
- 2 Private Offices
- 1 Workstation
- Space is in Excellent Condition
- Secure Storage
- Newly renovated office spar
2nd Floor, Ste 216
| Size | 280 SF |
| Term | Negotiable |
| Rental Rate | Upon Request |
| Space Use | Office |
| Condition | Full Build-Out |
| Available | Now |
Single purpose office with wall of windows and tons of natural light. Suite offers direct access to common area hallway. Great alternative to a home office!
- Fully Built-Out as Standard Office
- Fits 1 - 3 People
- 1 Private Office
- Space is in Excellent Condition
- Natural Light
3rd Floor, Ste 308
| Size | 2,167 SF |
| Term | 3-5 Years |
| Rental Rate | Upon Request |
| Space Use | Office |
| Condition | - |
| Available | Now |
- Fits 6 - 18 People
4th Floor, Ste 403
| Size | 2,110 SF |
| Term | 3-5 Years |
| Rental Rate | Upon Request |
| Space Use | Office |
| Condition | - |
| Available | Now |
- Fits 6 - 17 People
- Space is in Excellent Condition
4th Floor, Ste 407
| Size | 2,816 SF |
| Term | 5-10 Years |
| Rental Rate | $30.00 /SF/YR |
| Space Use | Office |
| Condition | Full Build-Out |
| Available | Now |
This move-in ready, high-end office suite combines an excellent mixture of private offices and open workspace with an abundance of natural light.
- Listed lease rate plus proportional share of electrical cost
- Fully Built-Out as Standard Office
- Mostly Open Floor Plan Layout
- Fits 8 - 23 People
- 1 Private Office
- Space is in Excellent Condition
- Large windows provide natural light throughout.
- Flexible configurations provide tenant flexibility
Property Overview
60 Long Ridge Road is an impressive, newly renovated boutique office building offering a full range of tenant amenities and architecturally designed suites. 60 Long Ridge Road presents tenants with a striking modern lobby, full-time concierge, a lushly landscaped patio entrance, on-site covered parking, full-time building superintendent, and an on-site café and catering available for clients and guests. The wooded and open views pair well with the flexible floor plans throughout the building, equipped with unique open layouts with a high percentage of perimeter offices and an abundance of natural light. Conveniently located nearby an array of restaurants, shopping, banking, and transportation, and just 10 minutes to downtown, 60 Long Ridge Road makes for the perfect location for businesses looking to flourish in the Stamford office market.
- 24 Hour Access
- Concierge
- Courtyard
- Property Manager on Site
- Natural Light
- Outdoor Seating
Property Facts
Presented by
60 Long Ridge Rd
Hmm, there seems to have been an error sending your message. Please try again.
Thanks! Your message was sent.

















