Log In/Sign Up
Enter your email to login or create a free account
This feature is unavailable at the moment.
We apologize, but the feature you are trying to access is currently unavailable. We are aware of this issue and our team is working hard to resolve the matter.
Please check back in a few minutes. We apologize for the inconvenience.
- LoopNet Team
This Property is no longer advertised on LoopNet.com.
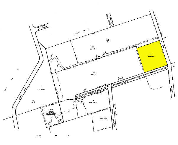
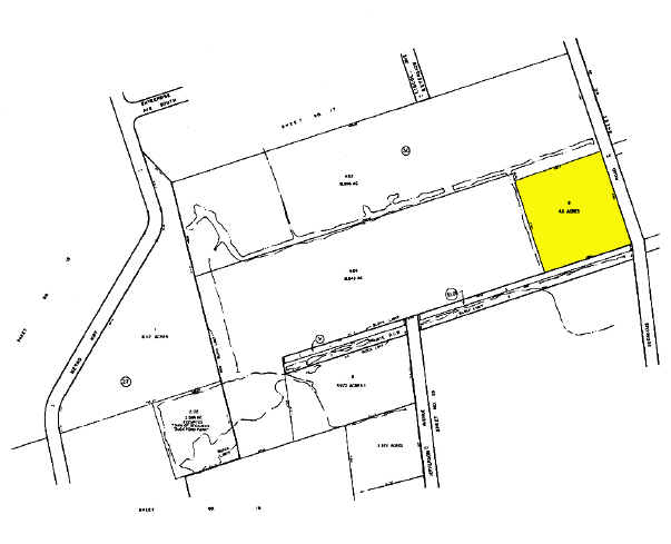
600 Secaucus Rd
Secaucus, NJ 07094
Property For Lease

Highlights
- 79,980 SF total building size situated on 4 acres with a total of 153 vehicle parking spaces
- No percentage lease on retail component
Property Overview
This is prime space located off Route 3 and the New Jersey Turnpike in the Harmon Cove Industrial Park. The building is within minutes of Manhattan and Newark International Airport. The Garden State Parkway, Routes 17, 46, 1 & 9, and arteries to I-80, I-95 & I-280 are easily accessible.
Property Facts
| Property Type | Industrial | Rentable Building Area | 80,000 SF |
| Property Subtype | Warehouse | Year Built | 1971 |
| Property Type | Industrial |
| Property Subtype | Warehouse |
| Rentable Building Area | 80,000 SF |
| Year Built | 1971 |
Features and Amenities
- Fenced Lot
Utilities
- Lighting - Fluorescent
- Gas - Natural
- Water - City
- Sewer - City
- Heating - Gas
Listing ID: 20395768
Date on Market: 7/24/2020
Last Updated:
Address: 600 Secaucus Rd, Secaucus, NJ 07094
The Industrial Property at 600 Secaucus Rd, Secaucus, NJ 07094 is no longer being advertised on LoopNet.com. Contact the broker for information on availability.
INDUSTRIAL PROPERTIES IN NEARBY NEIGHBORHOODS
- Williamsburg Commercial Real Estate Properties
- Chelsea Commercial Real Estate Properties
- Lower West Side Commercial Real Estate Properties
- Midtown East Commercial Real Estate Properties
- Prospect Park Commercial Real Estate Properties
- Midtown South Commercial Real Estate Properties
- Bushwick Commercial Real Estate Properties
- South Bronx Commercial Real Estate Properties
- Greater Newark Commercial Real Estate Properties
- Northwestern Queens Commercial Real Estate Properties
- Downtown Brooklyn Commercial Real Estate Properties
- Midtown West Commercial Real Estate Properties
- Upper East Side Commercial Real Estate Properties
- Financial District Commercial Real Estate Properties
- Harlem Commercial Real Estate Properties
NEARBY LISTINGS
- 27 W 20th St, New York NY
- 420 Fifth Ave, New York NY
- 3 Columbus Cir, New York NY
- 521 W 57th St, New York NY
- 125 Park Ave, New York NY
- 120 Park Ave, New York NY
- 270 Madison Ave, New York NY
- 6 E 32nd St, New York NY
- One Soho Sq, New York NY
- One Soho Sq, New York NY
- 205 Hudson St, New York NY
- 1995 Broadway, New York NY
- 500 Supor Blvd, Harrison NJ
- 500 Supor Blvd, Harrison NJ
- 400 Commerce Blvd, Carlstadt NJ
1 of 1
Videos
Matterport 3D Exterior
Matterport 3D Tour
Photos
Street View
Street
Map

Link copied
Your LoopNet account has been created!
Thank you for your feedback.
Please Share Your Feedback
We welcome any feedback on how we can improve LoopNet to better serve your needs.X
{{ getErrorText(feedbackForm.starRating, "rating") }}
255 character limit ({{ remainingChars() }} charactercharacters remainingover)
{{ getErrorText(feedbackForm.msg, "rating") }}
{{ getErrorText(feedbackForm.fname, "first name") }}
{{ getErrorText(feedbackForm.lname, "last name") }}
{{ getErrorText(feedbackForm.phone, "phone number") }}
{{ getErrorText(feedbackForm.phonex, "phone extension") }}
{{ getErrorText(feedbackForm.email, "email address") }}
You can provide feedback any time using the Help button at the top of the page.