Log In/Sign Up
Your email has been sent.
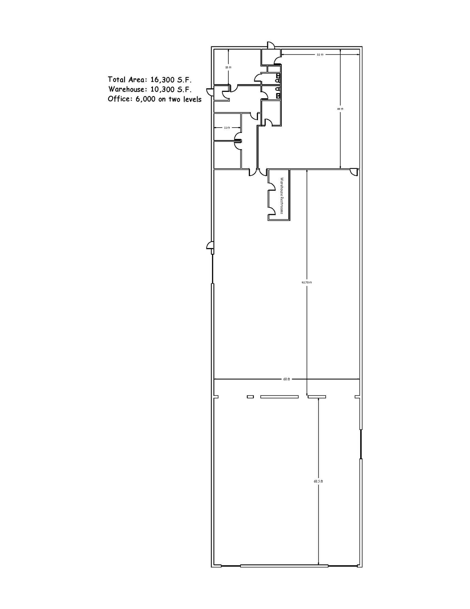
6005 E Executive Dr 16,300 SF 100% Leased Industrial Building Westland, MI 48185 $1,800,000 ($110.43/SF)


Investment Highlights
- Positioned within a high-demand industrial corridor near major regional routes.
- Offers multiple loading positions that enhance daily logistics efficiency.
- Located near an established commercial and labor base that supports industrial users.
- Features robust electrical capacity suitable for heavy-duty operations.
- Maintained layout that reduces capital expenditure for new ownership.
Executive Summary
Positioned within one of Westland’s most established industrial corridors, 6005 E Executive Dr offers an exceptional opportunity for an owner-user or investor seeking a well-maintained, functionally designed asset in a high-demand logistics ecosystem. The property is set just off Ford Road and Newburgh Road, placing it within immediate reach of key regional thoroughfares that connect Westland to metro Detroit’s expansive labor force and commercial infrastructure. This location strengthens the property’s long-term utility, making it attractive for businesses engaged in manufacturing, assembly, distribution, or specialized industrial operations.
The building presents a clean, efficient layout enhanced by significant power capacity, suitable for companies requiring robust electrical infrastructure to support production equipment or heavy-duty processes. Multiple grade-level access points and a dedicated truck well streamline inbound and outbound traffic, giving the property logistical advantages not always found in comparable mid-sized industrial offerings. Its overall condition and balanced configuration reduce the need for upfront capital improvements, allowing an owner-occupant to focus on immediate operational deployment or enabling an investor to reposition the property quickly for tenancy.
Located within a mature industrial pocket, the surrounding area hosts a diverse mix of regional and national operators that benefit from the city’s central location within Wayne County and its proximity to transportation corridors, retail conveniences, and service amenities. Westland continues to draw industrial users due to its accessibility, competitive cost structure, and connectivity to the broader Detroit metropolitan market, further supporting the asset’s value and marketability.
With a strategic position in a strong logistics region and a combination of functional features that meet the demands of modern industrial users, 6005 E Executive Dr represents a compelling acquisition for buyers seeking stability, adaptability, and long-term operational potential.
The building presents a clean, efficient layout enhanced by significant power capacity, suitable for companies requiring robust electrical infrastructure to support production equipment or heavy-duty processes. Multiple grade-level access points and a dedicated truck well streamline inbound and outbound traffic, giving the property logistical advantages not always found in comparable mid-sized industrial offerings. Its overall condition and balanced configuration reduce the need for upfront capital improvements, allowing an owner-occupant to focus on immediate operational deployment or enabling an investor to reposition the property quickly for tenancy.
Located within a mature industrial pocket, the surrounding area hosts a diverse mix of regional and national operators that benefit from the city’s central location within Wayne County and its proximity to transportation corridors, retail conveniences, and service amenities. Westland continues to draw industrial users due to its accessibility, competitive cost structure, and connectivity to the broader Detroit metropolitan market, further supporting the asset’s value and marketability.
With a strategic position in a strong logistics region and a combination of functional features that meet the demands of modern industrial users, 6005 E Executive Dr represents a compelling acquisition for buyers seeking stability, adaptability, and long-term operational potential.
Property Facts
| Price | $1,800,000 | Rentable Building Area | 16,300 SF |
| Price Per SF | $110.43 | No. Stories | 2 |
| Sale Type | Investment or Owner User | Year Built | 1986 |
| Sale Condition | High Vacancy Property | Parking Ratio | 2.45/1,000 SF |
| Property Type | Industrial | Clear Ceiling Height | 18’ |
| Property Subtype | Warehouse | No. Dock-High Doors/Loading | 1 |
| Building Class | C | No. Drive In / Grade-Level Doors | 3 |
| Lot Size | 1.02 AC | ||
| Zoning | LI - Light Industrial | ||
| Price | $1,800,000 |
| Price Per SF | $110.43 |
| Sale Type | Investment or Owner User |
| Sale Condition | High Vacancy Property |
| Property Type | Industrial |
| Property Subtype | Warehouse |
| Building Class | C |
| Lot Size | 1.02 AC |
| Rentable Building Area | 16,300 SF |
| No. Stories | 2 |
| Year Built | 1986 |
| Parking Ratio | 2.45/1,000 SF |
| Clear Ceiling Height | 18’ |
| No. Dock-High Doors/Loading | 1 |
| No. Drive In / Grade-Level Doors | 3 |
| Zoning | LI - Light Industrial |
Amenities
- Fenced Lot
- Storage Space
- Fluorescent Lighting
- Air Conditioning
Utilities
- Lighting - Fluorescent
Space Availability
- Space
- Size
- Space Use
- Build-Out
- Available
Beautiful 16,300 SF Industrial Building for lease. 1 Truck well 3 Overhead doors 18' clear
| Space | Size | Space Use | Build-Out | Available |
| 1st Floor | 13,300 SF | Industrial | Full Build-Out | 60 Days |
1st Floor
| Size |
| 13,300 SF |
| Space Use |
| Industrial |
| Build-Out |
| Full Build-Out |
| Available |
| 60 Days |
1 of 1
Videos
Matterport 3D Exterior
Matterport 3D Tour
Photos
Street View
Street
Map
1st Floor
| Size | 13,300 SF |
| Space Use | Industrial |
| Build-Out | Full Build-Out |
| Available | 60 Days |
Beautiful 16,300 SF Industrial Building for lease. 1 Truck well 3 Overhead doors 18' clear
1 1
Fairly walkable
40/100
Exceptionally drivable
100/100
Minimal public transit
10/100
Fairly bikeable
40/100
Property Taxes
| Parcel Number | 56-028-04-0045-000 | Improvements Assessment | $0 |
| Land Assessment | $0 | Total Assessment | $419,100 |
Property Taxes
Parcel Number
56-028-04-0045-000
Land Assessment
$0
Improvements Assessment
$0
Total Assessment
$419,100
1 of 3
Videos
Matterport 3D Exterior
Matterport 3D Tour
Photos
Street View
Street
Map
1 of 1
Presented by
6005 E Executive Dr
Already a member? Log In
Hmm, there seems to have been an error sending your message. Please try again.
Thanks! Your message was sent.


