Your email has been sent.
Broadway Plaza 601 W Broadway 2,290 - 15,069 SF of Office Space Available in Vancouver, BC V5Z 4C2



Sublease Highlights
- Prominent corner location in Vancouver’s Broadway Corridor
- 24/7 security and professional on-site management
- Ideal for medical, wellness, or client-facing office users
- Direct access to Cambie Bridge and downtown core
- Expansive patio with mountain views on main level
All Available Spaces(4)
Display Rental Rate as
- Space
- Size
- Term
- Rental Rate
- Space Use
- Build-Out
- Available
A unique opportunity to lease ground floor and main level office premises with prominent signage. The space is currently configured and zoned for an assembly use school, spread across four different units ranging from 2,290 s.f. to 15,069 s.f. for the entire space. The main floor level boasts spectacular views of the North Shore mountains and features a large patio of 5,498 s.f. While the use is ideal for a postsecondary school, it could also be the perfect fit for client facing office users, including medical, fitness, and wellness tenants.
- Sublease space available from current tenant
- Mostly Open Floor Plan Layout
- Signage opportunities available.
- Lease rate does not include utilities, property expenses or building services
- Fits 6 - 19 People
A unique opportunity to lease ground floor and main level office premises with prominent signage. The space is currently configured and zoned for an assembly use school, spread across four different units ranging from 2,290 s.f. to 15,069 s.f. for the entire space. The main floor level boasts spectacular views of the North Shore mountains and features a large patio of 5,498 s.f. While the use is ideal for a postsecondary school, it could also be the perfect fit for client facing office users, including medical, fitness, and wellness tenants
- Sublease space available from current tenant
- Mostly Open Floor Plan Layout
- Signage opportunities available.
- Lease rate does not include utilities, property expenses or building services
- Fits 7 - 21 People
A unique opportunity to lease ground floor and main level office premises with prominent signage. The space is currently configured and zoned for an assembly use school, spread across four different units ranging from 2,290 s.f. to 15,069 s.f. for the entire space. The main floor level boasts spectacular views of the North Shore mountains and features a large patio of 5,498 s.f. While the use is ideal for a postsecondary school, it could also be the perfect fit for client facing office users, including medical, fitness, and wellness tenants.
- Sublease space available from current tenant
- Mostly Open Floor Plan Layout
- Signage opportunities available.
- Lease rate does not include utilities, property expenses or building services
- Fits 12 - 38 People
A unique opportunity to lease ground floor and main level office premises with prominent signage. The space is currently configured and zoned for an assembly use school, spread across four different units ranging from 2,290 s.f. to 15,069 s.f. for the entire space. The main floor level boasts spectacular views of the North Shore mountains and features a large patio of 5,498 s.f. While the use is ideal for a postsecondary school, it could also be the perfect fit for client facing office users, including medical, fitness, and wellness tenants
- Sublease space available from current tenant
- Mostly Open Floor Plan Layout
- Signage opportunities available.
- Lease rate does not include utilities, property expenses or building services
- Fits 14 - 44 People
| Space | Size | Term | Rental Rate | Space Use | Build-Out | Available |
| Lower Level | 2,290 SF | Dec 2029 | Upon Request Upon Request Upon Request Upon Request | Office | Spec Suite | 30 Days |
| Lower Level | 2,595 SF | Dec 2029 | Upon Request Upon Request Upon Request Upon Request | Office | Spec Suite | 30 Days |
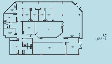
| Lower Level | 4,686 SF | Dec 2029 | Upon Request Upon Request Upon Request Upon Request | Office | - | 30 Days |
| 1st Floor | 5,498 SF | Dec 2029 | Upon Request Upon Request Upon Request Upon Request | Office | Spec Suite | 30 Days |
Lower Level
| Size |
| 2,290 SF |
| Term |
| Dec 2029 |
| Rental Rate |
| Upon Request Upon Request Upon Request Upon Request |
| Space Use |
| Office |
| Build-Out |
| Spec Suite |
| Available |
| 30 Days |
Lower Level
| Size |
| 2,595 SF |
| Term |
| Dec 2029 |
| Rental Rate |
| Upon Request Upon Request Upon Request Upon Request |
| Space Use |
| Office |
| Build-Out |
| Spec Suite |
| Available |
| 30 Days |
Lower Level
| Size |
| 4,686 SF |
| Term |
| Dec 2029 |
| Rental Rate |
| Upon Request Upon Request Upon Request Upon Request |
| Space Use |
| Office |
| Build-Out |
| - |
| Available |
| 30 Days |
1st Floor
| Size |
| 5,498 SF |
| Term |
| Dec 2029 |
| Rental Rate |
| Upon Request Upon Request Upon Request Upon Request |
| Space Use |
| Office |
| Build-Out |
| Spec Suite |
| Available |
| 30 Days |
Lower Level
| Size | 2,290 SF |
| Term | Dec 2029 |
| Rental Rate | Upon Request |
| Space Use | Office |
| Build-Out | Spec Suite |
| Available | 30 Days |
A unique opportunity to lease ground floor and main level office premises with prominent signage. The space is currently configured and zoned for an assembly use school, spread across four different units ranging from 2,290 s.f. to 15,069 s.f. for the entire space. The main floor level boasts spectacular views of the North Shore mountains and features a large patio of 5,498 s.f. While the use is ideal for a postsecondary school, it could also be the perfect fit for client facing office users, including medical, fitness, and wellness tenants.
- Sublease space available from current tenant
- Lease rate does not include utilities, property expenses or building services
- Mostly Open Floor Plan Layout
- Fits 6 - 19 People
- Signage opportunities available.
Lower Level
| Size | 2,595 SF |
| Term | Dec 2029 |
| Rental Rate | Upon Request |
| Space Use | Office |
| Build-Out | Spec Suite |
| Available | 30 Days |
A unique opportunity to lease ground floor and main level office premises with prominent signage. The space is currently configured and zoned for an assembly use school, spread across four different units ranging from 2,290 s.f. to 15,069 s.f. for the entire space. The main floor level boasts spectacular views of the North Shore mountains and features a large patio of 5,498 s.f. While the use is ideal for a postsecondary school, it could also be the perfect fit for client facing office users, including medical, fitness, and wellness tenants
- Sublease space available from current tenant
- Lease rate does not include utilities, property expenses or building services
- Mostly Open Floor Plan Layout
- Fits 7 - 21 People
- Signage opportunities available.
Lower Level
| Size | 4,686 SF |
| Term | Dec 2029 |
| Rental Rate | Upon Request |
| Space Use | Office |
| Build-Out | - |
| Available | 30 Days |
A unique opportunity to lease ground floor and main level office premises with prominent signage. The space is currently configured and zoned for an assembly use school, spread across four different units ranging from 2,290 s.f. to 15,069 s.f. for the entire space. The main floor level boasts spectacular views of the North Shore mountains and features a large patio of 5,498 s.f. While the use is ideal for a postsecondary school, it could also be the perfect fit for client facing office users, including medical, fitness, and wellness tenants.
- Sublease space available from current tenant
- Lease rate does not include utilities, property expenses or building services
- Mostly Open Floor Plan Layout
- Fits 12 - 38 People
- Signage opportunities available.
1st Floor
| Size | 5,498 SF |
| Term | Dec 2029 |
| Rental Rate | Upon Request |
| Space Use | Office |
| Build-Out | Spec Suite |
| Available | 30 Days |
A unique opportunity to lease ground floor and main level office premises with prominent signage. The space is currently configured and zoned for an assembly use school, spread across four different units ranging from 2,290 s.f. to 15,069 s.f. for the entire space. The main floor level boasts spectacular views of the North Shore mountains and features a large patio of 5,498 s.f. While the use is ideal for a postsecondary school, it could also be the perfect fit for client facing office users, including medical, fitness, and wellness tenants
- Sublease space available from current tenant
- Lease rate does not include utilities, property expenses or building services
- Mostly Open Floor Plan Layout
- Fits 14 - 44 People
- Signage opportunities available.
Property Overview
Strategically positioned at the prestigious northwest corner of Broadway Avenue and Ash Street, this exceptional tower stands as one of the most distinguished landmark buildings in Vancouver’s dynamic Broadway Corridor. With professional on-site property management and discreet 24-hour security personnel, tenants enjoy peace of mind alongside convenient hourly parking and state-of-the-art bicycle storage with modern shower and locker facilities. The building’s prime location offers direct downtown access via Cambie Bridge and places you steps from premier banking, retail, and dining destinations, while excellent transit connections provide seamless city-wide access. From the upper floors, spectacular panoramic views complement the modern, efficient office spaces, creating an unparalleled work environment where business excellence meets urban convenience in the heart of one of Vancouver’s most sought-after commercial corridors.
- Atrium
- Bus Line
- Metro/Subway
- Property Manager on Site
- Restaurant
- Security System
- Wheelchair Accessible
- Basement
- Monument Signage
- Air Conditioning
- Balcony
- Smoke Detector
Property Facts
Select Tenants
- Floor
- Tenant Name
- Industry
- 5th
- 604 Real Estate Services, Inc
- Real Estate
- 1st
- Dr. Georgia Ballem Family Practice
- Health Care and Social Assistance
- 5th
- HALCO Software Systems Ltd.
- Professional, Scientific, and Technical Services
- 2nd
- Hirji, Lum & Orr, CPA
- Professional, Scientific, and Technical Services
- 1st
- Kamei on Broadway
- Accommodation and Food Services
- Multiple
- Kamei Royale Japanese Restaurant
- Accommodation and Food Services
- 5th
- Kelvin Physiotherapy Clinic
- Health Care and Social Assistance
- 4th
- OfficeSuites
- Real Estate
- 1st
- Tractor
- Accommodation and Food Services
- Multiple
- Vancouver Coastal Health
- Health Care and Social Assistance
Presented by
Broadway Plaza | 601 W Broadway
Hmm, there seems to have been an error sending your message. Please try again.
Thanks! Your message was sent.








