Log In/Sign Up
Your email has been sent.
6140 Champlin Dr 9,789 SF Industrial Building Fountain, CO 80817 $1,750,000 ($178.77/SF) 7.06% Cap Rate



EXECUTIVE SUMMARY
This is an exceptionally clean 10,000 SF (100’ x 100’) industrial building on 1.42 acres for sale with a national credit tenant in place.
Price: $1,750,000
NOI: $123,600
PSF: $175
CAP: 7.0%
The building is located in the Champlin Industrial Park on I-25 South at the Fountain, Colorado exit, which is proximate to the new Amazon distribution center and the substantial (new) Fort Carson construction with access to Fort Carson and Peterson AFB.
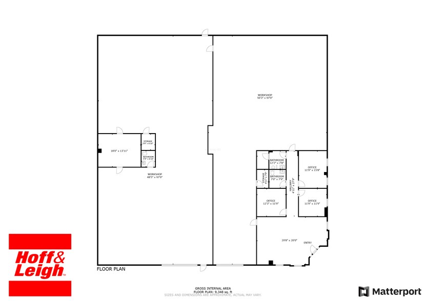
The building is zoned for most commercial uses including manufacturing. The current floor plan includes approximately 1,500 SF of office including a large reception/work area, 3 offices, 2 handicap access restrooms and approximately 8,500 SF of shop area. There is one 14’ overhead door, a drive-in door, a fenced yard and 480V, 3phs electric with several sub-panels in the shop.
The building is approved for a 10,000 SF expansion. The annual property taxes are approximately $9,474.
For a private showing and all the confidential financial details, call Tim Leigh 719-337-9551 or Holly Trinidad 719-337-0999.
Price: $1,750,000
NOI: $123,600
PSF: $175
CAP: 7.0%
The building is located in the Champlin Industrial Park on I-25 South at the Fountain, Colorado exit, which is proximate to the new Amazon distribution center and the substantial (new) Fort Carson construction with access to Fort Carson and Peterson AFB.
The building is zoned for most commercial uses including manufacturing. The current floor plan includes approximately 1,500 SF of office including a large reception/work area, 3 offices, 2 handicap access restrooms and approximately 8,500 SF of shop area. There is one 14’ overhead door, a drive-in door, a fenced yard and 480V, 3phs electric with several sub-panels in the shop.
The building is approved for a 10,000 SF expansion. The annual property taxes are approximately $9,474.
For a private showing and all the confidential financial details, call Tim Leigh 719-337-9551 or Holly Trinidad 719-337-0999.
PROPERTY FACTS
| Price | $1,750,000 | Rentable Building Area | 9,789 SF |
| Price Per SF | $178.77 | No. Stories | 1 |
| Sale Type | Investment NNN | Year Built | 2001 |
| Cap Rate | 7.06% | Tenancy | Single |
| Property Type | Industrial | Parking Ratio | 1.33/1,000 SF |
| Property Subtype | Warehouse | Clear Ceiling Height | 14’ |
| Building Class | C | No. Drive In / Grade-Level Doors | 2 |
| Lot Size | 1.42 AC | ||
| Zoning | Commercial - Commercial including Manufacturing | ||
| Price | $1,750,000 |
| Price Per SF | $178.77 |
| Sale Type | Investment NNN |
| Cap Rate | 7.06% |
| Property Type | Industrial |
| Property Subtype | Warehouse |
| Building Class | C |
| Lot Size | 1.42 AC |
| Rentable Building Area | 9,789 SF |
| No. Stories | 1 |
| Year Built | 2001 |
| Tenancy | Single |
| Parking Ratio | 1.33/1,000 SF |
| Clear Ceiling Height | 14’ |
| No. Drive In / Grade-Level Doors | 2 |
| Zoning | Commercial - Commercial including Manufacturing |
AMENITIES
- Fenced Lot
1 1
PROPERTY TAXES
| Parcel Number | 56072-04-009 | Improvements Assessment | $0 |
| Land Assessment | $0 | Total Assessment | $370,660 |
PROPERTY TAXES
Parcel Number
56072-04-009
Land Assessment
$0
Improvements Assessment
$0
Total Assessment
$370,660
1 of 9
VIDEOS
MATTERPORT 3D EXTERIOR
MATTERPORT 3D TOUR
PHOTOS
STREET VIEW
STREET
MAP
1 of 1
Presented by
6140 Champlin Dr
Already a member? Log In
Hmm, there seems to have been an error sending your message. Please try again.
Thanks! Your message was sent.
