Your email has been sent.
Grand Central Plaza 622 Third Ave 2,435 - 291,294 SF of 4-Star Space Available in New York, NY 10017



Display Rental Rate as
- Space
- Size
- Term
- Rental Rate
- Space Use
- Build-Out
- Available
15'6" slab to slab ceiling heights Above standard buildout consisting of open plan and conference rooms
- Fully Built-Out as Professional Services Office
- Finished Ceilings: 9’3”
- Can be combined with additional space(s) for up to 39,655 SF of adjacent space
- Open Buildout!
- Mostly Open Floor Plan Layout
- Space is in Excellent Condition
- Central Air Conditioning
11'6" ceiling heights
- Mostly Open Floor Plan Layout
- Space is in Excellent Condition
- Finished Ceilings: 11’6”
- Can be combined with additional space(s) for up to 39,655 SF of adjacent space
Built with 6 windowed offices, 4 windowed conference rooms, 1 interior conference room, wet pantry, and open area.
- Listed rate may not include certain utilities, building services and property expenses
- 6 Private Offices
- Space is in Excellent Condition
- Fully Built-Out as Standard Office
- 5 Conference Rooms
- Fully built space
Space is currently built and furnished with 3 offices, 1 conference room, wet pantry and open area for 30+.
Existing installation features 3 offices, 1 conference room, wet pantry, and small open area.
- Fully Built-Out as Standard Office
- 3 Private Offices
- Space is in Excellent Condition
- Shell Space Opportunity!
- Open Floor Plan Layout
- 1 Conference Room
- Central Air Conditioning
Features Exposed ceilings and executive restroom with shower.
- Fully Built-Out as Standard Office
- Central Air Conditioning
- Mostly Open Floor Plan Layout
- Office intensive installation.
Raw space, landlord will deliver NBI.
- Open Floor Plan Layout
- Can be combined with additional space(s) for up to 14,333 SF of adjacent space
- Shell Space Opportunity!
- Space is in Excellent Condition
- Central Air Conditioning
Raw space, Landlord will deliver NBI.
- Open Floor Plan Layout
- Can be combined with additional space(s) for up to 14,333 SF of adjacent space
- Shell Space Opportunity!
- Space is in Excellent Condition
- Central Air Conditioning
Built, furnished creative installation in place. Features interconnecting staircase between floors 14-16.
- Fully Built-Out as Standard Office
- Space is in Excellent Condition
- Elevator Access
- Full floor opportunity!
- Mostly Open Floor Plan Layout
- Can be combined with additional space(s) for up to 66,500 SF of adjacent space
- Private Restrooms
Built, furnished creative installation in place. Features interconnecting staircase between floors 14-16.
- Fully Built-Out as Standard Office
- Space is in Excellent Condition
- Elevator Access
- Full floor opportunity!
- Open Floor Plan Layout
- Can be combined with additional space(s) for up to 66,500 SF of adjacent space
- Private Restrooms
Built, furnished creative installation in place with 7 offices, 1 conference room, wet pantry, and open area. Features interconnecting staircase between floors 14-16.
- Fully Built-Out as Standard Office
- 7 Private Offices
- Space is in Excellent Condition
- Central Air Conditioning
- Open Floor Plan Layout
- 1 Conference Room
- Can be combined with additional space(s) for up to 66,500 SF of adjacent space
- Full floor opportunity!
Raw full floor with 24' ceilings. Great natural light and views.
- Listed rate may not include certain utilities, building services and property expenses
- Finished Ceilings: 25’
- Can be combined with additional space(s) for up to 62,500 SF of adjacent space
- Natural Light
- Open Floor Plan Layout
- Space is in Excellent Condition
- High Ceilings
- Shell Space Opportunity!
Built creative installation with great natural light and views.
- Listed rate may not include certain utilities, building services and property expenses
- Office intensive layout
- Can be combined with additional space(s) for up to 62,500 SF of adjacent space
- Full floor opportunity!
- Fully Built-Out as Standard Office
- Space is in Excellent Condition
- Natural Light
Built office intensive installation with great natural light and views.
- Listed rate may not include certain utilities, building services and property expenses
- Office intensive layout
- Can be combined with additional space(s) for up to 62,500 SF of adjacent space
- Full floor opportunity!
- Fully Built-Out as Standard Office
- Space is in Excellent Condition
- Central Air Conditioning
Existing creative installation Features great natural light and views Landlord will consider reasonable modifications
- Partially Built-Out as Standard Office
- Space is in Excellent Condition
- Mostly Open Floor Plan Layout
Built with 3 offies, 1 conference room, wet pantry, and open area.
- Fully Built-Out as Standard Office
- 4 Private Offices
- Space is in Excellent Condition
- Mostly Open Floor Plan Layout
- 1 Conference Room
- Fully built space
Delivered in white box condition. Features great natural light and views.
- Fully Built-Out as Standard Office
- 2 Conference Rooms
- Space is in Excellent Condition
- Reception Area
- 18 Private Offices
- 32 Workstations
- Can be combined with additional space(s) for up to 31,080 SF of adjacent space
- Private Restrooms
Existing installation features 5 offices, wet pantry, and small open area. Features great light and views. Landlord will consider reasonable modifications.
- Partially Built-Out as Standard Office
- 6 Private Offices
- Mostly Open Floor Plan Layout
- Space is in Excellent Condition
Above-standard, creative installation with great natural light and views. Features interconnecting staircase between floors 36-37.
- Listed rate may not include certain utilities, building services and property expenses
- Mostly Open Floor Plan Layout
- 2 Conference Rooms
- Can be combined with additional space(s) for up to 31,080 SF of adjacent space
- Elevator Access
- Full floor opportunity!
- Fully Built-Out as Standard Office
- 4 Private Offices
- Space is in Excellent Condition
- Reception Area
- Private Restrooms
- Fully built space
Above-standard, creative installation with great natural light and views. Features exposed ceilings and polished concrete floors. Some furniture available. Interconnecting staircase between floors 36-37.
- Fully Built-Out as Standard Office
- 30 Private Offices
- Finished Ceilings: 10’
- Fully built space
- Mostly Open Floor Plan Layout
- 2 Conference Rooms
- Space is in Excellent Condition
Existing installation features 7 offices, 1 conference room, wet pantry and open area. Landlord will consider demolishing and delivering NBI. Corner unit with GREAT natural light and unobstructed views of East River.
- Fully Built-Out as Standard Office
- 2 Conference Rooms
- Space is in Excellent Condition
- 18 Private Offices
- 8 Workstations
- Fully built space
Space is recently built with 11 offices, wet pantry, and open area for 30+ Features exceptional natural light and views Some furniture can be made available
| Space | Size | Term | Rental Rate | Space Use | Build-Out | Available |
| 2nd Floor | 28,500 SF | Negotiable | Upon Request Upon Request Upon Request Upon Request | Office | Full Build-Out | Now |
| Mezzanine | 3,800 SF | Negotiable | Upon Request Upon Request Upon Request Upon Request | Office/Retail | Partial Build-Out | Now |
| 6th Floor | 8,850 SF | Negotiable | $63.00 /SF/YR $5.25 /SF/MO $557,550 /YR $46,463 /MO | Office | Full Build-Out | Now |
| 7th Floor | 6,500 SF | Negotiable | Upon Request Upon Request Upon Request Upon Request | Office | - | Now |
| 7th Floor, Ste 701 | 2,435 SF | Negotiable | Upon Request Upon Request Upon Request Upon Request | Office | Full Build-Out | Now |
| 7th Floor, Ste 703 | 20,000 SF | Negotiable | Upon Request Upon Request Upon Request Upon Request | Office | Full Build-Out | Now |
| 9th Floor, Ste 901 | 6,966 SF | Negotiable | Upon Request Upon Request Upon Request Upon Request | Office | Shell Space | Now |
| 9th Floor, Ste 902 | 7,367 SF | Negotiable | Upon Request Upon Request Upon Request Upon Request | Office | Shell Space | Now |
| 14th Floor | 26,500 SF | Negotiable | Upon Request Upon Request Upon Request Upon Request | Office | Full Build-Out | 30 Days |
| 15th Floor | 26,500 SF | Negotiable | Upon Request Upon Request Upon Request Upon Request | Office | Full Build-Out | 30 Days |
| 16th Floor | 13,500 SF | Negotiable | Upon Request Upon Request Upon Request Upon Request | Office | Full Build-Out | 30 Days |
| 30th Floor | 9,500 SF | Negotiable | $75.00 /SF/YR $6.25 /SF/MO $712,500 /YR $59,375 /MO | Office | Shell Space | Now |
| 31st Floor | 26,500 SF | 3-15 Years | $75.00 /SF/YR $6.25 /SF/MO $1,987,500 /YR $165,625 /MO | Office | Full Build-Out | Now |
| 32nd Floor | 26,500 SF | Negotiable | $75.00 /SF/YR $6.25 /SF/MO $1,987,500 /YR $165,625 /MO | Office | Full Build-Out | Now |
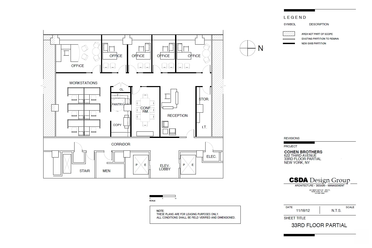
| 33rd Floor, Ste 3302 | 4,979 SF | Negotiable | $75.00 /SF/YR $6.25 /SF/MO $373,425 /YR $31,119 /MO | Office | Partial Build-Out | Now |
| 34th Floor | 4,500 SF | Negotiable | Upon Request Upon Request Upon Request Upon Request | Office | Full Build-Out | Now |
| 35th Floor | 4,580 SF | Negotiable | Upon Request Upon Request Upon Request Upon Request | Office | Full Build-Out | Now |
| 35th Floor, Ste 3502 | 3,500 SF | Negotiable | Upon Request Upon Request Upon Request Upon Request | Office | Partial Build-Out | Now |
| 36th Floor | 26,500 SF | Negotiable | $75.00 /SF/YR $6.25 /SF/MO $1,987,500 /YR $165,625 /MO | Office | Full Build-Out | Now |
| 37th Floor | 14,750 SF | 5-10 Years | Upon Request Upon Request Upon Request Upon Request | Office | Full Build-Out | Now |
| 38th Floor, Ste 3802 | 5,712 SF | Negotiable | $75.00 /SF/YR $6.25 /SF/MO $428,400 /YR $35,700 /MO | Office | Full Build-Out | Now |
| 39th Floor | 6,000 SF | Negotiable | Upon Request Upon Request Upon Request Upon Request | Office | - | Now |
2nd Floor
| Size |
| 28,500 SF |
| Term |
| Negotiable |
| Rental Rate |
| Upon Request Upon Request Upon Request Upon Request |
| Space Use |
| Office |
| Build-Out |
| Full Build-Out |
| Available |
| Now |
Mezzanine
| Size |
| 3,800 SF |
| Term |
| Negotiable |
| Rental Rate |
| Upon Request Upon Request Upon Request Upon Request |
| Space Use |
| Office/Retail |
| Build-Out |
| Partial Build-Out |
| Available |
| Now |
6th Floor
| Size |
| 8,850 SF |
| Term |
| Negotiable |
| Rental Rate |
| $63.00 /SF/YR $5.25 /SF/MO $557,550 /YR $46,463 /MO |
| Space Use |
| Office |
| Build-Out |
| Full Build-Out |
| Available |
| Now |
7th Floor
| Size |
| 6,500 SF |
| Term |
| Negotiable |
| Rental Rate |
| Upon Request Upon Request Upon Request Upon Request |
| Space Use |
| Office |
| Build-Out |
| - |
| Available |
| Now |
7th Floor, Ste 701
| Size |
| 2,435 SF |
| Term |
| Negotiable |
| Rental Rate |
| Upon Request Upon Request Upon Request Upon Request |
| Space Use |
| Office |
| Build-Out |
| Full Build-Out |
| Available |
| Now |
7th Floor, Ste 703
| Size |
| 20,000 SF |
| Term |
| Negotiable |
| Rental Rate |
| Upon Request Upon Request Upon Request Upon Request |
| Space Use |
| Office |
| Build-Out |
| Full Build-Out |
| Available |
| Now |
9th Floor, Ste 901
| Size |
| 6,966 SF |
| Term |
| Negotiable |
| Rental Rate |
| Upon Request Upon Request Upon Request Upon Request |
| Space Use |
| Office |
| Build-Out |
| Shell Space |
| Available |
| Now |
9th Floor, Ste 902
| Size |
| 7,367 SF |
| Term |
| Negotiable |
| Rental Rate |
| Upon Request Upon Request Upon Request Upon Request |
| Space Use |
| Office |
| Build-Out |
| Shell Space |
| Available |
| Now |
14th Floor
| Size |
| 26,500 SF |
| Term |
| Negotiable |
| Rental Rate |
| Upon Request Upon Request Upon Request Upon Request |
| Space Use |
| Office |
| Build-Out |
| Full Build-Out |
| Available |
| 30 Days |
15th Floor
| Size |
| 26,500 SF |
| Term |
| Negotiable |
| Rental Rate |
| Upon Request Upon Request Upon Request Upon Request |
| Space Use |
| Office |
| Build-Out |
| Full Build-Out |
| Available |
| 30 Days |
16th Floor
| Size |
| 13,500 SF |
| Term |
| Negotiable |
| Rental Rate |
| Upon Request Upon Request Upon Request Upon Request |
| Space Use |
| Office |
| Build-Out |
| Full Build-Out |
| Available |
| 30 Days |
30th Floor
| Size |
| 9,500 SF |
| Term |
| Negotiable |
| Rental Rate |
| $75.00 /SF/YR $6.25 /SF/MO $712,500 /YR $59,375 /MO |
| Space Use |
| Office |
| Build-Out |
| Shell Space |
| Available |
| Now |
31st Floor
| Size |
| 26,500 SF |
| Term |
| 3-15 Years |
| Rental Rate |
| $75.00 /SF/YR $6.25 /SF/MO $1,987,500 /YR $165,625 /MO |
| Space Use |
| Office |
| Build-Out |
| Full Build-Out |
| Available |
| Now |
32nd Floor
| Size |
| 26,500 SF |
| Term |
| Negotiable |
| Rental Rate |
| $75.00 /SF/YR $6.25 /SF/MO $1,987,500 /YR $165,625 /MO |
| Space Use |
| Office |
| Build-Out |
| Full Build-Out |
| Available |
| Now |
33rd Floor, Ste 3302
| Size |
| 4,979 SF |
| Term |
| Negotiable |
| Rental Rate |
| $75.00 /SF/YR $6.25 /SF/MO $373,425 /YR $31,119 /MO |
| Space Use |
| Office |
| Build-Out |
| Partial Build-Out |
| Available |
| Now |
34th Floor
| Size |
| 4,500 SF |
| Term |
| Negotiable |
| Rental Rate |
| Upon Request Upon Request Upon Request Upon Request |
| Space Use |
| Office |
| Build-Out |
| Full Build-Out |
| Available |
| Now |
35th Floor
| Size |
| 4,580 SF |
| Term |
| Negotiable |
| Rental Rate |
| Upon Request Upon Request Upon Request Upon Request |
| Space Use |
| Office |
| Build-Out |
| Full Build-Out |
| Available |
| Now |
35th Floor, Ste 3502
| Size |
| 3,500 SF |
| Term |
| Negotiable |
| Rental Rate |
| Upon Request Upon Request Upon Request Upon Request |
| Space Use |
| Office |
| Build-Out |
| Partial Build-Out |
| Available |
| Now |
36th Floor
| Size |
| 26,500 SF |
| Term |
| Negotiable |
| Rental Rate |
| $75.00 /SF/YR $6.25 /SF/MO $1,987,500 /YR $165,625 /MO |
| Space Use |
| Office |
| Build-Out |
| Full Build-Out |
| Available |
| Now |
37th Floor
| Size |
| 14,750 SF |
| Term |
| 5-10 Years |
| Rental Rate |
| Upon Request Upon Request Upon Request Upon Request |
| Space Use |
| Office |
| Build-Out |
| Full Build-Out |
| Available |
| Now |
38th Floor, Ste 3802
| Size |
| 5,712 SF |
| Term |
| Negotiable |
| Rental Rate |
| $75.00 /SF/YR $6.25 /SF/MO $428,400 /YR $35,700 /MO |
| Space Use |
| Office |
| Build-Out |
| Full Build-Out |
| Available |
| Now |
39th Floor
| Size |
| 6,000 SF |
| Term |
| Negotiable |
| Rental Rate |
| Upon Request Upon Request Upon Request Upon Request |
| Space Use |
| Office |
| Build-Out |
| - |
| Available |
| Now |
- Space
- Size
- Term
- Rental Rate
- Space Use
- Build-Out
- Available
BUILDING WITHIN A BUILDING OPPORTUNITY Private entrance from street with private elevator from ground to mezzanine Can be leased with entire second floor Emery Roth & Sons designed building with Moed de Armas & Shannon lobby Outdoor tenant amenities include block-through plaza with landscaping and seating and park with food service on adjacent 3 story restaurant rooftop 26’ – 28’ column spacing Ceiling heights: Ground - 10'6" - 22' Mezzanine - 11'6" Second Floor - 15'6"
- Partially Built-Out as Standard Retail Space
- Can be combined with additional space(s) for up to 39,655 SF of adjacent space
- Finished Ceilings: 11’6”
- Located in-line with other retail
- Central Air Conditioning
- Several pre-built opportunities
15'6" slab to slab ceiling heights Above standard buildout consisting of open plan and conference rooms
- Fully Built-Out as Professional Services Office
- Finished Ceilings: 9’3”
- Can be combined with additional space(s) for up to 39,655 SF of adjacent space
- Open Buildout!
- Mostly Open Floor Plan Layout
- Space is in Excellent Condition
- Central Air Conditioning
11'6" ceiling heights
- Mostly Open Floor Plan Layout
- Space is in Excellent Condition
- Finished Ceilings: 11’6”
- Can be combined with additional space(s) for up to 39,655 SF of adjacent space
Built with 6 windowed offices, 4 windowed conference rooms, 1 interior conference room, wet pantry, and open area.
- Listed rate may not include certain utilities, building services and property expenses
- 6 Private Offices
- Space is in Excellent Condition
- Fully Built-Out as Standard Office
- 5 Conference Rooms
- Fully built space
Space is currently built and furnished with 3 offices, 1 conference room, wet pantry and open area for 30+.
Existing installation features 3 offices, 1 conference room, wet pantry, and small open area.
- Fully Built-Out as Standard Office
- 3 Private Offices
- Space is in Excellent Condition
- Shell Space Opportunity!
- Open Floor Plan Layout
- 1 Conference Room
- Central Air Conditioning
Features Exposed ceilings and executive restroom with shower.
- Fully Built-Out as Standard Office
- Central Air Conditioning
- Mostly Open Floor Plan Layout
- Office intensive installation.
Raw space, landlord will deliver NBI.
- Open Floor Plan Layout
- Can be combined with additional space(s) for up to 14,333 SF of adjacent space
- Shell Space Opportunity!
- Space is in Excellent Condition
- Central Air Conditioning
Raw space, Landlord will deliver NBI.
- Open Floor Plan Layout
- Can be combined with additional space(s) for up to 14,333 SF of adjacent space
- Shell Space Opportunity!
- Space is in Excellent Condition
- Central Air Conditioning
Built, furnished creative installation in place. Features interconnecting staircase between floors 14-16.
- Fully Built-Out as Standard Office
- Space is in Excellent Condition
- Elevator Access
- Full floor opportunity!
- Mostly Open Floor Plan Layout
- Can be combined with additional space(s) for up to 66,500 SF of adjacent space
- Private Restrooms
Built, furnished creative installation in place. Features interconnecting staircase between floors 14-16.
- Fully Built-Out as Standard Office
- Space is in Excellent Condition
- Elevator Access
- Full floor opportunity!
- Open Floor Plan Layout
- Can be combined with additional space(s) for up to 66,500 SF of adjacent space
- Private Restrooms
Built, furnished creative installation in place with 7 offices, 1 conference room, wet pantry, and open area. Features interconnecting staircase between floors 14-16.
- Fully Built-Out as Standard Office
- 7 Private Offices
- Space is in Excellent Condition
- Central Air Conditioning
- Open Floor Plan Layout
- 1 Conference Room
- Can be combined with additional space(s) for up to 66,500 SF of adjacent space
- Full floor opportunity!
Raw full floor with 24' ceilings. Great natural light and views.
- Listed rate may not include certain utilities, building services and property expenses
- Finished Ceilings: 25’
- Can be combined with additional space(s) for up to 62,500 SF of adjacent space
- Natural Light
- Open Floor Plan Layout
- Space is in Excellent Condition
- High Ceilings
- Shell Space Opportunity!
Built creative installation with great natural light and views.
- Listed rate may not include certain utilities, building services and property expenses
- Office intensive layout
- Can be combined with additional space(s) for up to 62,500 SF of adjacent space
- Full floor opportunity!
- Fully Built-Out as Standard Office
- Space is in Excellent Condition
- Natural Light
Built office intensive installation with great natural light and views.
- Listed rate may not include certain utilities, building services and property expenses
- Office intensive layout
- Can be combined with additional space(s) for up to 62,500 SF of adjacent space
- Full floor opportunity!
- Fully Built-Out as Standard Office
- Space is in Excellent Condition
- Central Air Conditioning
Existing creative installation Features great natural light and views Landlord will consider reasonable modifications
- Partially Built-Out as Standard Office
- Space is in Excellent Condition
- Mostly Open Floor Plan Layout
Built with 3 offies, 1 conference room, wet pantry, and open area.
- Fully Built-Out as Standard Office
- 4 Private Offices
- Space is in Excellent Condition
- Mostly Open Floor Plan Layout
- 1 Conference Room
- Fully built space
Delivered in white box condition. Features great natural light and views.
- Fully Built-Out as Standard Office
- 2 Conference Rooms
- Space is in Excellent Condition
- Reception Area
- 18 Private Offices
- 32 Workstations
- Can be combined with additional space(s) for up to 31,080 SF of adjacent space
- Private Restrooms
Existing installation features 5 offices, wet pantry, and small open area. Features great light and views. Landlord will consider reasonable modifications.
- Partially Built-Out as Standard Office
- 6 Private Offices
- Mostly Open Floor Plan Layout
- Space is in Excellent Condition
Above-standard, creative installation with great natural light and views. Features interconnecting staircase between floors 36-37.
- Listed rate may not include certain utilities, building services and property expenses
- Mostly Open Floor Plan Layout
- 2 Conference Rooms
- Can be combined with additional space(s) for up to 31,080 SF of adjacent space
- Elevator Access
- Full floor opportunity!
- Fully Built-Out as Standard Office
- 4 Private Offices
- Space is in Excellent Condition
- Reception Area
- Private Restrooms
- Fully built space
Above-standard, creative installation with great natural light and views. Features exposed ceilings and polished concrete floors. Some furniture available. Interconnecting staircase between floors 36-37.
- Fully Built-Out as Standard Office
- 30 Private Offices
- Finished Ceilings: 10’
- Fully built space
- Mostly Open Floor Plan Layout
- 2 Conference Rooms
- Space is in Excellent Condition
Existing installation features 7 offices, 1 conference room, wet pantry and open area. Landlord will consider demolishing and delivering NBI. Corner unit with GREAT natural light and unobstructed views of East River.
- Fully Built-Out as Standard Office
- 2 Conference Rooms
- Space is in Excellent Condition
- 18 Private Offices
- 8 Workstations
- Fully built space
Space is recently built with 11 offices, wet pantry, and open area for 30+ Features exceptional natural light and views Some furniture can be made available
| Space | Size | Term | Rental Rate | Space Use | Build-Out | Available |
| Ground | 7,355 SF | Negotiable | Upon Request Upon Request Upon Request Upon Request | Retail | Partial Build-Out | Now |
| 2nd Floor | 28,500 SF | Negotiable | Upon Request Upon Request Upon Request Upon Request | Office | Full Build-Out | Now |
| Mezzanine | 3,800 SF | Negotiable | Upon Request Upon Request Upon Request Upon Request | Office/Retail | Partial Build-Out | Now |
| 6th Floor | 8,850 SF | Negotiable | $63.00 /SF/YR $5.25 /SF/MO $557,550 /YR $46,463 /MO | Office | Full Build-Out | Now |
| 7th Floor | 6,500 SF | Negotiable | Upon Request Upon Request Upon Request Upon Request | Office | - | Now |
| 7th Floor, Ste 701 | 2,435 SF | Negotiable | Upon Request Upon Request Upon Request Upon Request | Office | Full Build-Out | Now |
| 7th Floor, Ste 703 | 20,000 SF | Negotiable | Upon Request Upon Request Upon Request Upon Request | Office | Full Build-Out | Now |
| 9th Floor, Ste 901 | 6,966 SF | Negotiable | Upon Request Upon Request Upon Request Upon Request | Office | Shell Space | Now |
| 9th Floor, Ste 902 | 7,367 SF | Negotiable | Upon Request Upon Request Upon Request Upon Request | Office | Shell Space | Now |
| 14th Floor | 26,500 SF | Negotiable | Upon Request Upon Request Upon Request Upon Request | Office | Full Build-Out | 30 Days |
| 15th Floor | 26,500 SF | Negotiable | Upon Request Upon Request Upon Request Upon Request | Office | Full Build-Out | 30 Days |
| 16th Floor | 13,500 SF | Negotiable | Upon Request Upon Request Upon Request Upon Request | Office | Full Build-Out | 30 Days |
| 30th Floor | 9,500 SF | Negotiable | $75.00 /SF/YR $6.25 /SF/MO $712,500 /YR $59,375 /MO | Office | Shell Space | Now |
| 31st Floor | 26,500 SF | 3-15 Years | $75.00 /SF/YR $6.25 /SF/MO $1,987,500 /YR $165,625 /MO | Office | Full Build-Out | Now |
| 32nd Floor | 26,500 SF | Negotiable | $75.00 /SF/YR $6.25 /SF/MO $1,987,500 /YR $165,625 /MO | Office | Full Build-Out | Now |
| 33rd Floor, Ste 3302 | 4,979 SF | Negotiable | $75.00 /SF/YR $6.25 /SF/MO $373,425 /YR $31,119 /MO | Office | Partial Build-Out | Now |
| 34th Floor | 4,500 SF | Negotiable | Upon Request Upon Request Upon Request Upon Request | Office | Full Build-Out | Now |
| 35th Floor | 4,580 SF | Negotiable | Upon Request Upon Request Upon Request Upon Request | Office | Full Build-Out | Now |
| 35th Floor, Ste 3502 | 3,500 SF | Negotiable | Upon Request Upon Request Upon Request Upon Request | Office | Partial Build-Out | Now |
| 36th Floor | 26,500 SF | Negotiable | $75.00 /SF/YR $6.25 /SF/MO $1,987,500 /YR $165,625 /MO | Office | Full Build-Out | Now |
| 37th Floor | 14,750 SF | 5-10 Years | Upon Request Upon Request Upon Request Upon Request | Office | Full Build-Out | Now |
| 38th Floor, Ste 3802 | 5,712 SF | Negotiable | $75.00 /SF/YR $6.25 /SF/MO $428,400 /YR $35,700 /MO | Office | Full Build-Out | Now |
| 39th Floor | 6,000 SF | Negotiable | Upon Request Upon Request Upon Request Upon Request | Office | - | Now |
Ground
| Size |
| 7,355 SF |
| Term |
| Negotiable |
| Rental Rate |
| Upon Request Upon Request Upon Request Upon Request |
| Space Use |
| Retail |
| Build-Out |
| Partial Build-Out |
| Available |
| Now |
2nd Floor
| Size |
| 28,500 SF |
| Term |
| Negotiable |
| Rental Rate |
| Upon Request Upon Request Upon Request Upon Request |
| Space Use |
| Office |
| Build-Out |
| Full Build-Out |
| Available |
| Now |
Mezzanine
| Size |
| 3,800 SF |
| Term |
| Negotiable |
| Rental Rate |
| Upon Request Upon Request Upon Request Upon Request |
| Space Use |
| Office/Retail |
| Build-Out |
| Partial Build-Out |
| Available |
| Now |
6th Floor
| Size |
| 8,850 SF |
| Term |
| Negotiable |
| Rental Rate |
| $63.00 /SF/YR $5.25 /SF/MO $557,550 /YR $46,463 /MO |
| Space Use |
| Office |
| Build-Out |
| Full Build-Out |
| Available |
| Now |
7th Floor
| Size |
| 6,500 SF |
| Term |
| Negotiable |
| Rental Rate |
| Upon Request Upon Request Upon Request Upon Request |
| Space Use |
| Office |
| Build-Out |
| - |
| Available |
| Now |
7th Floor, Ste 701
| Size |
| 2,435 SF |
| Term |
| Negotiable |
| Rental Rate |
| Upon Request Upon Request Upon Request Upon Request |
| Space Use |
| Office |
| Build-Out |
| Full Build-Out |
| Available |
| Now |
7th Floor, Ste 703
| Size |
| 20,000 SF |
| Term |
| Negotiable |
| Rental Rate |
| Upon Request Upon Request Upon Request Upon Request |
| Space Use |
| Office |
| Build-Out |
| Full Build-Out |
| Available |
| Now |
9th Floor, Ste 901
| Size |
| 6,966 SF |
| Term |
| Negotiable |
| Rental Rate |
| Upon Request Upon Request Upon Request Upon Request |
| Space Use |
| Office |
| Build-Out |
| Shell Space |
| Available |
| Now |
9th Floor, Ste 902
| Size |
| 7,367 SF |
| Term |
| Negotiable |
| Rental Rate |
| Upon Request Upon Request Upon Request Upon Request |
| Space Use |
| Office |
| Build-Out |
| Shell Space |
| Available |
| Now |
14th Floor
| Size |
| 26,500 SF |
| Term |
| Negotiable |
| Rental Rate |
| Upon Request Upon Request Upon Request Upon Request |
| Space Use |
| Office |
| Build-Out |
| Full Build-Out |
| Available |
| 30 Days |
15th Floor
| Size |
| 26,500 SF |
| Term |
| Negotiable |
| Rental Rate |
| Upon Request Upon Request Upon Request Upon Request |
| Space Use |
| Office |
| Build-Out |
| Full Build-Out |
| Available |
| 30 Days |
16th Floor
| Size |
| 13,500 SF |
| Term |
| Negotiable |
| Rental Rate |
| Upon Request Upon Request Upon Request Upon Request |
| Space Use |
| Office |
| Build-Out |
| Full Build-Out |
| Available |
| 30 Days |
30th Floor
| Size |
| 9,500 SF |
| Term |
| Negotiable |
| Rental Rate |
| $75.00 /SF/YR $6.25 /SF/MO $712,500 /YR $59,375 /MO |
| Space Use |
| Office |
| Build-Out |
| Shell Space |
| Available |
| Now |
31st Floor
| Size |
| 26,500 SF |
| Term |
| 3-15 Years |
| Rental Rate |
| $75.00 /SF/YR $6.25 /SF/MO $1,987,500 /YR $165,625 /MO |
| Space Use |
| Office |
| Build-Out |
| Full Build-Out |
| Available |
| Now |
32nd Floor
| Size |
| 26,500 SF |
| Term |
| Negotiable |
| Rental Rate |
| $75.00 /SF/YR $6.25 /SF/MO $1,987,500 /YR $165,625 /MO |
| Space Use |
| Office |
| Build-Out |
| Full Build-Out |
| Available |
| Now |
33rd Floor, Ste 3302
| Size |
| 4,979 SF |
| Term |
| Negotiable |
| Rental Rate |
| $75.00 /SF/YR $6.25 /SF/MO $373,425 /YR $31,119 /MO |
| Space Use |
| Office |
| Build-Out |
| Partial Build-Out |
| Available |
| Now |
34th Floor
| Size |
| 4,500 SF |
| Term |
| Negotiable |
| Rental Rate |
| Upon Request Upon Request Upon Request Upon Request |
| Space Use |
| Office |
| Build-Out |
| Full Build-Out |
| Available |
| Now |
35th Floor
| Size |
| 4,580 SF |
| Term |
| Negotiable |
| Rental Rate |
| Upon Request Upon Request Upon Request Upon Request |
| Space Use |
| Office |
| Build-Out |
| Full Build-Out |
| Available |
| Now |
35th Floor, Ste 3502
| Size |
| 3,500 SF |
| Term |
| Negotiable |
| Rental Rate |
| Upon Request Upon Request Upon Request Upon Request |
| Space Use |
| Office |
| Build-Out |
| Partial Build-Out |
| Available |
| Now |
36th Floor
| Size |
| 26,500 SF |
| Term |
| Negotiable |
| Rental Rate |
| $75.00 /SF/YR $6.25 /SF/MO $1,987,500 /YR $165,625 /MO |
| Space Use |
| Office |
| Build-Out |
| Full Build-Out |
| Available |
| Now |
37th Floor
| Size |
| 14,750 SF |
| Term |
| 5-10 Years |
| Rental Rate |
| Upon Request Upon Request Upon Request Upon Request |
| Space Use |
| Office |
| Build-Out |
| Full Build-Out |
| Available |
| Now |
38th Floor, Ste 3802
| Size |
| 5,712 SF |
| Term |
| Negotiable |
| Rental Rate |
| $75.00 /SF/YR $6.25 /SF/MO $428,400 /YR $35,700 /MO |
| Space Use |
| Office |
| Build-Out |
| Full Build-Out |
| Available |
| Now |
39th Floor
| Size |
| 6,000 SF |
| Term |
| Negotiable |
| Rental Rate |
| Upon Request Upon Request Upon Request Upon Request |
| Space Use |
| Office |
| Build-Out |
| - |
| Available |
| Now |
Ground
| Size | 7,355 SF |
| Term | Negotiable |
| Rental Rate | Upon Request |
| Space Use | Retail |
| Build-Out | Partial Build-Out |
| Available | Now |
BUILDING WITHIN A BUILDING OPPORTUNITY Private entrance from street with private elevator from ground to mezzanine Can be leased with entire second floor Emery Roth & Sons designed building with Moed de Armas & Shannon lobby Outdoor tenant amenities include block-through plaza with landscaping and seating and park with food service on adjacent 3 story restaurant rooftop 26’ – 28’ column spacing Ceiling heights: Ground - 10'6" - 22' Mezzanine - 11'6" Second Floor - 15'6"
- Partially Built-Out as Standard Retail Space
- Located in-line with other retail
- Can be combined with additional space(s) for up to 39,655 SF of adjacent space
- Central Air Conditioning
- Finished Ceilings: 11’6”
- Several pre-built opportunities
2nd Floor
| Size | 28,500 SF |
| Term | Negotiable |
| Rental Rate | Upon Request |
| Space Use | Office |
| Build-Out | Full Build-Out |
| Available | Now |
15'6" slab to slab ceiling heights Above standard buildout consisting of open plan and conference rooms
- Fully Built-Out as Professional Services Office
- Mostly Open Floor Plan Layout
- Finished Ceilings: 9’3”
- Space is in Excellent Condition
- Can be combined with additional space(s) for up to 39,655 SF of adjacent space
- Central Air Conditioning
- Open Buildout!
Mezzanine
| Size | 3,800 SF |
| Term | Negotiable |
| Rental Rate | Upon Request |
| Space Use | Office/Retail |
| Build-Out | Partial Build-Out |
| Available | Now |
11'6" ceiling heights
- Mostly Open Floor Plan Layout
- Finished Ceilings: 11’6”
- Space is in Excellent Condition
- Can be combined with additional space(s) for up to 39,655 SF of adjacent space
6th Floor
| Size | 8,850 SF |
| Term | Negotiable |
| Rental Rate | $63.00 /SF/YR |
| Space Use | Office |
| Build-Out | Full Build-Out |
| Available | Now |
Built with 6 windowed offices, 4 windowed conference rooms, 1 interior conference room, wet pantry, and open area.
- Listed rate may not include certain utilities, building services and property expenses
- Fully Built-Out as Standard Office
- 6 Private Offices
- 5 Conference Rooms
- Space is in Excellent Condition
- Fully built space
7th Floor
| Size | 6,500 SF |
| Term | Negotiable |
| Rental Rate | Upon Request |
| Space Use | Office |
| Build-Out | - |
| Available | Now |
Space is currently built and furnished with 3 offices, 1 conference room, wet pantry and open area for 30+.
7th Floor, Ste 701
| Size | 2,435 SF |
| Term | Negotiable |
| Rental Rate | Upon Request |
| Space Use | Office |
| Build-Out | Full Build-Out |
| Available | Now |
Existing installation features 3 offices, 1 conference room, wet pantry, and small open area.
- Fully Built-Out as Standard Office
- Open Floor Plan Layout
- 3 Private Offices
- 1 Conference Room
- Space is in Excellent Condition
- Central Air Conditioning
- Shell Space Opportunity!
7th Floor, Ste 703
| Size | 20,000 SF |
| Term | Negotiable |
| Rental Rate | Upon Request |
| Space Use | Office |
| Build-Out | Full Build-Out |
| Available | Now |
Features Exposed ceilings and executive restroom with shower.
- Fully Built-Out as Standard Office
- Mostly Open Floor Plan Layout
- Central Air Conditioning
- Office intensive installation.
9th Floor, Ste 901
| Size | 6,966 SF |
| Term | Negotiable |
| Rental Rate | Upon Request |
| Space Use | Office |
| Build-Out | Shell Space |
| Available | Now |
Raw space, landlord will deliver NBI.
- Open Floor Plan Layout
- Space is in Excellent Condition
- Can be combined with additional space(s) for up to 14,333 SF of adjacent space
- Central Air Conditioning
- Shell Space Opportunity!
9th Floor, Ste 902
| Size | 7,367 SF |
| Term | Negotiable |
| Rental Rate | Upon Request |
| Space Use | Office |
| Build-Out | Shell Space |
| Available | Now |
Raw space, Landlord will deliver NBI.
- Open Floor Plan Layout
- Space is in Excellent Condition
- Can be combined with additional space(s) for up to 14,333 SF of adjacent space
- Central Air Conditioning
- Shell Space Opportunity!
14th Floor
| Size | 26,500 SF |
| Term | Negotiable |
| Rental Rate | Upon Request |
| Space Use | Office |
| Build-Out | Full Build-Out |
| Available | 30 Days |
Built, furnished creative installation in place. Features interconnecting staircase between floors 14-16.
- Fully Built-Out as Standard Office
- Mostly Open Floor Plan Layout
- Space is in Excellent Condition
- Can be combined with additional space(s) for up to 66,500 SF of adjacent space
- Elevator Access
- Private Restrooms
- Full floor opportunity!
15th Floor
| Size | 26,500 SF |
| Term | Negotiable |
| Rental Rate | Upon Request |
| Space Use | Office |
| Build-Out | Full Build-Out |
| Available | 30 Days |
Built, furnished creative installation in place. Features interconnecting staircase between floors 14-16.
- Fully Built-Out as Standard Office
- Open Floor Plan Layout
- Space is in Excellent Condition
- Can be combined with additional space(s) for up to 66,500 SF of adjacent space
- Elevator Access
- Private Restrooms
- Full floor opportunity!
16th Floor
| Size | 13,500 SF |
| Term | Negotiable |
| Rental Rate | Upon Request |
| Space Use | Office |
| Build-Out | Full Build-Out |
| Available | 30 Days |
Built, furnished creative installation in place with 7 offices, 1 conference room, wet pantry, and open area. Features interconnecting staircase between floors 14-16.
- Fully Built-Out as Standard Office
- Open Floor Plan Layout
- 7 Private Offices
- 1 Conference Room
- Space is in Excellent Condition
- Can be combined with additional space(s) for up to 66,500 SF of adjacent space
- Central Air Conditioning
- Full floor opportunity!
30th Floor
| Size | 9,500 SF |
| Term | Negotiable |
| Rental Rate | $75.00 /SF/YR |
| Space Use | Office |
| Build-Out | Shell Space |
| Available | Now |
Raw full floor with 24' ceilings. Great natural light and views.
- Listed rate may not include certain utilities, building services and property expenses
- Open Floor Plan Layout
- Finished Ceilings: 25’
- Space is in Excellent Condition
- Can be combined with additional space(s) for up to 62,500 SF of adjacent space
- High Ceilings
- Natural Light
- Shell Space Opportunity!
31st Floor
| Size | 26,500 SF |
| Term | 3-15 Years |
| Rental Rate | $75.00 /SF/YR |
| Space Use | Office |
| Build-Out | Full Build-Out |
| Available | Now |
Built creative installation with great natural light and views.
- Listed rate may not include certain utilities, building services and property expenses
- Fully Built-Out as Standard Office
- Office intensive layout
- Space is in Excellent Condition
- Can be combined with additional space(s) for up to 62,500 SF of adjacent space
- Natural Light
- Full floor opportunity!
32nd Floor
| Size | 26,500 SF |
| Term | Negotiable |
| Rental Rate | $75.00 /SF/YR |
| Space Use | Office |
| Build-Out | Full Build-Out |
| Available | Now |
Built office intensive installation with great natural light and views.
- Listed rate may not include certain utilities, building services and property expenses
- Fully Built-Out as Standard Office
- Office intensive layout
- Space is in Excellent Condition
- Can be combined with additional space(s) for up to 62,500 SF of adjacent space
- Central Air Conditioning
- Full floor opportunity!
33rd Floor, Ste 3302
| Size | 4,979 SF |
| Term | Negotiable |
| Rental Rate | $75.00 /SF/YR |
| Space Use | Office |
| Build-Out | Partial Build-Out |
| Available | Now |
Existing creative installation Features great natural light and views Landlord will consider reasonable modifications
- Partially Built-Out as Standard Office
- Mostly Open Floor Plan Layout
- Space is in Excellent Condition
34th Floor
| Size | 4,500 SF |
| Term | Negotiable |
| Rental Rate | Upon Request |
| Space Use | Office |
| Build-Out | Full Build-Out |
| Available | Now |
Built with 3 offies, 1 conference room, wet pantry, and open area.
- Fully Built-Out as Standard Office
- Mostly Open Floor Plan Layout
- 4 Private Offices
- 1 Conference Room
- Space is in Excellent Condition
- Fully built space
35th Floor
| Size | 4,580 SF |
| Term | Negotiable |
| Rental Rate | Upon Request |
| Space Use | Office |
| Build-Out | Full Build-Out |
| Available | Now |
Delivered in white box condition. Features great natural light and views.
- Fully Built-Out as Standard Office
- 18 Private Offices
- 2 Conference Rooms
- 32 Workstations
- Space is in Excellent Condition
- Can be combined with additional space(s) for up to 31,080 SF of adjacent space
- Reception Area
- Private Restrooms
35th Floor, Ste 3502
| Size | 3,500 SF |
| Term | Negotiable |
| Rental Rate | Upon Request |
| Space Use | Office |
| Build-Out | Partial Build-Out |
| Available | Now |
Existing installation features 5 offices, wet pantry, and small open area. Features great light and views. Landlord will consider reasonable modifications.
- Partially Built-Out as Standard Office
- Mostly Open Floor Plan Layout
- 6 Private Offices
- Space is in Excellent Condition
36th Floor
| Size | 26,500 SF |
| Term | Negotiable |
| Rental Rate | $75.00 /SF/YR |
| Space Use | Office |
| Build-Out | Full Build-Out |
| Available | Now |
Above-standard, creative installation with great natural light and views. Features interconnecting staircase between floors 36-37.
- Listed rate may not include certain utilities, building services and property expenses
- Fully Built-Out as Standard Office
- Mostly Open Floor Plan Layout
- 4 Private Offices
- 2 Conference Rooms
- Space is in Excellent Condition
- Can be combined with additional space(s) for up to 31,080 SF of adjacent space
- Reception Area
- Elevator Access
- Private Restrooms
- Full floor opportunity!
- Fully built space
37th Floor
| Size | 14,750 SF |
| Term | 5-10 Years |
| Rental Rate | Upon Request |
| Space Use | Office |
| Build-Out | Full Build-Out |
| Available | Now |
Above-standard, creative installation with great natural light and views. Features exposed ceilings and polished concrete floors. Some furniture available. Interconnecting staircase between floors 36-37.
- Fully Built-Out as Standard Office
- Mostly Open Floor Plan Layout
- 30 Private Offices
- 2 Conference Rooms
- Finished Ceilings: 10’
- Space is in Excellent Condition
- Fully built space
38th Floor, Ste 3802
| Size | 5,712 SF |
| Term | Negotiable |
| Rental Rate | $75.00 /SF/YR |
| Space Use | Office |
| Build-Out | Full Build-Out |
| Available | Now |
Existing installation features 7 offices, 1 conference room, wet pantry and open area. Landlord will consider demolishing and delivering NBI. Corner unit with GREAT natural light and unobstructed views of East River.
- Fully Built-Out as Standard Office
- 18 Private Offices
- 2 Conference Rooms
- 8 Workstations
- Space is in Excellent Condition
- Fully built space
39th Floor
| Size | 6,000 SF |
| Term | Negotiable |
| Rental Rate | Upon Request |
| Space Use | Office |
| Build-Out | - |
| Available | Now |
Space is recently built with 11 offices, wet pantry, and open area for 30+ Features exceptional natural light and views Some furniture can be made available
Property Overview
Grand Central Plaza at 622 Third Avenue is a 41- story commercial and office building built in 1974. The premier class-A office tower is in convenient proximity to grand Central Terminal, has panoramic views and state of the art security and fire emergency safety systems.
- 24 Hour Access
- Banking
- Restaurant
Property Facts
Presented by
Grand Central Plaza | 622 Third Ave
Hmm, there seems to have been an error sending your message. Please try again.
Thanks! Your message was sent.




















































