Your email has been sent.
Highlights
- Walking distance to restaurants, business services, bus and train transportation
- 10 minutes driving distance to the Gateway to Napa-Sonoma wine country
- Easy access to Hwy 12 and Interstates 80 and 680
Space Availability (1)
Display Rental Rate as
- Space
- Size
- Term
- Rental Rate
- Rent Type
| Space | Size | Term | Rental Rate | Rent Type | ||
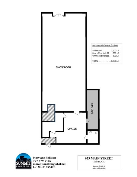
| 1st Floor | 3,060 SF | 1-10 Years | $11.76 /SF/YR $0.98 /SF/MO $35,986 /YR $2,999 /MO | Modified Gross |
1st Floor
Step inside this LANDMARK BUILDING where historic charm and gothic architecture create a timeless welcome for your business and clients. This space has been meticulously prepared for immediate occupancy, featuring a 2,100 square foot showroom with a highly functional layout. You'll also find flexible areas for office use, storage, supplies, and a private restroom. Ample street parking is available, along with a convenient city lot directly across the street.
- Listed rate may not include certain utilities, building services and property expenses
- Fully Built-Out as Standard Retail Space
- Mostly Open Floor Plan Layout
- Fits 8 - 25 People
- Landmark Historic listing
Rent Types
The rent amount and type that the tenant (lessee) will be responsible to pay to the landlord (lessor) throughout the lease term is negotiated prior to both parties signing a lease agreement. The rent type will vary depending upon the services provided. For example, triple net rents are typically lower than full service rents due to additional expenses the tenant is required to pay in addition to the base rent. Contact the listing broker for a full understanding of any associated costs or additional expenses for each rent type.
1. Full Service: A rental rate that includes normal building standard services as provided by the landlord within a base year rental.
2. Double Net (NN): Tenant pays for only two of the building expenses; the landlord and tenant determine the specific expenses prior to signing the lease agreement.
3. Triple Net (NNN): A lease in which the tenant is responsible for all expenses associated with their proportional share of occupancy of the building.
4. Modified Gross: Modified Gross is a general type of lease rate where typically the tenant will be responsible for their proportional share of one or more of the expenses. The landlord will pay the remaining expenses. See the below list of common Modified Gross rental rate structures: 4. Plus All Utilities: A type of Modified Gross Lease where the tenant is responsible for their proportional share of utilities in addition to the rent. 4. Plus Cleaning: A type of Modified Gross Lease where the tenant is responsible for their proportional share of cleaning in addition to the rent. 4. Plus Electric: A type of Modified Gross Lease where the tenant is responsible for their proportional share of the electrical cost in addition to the rent. 4. Plus Electric & Cleaning: A type of Modified Gross Lease where the tenant is responsible for their proportional share of the electrical and cleaning cost in addition to the rent. 4. Plus Utilities and Char: A type of Modified Gross Lease where the tenant is responsible for their proportional share of the utilities and cleaning cost in addition to the rent. 4. Industrial Gross: A type of Modified Gross lease where the tenant pays one or more of the expenses in addition to the rent. The landlord and tenant determine these prior to signing the lease agreement.
5. Tenant Electric: The landlord pays for all services and the tenant is responsible for their usage of lights and electrical outlets in the space they occupy.
6. Negotiable or Upon Request: Used when the leasing contact does not provide the rent or service type.
7. TBD: To be determined; used for buildings for which no rent or service type is known, commonly utilized when the buildings are not yet built.
Select Tenants at 623 Main St, Suisun City, CA 94585
- Stanley Beverly Lodge
Property Facts
| Total Space Available | 3,060 SF | Gross Leasable Area | 8,000 SF |
| Property Type | Retail | Year Built | 1855 |
| Property Subtype | Storefront |
| Total Space Available | 3,060 SF |
| Property Type | Retail |
| Property Subtype | Storefront |
| Gross Leasable Area | 8,000 SF |
| Year Built | 1855 |
About the Property
623 MAIN STREET, is located in Historic Downtown Susuin, California, one block from the picturesque Suisun water-front The building was built in 1855, more recently renovated in 2015, and became listed the National Register of Historic Places in 1978 as "Suisun Masonic Lodge No. 55".The building is also been known locally as the Stanley Beverly Lodge building. Step inside this LANDMARK BUILDING where historic charm and gothic architecture create a timeless welcome for your business and clients. This space has been meticulously prepared for immediate occupancy, featuring a 2,100 square foot showroom with a highly functional layout. You'll also find flexible areas for office use, storage, supplies, and a private restroom. Ample street parking is available, along with a convenient city lot directly across the street.
Nearby Major Retailers
Presented by
623 Main St
Hmm, there seems to have been an error sending your message. Please try again.
Thanks! Your message was sent.






