Your email has been sent.
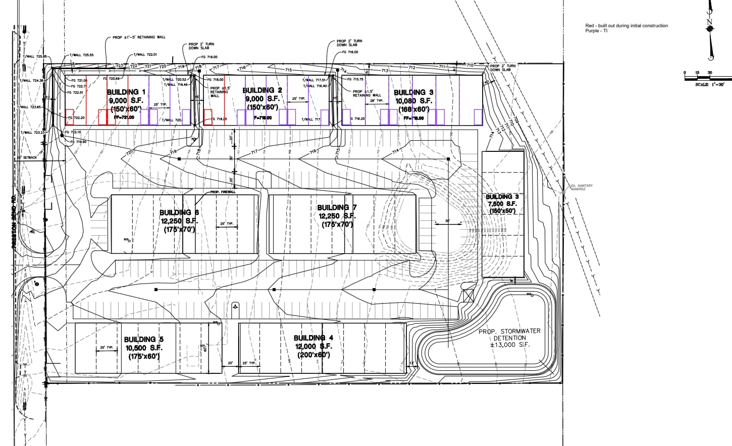
Preston Bend Business Park Pottsboro, TX 75076 1,500 - 30,480 SF of Flex Space Available



Park Highlights
- Grade Level Doors
- Frontage on State Highway 289 (Preston Road)
- Concrete Parking Lot
- Full Bathroom
- Great Lighting
Park Facts
| Total Space Available | 30,480 SF | Park Type | Industrial Park |
| Min. Divisible | 1,500 SF | Features | Air Conditioning |
| Total Space Available | 30,480 SF |
| Min. Divisible | 1,500 SF |
| Park Type | Industrial Park |
| Features | Air Conditioning |
Features and Amenities
- Air Conditioning
All Available Spaces(4)
Display Rental Rate as
- Space
- Size
- Term
- Rental Rate
- Space Use
- Build-Out
- Available
Private building with yard space available for lease. This property is located on N State Highway 289 (AKA Preston Rd) just 8 miles north of highway 82, 2 miles north of Highway 120 in Pottsboro and just 2 miles south of Lake Texoma. This property is within the city limits with B-1 Commercial zoning which can be used for Office, Retail or Flex. B-1 zoning Local Business District - Office, Light Retail, and Neighborhood Services. B-1- Local Business District: Office, Light Retail, and Neighborhood Services: Retail, commercial, and office uses developed under the standards of the B-l District are designed to provide a compatible relationship between the B-l development and adjacent residential areas. See Section 13 for B-1- Local Business District- Office, Light Retail, and Neighborhood Services regulations.
- Listed rate may not include certain utilities, building services and property expenses
- Shower Facilities
- 2 Grade level bay doors in the front and back
- Frontage on State Highway 289 (Preston Road)
- Electric is individually metered
- Space is in Excellent Condition
- Yard
- Gravel path from the entry
- Flexible zoning
- Full Bathroom in the shop
| Space | Size | Term | Rental Rate | Space Use | Build-Out | Available |
| 1st Floor | 2,400 SF | 1-10 Years | $11.00 /SF/YR $0.92 /SF/MO $26,400 /YR $2,200 /MO | Flex | Full Build-Out | Now |
63155 N State Hwy 289 - 1st Floor
- Space
- Size
- Term
- Rental Rate
- Space Use
- Build-Out
- Available
- Lease rate does not include utilities, property expenses or building services
- Space is in Excellent Condition
| Space | Size | Term | Rental Rate | Space Use | Build-Out | Available |
| 1st Floor | 1,500-9,000 SF | Negotiable | $14.00 /SF/YR $1.17 /SF/MO $126,000 /YR $10,500 /MO | Flex | - | Now |
63155 N State Hwy 289 - 1st Floor
- Space
- Size
- Term
- Rental Rate
- Space Use
- Build-Out
- Available
- Lease rate does not include utilities, property expenses or building services
- Space is in Excellent Condition
| Space | Size | Term | Rental Rate | Space Use | Build-Out | Available |
| 1st Floor | 1,500-9,000 SF | Negotiable | $14.00 /SF/YR $1.17 /SF/MO $126,000 /YR $10,500 /MO | Flex | - | Now |
63155 N State Hwy 289 - 1st Floor
- Space
- Size
- Term
- Rental Rate
- Space Use
- Build-Out
- Available
- Lease rate does not include utilities, property expenses or building services
- Space is in Excellent Condition
| Space | Size | Term | Rental Rate | Space Use | Build-Out | Available |
| 1st Floor | 1,680-10,080 SF | Negotiable | $14.00 /SF/YR $1.17 /SF/MO $141,120 /YR $11,760 /MO | Flex | - | Now |
63155 Texas 289 - 1st Floor
63155 N State Hwy 289 - 1st Floor
| Size | 2,400 SF |
| Term | 1-10 Years |
| Rental Rate | $11.00 /SF/YR |
| Space Use | Flex |
| Build-Out | Full Build-Out |
| Available | Now |
Private building with yard space available for lease. This property is located on N State Highway 289 (AKA Preston Rd) just 8 miles north of highway 82, 2 miles north of Highway 120 in Pottsboro and just 2 miles south of Lake Texoma. This property is within the city limits with B-1 Commercial zoning which can be used for Office, Retail or Flex. B-1 zoning Local Business District - Office, Light Retail, and Neighborhood Services. B-1- Local Business District: Office, Light Retail, and Neighborhood Services: Retail, commercial, and office uses developed under the standards of the B-l District are designed to provide a compatible relationship between the B-l development and adjacent residential areas. See Section 13 for B-1- Local Business District- Office, Light Retail, and Neighborhood Services regulations.
- Listed rate may not include certain utilities, building services and property expenses
- Space is in Excellent Condition
- Shower Facilities
- Yard
- 2 Grade level bay doors in the front and back
- Gravel path from the entry
- Frontage on State Highway 289 (Preston Road)
- Flexible zoning
- Electric is individually metered
- Full Bathroom in the shop
63155 N State Hwy 289 - 1st Floor
| Size | 1,500-9,000 SF |
| Term | Negotiable |
| Rental Rate | $14.00 /SF/YR |
| Space Use | Flex |
| Build-Out | - |
| Available | Now |
- Lease rate does not include utilities, property expenses or building services
- Space is in Excellent Condition
63155 N State Hwy 289 - 1st Floor
| Size | 1,500-9,000 SF |
| Term | Negotiable |
| Rental Rate | $14.00 /SF/YR |
| Space Use | Flex |
| Build-Out | - |
| Available | Now |
- Lease rate does not include utilities, property expenses or building services
- Space is in Excellent Condition
63155 Texas 289 - 1st Floor
| Size | 1,680-10,080 SF |
| Term | Negotiable |
| Rental Rate | $14.00 /SF/YR |
| Space Use | Flex |
| Build-Out | - |
| Available | Now |
- Lease rate does not include utilities, property expenses or building services
- Space is in Excellent Condition
Park Overview
Brand New Business Park coming in 2026! This property is located on N State Highway 289 (AKA Preston Rd) just 8 miles north of highway 82, 2 miles north of Highway 120 in Pottsboro and just 2 miles south of Lake Texoma. This property is within the city limits with B-1 Commercial zoning although some B-2 Commerical Zoning uses along with Light Industrial Uses are also acceptable. B-1 Zoning is the Local Business District Zoning for Office, Retail, Light Industrial, Warehouse, and Neighborhood Services. Some automotive uses are acceptable. PrestonBendBusinessPark.com
Presented by
Preston Bend Business Park | Pottsboro, TX 75076
Hmm, there seems to have been an error sending your message. Please try again.
Thanks! Your message was sent.



