Log In/Sign Up
Your email has been sent.
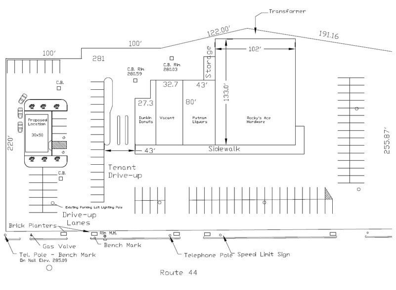
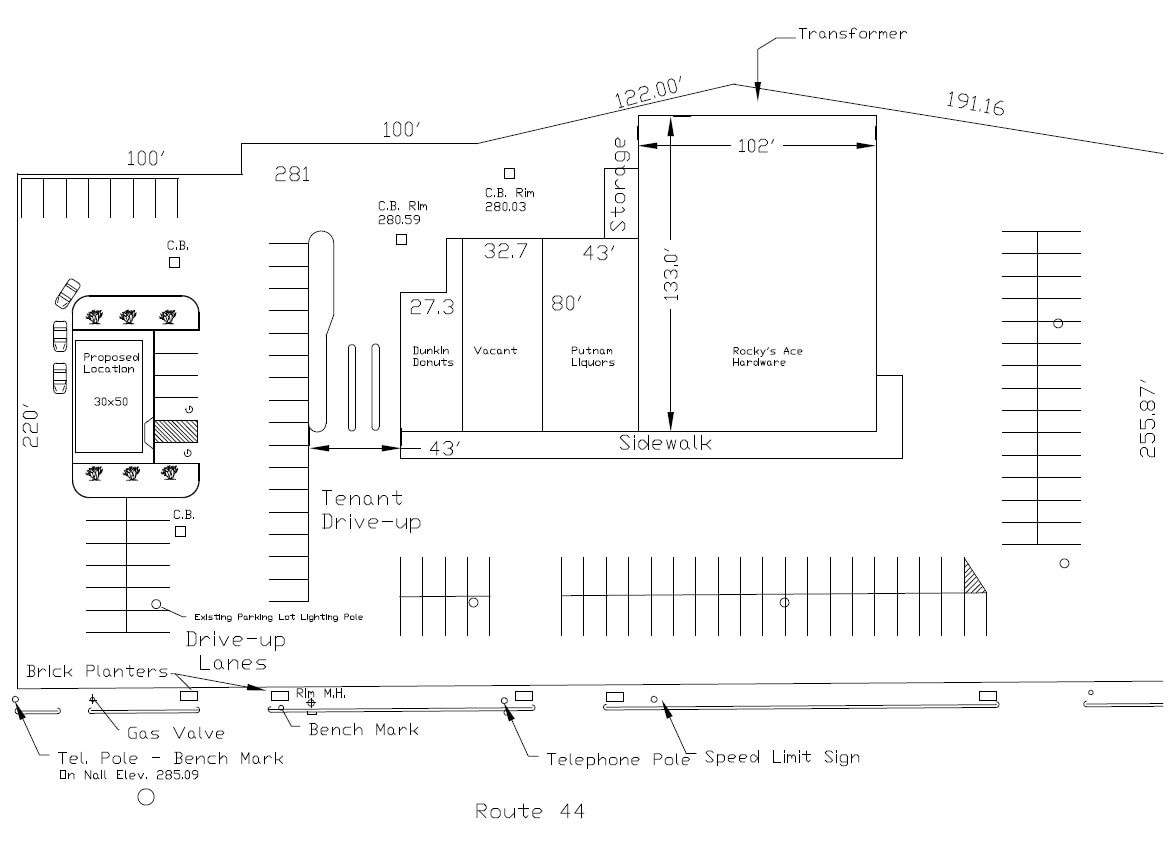
633-639 Putnam Pike 0.51 Acres of Commercial Land for Lease in Smithfield, RI 02828



LOT Available
Display Rental Rate as
| Rental Rate |
|
Lot Size | 0.51 AC |
| Lease Term | Negotiable |
| Rental Rate | |
| Lease Term | Negotiable |
| Lot Size | 0.51 AC |
Additional lot attached to an existing 21,416 sq. ft. shopping plaza located in the village district of Smithfield.
Property Overview
Land lease great lot with lots of potential for commercial use.
Property Facts
1 of 4
Videos
Matterport 3D Exterior
Matterport 3D Tour
Photos
Street View
Street
Map
Presented by
633-639 Putnam Pike
Already a member? Log In
Hmm, there seems to have been an error sending your message. Please try again.
Thanks! Your message was sent.
Your message has been sent!
Activate your LoopNet account now to track properties, get real-time alerts, save time on future inquiries, and more.

