Share This Listing

Message

948 characters remaining

Hmm, there seems to have been an error sending your message. Please try again.

Your email has been sent.

6315 N Center Dr
Norfolk, VA 23502
#20 Rivanna · Office Property For Sale

Property Facts

Sale Type
Investment or Owner User
Property Type
Office
Property Subtype
Medical
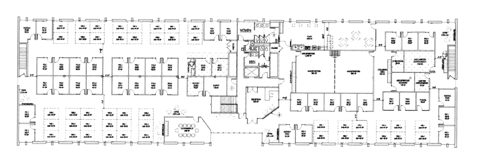
Building Size
35,076 SF
Building Class
B
Year Built/Renovated
1977/2019
Percent Leased
78%
Tenancy
Multiple
Building Height
2 Stories
Typical Floor Size
17,538 SF
Slab To Slab
11’
Building FAR
0.44
Lot Size
1.82 AC
Opportunity Zone
Yes
Zoning
O-1
Parking
137 Spaces (3.91 Spaces per 1,000 SF Leased)

Property Taxes

Property Taxes

Parcel Number
24975280
Land Assessment
$872,600
Improvements Assessment
$1,547,200
Total Assessment
$2,419,800
  • Listing ID: 32243362

  • Date on Market: 6/25/2024

  • Last Updated:

  • Address: 6315 N Center Dr, Norfolk, VA 23502

Link copied
Your LoopNet account has been created!

Please Share Your Feedback

We welcome any feedback on how we can improve LoopNet to better serve your needs.
X
{{ getErrorText(feedbackForm.starRating, "rating") }}
255 character limit ({{ remainingChars() }} charactercharacters remainingover)
{{ getErrorText(feedbackForm.msg, "rating") }}
{{ getErrorText(feedbackForm.fname, "first name") }}
{{ getErrorText(feedbackForm.lname, "last name") }}
{{ getErrorText(feedbackForm.phone, "phone number") }}
{{ getErrorText(feedbackForm.phonex, "phone extension") }}
{{ getErrorText(feedbackForm.email, "email address") }}