Log In/Sign Up
Your email has been sent.
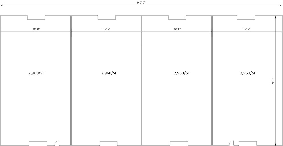
11,840/SF Warehouse For Lease 6374 Swamp St NE 2,960 - 11,840 SF of 4-Star Industrial Space Available in Hartville, OH 44632



Features
Drive In Bays
4
All Available Space(1)
Display Rental Rate as
- Space
- Size
- Term
- Rental Rate
- Space Use
- Condition
- Available
- Listed lease rate plus proportional share of utilities
- Space is in Excellent Condition
- 4 Drive Ins
| Space | Size | Term | Rental Rate | Space Use | Condition | Available |
| 1st Floor | 2,960-11,840 SF | Negotiable | $8.00 /SF/YR $0.67 /SF/MO $94,720 /YR $7,893 /MO | Industrial | - | Now |
1st Floor
| Size |
| 2,960-11,840 SF |
| Term |
| Negotiable |
| Rental Rate |
| $8.00 /SF/YR $0.67 /SF/MO $94,720 /YR $7,893 /MO |
| Space Use |
| Industrial |
| Condition |
| - |
| Available |
| Now |
1st Floor
| Size | 2,960-11,840 SF |
| Term | Negotiable |
| Rental Rate | $8.00 /SF/YR |
| Space Use | Industrial |
| Condition | - |
| Available | Now |
- Listed lease rate plus proportional share of utilities
- 4 Drive Ins
- Space is in Excellent Condition
Property Overview
• New 11,840/SF warehouse available for lease in Hartville. • Currently in shell condition, owner will complete finishes upon lease execution. • Can be split down to 2,960/SF bays, each with two 14’ drive in doors and 18’ clear ceilings. • Restrooms currently available in adjacent building. • Great location close to Route 44 & 619
Warehouse Facility Facts
Building Size
11,840 SF
Lot Size
2.09 AC
Year Built
2024
Zoning
B2
1 1
1 of 4
Videos
Matterport 3D Exterior
Matterport 3D Tour
Photos
Street View
Street
Map
1 of 1
Presented by
11,840/SF Warehouse For Lease | 6374 Swamp St NE
Already a member? Log In
Hmm, there seems to have been an error sending your message. Please try again.
Thanks! Your message was sent.
Your message has been sent!
Activate your LoopNet account now to track properties, get real-time alerts, save time on future inquiries, and more.
