Your email has been sent.
Milestone Square - Office 640 E Eisenhower Blvd 450 - 3,151 SF of Space Available in Loveland, CO 80537



HIGHLIGHTS
- Convenient Access to Highway 287 and I-25
- Private In-Suite Restrooms
- Functional Office Suites
- Monument Signage along Highway 34
- Private Parking and Direct Suite Entrance
- Central Loveland Location
ALL AVAILABLE SPACES(3)
Display Rental Rate as
- SPACE
- SIZE
- TERM
- RENTAL RATE
- SPACE USE
- CONDITION
- AVAILABLE
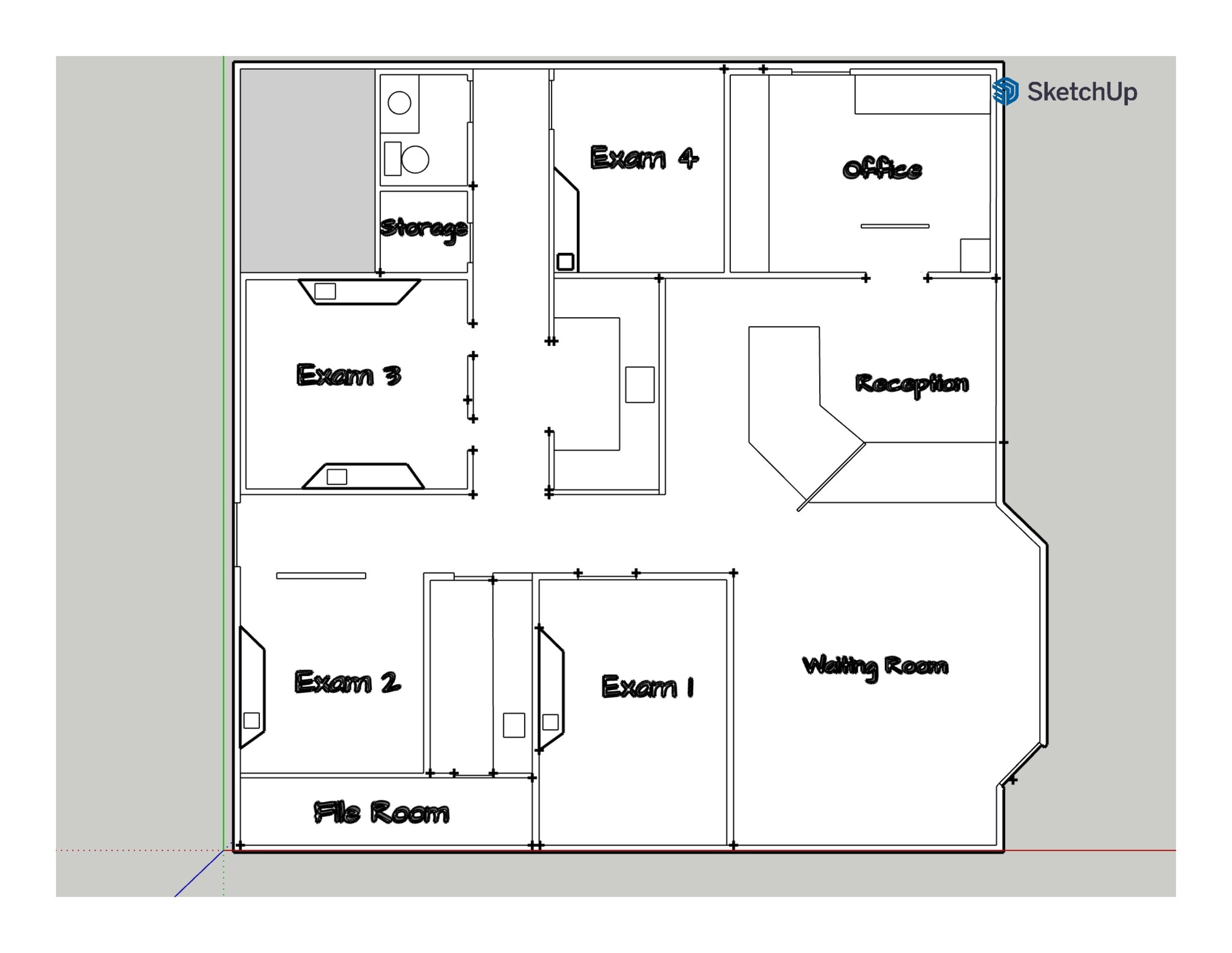
Suite 100 is ideally configured for any medical use, with direct access into the suite from the parking lot, a large and welcoming reception/waiting room, four exam rooms (each with a sink), an administrative office, ample storage, a kitchenette, and an in-suite restroom.
- Lease rate does not include utilities, property expenses or building services
- Fits 5 - 14 People
- Reception Area
- Private Restrooms
- Open-Plan
- Wheelchair Accessible
- Convenient Access to Highway 287 and I-25
- Private In-Suite Restroom
- Large and Welcoming Reception / Waiting Room
- Fully Built-Out as Standard Medical Space
- Partitioned Offices
- Central Air and Heating
- Natural Light
- Smoke Detector
- Four Exam Rooms
- Monument Signage along Highway 34
- Private Parking and Direct Suite Entrance
Suite 140 is ideally configured for any professional office use, with a private entrance into the suite, two executive offices, and an in-suite restroom.
- Lease rate does not include utilities, property expenses or building services
- Fits 4 - 6 People
- Plug & Play
- Private Restrooms
- Central Loveland location along Highway 34
- On-Site Parking
- Convenient Access to Highway 287 and I-25
- Fully Built-Out as Professional Services Office
- 2 Private Offices
- Reception Area
- Natural Light
- Private In-Suite Restrooms
- Seperate Entrance into the Suite
Suite 200 is ideally configured for any professional office use, with three private offices, a large conference room, a reception area, and an in-suite restroom.
- Lease rate does not include utilities, property expenses or building services
- Fits 3 - 8 People
- 1 Conference Room
- Print/Copy Room
- Natural Light
- Professional Office Build-Out
- Monument Signage along Highway 34
- Functional Office Suites
- Fully Built-Out as Law Office
- 3 Private Offices
- Central Air and Heating
- Private Restrooms
- Open-Plan
- Convenient Access to Highway 287 and I-25
- Private In-Suite Restroom
- Central Loveland Location
| Space | Size | Term | Rental Rate | Space Use | Condition | Available |
| 1st Floor, Ste 100 | 1,738 SF | Negotiable | $13.00 /SF/YR $1.08 /SF/MO $22,594 /YR $1,883 /MO | Office/Medical | Full Build-Out | Now |
| 1st Floor, Ste 140 | 450 SF | Negotiable | $13.00 /SF/YR $1.08 /SF/MO $5,850 /YR $487.50 /MO | Office | Full Build-Out | Now |
| 2nd Floor, Ste 200 | 963 SF | Negotiable | $11.00 /SF/YR $0.92 /SF/MO $10,593 /YR $882.75 /MO | Office | Full Build-Out | Now |
1st Floor, Ste 100
| Size |
| 1,738 SF |
| Term |
| Negotiable |
| Rental Rate |
| $13.00 /SF/YR $1.08 /SF/MO $22,594 /YR $1,883 /MO |
| Space Use |
| Office/Medical |
| Condition |
| Full Build-Out |
| Available |
| Now |
1st Floor, Ste 140
| Size |
| 450 SF |
| Term |
| Negotiable |
| Rental Rate |
| $13.00 /SF/YR $1.08 /SF/MO $5,850 /YR $487.50 /MO |
| Space Use |
| Office |
| Condition |
| Full Build-Out |
| Available |
| Now |
2nd Floor, Ste 200
| Size |
| 963 SF |
| Term |
| Negotiable |
| Rental Rate |
| $11.00 /SF/YR $0.92 /SF/MO $10,593 /YR $882.75 /MO |
| Space Use |
| Office |
| Condition |
| Full Build-Out |
| Available |
| Now |
1st Floor, Ste 100
| Size | 1,738 SF |
| Term | Negotiable |
| Rental Rate | $13.00 /SF/YR |
| Space Use | Office/Medical |
| Condition | Full Build-Out |
| Available | Now |
Suite 100 is ideally configured for any medical use, with direct access into the suite from the parking lot, a large and welcoming reception/waiting room, four exam rooms (each with a sink), an administrative office, ample storage, a kitchenette, and an in-suite restroom.
- Lease rate does not include utilities, property expenses or building services
- Fully Built-Out as Standard Medical Space
- Fits 5 - 14 People
- Partitioned Offices
- Reception Area
- Central Air and Heating
- Private Restrooms
- Natural Light
- Open-Plan
- Smoke Detector
- Wheelchair Accessible
- Four Exam Rooms
- Convenient Access to Highway 287 and I-25
- Monument Signage along Highway 34
- Private In-Suite Restroom
- Private Parking and Direct Suite Entrance
- Large and Welcoming Reception / Waiting Room
1st Floor, Ste 140
| Size | 450 SF |
| Term | Negotiable |
| Rental Rate | $13.00 /SF/YR |
| Space Use | Office |
| Condition | Full Build-Out |
| Available | Now |
Suite 140 is ideally configured for any professional office use, with a private entrance into the suite, two executive offices, and an in-suite restroom.
- Lease rate does not include utilities, property expenses or building services
- Fully Built-Out as Professional Services Office
- Fits 4 - 6 People
- 2 Private Offices
- Plug & Play
- Reception Area
- Private Restrooms
- Natural Light
- Central Loveland location along Highway 34
- Private In-Suite Restrooms
- On-Site Parking
- Seperate Entrance into the Suite
- Convenient Access to Highway 287 and I-25
2nd Floor, Ste 200
| Size | 963 SF |
| Term | Negotiable |
| Rental Rate | $11.00 /SF/YR |
| Space Use | Office |
| Condition | Full Build-Out |
| Available | Now |
Suite 200 is ideally configured for any professional office use, with three private offices, a large conference room, a reception area, and an in-suite restroom.
- Lease rate does not include utilities, property expenses or building services
- Fully Built-Out as Law Office
- Fits 3 - 8 People
- 3 Private Offices
- 1 Conference Room
- Central Air and Heating
- Print/Copy Room
- Private Restrooms
- Natural Light
- Open-Plan
- Professional Office Build-Out
- Convenient Access to Highway 287 and I-25
- Monument Signage along Highway 34
- Private In-Suite Restroom
- Functional Office Suites
- Central Loveland Location
PROPERTY OVERVIEW
Located along Highway 34, between downtown Loveland and I-25, these professional and medical office suites offer a blend of convenience and functionality, with excellent visibility and exposure from the monument signage at the property. Suite 100 is ideally configured for any medical use, while Suite 200 is a recently updated professional office. Both suites have in-suite restrooms and shared access to the private parking lot at the property.
- 24 Hour Access
- Controlled Access
- Signage
- Wheelchair Accessible
- Monument Signage
- Air Conditioning
- Balcony
PROPERTY FACTS
SELECT TENANTS
- FLOOR
- TENANT NAME
- INDUSTRY
- 1st
- Alla Interiors
- Professional, Scientific, and Technical Services
- 1st
- Dental Fitness & Spa
- Health Care and Social Assistance
- Unknown
- Farmers Insurance
- Finance and Insurance
- 1st
- Law Office Of Troy D Krenning
- Professional, Scientific, and Technical Services
- Unknown
- Release Chiropractic
- Health Care and Social Assistance
- 1st
- Russell Benefits Group Inc
- Professional, Scientific, and Technical Services
- 1st
- Shalestone Resources LLC
- Professional, Scientific, and Technical Services
- 1st
- Sugar and Spice Counseling
- Services
- Unknown
- Xerex Garage Door Service
- Retailer
Presented by
Milestone Square - Office | 640 E Eisenhower Blvd
Hmm, there seems to have been an error sending your message. Please try again.
Thanks! Your message was sent.









