Log In/Sign Up
Enter your email to login or create a free account
This feature is unavailable at the moment.
We apologize, but the feature you are trying to access is currently unavailable. We are aware of this issue and our team is working hard to resolve the matter.
Please check back in a few minutes. We apologize for the inconvenience.
- LoopNet Team
This Retail Property is no longer advertised on LoopNet.com.
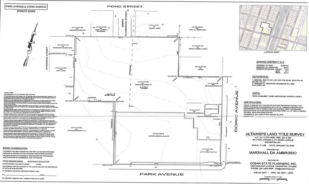
661 Park Ave
Cranston, RI 02910
Retail Property For Sale

Investment Highlights
- Land Sale for Proposed Multifamily/Assisted/Independent Living
- Shovel-ready 1.79 acres
- Liquor and Entertainment License
- Proposed 4-story, 75 multifamily apartment units
- Special Zoning Approval and Special Master Plan Approval received
Property Facts
Property Type
Retail
Property Subtype
Freestanding
Building Size
25,000 SF
Building Class
C
Year Built/Renovated
1946/2014
Tenancy
Multiple
Building Height
1 Story
Building FAR
0.28
Lot Size
2.07 AC
Zoning
C-3 - Commercial development
Parking
100 Spaces (4 Spaces per 1,000 SF Leased)
Frontage
- 278’ on Park Ave
- 141’ on Doric Ave
Amenities
- Bus Line
- Property Manager on Site
- Signage
Property Taxes
| Parcel Number | CRAN-000003-000003-001696 | Improvements Assessment | $681,200 |
| Land Assessment | $470,800 | Total Assessment | $1,152,000 |
Property Taxes
Parcel Number
CRAN-000003-000003-001696
Land Assessment
$470,800
Improvements Assessment
$681,200
Total Assessment
$1,152,000
Listing ID: 36584524
Date on Market: 7/2/2025
Last Updated:
Address: 661 Park Ave, Cranston, RI 02910
The Retail Property at 661 Park Ave, Cranston, RI 02910 is no longer being advertised on LoopNet.com. Contact the broker for information on availability.
RETAIL PROPERTIES IN NEARBY NEIGHBORHOODS
NEARBY LISTINGS
- 36 Exchange Ter, Providence RI
- 385 Westminster St, Providence RI
- 1620 Post Rd, Warwick RI
- 1428 Park Ave, Cranston RI
- 225 Dupont Dr, Providence RI
- 2214 Plainfield Pike, Cranston RI
- 99-101 W Natick Rd, Warwick RI
- 10 Highland Ave, Seekonk MA
- 371-373 Smith St, Providence RI
- 892-894 Oaklawn Ave, Cranston RI
- 161 Benefit St, Providence RI
- 528 Charles St, Providence RI
- 165-167 Poe St, Providence RI
- 577 Warren Ave, East Providence RI
- 295 Huntington Ave, Providence RI
1 of 1
Videos
Matterport 3D Exterior
Matterport 3D Tour
Photos
Street View
Street
Map

Link copied
Your LoopNet account has been created!
Thank you for your feedback.
Please Share Your Feedback
We welcome any feedback on how we can improve LoopNet to better serve your needs.X
{{ getErrorText(feedbackForm.starRating, "rating") }}
255 character limit ({{ remainingChars() }} charactercharacters remainingover)
{{ getErrorText(feedbackForm.msg, "rating") }}
{{ getErrorText(feedbackForm.fname, "first name") }}
{{ getErrorText(feedbackForm.lname, "last name") }}
{{ getErrorText(feedbackForm.phone, "phone number") }}
{{ getErrorText(feedbackForm.phonex, "phone extension") }}
{{ getErrorText(feedbackForm.email, "email address") }}
You can provide feedback any time using the Help button at the top of the page.