Log In/Sign Up
Enter your email to login or create a free account
This feature is unavailable at the moment.
We apologize, but the feature you are trying to access is currently unavailable. We are aware of this issue and our team is working hard to resolve the matter.
Please check back in a few minutes. We apologize for the inconvenience.
- LoopNet Team
This Multifamily Property is no longer advertised on LoopNet.com.
679 Magenta St
Bronx, NY 10467
Multifamily Property For Sale
·
74 Units

Investment Highlights
- Large corner pre-war building occupying a single lot located in the northern section of the Bronx
- The property is in proximity to the Bronx River Parkway, Wiliamsbridge Square, Magenta Playground as well as the 2 & 5 subway lines
Property Facts
| No. Units | 74 | Lot Size | 0.34 AC |
| Property Type | Multifamily | Building Size | 61,800 SF |
| Property Subtype | Apartment | No. Stories | 5 |
| Apartment Style | Mid-Rise | Year Built | 1926 |
| Building Class | C | ||
| Zoning | R6, C8-1 | ||
| No. Units | 74 |
| Property Type | Multifamily |
| Property Subtype | Apartment |
| Apartment Style | Mid-Rise |
| Building Class | C |
| Lot Size | 0.34 AC |
| Building Size | 61,800 SF |
| No. Stories | 5 |
| Year Built | 1926 |
| Zoning | R6, C8-1 |
Amenities
Unit Amenities
- Heating
- Kitchen
- Range
Site Amenities
- Laundry Facilities
Property Taxes
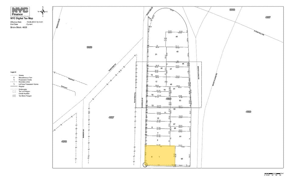
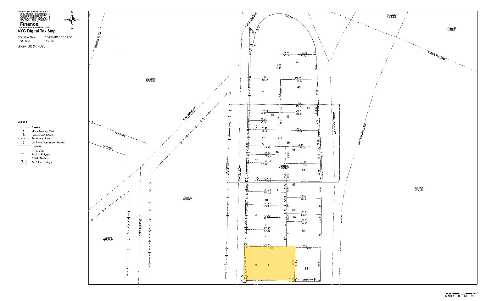
| Parcel Number | 04628-0001 | Improvements Assessment | $1,442,610 |
| Land Assessment | $86,400 | Total Assessment | $1,529,010 |
Property Taxes
Parcel Number
04628-0001
Land Assessment
$86,400
Improvements Assessment
$1,442,610
Total Assessment
$1,529,010
Listing ID: 26310594
Date on Market: 8/2/2022
Last Updated:
Address: 679 Magenta St, Bronx, NY 10467
The Olinville Multifamily Property at 679 Magenta St, Bronx, NY 10467 is no longer being advertised on LoopNet.com. Contact the broker for information on availability.
MULTIFAMILY PROPERTIES IN NEARBY NEIGHBORHOODS
- Central Queens Apartment Buildings
- Upper East Side Apartment Buildings
- Northwestern Queens Apartment Buildings
- Northeast Queens Apartment Buildings
- Harlem Apartment Buildings
- South Bronx Apartment Buildings
- East Harlem Apartment Buildings
- Upper West Side Apartment Buildings
- West Bronx Apartment Buildings
- Upper Manhattan Apartment Buildings
- East Bronx Apartment Buildings
- Midtown East Apartment Buildings
- Southeast Bronx Apartment Buildings
- Westchester County South Apartment Buildings
- Lenox Hill Apartment Buildings
NEARBY LISTINGS
- 3573 Laconia Ave, Bronx NY
- 92 Elliott Ave, Yonkers NY
- 78 W 170th St, Bronx NY
- 2073 Ryer Ave, Bronx NY
- 3910 Seton Ave, Bronx NY
- 421 S Fulton Ave, Mount Vernon NY
- 1684 Banyer Pl, Bronx NY
- 273 W Lincoln Ave, Mount Vernon NY
- 199 Stevens ave, Mount Vernon NY
- 26 Yonkers Ave, Yonkers NY
- 4321-4327 Broadway, New York NY
- 1232 Fulton Ave, Bronx NY
- 907 Summit Ave, Bronx NY
- 3207 Hull Ave, Bronx NY
1 of 1
Videos
Matterport 3D Exterior
Matterport 3D Tour
Photos
Street View
Street
Map

Link copied
Your LoopNet account has been created!
Thank you for your feedback.
Please Share Your Feedback
We welcome any feedback on how we can improve LoopNet to better serve your needs.X
{{ getErrorText(feedbackForm.starRating, "rating") }}
255 character limit ({{ remainingChars() }} charactercharacters remainingover)
{{ getErrorText(feedbackForm.msg, "rating") }}
{{ getErrorText(feedbackForm.fname, "first name") }}
{{ getErrorText(feedbackForm.lname, "last name") }}
{{ getErrorText(feedbackForm.phone, "phone number") }}
{{ getErrorText(feedbackForm.phonex, "phone extension") }}
{{ getErrorText(feedbackForm.email, "email address") }}
You can provide feedback any time using the Help button at the top of the page.