Your email has been sent.
Yellow Brick Loft 68 E 131st St 100 - 5,972 SF of Space Available in New York, NY 10037



HIGHLIGHTS
- Flexible office suites from 100 to 1,400 square feet ideal for professional, creative, and nonprofit uses in a vibrant East Harlem location.
- Recently renovated lobby with new flooring, wall coverings, and lighting creates a clean, professional, and inviting first impression.
- Seven-story elevator building with move-in-ready spaces, hardwood floors, and abundant natural light for a bright, welcoming work environment.
- Excellent transit access near 4/5/6, 2/3 subway lines, and Metro-North at 125th Street ensures convenience for teams and clients.
ALL AVAILABLE SPACES(8)
Display Rental Rate as
- SPACE
- SIZE
- TERM
- RENTAL RATE
- SPACE USE
- CONDITION
- AVAILABLE
Basement space usable for storage.
- Listed rate may not include certain utilities, building services and property expenses
This space features a beautifully-done professional build out that has a reception/working area with a small private office off to the right, and then through a stylish window-paned door opens up into a large separate office/work room with three large windows facing south and space for several people to work in a common area, or open space for group activities. The southern exposure lets in lots of natural light, for a bright cheerful work space. There is one large internal storage/closet.
- Listed rate may not include certain utilities, building services and property expenses
- Mostly Open Floor Plan Layout
- 2 Private Offices
- Reception Area
- Natural Light
- Fully Built-Out as Standard Office
- Fits 3 - 6 People
- Space is in Excellent Condition
- Secure Storage
- High ceiling, wood floor.
Suite 400 has a nicely-done buildout that features a reception/work area and small private office. It has southerly windows that keep the space bright and light. This is the smallest space we have available, making it ideal for a business startup or existing company with small staff wanting good-looking professional work space that fits a tight budget.
- Listed rate may not include certain utilities, building services and property expenses
- Mostly Open Floor Plan Layout
- 1 Private Office
- Reception Area
- Natural Light
- Partially Built-Out as Standard Office
- Fits 1 - 4 People
- Space is in Excellent Condition
- Exposed Ceiling
- Open ceiling, wood floor
3 offices and open space. Sunny south and west facing windows.
- Listed rate may not include certain utilities, building services and property expenses
- Mostly Open Floor Plan Layout
- 3 Private Offices
- Natural Light
- Partially Built-Out as Standard Office
- Fits 4 - 12 People
- Space is in Excellent Condition
- Open ceiling, wood floor
All open space with bright, south-facing windows
- Listed rate may not include certain utilities, building services and property expenses
- Open Floor Plan Layout
- 1 Private Office
- 2 Workstations
- Natural Light
- Fully Built-Out as Standard Office
- Fits 3 - 8 People
- 1 Conference Room
- Space is in Excellent Condition
- Open ceiling, wood floor
3 offices plus reception area and a closet. Bright north and west windows.
- Partially Built-Out as Standard Office
- Fits 3 - 8 People
- Reception Area
- Open ceiling, wood floor
- Mostly Open Floor Plan Layout
- 3 Private Offices
- Secure Storage
One office and open space. Built-ins in open area.
- Listed rate may not include certain utilities, building services and property expenses
- Mostly Open Floor Plan Layout
- 1 Private Office
- Elevator Access
- Partially Built-Out as Standard Office
- Fits 3 - 7 People
- Space is in Excellent Condition
- Open ceiling, wood floor
All open space. 3 bright south-facing windows. Window A/C
- Listed rate may not include certain utilities, building services and property expenses
- Mostly Open Floor Plan Layout
- Space is in Excellent Condition
- Elevator Access
- Open-Plan
- Open ceiling, wood floor
- Fully Built-Out as Standard Office
- Fits 2 - 6 People
- Central Air Conditioning
- Natural Light
- Hardwood Floors
| Space | Size | Term | Rental Rate | Space Use | Condition | Available |
| Basement - B-4 | 100 SF | 1-5 Years | Upon Request Upon Request Upon Request Upon Request | Flex | Shell Space | Now |
| 3rd Floor, Ste 300 | 680 SF | 1-5 Years | Upon Request Upon Request Upon Request Upon Request | Office | Full Build-Out | Now |
| 4th Floor, Ste 400 | 377 SF | 1-5 Years | Upon Request Upon Request Upon Request Upon Request | Office | Partial Build-Out | Now |
| 4th Floor, Ste 402 | 1,400 SF | 1-5 Years | Upon Request Upon Request Upon Request Upon Request | Office | Partial Build-Out | Now |
| 5th Floor, Ste 502 | 955 SF | 1-5 Years | Upon Request Upon Request Upon Request Upon Request | Office | Full Build-Out | Now |
| 5th Floor, Ste 503 | 940 SF | 1-5 Years | Upon Request Upon Request Upon Request Upon Request | Office | Partial Build-Out | Now |
| 6th Floor, Ste 600 | 830 SF | 1-5 Years | Upon Request Upon Request Upon Request Upon Request | Office | Partial Build-Out | Now |
| 7th Floor, Ste 701 | 690 SF | 1-5 Years | Upon Request Upon Request Upon Request Upon Request | Office | Full Build-Out | Now |
Basement - B-4
| Size |
| 100 SF |
| Term |
| 1-5 Years |
| Rental Rate |
| Upon Request Upon Request Upon Request Upon Request |
| Space Use |
| Flex |
| Condition |
| Shell Space |
| Available |
| Now |
3rd Floor, Ste 300
| Size |
| 680 SF |
| Term |
| 1-5 Years |
| Rental Rate |
| Upon Request Upon Request Upon Request Upon Request |
| Space Use |
| Office |
| Condition |
| Full Build-Out |
| Available |
| Now |
4th Floor, Ste 400
| Size |
| 377 SF |
| Term |
| 1-5 Years |
| Rental Rate |
| Upon Request Upon Request Upon Request Upon Request |
| Space Use |
| Office |
| Condition |
| Partial Build-Out |
| Available |
| Now |
4th Floor, Ste 402
| Size |
| 1,400 SF |
| Term |
| 1-5 Years |
| Rental Rate |
| Upon Request Upon Request Upon Request Upon Request |
| Space Use |
| Office |
| Condition |
| Partial Build-Out |
| Available |
| Now |
5th Floor, Ste 502
| Size |
| 955 SF |
| Term |
| 1-5 Years |
| Rental Rate |
| Upon Request Upon Request Upon Request Upon Request |
| Space Use |
| Office |
| Condition |
| Full Build-Out |
| Available |
| Now |
5th Floor, Ste 503
| Size |
| 940 SF |
| Term |
| 1-5 Years |
| Rental Rate |
| Upon Request Upon Request Upon Request Upon Request |
| Space Use |
| Office |
| Condition |
| Partial Build-Out |
| Available |
| Now |
6th Floor, Ste 600
| Size |
| 830 SF |
| Term |
| 1-5 Years |
| Rental Rate |
| Upon Request Upon Request Upon Request Upon Request |
| Space Use |
| Office |
| Condition |
| Partial Build-Out |
| Available |
| Now |
7th Floor, Ste 701
| Size |
| 690 SF |
| Term |
| 1-5 Years |
| Rental Rate |
| Upon Request Upon Request Upon Request Upon Request |
| Space Use |
| Office |
| Condition |
| Full Build-Out |
| Available |
| Now |
Basement - B-4
| Size | 100 SF |
| Term | 1-5 Years |
| Rental Rate | Upon Request |
| Space Use | Flex |
| Condition | Shell Space |
| Available | Now |
Basement space usable for storage.
- Listed rate may not include certain utilities, building services and property expenses
3rd Floor, Ste 300
| Size | 680 SF |
| Term | 1-5 Years |
| Rental Rate | Upon Request |
| Space Use | Office |
| Condition | Full Build-Out |
| Available | Now |
This space features a beautifully-done professional build out that has a reception/working area with a small private office off to the right, and then through a stylish window-paned door opens up into a large separate office/work room with three large windows facing south and space for several people to work in a common area, or open space for group activities. The southern exposure lets in lots of natural light, for a bright cheerful work space. There is one large internal storage/closet.
- Listed rate may not include certain utilities, building services and property expenses
- Fully Built-Out as Standard Office
- Mostly Open Floor Plan Layout
- Fits 3 - 6 People
- 2 Private Offices
- Space is in Excellent Condition
- Reception Area
- Secure Storage
- Natural Light
- High ceiling, wood floor.
4th Floor, Ste 400
| Size | 377 SF |
| Term | 1-5 Years |
| Rental Rate | Upon Request |
| Space Use | Office |
| Condition | Partial Build-Out |
| Available | Now |
Suite 400 has a nicely-done buildout that features a reception/work area and small private office. It has southerly windows that keep the space bright and light. This is the smallest space we have available, making it ideal for a business startup or existing company with small staff wanting good-looking professional work space that fits a tight budget.
- Listed rate may not include certain utilities, building services and property expenses
- Partially Built-Out as Standard Office
- Mostly Open Floor Plan Layout
- Fits 1 - 4 People
- 1 Private Office
- Space is in Excellent Condition
- Reception Area
- Exposed Ceiling
- Natural Light
- Open ceiling, wood floor
4th Floor, Ste 402
| Size | 1,400 SF |
| Term | 1-5 Years |
| Rental Rate | Upon Request |
| Space Use | Office |
| Condition | Partial Build-Out |
| Available | Now |
3 offices and open space. Sunny south and west facing windows.
- Listed rate may not include certain utilities, building services and property expenses
- Partially Built-Out as Standard Office
- Mostly Open Floor Plan Layout
- Fits 4 - 12 People
- 3 Private Offices
- Space is in Excellent Condition
- Natural Light
- Open ceiling, wood floor
5th Floor, Ste 502
| Size | 955 SF |
| Term | 1-5 Years |
| Rental Rate | Upon Request |
| Space Use | Office |
| Condition | Full Build-Out |
| Available | Now |
All open space with bright, south-facing windows
- Listed rate may not include certain utilities, building services and property expenses
- Fully Built-Out as Standard Office
- Open Floor Plan Layout
- Fits 3 - 8 People
- 1 Private Office
- 1 Conference Room
- 2 Workstations
- Space is in Excellent Condition
- Natural Light
- Open ceiling, wood floor
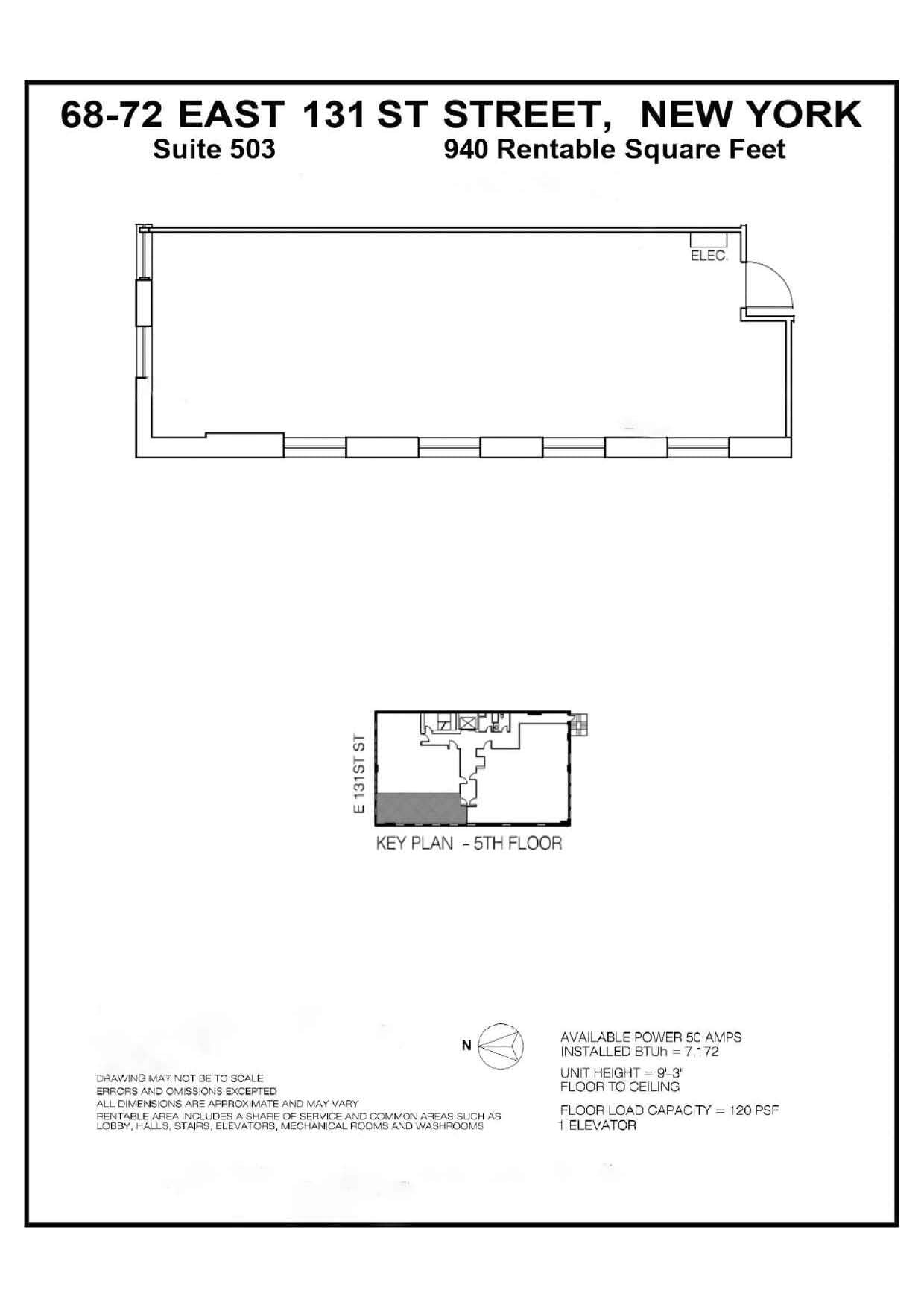
5th Floor, Ste 503
| Size | 940 SF |
| Term | 1-5 Years |
| Rental Rate | Upon Request |
| Space Use | Office |
| Condition | Partial Build-Out |
| Available | Now |
3 offices plus reception area and a closet. Bright north and west windows.
- Partially Built-Out as Standard Office
- Mostly Open Floor Plan Layout
- Fits 3 - 8 People
- 3 Private Offices
- Reception Area
- Secure Storage
- Open ceiling, wood floor
6th Floor, Ste 600
| Size | 830 SF |
| Term | 1-5 Years |
| Rental Rate | Upon Request |
| Space Use | Office |
| Condition | Partial Build-Out |
| Available | Now |
One office and open space. Built-ins in open area.
- Listed rate may not include certain utilities, building services and property expenses
- Partially Built-Out as Standard Office
- Mostly Open Floor Plan Layout
- Fits 3 - 7 People
- 1 Private Office
- Space is in Excellent Condition
- Elevator Access
- Open ceiling, wood floor
7th Floor, Ste 701
| Size | 690 SF |
| Term | 1-5 Years |
| Rental Rate | Upon Request |
| Space Use | Office |
| Condition | Full Build-Out |
| Available | Now |
All open space. 3 bright south-facing windows. Window A/C
- Listed rate may not include certain utilities, building services and property expenses
- Fully Built-Out as Standard Office
- Mostly Open Floor Plan Layout
- Fits 2 - 6 People
- Space is in Excellent Condition
- Central Air Conditioning
- Elevator Access
- Natural Light
- Open-Plan
- Hardwood Floors
- Open ceiling, wood floor
MATTERPORT 3D TOUR
Suite 402 - 1,550SF
PROPERTY OVERVIEW
Yellow Brick Loft, well located in East Harlem at 68 E 131st Street, offers flexible office suites from 100 to 1,400 square feet, ideal for administrative and professional uses including legal, consulting, accounting, creative, and nonprofit operations. This seven-story elevator building features move-in-ready spaces with hardwood floors and abundant natural light. The recently renovated lobby, with new flooring, wall coverings, and light fixtures, creates a clean, welcoming, and professional first impression. The property hosts a curated mix of tenants, including professional firms, prestigious Harlem-based nonprofits, interior designers, art galleries, and more. Tenants enjoy excellent transit access, with the 4/5/6 and 2/3 subway lines and Metro-North at 125th Street just minutes away, ensuring convenience for both teams and clients. Flexible lease options and competitive pricing make Yellow Brick Loft an attractive choice for businesses seeking quality workspace in a dynamic East Harlem location. Please call or inquire for more information.
- Commuter Rail
- Metro/Subway
- Property Manager on Site
PROPERTY FACTS
Presented by
Yellow Brick Loft | 68 E 131st St
Hmm, there seems to have been an error sending your message. Please try again.
Thanks! Your message was sent.




















