Log In/Sign Up
Enter your email to login or create a free account
This feature is unavailable at the moment.
We apologize, but the feature you are trying to access is currently unavailable. We are aware of this issue and our team is working hard to resolve the matter.
Please check back in a few minutes. We apologize for the inconvenience.
- LoopNet Team
This Industrial Property is no longer advertised on LoopNet.com.
6820-6830 E Washington Blvd
Commerce, CA 90040
Industrial Property For Sale

Investment Highlights
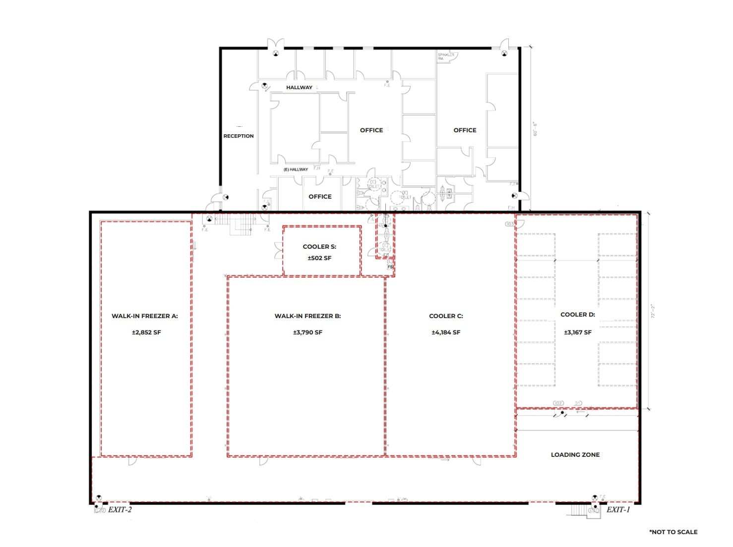
- Fully vacant cold storage facility with± 6,642 SF of Freezer and ±7,853 SF of Cooler
- Four dock-high and two ground-level loading doors for efficient logistics
- Zoned M2, supporting a wide range of industrial and commercial uses
- ±6,750 SF of office with 600A/480V 3-phase power and six restrooms
- Located 1.1 miles from I-5 with direct access to ports and downtown LA
Property Facts
| Property Type | Industrial | Year Built/Renovated | 1962/2007 |
| Property Subtype | Refrigeration/Cold Storage | Tenancy | Single |
| Building Class | C | Parking Ratio | 0.7/1,000 SF |
| Lot Size | 1.37 AC | Clear Ceiling Height | 19’ |
| Rentable Building Area | 28,632 SF | No. Dock-High Doors/Loading | 4 |
| No. Stories | 2 | No. Drive In / Grade-Level Doors | 2 |
| Zoning | M2, City of Commerce - Industrial | ||
| Property Type | Industrial |
| Property Subtype | Refrigeration/Cold Storage |
| Building Class | C |
| Lot Size | 1.37 AC |
| Rentable Building Area | 28,632 SF |
| No. Stories | 2 |
| Year Built/Renovated | 1962/2007 |
| Tenancy | Single |
| Parking Ratio | 0.7/1,000 SF |
| Clear Ceiling Height | 19’ |
| No. Dock-High Doors/Loading | 4 |
| No. Drive In / Grade-Level Doors | 2 |
| Zoning | M2, City of Commerce - Industrial |
Amenities
- Cooler
- Fenced Lot
- Floor Drains
- Freezer (Space)
Property Taxes
| Parcel Number | 6336-004-018 | Improvements Assessment | $1,199,165 |
| Land Assessment | $9,412,914 | Total Assessment | $10,612,079 |
Property Taxes
Parcel Number
6336-004-018
Land Assessment
$9,412,914
Improvements Assessment
$1,199,165
Total Assessment
$10,612,079
Listing ID: 37426897
Date on Market: 8/26/2025
Last Updated:
Address: 6820-6830 E Washington Blvd, Commerce, CA 90040
The Industrial Property at 6820-6830 E Washington Blvd, Commerce, CA 90040 is no longer being advertised on LoopNet.com. Contact the broker for information on availability.
INDUSTRIAL PROPERTIES IN NEARBY NEIGHBORHOODS
NEARBY LISTINGS
- 8731 & 8741 Pioneer Blvd, Santa Fe Springs CA
- 5016 E Olympic Blvd, Los Angeles CA
- 4943-4941 Telegraph Rd, Los Angeles CA
- 6400 Fleet St, Commerce CA
- 3328 E 14th St, Los Angeles CA
- 2501 Davidson Dr, Monterey Park CA
- 3301 Leonis Blvd, Vernon CA
- 3638 Fruitland Ave, Maywood CA
- 6110-6112 Ferguson Dr, Commerce CA
- 3500 Gage Ave, Bell CA
- 5939-5941 Clara St, Bell Gardens CA
1 of 1
Videos
Matterport 3D Exterior
Matterport 3D Tour
Photos
Street View
Street
Map

Link copied
Your LoopNet account has been created!
Thank you for your feedback.
Please Share Your Feedback
We welcome any feedback on how we can improve LoopNet to better serve your needs.X
{{ getErrorText(feedbackForm.starRating, "rating") }}
255 character limit ({{ remainingChars() }} charactercharacters remainingover)
{{ getErrorText(feedbackForm.msg, "rating") }}
{{ getErrorText(feedbackForm.fname, "first name") }}
{{ getErrorText(feedbackForm.lname, "last name") }}
{{ getErrorText(feedbackForm.phone, "phone number") }}
{{ getErrorText(feedbackForm.phonex, "phone extension") }}
{{ getErrorText(feedbackForm.email, "email address") }}
You can provide feedback any time using the Help button at the top of the page.