Log In/Sign Up
Your email has been sent.
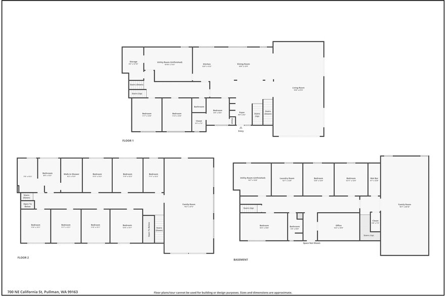
Fraternity on Washington State University 700 NE California St 1 Unit Apartment Building $844,000 ($844,000/Unit) Pullman, WA 99163



INVESTMENT HIGHLIGHTS
- Start Your New Chapter at Washington State University
- Prime 0.37 Acre Corner Lot Zoned R-4 High Density
- Three Bonus Living Spaces + Basketball Court & Deck
EXECUTIVE SUMMARY
Start your new chapter and bring Greek Life back to this prime location on WSU’s College Hill. Situated at the corner of California and Monroe, this two-story plus basement fraternity house offers 8,234 square feet of living and gathering space designed to accommodate up to 43 members. Inside you’ll find 13 bedrooms, 3 bathrooms, and three large bonus living areas, providing plenty of room for study, dining, and social activities. Set on 0.37 acres across two parcels, the property features amenities that support the Greek experience, including a basketball court, spacious deck, and multiple common areas for community events. Zoned R-4 High Density Residential, the site offers flexibility for future development or continued use as student housing. With excellent visibility, generous frontage, and walking access to campus, this is a rare chance to secure a landmark property on Greek Row. Be sure to view the 3D Virtual Tour Matterport Tour and floorplans on this listing.
PROPERTY FACTS
| Price | $844,000 | Apartment Style | Low-Rise |
| Price Per Unit | $844,000 | Building Class | C |
| Sale Type | Investment | Lot Size | 0.23 AC |
| No. Units | 1 | Building Size | 8,234 SF |
| Property Type | Multifamily | No. Stories | 2 |
| Property Subtype | Apartment | Year Built | 1961 |
| Price | $844,000 |
| Price Per Unit | $844,000 |
| Sale Type | Investment |
| No. Units | 1 |
| Property Type | Multifamily |
| Property Subtype | Apartment |
| Apartment Style | Low-Rise |
| Building Class | C |
| Lot Size | 0.23 AC |
| Building Size | 8,234 SF |
| No. Stories | 2 |
| Year Built | 1961 |
AMENITIES
UNIT AMENITIES
- Kitchen
- Refrigerator
- Oven
- Range
- Tub/Shower
- Basement
- Freezer
SITE AMENITIES
- 24 Hour Access
- Controlled Access
- Online Services
- Walk-Up
- Smoke Detector
1 1
Walk Score®
Very Walkable (76)
PROPERTY TAXES
| Parcel Number | 111700000070000 | Improvements Assessment | $353,980 |
| Land Assessment | $90,600 | Total Assessment | $444,580 |
PROPERTY TAXES
Parcel Number
111700000070000
Land Assessment
$90,600
Improvements Assessment
$353,980
Total Assessment
$444,580
1 of 34
VIDEOS
MATTERPORT 3D EXTERIOR
MATTERPORT 3D TOUR
PHOTOS
STREET VIEW
STREET
MAP
1 of 1
Presented by
Fraternity on Washington State University | 700 NE California St
Already a member? Log In
Hmm, there seems to have been an error sending your message. Please try again.
Thanks! Your message was sent.
