Your email has been sent.
Highlights
- Brand-new medical office building offers exceptional space, including touchless features.
- Excellent commuter access to I-70 and I-270 and surrounded by convenient restaurants, retail, and complementary medical facilities.
- Located in Frederick, Maryland, a charming community within an hour of Baltimore, DC, and Gettysburg.
- Locally owned and managed by local real estate professionals offering experienced assistance with space design and construction.
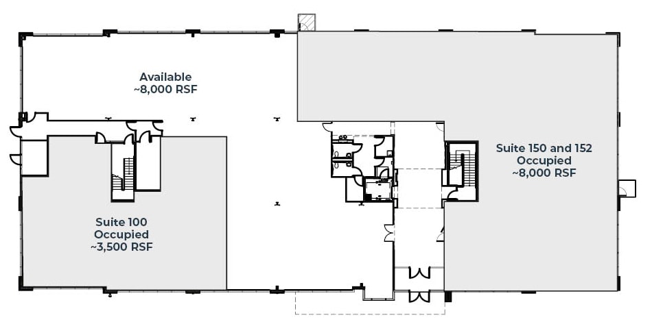
All Available Space(1)
Display Rental Rate as
- Space
- Size
- Term
- Rental Rate
- Space Use
- Build-Out
- Available
Fully customizable build-out available.
- Lease rate does not include utilities, property expenses or building services
- Office intensive layout
- Space is in Excellent Condition
- Fully Built-Out as Standard Office
- Fits 5 - 66 People
| Space | Size | Term | Rental Rate | Space Use | Build-Out | Available |
| 1st Floor | 2,000-8,200 SF | 5-15 Years | $22.00 /SF/YR $1.83 /SF/MO $180,400 /YR $15,033 /MO | Office/Medical | Full Build-Out | Now |
1st Floor
| Size |
| 2,000-8,200 SF |
| Term |
| 5-15 Years |
| Rental Rate |
| $22.00 /SF/YR $1.83 /SF/MO $180,400 /YR $15,033 /MO |
| Space Use |
| Office/Medical |
| Build-Out |
| Full Build-Out |
| Available |
| Now |
1st Floor
| Size | 2,000-8,200 SF |
| Term | 5-15 Years |
| Rental Rate | $22.00 /SF/YR |
| Space Use | Office/Medical |
| Build-Out | Full Build-Out |
| Available | Now |
Fully customizable build-out available.
- Lease rate does not include utilities, property expenses or building services
- Fully Built-Out as Standard Office
- Office intensive layout
- Fits 5 - 66 People
- Space is in Excellent Condition
Matterport 3D Tour
Property Overview
7100 Guilford Drive is a brand-new, Class A professional and medical office building in Frederick, Maryland. Designed during the COVID pandemic, this property has been designed and built by local real estate professionals and includes state-of-the-art touchless features. This property features flexible suite sizes from 2,000 SF to 20,000 SF, allowing for move-in-ready options and the opportunity to utilize the local and experienced landlord to assist in space design and construction. The property includes touchless or minimal touch features throughout, including auto door openers and toe-kick elevator buttons. Tenants will appreciate the ample parking, ease of access, and move-in ready condition. Excellent building signage is available. Situated at the I-270 and I-70 interchange, employees and patients will find commuting a breeze. Tenants and visitors to the property will enjoy the ease of access to nearby complementary medical, retail, and food services. Neighboring medical tenants include the Pediatric Dental Center of Frederick, Kaiser Permanente Frederick Medical Center, Children's National Frederick, and Frederick Health Hospital. Located less than an hour from Baltimore, DC, and Gettysburg, 7100 Guilford is well-positioned to capture the expanding patient base and attract office talent in the greater region. Frederick sits between the Catoctin Mountains and the Monocacy River in Central Maryland. Frederick is Maryland's second-largest city and home of Fort Detrick, the town's largest employer. With a prominent Civil War past and a spot on the I-270 tech corridor, Frederick blends history and technology for a uniquely modern experience.
Property Facts
Marketing Brochure
Nearby Amenities
Hospitals |
|||
|---|---|---|---|
| Frederick Health Hospital | Acute Care | 7 min drive | 2.4 mi |
Restaurants |
|||
|---|---|---|---|
| Delhi 6 Indian Cuisine & Lounge | Indian | $$ | 12 min walk |
| Old Dominion Grill And Sushi | Grill | $$ | 12 min walk |
| Mariachi Restaurant | Mexican | $$ | 15 min walk |
| Blues BBQ Co | Barbecue | $$ | 20 min walk |
| The Roasthouse Pub | Pub Food | $$$ | 23 min walk |
| Analia's Cafe | Cafe | $$ | 42 min walk |
Retail |
||
|---|---|---|
| Sally Beauty | Health & Beauty Aids | 4 min walk |
| GameStop | Game Store | 4 min walk |
| Five Below | Dollar/Variety/Thrift | 4 min walk |
| Chuck E. Cheese | Arcade | 5 min walk |
| Kohl's | Dept Store | 6 min walk |
Leasing Agent
Justin Ausherman, Founder and President
Since 2002, Justin has worked to develop transformational real estate solutions. Through the years, his insights into brokerage and property management conglomerated to form Frederick’s premier commercial real estate firm that streamlines property investment and management.
As a lifelong resident of Frederick, Justin has a firm grasp on market conditions, and he uses his insight to find the ideal solution that impacts his clients’ bottom line. From design to legal document review, the AushCo president ensures real estate success from start to finish.
Presented by
7100 Guilford Dr
Hmm, there seems to have been an error sending your message. Please try again.
Thanks! Your message was sent.







