Enter your email to login or create a free account
This feature is unavailable at the moment.
We apologize, but the feature you are trying to access is currently unavailable. We are aware of this issue and our team is working hard to resolve the matter.
Please check back in a few minutes. We apologize for the inconvenience.
- LoopNet Team
711 Hartman Station Rd
Lancaster, PA 17601
Farmhouse Office Space · Property For Lease

Highlights
- 7 minutes from 30
- Stand Alone Office space
- 10 minutes from 222
- 5 specious rooms for office meeting space
Property Overview
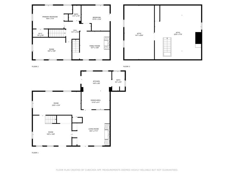
Renovated Farmhouse offers 4 large offices up stairs, all are large enough to be shared and have ample built in filing cabinets for storage. Down stairs the greeting area is equip with a front desk with built in filing system. Also downstairs is a large conference room, large break room area with full kitchen and full bathroom that has an exit to grass area overlooking pond. There is a bonus room down stairs with the original fireplace for the farm house that would be great for customer meetings. In 2025 a new metal roof was put on and extra recess lighting was installed throughout the entire house. There are 5 coinvent parking spaces right out front of the door as well as additional parking in the top lot of needed. There would be a separate CAM rate at $5 a square foot a year would cover property maintenance (landscaping and snow removal), electric, water, heating/cooling, sewer and trash. The 3rd level of the barn is an event space large enough for 100 with table and chairs included in the rental of the space. This space has a projector and is great for large meetings, full company meetings or holiday events.
Property Facts
Listing ID: 36867832
Date on Market: 7/22/2025
Last Updated:
Address: 711 Hartman Station Rd, Lancaster, PA 17601
The Outer Lancaster Office Property at 711 Hartman Station Rd, Lancaster, PA 17601 is no longer being advertised on LoopNet.com. Contact the broker for information on availability.
OFFICE PROPERTIES IN NEARBY NEIGHBORHOODS
- Ephrata/Brownstown/Leola Commercial Real Estate Properties
- Strasburg/Paradise/Gap Commercial Real Estate Properties
- Downtown Lancaster Commercial Real Estate Properties
- Stadium District Commercial Real Estate Properties
- Musser Park Commercial Real Estate Properties
- Ross Commercial Real Estate Properties
- East Side Commercial Real Estate Properties
- College Park Commercial Real Estate Properties
NEARBY LISTINGS
- 1004 New Holland Ave, Lancaster PA
- 59 N Queen St, Lancaster PA
- 2630 Lincoln E hwy, Ronks PA
- 1828 Freedom Rd, Lancaster PA
- 1842 Colonial Village Ln, Lancaster PA
- 101 N Queen St, Lancaster PA
- 480 New Holland Ave, Lancaster PA
- 2090 E Lincoln Hwy, Lancaster PA
- 1837 William Penn Way, Lancaster PA
- 44 N Queen St, Lancaster PA
- 1816 Olde Homestead Ln, Lancaster PA
- 512 N Market St, Lancaster PA
- 1860 Charter Ln, Lancaster PA
- 2599 Old Philadelphia Pike, Bird In Hand PA
- 1740 Hempstead Rd, Lancaster PA
