Log In/Sign Up
Your email has been sent.
Hardy Street 723 Hardy St 1,953 SF 100% Leased Office Building Hattiesburg, MS 39401 $235,000 ($120.33/SF)



EXECUTIVE SUMMARY
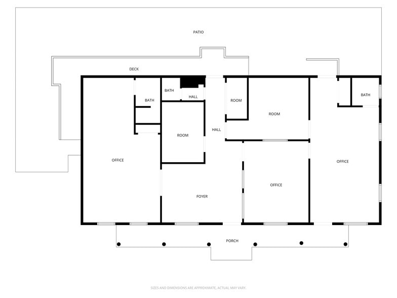
Well maintained commercial building currently set up for office use. Offering 5 offices spaces, a welcome lobby, 3 bathrooms, and 2 kitchenettes. The layout provides flexibility for a variety of business types, from professional services to small teams needing dedicated workspaces. For the past two years, the property has produced $2,500 per month in rental income, making it an appealing option for both investors and owner-operators. Buyer and buyers agent to verify all information.
PROPERTY FACTS
Sale Type
Investment or Owner User
Property Type
Building Size
1,953 SF
Building Class
C
Year Built/Renovated
1985/2025
Price
$235,000
Price Per SF
$120.33
Percent Leased
100%
Building Height
1 Story
Typical Floor Size
1,953 SF
Building FAR
0.26
Lot Size
0.17 AC
Zoning
B2 - Neighborhood Business District
1 1
PROPERTY TAXES
| Parcel Number | 2-029K-09-427.00 | Improvements Assessment | $0 |
| Land Assessment | $0 | Total Assessment | $15,584 |
PROPERTY TAXES
Parcel Number
2-029K-09-427.00
Land Assessment
$0
Improvements Assessment
$0
Total Assessment
$15,584
1 of 18
VIDEOS
MATTERPORT 3D EXTERIOR
MATTERPORT 3D TOUR
PHOTOS
STREET VIEW
STREET
MAP
1 of 1
Presented by
Hardy Street | 723 Hardy St
Already a member? Log In
Hmm, there seems to have been an error sending your message. Please try again.
Thanks! Your message was sent.
