Your email has been sent.
OCC Financial Plaza 7250 Metro Blvd 251 SF of Office Space Available in Edina, MN 55439



Highlights
- 9 Mile Creek, Large Windows, Small Office Suites, Updated Buildout.
All Available Space(1)
Display Rental Rate as
- Space
- Size
- Term
- Rental Rate
- Space Use
- Build-Out
- Available
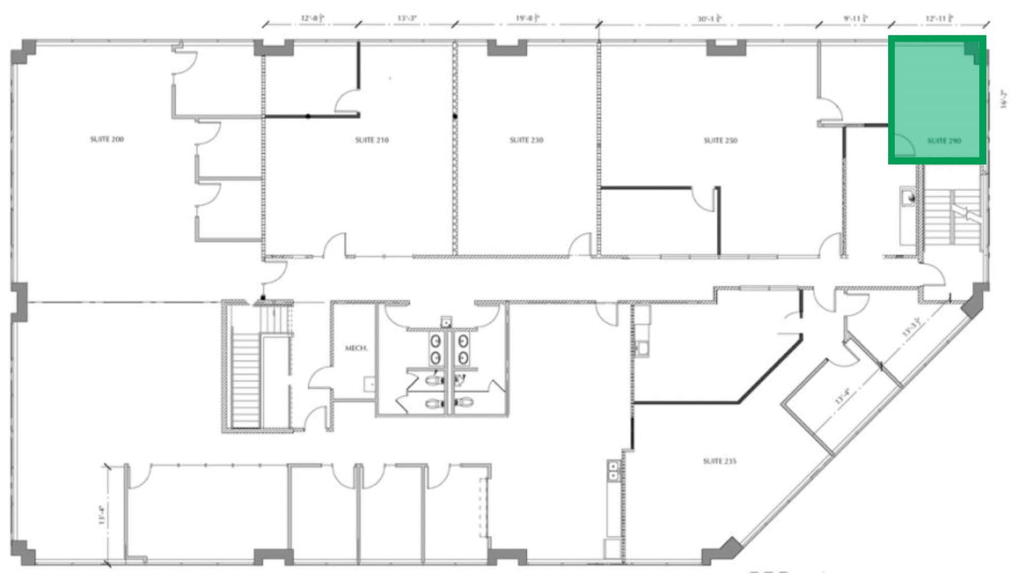
Corner Office Suite surrounded by 9 Mile Creek trees in Edina. Leased Premise is approximately 12' x 16'. A Large Private Office ONLY. The monthly rent is $1,200 per month, gross. The breakroom is a common feature of the building. The building's primary tenant is Guided Health, a group of Health Suites for independent Health professionals with full-time support.
- Fully Built-Out as Standard Office
- Fits 1 - 3 People
- Plug & Play
- Wi-Fi Connectivity
- High Ceilings
- Natural Light
- Emergency Lighting
- Open-Plan
- Open Floor Plan Layout
- Finished Ceilings: 10’
- Central Air and Heating
- Corner Space
- Exposed Ceiling
- After Hours HVAC Available
- Common Parts WC Facilities
- Corner office. $1,200 per month gross
| Space | Size | Term | Rental Rate | Space Use | Build-Out | Available |
| 2nd Floor, Ste 290 | 251 SF | 1 Year | Upon Request Upon Request Upon Request Upon Request | Office | Full Build-Out | Now |
2nd Floor, Ste 290
| Size |
| 251 SF |
| Term |
| 1 Year |
| Rental Rate |
| Upon Request Upon Request Upon Request Upon Request |
| Space Use |
| Office |
| Build-Out |
| Full Build-Out |
| Available |
| Now |
2nd Floor, Ste 290
| Size | 251 SF |
| Term | 1 Year |
| Rental Rate | Upon Request |
| Space Use | Office |
| Build-Out | Full Build-Out |
| Available | Now |
Corner Office Suite surrounded by 9 Mile Creek trees in Edina. Leased Premise is approximately 12' x 16'. A Large Private Office ONLY. The monthly rent is $1,200 per month, gross. The breakroom is a common feature of the building. The building's primary tenant is Guided Health, a group of Health Suites for independent Health professionals with full-time support.
- Fully Built-Out as Standard Office
- Open Floor Plan Layout
- Fits 1 - 3 People
- Finished Ceilings: 10’
- Plug & Play
- Central Air and Heating
- Wi-Fi Connectivity
- Corner Space
- High Ceilings
- Exposed Ceiling
- Natural Light
- After Hours HVAC Available
- Emergency Lighting
- Common Parts WC Facilities
- Open-Plan
- Corner office. $1,200 per month gross
Property Overview
Large windows throughout this building provide abundant natural light and great views of 9 Mile Creek to updated small office suites. This building provides fixed monthly GROSS rental rates. All offices have fresh paint and high ceilings with clean lighting.
- 24 Hour Access
- Property Manager on Site
- Waterfront
- Outdoor Seating
- Air Conditioning
- Fiber Optic Internet
Property Facts
Presented by
Guided Commercial Real Estate
OCC Financial Plaza | 7250 Metro Blvd
Hmm, there seems to have been an error sending your message. Please try again.
Thanks! Your message was sent.



