Enter your email to login or create a free account
This feature is unavailable at the moment.
We apologize, but the feature you are trying to access is currently unavailable. We are aware of this issue and our team is working hard to resolve the matter.
Please check back in a few minutes. We apologize for the inconvenience.
- LoopNet Team
727 S Delaware Dr
Apache Junction, AZ 85220
Land For Sale
·
1.42 AC

Property Facts
| Property Type | Land | Proposed Use | Multifamily |
| Property Subtype | Residential | Total Lot Size | 1.42 AC |
| Zoning | B-1 - B-1 (CUP Approved P-22-75-CUP) Use Permit to allow for Multi Family | ||
| Property Type | Land |
| Property Subtype | Residential |
| Proposed Use | Multifamily |
| Total Lot Size | 1.42 AC |
| Zoning | B-1 - B-1 (CUP Approved P-22-75-CUP) Use Permit to allow for Multi Family |
Description
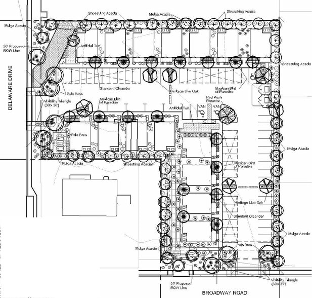
Property Overview Cielo Duplex Apartments is a new 30-unit workforce housing development located at 727 S. Delaware Drive, Apache Junction, Arizona. The project spans 1.4 acres and features 15 modern duplex buildings with 2-bedroom, 2-bath floor plans of approximately 816 SF each. Designed for long-term rental stability, Cielo delivers attainable living in a market with limited new multifamily supply and strong renter demand.
Listing ID: 38202564
Date on Market: 10/24/2025
Last Updated:
Address: 727 S Delaware Dr, Apache Junction, AZ 85220
The Land Property at 727 S Delaware Dr, Apache Junction, AZ 85220 is no longer being advertised on LoopNet.com. Contact the broker for information on availability.
LAND PROPERTIES IN NEARBY NEIGHBORHOODS
NEARBY LISTINGS
- 11415 E Apache Trl, Apache Junction AZ
- 935 S Ironwood Dr, Apache Junction AZ
- Ironwood Dr, Apache Junction AZ
- 1955 Old West Hwy, Apache Junction AZ
- W SWC Southern Ave & Signal Butte, Mesa AZ
- NEC Southern Ave & Ironwood Dr, Apache Junction AZ
- 10917 E Main Rd, Mesa AZ
- 161 S Delaware Dr, Apache Junction AZ
- 3848 S Tomahawk Rd, Apache Junction AZ
- 2090 W Superstition Blvd, Apache Junction AZ
- 3131 Lost Dutchman Dr, Apache Junction AZ
- SWC Signal Butte Rd & Hampton Ave, Mesa AZ
- NEC Apache Trail & N Thunderbird Dr, Apache Junction AZ
- Meridian and Apache Trail, Apache Junction AZ
- 220 S Delaware Dr, Apache Junction AZ
