Your email has been sent.
Park Highlights
- Pacific Guardian Center is a designed plaza with open courtyard spaces, meticulously landscaped with an aqua feature that enhances the aesthetic.
- Tenants enjoy on-site management, planning, and leasing, 24-hour security, and engineering, maintenance, and janitorial professionals.
- Business made easy with on-site services including a sit-down cafe, convenience store, mail drop off, auto detailing, banks, dental, and optical.
- Integrated workspaces that offer tenants a variety of telecommunication provider options and services, plus shared conference and meeting rooms.
- Experience efficient elevator technology designed to seamlessly transport employees to offices in seconds via the sophisticated destination dispatch.
- Convenient access to Honolulu's Central Business District, the federal, state, and county government offices, and all of the various courts.
Park Facts
All Available Spaces(55)
Display Rental Rate as
- Space
- Size
- Term
- Rental Rate
- Space Use
- Build-Out
- Available
Queen Street frontage with multiple private offices and kitchenette. High quality finishes
- Lease rate does not include certain property expenses
- Fits 7 - 22 People
- 1 Conference Room
- Space is in Excellent Condition
- Secure Storage
- Mauka Tower lobby staff entrance for easy access
- Fully Built-Out as Professional Services Office
- 4 Private Offices
- 1 Workstation
- Kitchen
- Queen Street Frontage
Full floor availability with perimeter of offices, kitchen, reception area, conference room and open space
- Partially Built-Out as Standard Office
- Fits 37 - 118 People
- Space is in Excellent Condition
- Reception Area
- Open Floor Plan Layout
- 1 Conference Room
- Can be combined with additional space(s) for up to 29,292 SF of adjacent space
- Kitchen
Full floor availability ready for space plan
- Partially Built-Out as Standard Office
- Fits 37 - 117 People
- Open Floor Plan Layout
- Can be combined with additional space(s) for up to 29,292 SF of adjacent space
Multiple offices with open area and available water
- Fully Built-Out as Standard Office
- Fits 9 - 50 People
- Office intensive layout
- Can be combined with additional space(s) for up to 15,059 SF of adjacent space
7 offices, reception area, conference room, and kitchen
- Fully Built-Out as Standard Office
- 7 Private Offices
- Reception Area
- Fits 7 - 85 People
- Can be combined with additional space(s) for up to 15,059 SF of adjacent space
- Kitchen
Open layout
- Fully Built-Out as Standard Office
- Fits 7 - 50 People
- Open-Plan
- Open Floor Plan Layout
- Can be combined with additional space(s) for up to 15,059 SF of adjacent space
- Fits 14 - 43 People
Multiple private offices, conference room, kitchenette.
- Fully Built-Out as Standard Office
- Fits 19 - 59 People
- Office intensive layout
1 private office, open space, and kitchen
- Fully Built-Out as Standard Office
- 1 Private Office
- Fits 7 - 23 People
- Kitchen
4 windowed private office.
- Fully Built-Out as Standard Office
- Fits 4 - 10 People
- Office intensive layout
1 private office, open space and water
- Fully Built-Out as Standard Office
- Fits 8 - 25 People
- Open-Plan
- Mostly Open Floor Plan Layout
- 1 Private Office
Open layout.
- Partially Built-Out as Standard Office
- Fits 6 - 19 People
- Open Floor Plan Layout
- Open-Plan
7 private offices
- Fully Built-Out as Standard Office
- Fits 9 - 32 People
- 1 Conference Room
- Plug & Play
- Mostly Open Floor Plan Layout
- 7 Private Offices
- 25 Workstations
- Kitchen
Former law office with multiple private offices and conference rooms.
- Fully Built-Out as Law Office
- Fits 14 - 43 People
- Office intensive layout
Shell space
- Open Floor Plan Layout
Former law office with dense window line office build out.
- Partially Built-Out as Standard Office
- Fits 25 - 78 People
- Reception Area
- Mostly Open Floor Plan Layout
- Conference Rooms
2 private window offices, interior conference room, and storage.
- Fully Built-Out as Standard Office
- 2 Private Offices
- Storage
- Fits 4 - 11 People
- Conference Rooms
| Space | Size | Term | Rental Rate | Space Use | Build-Out | Available |
| 1st Floor, Ste 116 | 2,725 SF | Negotiable | Upon Request Upon Request Upon Request Upon Request | Office | Full Build-Out | Now |
| 11th Floor, Ste 1100 | 14,719 SF | Negotiable | Upon Request Upon Request Upon Request Upon Request | Office | Partial Build-Out | Now |
| 12th Floor, Ste 1200 | 14,573 SF | Negotiable | Upon Request Upon Request Upon Request Upon Request | Office | Partial Build-Out | Now |
| 14th Floor, Ste 1400 | 3,479-6,149 SF | Negotiable | Upon Request Upon Request Upon Request Upon Request | Office | Full Build-Out | Now |
| 14th Floor, Ste 1430 | 2,761 SF | Negotiable | Upon Request Upon Request Upon Request Upon Request | Office | Full Build-Out | Now |
| 14th Floor, Ste 1480 | 2,670-6,149 SF | Negotiable | Upon Request Upon Request Upon Request Upon Request | Office | Full Build-Out | Now |
| 15th Floor, Ste 1550 | 5,324 SF | Negotiable | Upon Request Upon Request Upon Request Upon Request | Office | - | August 01, 2026 |
| 15th Floor, Ste 1590 | 7,345 SF | Negotiable | Upon Request Upon Request Upon Request Upon Request | Office | Full Build-Out | June 01, 2026 |
| 16th Floor, Ste 1655 | 2,756 SF | Negotiable | Upon Request Upon Request Upon Request Upon Request | Office | Full Build-Out | Now |
| 18th Floor, Ste 1860 | 1,226 SF | Negotiable | Upon Request Upon Request Upon Request Upon Request | Office | Full Build-Out | Now |
| 18th Floor, Ste 1880 | 3,079 SF | Negotiable | Upon Request Upon Request Upon Request Upon Request | Office | Full Build-Out | Now |
| 19th Floor, Ste 1960 | 2,326 SF | Negotiable | Upon Request Upon Request Upon Request Upon Request | Office | Partial Build-Out | Now |
| 21st Floor, Ste 2115 | 3,924 SF | Negotiable | Upon Request Upon Request Upon Request Upon Request | Office | Full Build-Out | Now |
| 23rd Floor, Ste 2340 | 5,271 SF | Negotiable | Upon Request Upon Request Upon Request Upon Request | Office | Full Build-Out | Now |
| 23rd Floor, Ste 2390 | 5,159 SF | Negotiable | Upon Request Upon Request Upon Request Upon Request | Office | Shell Space | Now |
| 24th Floor, Ste 2400 | 9,714 SF | Negotiable | Upon Request Upon Request Upon Request Upon Request | Office | Partial Build-Out | Now |
| 27th Floor, Ste 2790 | 1,285 SF | Negotiable | Upon Request Upon Request Upon Request Upon Request | Office | Full Build-Out | Now |
737 Bishop St - 1st Floor - Ste 116
737 Bishop St - 11th Floor - Ste 1100
737 Bishop St - 12th Floor - Ste 1200
737 Bishop St - 14th Floor - Ste 1400
737 Bishop St - 14th Floor - Ste 1430
737 Bishop St - 14th Floor - Ste 1480
737 Bishop St - 15th Floor - Ste 1550
737 Bishop St - 15th Floor - Ste 1590
737 Bishop St - 16th Floor - Ste 1655
737 Bishop St - 18th Floor - Ste 1860
737 Bishop St - 18th Floor - Ste 1880
737 Bishop St - 19th Floor - Ste 1960
737 Bishop St - 21st Floor - Ste 2115
737 Bishop St - 23rd Floor - Ste 2340
737 Bishop St - 23rd Floor - Ste 2390
737 Bishop St - 24th Floor - Ste 2400
737 Bishop St - 27th Floor - Ste 2790
- Space
- Size
- Term
- Rental Rate
- Space Use
- Build-Out
- Available
Ground floor space with courtyard frontage. 2 private office and open area.
- Fully Built-Out as Standard Office
- 2 Private Offices
- Fits 4 - 11 People
Nimitz/Alakea frontage. 1 private office and kitchenette
- Partially Built-Out as Standard Office
- Fits 3 - 9 People
- Kitchen
- Mostly Open Floor Plan Layout
- 1 Private Office
Courtyard entrance and includes water
- Partially Built-Out as Standard Office
- Fits 3 - 9 People
- Finished Ceilings: 9’6”
- Reception Area
- Open Floor Plan Layout
- 1 Conference Room
- Space In Need of Renovation
3 private offices with a large conference room
- Fully Built-Out as Standard Office
- 3 Private Offices
- Fits 4 - 10 People
- 1 Conference Room
3 private offices, 2 large conference rooms, kitchenette.
- Fully Built-Out as Standard Office
- 3 Private Offices
- Kitchen
- Fits 7 - 23 People
- 2 Conference Rooms
3 large private offices and open area.
- Fully Built-Out as Standard Office
- 3 Private Offices
- Fits 4 - 10 People
3 private offices
- Fully Built-Out as Standard Office
- 3 Private Offices
- Fits 4 - 13 People
Open layout
- Fully Built-Out as Standard Office
- Fits 3 - 7 People
- Open Floor Plan Layout
Open layout
- Fully Built-Out as Standard Office
- Fits 10 - 46 People
- Open Floor Plan Layout
5 window line offices and 2 interior offices.
- Fully Built-Out as Standard Office
- 7 Private Offices
- Fits 6 - 46 People
- Natural Light
3 window offices and 2 interior offices.
- Fully Built-Out as Standard Office
- 5 Private Offices
- Fits 4 - 12 People
- Natural Light
Private offices, conference rooms, kitchenette with excellent views. Turn key opportunity with furniture included
- Fully Built-Out as Standard Office
- Fits 15 - 47 People
- Office intensive layout
- Fully Built-Out as Standard Office
- Fits 12 - 37 People
- Mostly Open Floor Plan Layout
3 private offices and kitchenette
- Fully Built-Out as Standard Office
- 3 Private Offices
- Fits 4 - 10 People
Upgraded suite with ocean front view, 2 private offices, new paint, carpet and LED lights, and kitchenette
- Mostly Open Floor Plan Layout
- 2 Private Offices
- Kitchen
- Fits 4 - 12 People
- Space is in Excellent Condition
Multiple private offices, conference room, and kitchenette with excellent views.
- Fully Built-Out as Standard Office
- Fits 17 - 54 People
- Office intensive layout
6 private offices, conference room, and storage room.
- Fully Built-Out as Standard Office
- 6 Private Offices
- Fits 8 - 24 People
- 1 Conference Room
5 private offices, kitchen, conference room, and open space
- Fully Built-Out as Standard Office
- 5 Private Offices
- Kitchen
- Fits 4 - 12 People
- Conference Rooms
3 offices and open area
- Fully Built-Out as Standard Office
- 3 Private Offices
- Fits 3 - 9 People
Open layout
- Fully Built-Out as Standard Office
- Fits 4 - 11 People
- Open-Plan
- Open Floor Plan Layout
- Space is in Excellent Condition
1 private office and an open layout.
- Fully Built-Out as Standard Office
- Fits 4 - 11 People
- Open-Plan
- Mostly Open Floor Plan Layout
- 1 Private Office
High floor, Corner unit, open area with new ceiling and lights
- Open Floor Plan Layout
- Corner Space
- Space In Need of Renovation
Full floor opportunity.
- Partially Built-Out as Standard Office
- Fits 38 - 120 People
- Mostly Open Floor Plan Layout
| Space | Size | Term | Rental Rate | Space Use | Build-Out | Available |
| 1st Floor, Ste 151 | 1,330 SF | Negotiable | Upon Request Upon Request Upon Request Upon Request | Office/Retail | Full Build-Out | Now |
| 1st Floor, Ste 170 | 1,090 SF | Negotiable | Upon Request Upon Request Upon Request Upon Request | Office | Partial Build-Out | Now |
| 1st Floor, Ste 181 | 1,041 SF | Negotiable | Upon Request Upon Request Upon Request Upon Request | Office | Partial Build-Out | Now |
| 11th Floor, Ste 1170 | 1,244 SF | Negotiable | Upon Request Upon Request Upon Request Upon Request | Office | Full Build-Out | Now |
| 12th Floor, Ste 1270 | 2,800 SF | Negotiable | Upon Request Upon Request Upon Request Upon Request | Office | Full Build-Out | Now |
| 12th Floor, Ste 1290 | 1,220 SF | Negotiable | Upon Request Upon Request Upon Request Upon Request | Office | Full Build-Out | Now |
| 15th Floor, Ste 1520 | 1,549 SF | Negotiable | Upon Request Upon Request Upon Request Upon Request | Office | Full Build-Out | Now |
| 15th Floor, Ste 1565 | 863 SF | Negotiable | Upon Request Upon Request Upon Request Upon Request | Office | Full Build-Out | Now |
| 17th Floor, Ste 1750 | 3,695-5,706 SF | Negotiable | Upon Request Upon Request Upon Request Upon Request | Office | Full Build-Out | Now |
| 17th Floor, Ste 1770 | 2,011-5,706 SF | Negotiable | Upon Request Upon Request Upon Request Upon Request | Office | Full Build-Out | Now |
| 18th Floor, Ste 1872 | 1,432 SF | Negotiable | Upon Request Upon Request Upon Request Upon Request | Office | Full Build-Out | Now |
| 20th Floor, Ste 2000 | 5,767 SF | Negotiable | Upon Request Upon Request Upon Request Upon Request | Office | Full Build-Out | August 01, 2026 |
| 21st Floor, Ste 2100/2120 | 4,565 SF | Negotiable | Upon Request Upon Request Upon Request Upon Request | Office | Full Build-Out | July 01, 2026 |
| 21st Floor, Ste 2160 | 1,223 SF | Negotiable | Upon Request Upon Request Upon Request Upon Request | Office | Full Build-Out | Now |
| 23rd Floor, Ste 2300 | 1,496 SF | Negotiable | Upon Request Upon Request Upon Request Upon Request | Office | Spec Suite | Now |
| 23rd Floor, Ste 2301 | 6,724 SF | Negotiable | Upon Request Upon Request Upon Request Upon Request | Office | Full Build-Out | Now |
| 23rd Floor, Ste 2357 | 2,882 SF | Negotiable | Upon Request Upon Request Upon Request Upon Request | Office | Full Build-Out | Now |
| 23rd Floor, Ste 2390 | 1,464 SF | Negotiable | Upon Request Upon Request Upon Request Upon Request | Office | Full Build-Out | Now |
| 25th Floor, Ste 2555 | 1,042 SF | Negotiable | Upon Request Upon Request Upon Request Upon Request | Office | Full Build-Out | Now |
| 25th Floor, Ste 2560 | 1,342 SF | Negotiable | Upon Request Upon Request Upon Request Upon Request | Office | Full Build-Out | Now |
| 29th Floor, Ste 2945 | 1,346 SF | Negotiable | Upon Request Upon Request Upon Request Upon Request | Office | Full Build-Out | Now |
| 29th Floor, Ste 2950 | 3,597 SF | Negotiable | Upon Request Upon Request Upon Request Upon Request | Office | Shell Space | Now |
| 30th Floor, Ste 3000 | 14,994 SF | Negotiable | Upon Request Upon Request Upon Request Upon Request | Office | Partial Build-Out | January 01, 2027 |
733 Bishop St - 1st Floor - Ste 151
733 Bishop St - 1st Floor - Ste 170
733 Bishop St - 1st Floor - Ste 181
733 Bishop St - 11th Floor - Ste 1170
733 Bishop St - 12th Floor - Ste 1270
733 Bishop St - 12th Floor - Ste 1290
733 Bishop St - 15th Floor - Ste 1520
733 Bishop St - 15th Floor - Ste 1565
733 Bishop St - 17th Floor - Ste 1750
733 Bishop St - 17th Floor - Ste 1770
733 Bishop St - 18th Floor - Ste 1872
733 Bishop St - 20th Floor - Ste 2000
733 Bishop St - 21st Floor - Ste 2100/2120
733 Bishop St - 21st Floor - Ste 2160
733 Bishop St - 23rd Floor - Ste 2300
733 Bishop St - 23rd Floor - Ste 2301
733 Bishop St - 23rd Floor - Ste 2357
733 Bishop St - 23rd Floor - Ste 2390
733 Bishop St - 25th Floor - Ste 2555
733 Bishop St - 25th Floor - Ste 2560
733 Bishop St - 29th Floor - Ste 2945
733 Bishop St - 29th Floor - Ste 2950
733 Bishop St - 30th Floor - Ste 3000
- Space
- Size
- Term
- Rental Rate
- Space Use
- Build-Out
- Available
Open office
- Fully Built-Out as Standard Office
- Fits 1 - 3 People
- Open Floor Plan Layout
- Open-Plan
Open layout. Available May 1, 2025
- Fully Built-Out as Standard Office
- Fits 2 - 5 People
- Open Floor Plan Layout
3 private offices, conference room, kitchenette, and open work area
- Fully Built-Out as Standard Office
- 3 Private Offices
- Kitchen
- Fits 8 - 26 People
- 1 Conference Room
1 private office
- Fully Built-Out as Standard Office
- 1 Private Office
- Fits 2 - 4 People
Open layout
- Fully Built-Out as Standard Office
- Fits 2 - 4 People
- Open Floor Plan Layout
1 private office with a sink
- Fully Built-Out as Standard Office
- 1 Private Office
- Fits 1 - 3 People
Conference room, open work areas, and kitchnette
- Fits 6 - 17 People
- 1 Conference Room
- Reception Area
- Secure Storage
- 3 Private Offices
- 1 Workstation
- Kitchen
- Natural Light
Open layout
- Fully Built-Out as Standard Office
- Fits 5 - 14 People
- Open Floor Plan Layout
1 private office
- Fully Built-Out as Standard Office
- 1 Private Office
- Reception Area
- Fits 2 - 5 People
- Space is in Excellent Condition
- Garden views
- Fully Built-Out as Standard Office
- Fits 2 - 6 People
- Mostly Open Floor Plan Layout
- Fully Built-Out as Standard Office
- Fits 3 - 7 People
- Mostly Open Floor Plan Layout
Large open area and 1 private office.
- Fully Built-Out as Standard Office
- Fits 1 - 3 People
- Mostly Open Floor Plan Layout
- 1 Private Office
1 private office
- Fully Built-Out as Standard Office
- Fits 2 - 6 People
- Office intensive layout
- Fully Built-Out as Standard Office
- Fits 2 - 6 People
- Office intensive layout
Available 3/1/26
- Partially Built-Out as Standard Office
- Fits 2 - 6 People
- Office intensive layout
| Space | Size | Term | Rental Rate | Space Use | Build-Out | Available |
| 2nd Floor, Ste 215 | 314 SF | Negotiable | Upon Request Upon Request Upon Request Upon Request | Office | Full Build-Out | Now |
| 2nd Floor, Ste 226 | 532 SF | Negotiable | Upon Request Upon Request Upon Request Upon Request | Office | Full Build-Out | Now |
| 2nd Floor, Ste 230 | 3,170 SF | Negotiable | Upon Request Upon Request Upon Request Upon Request | Office | Full Build-Out | Now |
| 2nd Floor, Ste 233 | 499 SF | Negotiable | Upon Request Upon Request Upon Request Upon Request | Office | Full Build-Out | Now |
| 3rd Floor, Ste 314 | 402 SF | Negotiable | Upon Request Upon Request Upon Request Upon Request | Office | Full Build-Out | Now |
| 3rd Floor, Ste 315 | 317 SF | Negotiable | Upon Request Upon Request Upon Request Upon Request | Office | Full Build-Out | Now |
| 3rd Floor, Ste 330 | 2,092 SF | Negotiable | Upon Request Upon Request Upon Request Upon Request | Office | Spec Suite | Now |
| 3rd Floor, Ste 333 | 1,669 SF | Negotiable | Upon Request Upon Request Upon Request Upon Request | Office | Full Build-Out | Now |
| 3rd Floor, Ste 336 | 533 SF | Negotiable | Upon Request Upon Request Upon Request Upon Request | Office | Full Build-Out | Now |
| 3rd Floor, Ste 337 | 710 SF | Negotiable | Upon Request Upon Request Upon Request Upon Request | Office | Full Build-Out | June 01, 2026 |
| 4th Floor, Ste 400 | 841 SF | Negotiable | Upon Request Upon Request Upon Request Upon Request | Office | Full Build-Out | Now |
| 4th Floor, Ste 415 | 316 SF | Negotiable | Upon Request Upon Request Upon Request Upon Request | Office | Full Build-Out | Now |
| 4th Floor, Ste 432 | 632 SF | Negotiable | Upon Request Upon Request Upon Request Upon Request | Office | Full Build-Out | Now |
| 4th Floor, Ste 437 | 716 SF | Negotiable | Upon Request Upon Request Upon Request Upon Request | Office | Full Build-Out | Now |
| 4th Floor, Ste 437 | 716 SF | Negotiable | Upon Request Upon Request Upon Request Upon Request | Office | Partial Build-Out | Now |
735 Bishop St - 2nd Floor - Ste 215
735 Bishop St - 2nd Floor - Ste 226
735 Bishop St - 2nd Floor - Ste 230
735 Bishop St - 2nd Floor - Ste 233
735 Bishop St - 3rd Floor - Ste 314
735 Bishop St - 3rd Floor - Ste 315
735 Bishop St - 3rd Floor - Ste 330
735 Bishop St - 3rd Floor - Ste 333
735 Bishop St - 3rd Floor - Ste 336
735 Bishop St - 3rd Floor - Ste 337
735 Bishop St - 4th Floor - Ste 400
735 Bishop St - 4th Floor - Ste 415
735 Bishop St - 4th Floor - Ste 432
735 Bishop St - 4th Floor - Ste 437
735 Bishop St - 4th Floor - Ste 437
737 Bishop St - 1st Floor - Ste 116
| Size | 2,725 SF |
| Term | Negotiable |
| Rental Rate | Upon Request |
| Space Use | Office |
| Build-Out | Full Build-Out |
| Available | Now |
Queen Street frontage with multiple private offices and kitchenette. High quality finishes
- Lease rate does not include certain property expenses
- Fully Built-Out as Professional Services Office
- Fits 7 - 22 People
- 4 Private Offices
- 1 Conference Room
- 1 Workstation
- Space is in Excellent Condition
- Kitchen
- Secure Storage
- Queen Street Frontage
- Mauka Tower lobby staff entrance for easy access
737 Bishop St - 11th Floor - Ste 1100
| Size | 14,719 SF |
| Term | Negotiable |
| Rental Rate | Upon Request |
| Space Use | Office |
| Build-Out | Partial Build-Out |
| Available | Now |
Full floor availability with perimeter of offices, kitchen, reception area, conference room and open space
- Partially Built-Out as Standard Office
- Open Floor Plan Layout
- Fits 37 - 118 People
- 1 Conference Room
- Space is in Excellent Condition
- Can be combined with additional space(s) for up to 29,292 SF of adjacent space
- Reception Area
- Kitchen
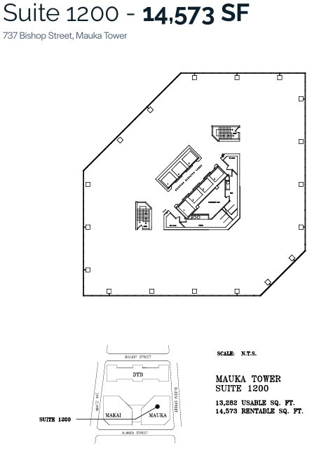
737 Bishop St - 12th Floor - Ste 1200
| Size | 14,573 SF |
| Term | Negotiable |
| Rental Rate | Upon Request |
| Space Use | Office |
| Build-Out | Partial Build-Out |
| Available | Now |
Full floor availability ready for space plan
- Partially Built-Out as Standard Office
- Open Floor Plan Layout
- Fits 37 - 117 People
- Can be combined with additional space(s) for up to 29,292 SF of adjacent space
737 Bishop St - 14th Floor - Ste 1400
| Size | 3,479-6,149 SF |
| Term | Negotiable |
| Rental Rate | Upon Request |
| Space Use | Office |
| Build-Out | Full Build-Out |
| Available | Now |
Multiple offices with open area and available water
- Fully Built-Out as Standard Office
- Office intensive layout
- Fits 9 - 50 People
- Can be combined with additional space(s) for up to 15,059 SF of adjacent space
737 Bishop St - 14th Floor - Ste 1430
| Size | 2,761 SF |
| Term | Negotiable |
| Rental Rate | Upon Request |
| Space Use | Office |
| Build-Out | Full Build-Out |
| Available | Now |
7 offices, reception area, conference room, and kitchen
- Fully Built-Out as Standard Office
- Fits 7 - 85 People
- 7 Private Offices
- Can be combined with additional space(s) for up to 15,059 SF of adjacent space
- Reception Area
- Kitchen
737 Bishop St - 14th Floor - Ste 1480
| Size | 2,670-6,149 SF |
| Term | Negotiable |
| Rental Rate | Upon Request |
| Space Use | Office |
| Build-Out | Full Build-Out |
| Available | Now |
Open layout
- Fully Built-Out as Standard Office
- Open Floor Plan Layout
- Fits 7 - 50 People
- Can be combined with additional space(s) for up to 15,059 SF of adjacent space
- Open-Plan
737 Bishop St - 15th Floor - Ste 1550
| Size | 5,324 SF |
| Term | Negotiable |
| Rental Rate | Upon Request |
| Space Use | Office |
| Build-Out | - |
| Available | August 01, 2026 |
- Fits 14 - 43 People
737 Bishop St - 15th Floor - Ste 1590
| Size | 7,345 SF |
| Term | Negotiable |
| Rental Rate | Upon Request |
| Space Use | Office |
| Build-Out | Full Build-Out |
| Available | June 01, 2026 |
Multiple private offices, conference room, kitchenette.
- Fully Built-Out as Standard Office
- Office intensive layout
- Fits 19 - 59 People
737 Bishop St - 16th Floor - Ste 1655
| Size | 2,756 SF |
| Term | Negotiable |
| Rental Rate | Upon Request |
| Space Use | Office |
| Build-Out | Full Build-Out |
| Available | Now |
1 private office, open space, and kitchen
- Fully Built-Out as Standard Office
- Fits 7 - 23 People
- 1 Private Office
- Kitchen
737 Bishop St - 18th Floor - Ste 1860
| Size | 1,226 SF |
| Term | Negotiable |
| Rental Rate | Upon Request |
| Space Use | Office |
| Build-Out | Full Build-Out |
| Available | Now |
4 windowed private office.
- Fully Built-Out as Standard Office
- Office intensive layout
- Fits 4 - 10 People
737 Bishop St - 18th Floor - Ste 1880
| Size | 3,079 SF |
| Term | Negotiable |
| Rental Rate | Upon Request |
| Space Use | Office |
| Build-Out | Full Build-Out |
| Available | Now |
1 private office, open space and water
- Fully Built-Out as Standard Office
- Mostly Open Floor Plan Layout
- Fits 8 - 25 People
- 1 Private Office
- Open-Plan
737 Bishop St - 19th Floor - Ste 1960
| Size | 2,326 SF |
| Term | Negotiable |
| Rental Rate | Upon Request |
| Space Use | Office |
| Build-Out | Partial Build-Out |
| Available | Now |
Open layout.
- Partially Built-Out as Standard Office
- Open Floor Plan Layout
- Fits 6 - 19 People
- Open-Plan
737 Bishop St - 21st Floor - Ste 2115
| Size | 3,924 SF |
| Term | Negotiable |
| Rental Rate | Upon Request |
| Space Use | Office |
| Build-Out | Full Build-Out |
| Available | Now |
7 private offices
- Fully Built-Out as Standard Office
- Mostly Open Floor Plan Layout
- Fits 9 - 32 People
- 7 Private Offices
- 1 Conference Room
- 25 Workstations
- Plug & Play
- Kitchen
737 Bishop St - 23rd Floor - Ste 2340
| Size | 5,271 SF |
| Term | Negotiable |
| Rental Rate | Upon Request |
| Space Use | Office |
| Build-Out | Full Build-Out |
| Available | Now |
Former law office with multiple private offices and conference rooms.
- Fully Built-Out as Law Office
- Office intensive layout
- Fits 14 - 43 People
737 Bishop St - 23rd Floor - Ste 2390
| Size | 5,159 SF |
| Term | Negotiable |
| Rental Rate | Upon Request |
| Space Use | Office |
| Build-Out | Shell Space |
| Available | Now |
Shell space
- Open Floor Plan Layout
737 Bishop St - 24th Floor - Ste 2400
| Size | 9,714 SF |
| Term | Negotiable |
| Rental Rate | Upon Request |
| Space Use | Office |
| Build-Out | Partial Build-Out |
| Available | Now |
Former law office with dense window line office build out.
- Partially Built-Out as Standard Office
- Mostly Open Floor Plan Layout
- Fits 25 - 78 People
- Conference Rooms
- Reception Area
737 Bishop St - 27th Floor - Ste 2790
| Size | 1,285 SF |
| Term | Negotiable |
| Rental Rate | Upon Request |
| Space Use | Office |
| Build-Out | Full Build-Out |
| Available | Now |
2 private window offices, interior conference room, and storage.
- Fully Built-Out as Standard Office
- Fits 4 - 11 People
- 2 Private Offices
- Conference Rooms
- Storage
733 Bishop St - 1st Floor - Ste 151
| Size | 1,330 SF |
| Term | Negotiable |
| Rental Rate | Upon Request |
| Space Use | Office/Retail |
| Build-Out | Full Build-Out |
| Available | Now |
Ground floor space with courtyard frontage. 2 private office and open area.
- Fully Built-Out as Standard Office
- Fits 4 - 11 People
- 2 Private Offices
733 Bishop St - 1st Floor - Ste 170
| Size | 1,090 SF |
| Term | Negotiable |
| Rental Rate | Upon Request |
| Space Use | Office |
| Build-Out | Partial Build-Out |
| Available | Now |
Nimitz/Alakea frontage. 1 private office and kitchenette
- Partially Built-Out as Standard Office
- Mostly Open Floor Plan Layout
- Fits 3 - 9 People
- 1 Private Office
- Kitchen
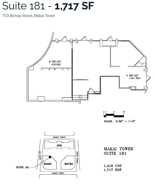
733 Bishop St - 1st Floor - Ste 181
| Size | 1,041 SF |
| Term | Negotiable |
| Rental Rate | Upon Request |
| Space Use | Office |
| Build-Out | Partial Build-Out |
| Available | Now |
Courtyard entrance and includes water
- Partially Built-Out as Standard Office
- Open Floor Plan Layout
- Fits 3 - 9 People
- 1 Conference Room
- Finished Ceilings: 9’6”
- Space In Need of Renovation
- Reception Area
733 Bishop St - 11th Floor - Ste 1170
| Size | 1,244 SF |
| Term | Negotiable |
| Rental Rate | Upon Request |
| Space Use | Office |
| Build-Out | Full Build-Out |
| Available | Now |
3 private offices with a large conference room
- Fully Built-Out as Standard Office
- Fits 4 - 10 People
- 3 Private Offices
- 1 Conference Room
733 Bishop St - 12th Floor - Ste 1270
| Size | 2,800 SF |
| Term | Negotiable |
| Rental Rate | Upon Request |
| Space Use | Office |
| Build-Out | Full Build-Out |
| Available | Now |
3 private offices, 2 large conference rooms, kitchenette.
- Fully Built-Out as Standard Office
- Fits 7 - 23 People
- 3 Private Offices
- 2 Conference Rooms
- Kitchen
733 Bishop St - 12th Floor - Ste 1290
| Size | 1,220 SF |
| Term | Negotiable |
| Rental Rate | Upon Request |
| Space Use | Office |
| Build-Out | Full Build-Out |
| Available | Now |
3 large private offices and open area.
- Fully Built-Out as Standard Office
- Fits 4 - 10 People
- 3 Private Offices
733 Bishop St - 15th Floor - Ste 1520
| Size | 1,549 SF |
| Term | Negotiable |
| Rental Rate | Upon Request |
| Space Use | Office |
| Build-Out | Full Build-Out |
| Available | Now |
3 private offices
- Fully Built-Out as Standard Office
- Fits 4 - 13 People
- 3 Private Offices
733 Bishop St - 15th Floor - Ste 1565
| Size | 863 SF |
| Term | Negotiable |
| Rental Rate | Upon Request |
| Space Use | Office |
| Build-Out | Full Build-Out |
| Available | Now |
Open layout
- Fully Built-Out as Standard Office
- Open Floor Plan Layout
- Fits 3 - 7 People
733 Bishop St - 17th Floor - Ste 1750
| Size | 3,695-5,706 SF |
| Term | Negotiable |
| Rental Rate | Upon Request |
| Space Use | Office |
| Build-Out | Full Build-Out |
| Available | Now |
Open layout
- Fully Built-Out as Standard Office
- Open Floor Plan Layout
- Fits 10 - 46 People
733 Bishop St - 17th Floor - Ste 1770
| Size | 2,011-5,706 SF |
| Term | Negotiable |
| Rental Rate | Upon Request |
| Space Use | Office |
| Build-Out | Full Build-Out |
| Available | Now |
5 window line offices and 2 interior offices.
- Fully Built-Out as Standard Office
- Fits 6 - 46 People
- 7 Private Offices
- Natural Light
733 Bishop St - 18th Floor - Ste 1872
| Size | 1,432 SF |
| Term | Negotiable |
| Rental Rate | Upon Request |
| Space Use | Office |
| Build-Out | Full Build-Out |
| Available | Now |
3 window offices and 2 interior offices.
- Fully Built-Out as Standard Office
- Fits 4 - 12 People
- 5 Private Offices
- Natural Light
733 Bishop St - 20th Floor - Ste 2000
| Size | 5,767 SF |
| Term | Negotiable |
| Rental Rate | Upon Request |
| Space Use | Office |
| Build-Out | Full Build-Out |
| Available | August 01, 2026 |
Private offices, conference rooms, kitchenette with excellent views. Turn key opportunity with furniture included
- Fully Built-Out as Standard Office
- Office intensive layout
- Fits 15 - 47 People
733 Bishop St - 21st Floor - Ste 2100/2120
| Size | 4,565 SF |
| Term | Negotiable |
| Rental Rate | Upon Request |
| Space Use | Office |
| Build-Out | Full Build-Out |
| Available | July 01, 2026 |
- Fully Built-Out as Standard Office
- Mostly Open Floor Plan Layout
- Fits 12 - 37 People
733 Bishop St - 21st Floor - Ste 2160
| Size | 1,223 SF |
| Term | Negotiable |
| Rental Rate | Upon Request |
| Space Use | Office |
| Build-Out | Full Build-Out |
| Available | Now |
3 private offices and kitchenette
- Fully Built-Out as Standard Office
- Fits 4 - 10 People
- 3 Private Offices
733 Bishop St - 23rd Floor - Ste 2300
| Size | 1,496 SF |
| Term | Negotiable |
| Rental Rate | Upon Request |
| Space Use | Office |
| Build-Out | Spec Suite |
| Available | Now |
Upgraded suite with ocean front view, 2 private offices, new paint, carpet and LED lights, and kitchenette
- Mostly Open Floor Plan Layout
- Fits 4 - 12 People
- 2 Private Offices
- Space is in Excellent Condition
- Kitchen
733 Bishop St - 23rd Floor - Ste 2301
| Size | 6,724 SF |
| Term | Negotiable |
| Rental Rate | Upon Request |
| Space Use | Office |
| Build-Out | Full Build-Out |
| Available | Now |
Multiple private offices, conference room, and kitchenette with excellent views.
- Fully Built-Out as Standard Office
- Office intensive layout
- Fits 17 - 54 People
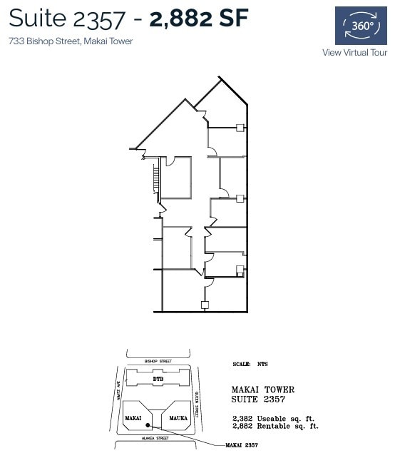
733 Bishop St - 23rd Floor - Ste 2357
| Size | 2,882 SF |
| Term | Negotiable |
| Rental Rate | Upon Request |
| Space Use | Office |
| Build-Out | Full Build-Out |
| Available | Now |
6 private offices, conference room, and storage room.
- Fully Built-Out as Standard Office
- Fits 8 - 24 People
- 6 Private Offices
- 1 Conference Room
733 Bishop St - 23rd Floor - Ste 2390
| Size | 1,464 SF |
| Term | Negotiable |
| Rental Rate | Upon Request |
| Space Use | Office |
| Build-Out | Full Build-Out |
| Available | Now |
5 private offices, kitchen, conference room, and open space
- Fully Built-Out as Standard Office
- Fits 4 - 12 People
- 5 Private Offices
- Conference Rooms
- Kitchen
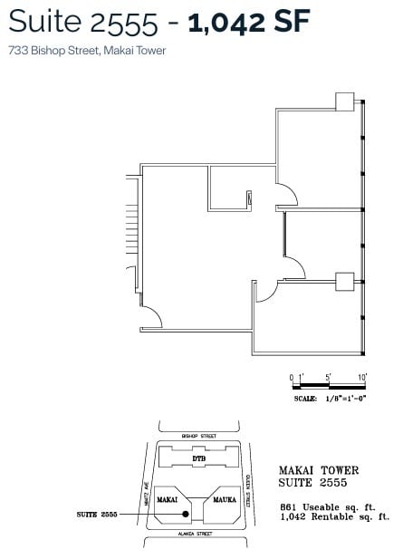
733 Bishop St - 25th Floor - Ste 2555
| Size | 1,042 SF |
| Term | Negotiable |
| Rental Rate | Upon Request |
| Space Use | Office |
| Build-Out | Full Build-Out |
| Available | Now |
3 offices and open area
- Fully Built-Out as Standard Office
- Fits 3 - 9 People
- 3 Private Offices
733 Bishop St - 25th Floor - Ste 2560
| Size | 1,342 SF |
| Term | Negotiable |
| Rental Rate | Upon Request |
| Space Use | Office |
| Build-Out | Full Build-Out |
| Available | Now |
Open layout
- Fully Built-Out as Standard Office
- Open Floor Plan Layout
- Fits 4 - 11 People
- Space is in Excellent Condition
- Open-Plan
733 Bishop St - 29th Floor - Ste 2945
| Size | 1,346 SF |
| Term | Negotiable |
| Rental Rate | Upon Request |
| Space Use | Office |
| Build-Out | Full Build-Out |
| Available | Now |
1 private office and an open layout.
- Fully Built-Out as Standard Office
- Mostly Open Floor Plan Layout
- Fits 4 - 11 People
- 1 Private Office
- Open-Plan
733 Bishop St - 29th Floor - Ste 2950
| Size | 3,597 SF |
| Term | Negotiable |
| Rental Rate | Upon Request |
| Space Use | Office |
| Build-Out | Shell Space |
| Available | Now |
High floor, Corner unit, open area with new ceiling and lights
- Open Floor Plan Layout
- Space In Need of Renovation
- Corner Space
733 Bishop St - 30th Floor - Ste 3000
| Size | 14,994 SF |
| Term | Negotiable |
| Rental Rate | Upon Request |
| Space Use | Office |
| Build-Out | Partial Build-Out |
| Available | January 01, 2027 |
Full floor opportunity.
- Partially Built-Out as Standard Office
- Mostly Open Floor Plan Layout
- Fits 38 - 120 People
735 Bishop St - 2nd Floor - Ste 215
| Size | 314 SF |
| Term | Negotiable |
| Rental Rate | Upon Request |
| Space Use | Office |
| Build-Out | Full Build-Out |
| Available | Now |
Open office
- Fully Built-Out as Standard Office
- Open Floor Plan Layout
- Fits 1 - 3 People
- Open-Plan
735 Bishop St - 2nd Floor - Ste 226
| Size | 532 SF |
| Term | Negotiable |
| Rental Rate | Upon Request |
| Space Use | Office |
| Build-Out | Full Build-Out |
| Available | Now |
Open layout. Available May 1, 2025
- Fully Built-Out as Standard Office
- Open Floor Plan Layout
- Fits 2 - 5 People
735 Bishop St - 2nd Floor - Ste 230
| Size | 3,170 SF |
| Term | Negotiable |
| Rental Rate | Upon Request |
| Space Use | Office |
| Build-Out | Full Build-Out |
| Available | Now |
3 private offices, conference room, kitchenette, and open work area
- Fully Built-Out as Standard Office
- Fits 8 - 26 People
- 3 Private Offices
- 1 Conference Room
- Kitchen
735 Bishop St - 2nd Floor - Ste 233
| Size | 499 SF |
| Term | Negotiable |
| Rental Rate | Upon Request |
| Space Use | Office |
| Build-Out | Full Build-Out |
| Available | Now |
1 private office
- Fully Built-Out as Standard Office
- Fits 2 - 4 People
- 1 Private Office
735 Bishop St - 3rd Floor - Ste 314
| Size | 402 SF |
| Term | Negotiable |
| Rental Rate | Upon Request |
| Space Use | Office |
| Build-Out | Full Build-Out |
| Available | Now |
Open layout
- Fully Built-Out as Standard Office
- Open Floor Plan Layout
- Fits 2 - 4 People
735 Bishop St - 3rd Floor - Ste 315
| Size | 317 SF |
| Term | Negotiable |
| Rental Rate | Upon Request |
| Space Use | Office |
| Build-Out | Full Build-Out |
| Available | Now |
1 private office with a sink
- Fully Built-Out as Standard Office
- Fits 1 - 3 People
- 1 Private Office
735 Bishop St - 3rd Floor - Ste 330
| Size | 2,092 SF |
| Term | Negotiable |
| Rental Rate | Upon Request |
| Space Use | Office |
| Build-Out | Spec Suite |
| Available | Now |
Conference room, open work areas, and kitchnette
- Fits 6 - 17 People
- 3 Private Offices
- 1 Conference Room
- 1 Workstation
- Reception Area
- Kitchen
- Secure Storage
- Natural Light
735 Bishop St - 3rd Floor - Ste 333
| Size | 1,669 SF |
| Term | Negotiable |
| Rental Rate | Upon Request |
| Space Use | Office |
| Build-Out | Full Build-Out |
| Available | Now |
Open layout
- Fully Built-Out as Standard Office
- Open Floor Plan Layout
- Fits 5 - 14 People
735 Bishop St - 3rd Floor - Ste 336
| Size | 533 SF |
| Term | Negotiable |
| Rental Rate | Upon Request |
| Space Use | Office |
| Build-Out | Full Build-Out |
| Available | Now |
1 private office
- Fully Built-Out as Standard Office
- Fits 2 - 5 People
- 1 Private Office
- Space is in Excellent Condition
- Reception Area
- Garden views
735 Bishop St - 3rd Floor - Ste 337
| Size | 710 SF |
| Term | Negotiable |
| Rental Rate | Upon Request |
| Space Use | Office |
| Build-Out | Full Build-Out |
| Available | June 01, 2026 |
- Fully Built-Out as Standard Office
- Mostly Open Floor Plan Layout
- Fits 2 - 6 People
735 Bishop St - 4th Floor - Ste 400
| Size | 841 SF |
| Term | Negotiable |
| Rental Rate | Upon Request |
| Space Use | Office |
| Build-Out | Full Build-Out |
| Available | Now |
- Fully Built-Out as Standard Office
- Mostly Open Floor Plan Layout
- Fits 3 - 7 People
735 Bishop St - 4th Floor - Ste 415
| Size | 316 SF |
| Term | Negotiable |
| Rental Rate | Upon Request |
| Space Use | Office |
| Build-Out | Full Build-Out |
| Available | Now |
Large open area and 1 private office.
- Fully Built-Out as Standard Office
- Mostly Open Floor Plan Layout
- Fits 1 - 3 People
- 1 Private Office
735 Bishop St - 4th Floor - Ste 432
| Size | 632 SF |
| Term | Negotiable |
| Rental Rate | Upon Request |
| Space Use | Office |
| Build-Out | Full Build-Out |
| Available | Now |
1 private office
- Fully Built-Out as Standard Office
- Office intensive layout
- Fits 2 - 6 People
735 Bishop St - 4th Floor - Ste 437
| Size | 716 SF |
| Term | Negotiable |
| Rental Rate | Upon Request |
| Space Use | Office |
| Build-Out | Full Build-Out |
| Available | Now |
- Fully Built-Out as Standard Office
- Office intensive layout
- Fits 2 - 6 People
735 Bishop St - 4th Floor - Ste 437
| Size | 716 SF |
| Term | Negotiable |
| Rental Rate | Upon Request |
| Space Use | Office |
| Build-Out | Partial Build-Out |
| Available | Now |
Available 3/1/26
- Partially Built-Out as Standard Office
- Office intensive layout
- Fits 2 - 6 People
Matterport 3D Tours
Select Tenants at This Property
- Floor
- Tenant Name
- Industry
- 31st
- Architects Hawaii Ltd
- Professional, Scientific, and Technical Services
- 26th
- Case Lombardi & Pettit A Law Corporation
- Services
- Multiple
- Morgan Stanley
- Finance and Insurance
- 19th
- Spirent Communications
- Information
- 19th
- Starn O’Toole Marcus & Fisher Law
- Services
- 16th
- UBS Financial Services
- Finance and Insurance
Park Overview
Pacific Guardian Center, an award-winning 682,000-square-foot office complex of three buildings, provides Honolulu firms with a distinctive business address. The Makai Tower and Mauka Tower are twin, 30-story high-rise mirrored glass office towers emphasizing prominence as a strategic location in Downtown Honolulu's Financial District. At the same time, the neighboring historic Dillingham Transportation Building reflects its endurance and stability. Pacific Guardian Center offers a high-quality professional environment, with a beautifully landscaped plaza and open courtyard spaces, a 786-stall parking garage, advanced HVAC, building automation systems, life safety systems, and extensive on-site staff to keep things running smoothly. Additionally, the building is Energy Star and LEED Gold certified for energy efficiency. Pacific Guardian Center is conveniently located in the Central Business District with easy access to federal, state, and county government offices and the courts, making it the ideal place to conduct business in Honolulu.
- Banking
- Bus Line
- Conferencing Facility
- Corner Lot
- Courtyard
- Property Manager on Site
- Restaurant
- Storage Space
- Car Charging Station
- Air Conditioning
Sustainability
Sustainability
LEED Certification Developed by the U.S. Green Building Council (USGBC), the Leadership in Energy and Environmental Design (LEED) is a green building certification program focused on the design, construction, operation, and maintenance of green buildings, homes, and neighborhoods, which aims to help building owners and operators be environmentally responsible and use resources efficiently. LEED certification is a globally recognized symbol of sustainability achievement and leadership. To achieve LEED certification, a project earns points by adhering to prerequisites and credits that address carbon, energy, water, waste, transportation, materials, health and indoor environmental quality. Projects go through a verification and review process and are awarded points that correspond to a level of LEED certification: Platinum (80+ points) Gold (60-79 points) Silver (50-59 points) Certified (40-49 points)
Presented by
Pacific Guardian Center | Honolulu, HI 96813
Hmm, there seems to have been an error sending your message. Please try again.
Thanks! Your message was sent.

















































































