Your email has been sent.
Highlights
- 14,517 SF building in well-connected Glendale Heights
- Well-maintained property with modern interior design
- High-end interior and exterior finishes include, Stone façade, Custom staircase, 3 elevators, Zoned heating & cooling, Crown molding, etc.
- Excellent curb appeal with stone facade
- Ample parking in front and rear of building
- Building also available for sale
All Available Spaces(3)
Display Rental Rate as
- Space
- Size
- Term
- Rental Rate
- Space Use
- Build-Out
- Available
Introducing a prime owner/user opportunity at 739 North Avenue, Glendale Heights, IL. This impressive 14,517 SF office building, constructed in 2005, is a testament to modern design and functionality. The property features ample space for offices and sits in strategic and well-connected Glendale Heights. Utilize the building's contemporary amenities and well-maintained interior, and lease an office building with great curb appeal.
- Lease rate does not include utilities, property expenses or building services
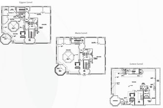
- Mostly Open Floor Plan Layout
- Can be combined with additional space(s) for up to 14,517 SF of adjacent space
- Fully Built-Out as Standard Office
- Fits 13 - 39 People
- Fully Carpeted
Introducing a prime owner/user opportunity at 739 North Avenue, Glendale Heights, IL. This impressive 14,517 SF office building, constructed in 2005, is a testament to modern design and functionality. The property features ample space for offices and sits in strategic and well-connected Glendale Heights. Utilize the building's contemporary amenities and well-maintained interior, and lease an office building with great curb appeal.
- Lease rate does not include utilities, property expenses or building services
- Mostly Open Floor Plan Layout
- Can be combined with additional space(s) for up to 14,517 SF of adjacent space
- Fully Built-Out as Standard Office
- Fits 13 - 39 People
- Fully Carpeted
Introducing a prime owner/user opportunity at 739 North Avenue, Glendale Heights, IL. This impressive 14,517 SF office building, constructed in 2005, is a testament to modern design and functionality. The property features ample space for offices and sits in strategic and well-connected Glendale Heights. Utilize the building's contemporary amenities and well-maintained interior, and lease an office building with great curb appeal.
- Lease rate does not include utilities, property expenses or building services
- Mostly Open Floor Plan Layout
- Can be combined with additional space(s) for up to 14,517 SF of adjacent space
- Fully Built-Out as Standard Office
- Fits 13 - 39 People
- Fully Carpeted
| Space | Size | Term | Rental Rate | Space Use | Build-Out | Available |
| Basement | 4,843 SF | Negotiable | $14.75 /SF/YR $1.23 /SF/MO $71,434 /YR $5,953 /MO | Office | Full Build-Out | Now |
| 1st Floor | 4,837 SF | Negotiable | $14.75 /SF/YR $1.23 /SF/MO $71,346 /YR $5,945 /MO | Office | Full Build-Out | Now |
| 2nd Floor | 4,837 SF | Negotiable | $14.75 /SF/YR $1.23 /SF/MO $71,346 /YR $5,945 /MO | Office | Full Build-Out | Now |
Basement
| Size |
| 4,843 SF |
| Term |
| Negotiable |
| Rental Rate |
| $14.75 /SF/YR $1.23 /SF/MO $71,434 /YR $5,953 /MO |
| Space Use |
| Office |
| Build-Out |
| Full Build-Out |
| Available |
| Now |
1st Floor
| Size |
| 4,837 SF |
| Term |
| Negotiable |
| Rental Rate |
| $14.75 /SF/YR $1.23 /SF/MO $71,346 /YR $5,945 /MO |
| Space Use |
| Office |
| Build-Out |
| Full Build-Out |
| Available |
| Now |
2nd Floor
| Size |
| 4,837 SF |
| Term |
| Negotiable |
| Rental Rate |
| $14.75 /SF/YR $1.23 /SF/MO $71,346 /YR $5,945 /MO |
| Space Use |
| Office |
| Build-Out |
| Full Build-Out |
| Available |
| Now |
Basement
| Size | 4,843 SF |
| Term | Negotiable |
| Rental Rate | $14.75 /SF/YR |
| Space Use | Office |
| Build-Out | Full Build-Out |
| Available | Now |
Introducing a prime owner/user opportunity at 739 North Avenue, Glendale Heights, IL. This impressive 14,517 SF office building, constructed in 2005, is a testament to modern design and functionality. The property features ample space for offices and sits in strategic and well-connected Glendale Heights. Utilize the building's contemporary amenities and well-maintained interior, and lease an office building with great curb appeal.
- Lease rate does not include utilities, property expenses or building services
- Fully Built-Out as Standard Office
- Mostly Open Floor Plan Layout
- Fits 13 - 39 People
- Can be combined with additional space(s) for up to 14,517 SF of adjacent space
- Fully Carpeted
1st Floor
| Size | 4,837 SF |
| Term | Negotiable |
| Rental Rate | $14.75 /SF/YR |
| Space Use | Office |
| Build-Out | Full Build-Out |
| Available | Now |
Introducing a prime owner/user opportunity at 739 North Avenue, Glendale Heights, IL. This impressive 14,517 SF office building, constructed in 2005, is a testament to modern design and functionality. The property features ample space for offices and sits in strategic and well-connected Glendale Heights. Utilize the building's contemporary amenities and well-maintained interior, and lease an office building with great curb appeal.
- Lease rate does not include utilities, property expenses or building services
- Fully Built-Out as Standard Office
- Mostly Open Floor Plan Layout
- Fits 13 - 39 People
- Can be combined with additional space(s) for up to 14,517 SF of adjacent space
- Fully Carpeted
2nd Floor
| Size | 4,837 SF |
| Term | Negotiable |
| Rental Rate | $14.75 /SF/YR |
| Space Use | Office |
| Build-Out | Full Build-Out |
| Available | Now |
Introducing a prime owner/user opportunity at 739 North Avenue, Glendale Heights, IL. This impressive 14,517 SF office building, constructed in 2005, is a testament to modern design and functionality. The property features ample space for offices and sits in strategic and well-connected Glendale Heights. Utilize the building's contemporary amenities and well-maintained interior, and lease an office building with great curb appeal.
- Lease rate does not include utilities, property expenses or building services
- Fully Built-Out as Standard Office
- Mostly Open Floor Plan Layout
- Fits 13 - 39 People
- Can be combined with additional space(s) for up to 14,517 SF of adjacent space
- Fully Carpeted
Property Overview
Introducing a prime owner/user opportunity at 739 North Avenue, Glendale Heights, IL. This impressive 14,517 SF office building, constructed in 2005, is a testament to modern design and functionality. The property features ample space for offices and sits in strategic and well-connected Glendale Heights. Utilize the building's contemporary amenities and well-maintained interior, and lease an office building with great curb appeal.
- Signage
Property Facts
Presented by
739 North Ave
Hmm, there seems to have been an error sending your message. Please try again.
Thanks! Your message was sent.





