Share This Listing

Message

967 characters remaining

Hmm, there seems to have been an error sending your message. Please try again.

Your email has been sent.

7429 49 Ave
Red Deer, AB T4P 1N2
Industrial Property For Sale · 92,680 SF

Save this listing!

Favorite this listing to get notified of price updates, new media and more

Investment Highlights

  • Located in the Northlands Industrial Park.
  • Surface parking at this location.
  • Located off of Gaetz Avenue.

Executive Summary

This versatile industrial property in Red Deer’s Northlands Industrial Park offers businesses a highly functional location with immediate access to major arterial routes and the region’s established commercial network. The building features a balanced mix of office, showroom, and warehouse characteristics suited for a wide range of service, light industrial, and trade-related operations. With both sale and lease options available, the asset provides exceptional flexibility for owners or occupiers seeking long-term value in a well-positioned industrial corridor.

Property Facts

Total Building Size 92,680 SF
Property Type Industrial (Condo)
Building Class B
Floors 2
Typical Floor Size 46,340 SF
Year Built 1977
Lot Size 2.51 AC
Zoning I1 - Industrial (Business Service) District

Utilities

  • Lighting - LED

1 Unit Available

Unit 7

Unit Size 3,360 SF
Condo Use Industrial
Sale Type Investment
Description

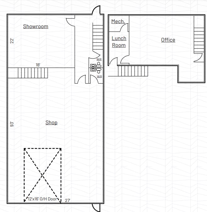
The condo’s layout includes washrooms and a spacious second-floor office concept, creating an open, collaborative workspace. Additional features include a lunch room for staff convenience and a warehouse equipped with an overhead door for streamlined loading and unloading. LED lighting will also be installed in the warehouse area, adding to the unit’s functionality and efficiency.

Sale Notes

A versatile industrial condo in Northlands Industrial Park, ideal for both new and established businesses. This property offers the unique advantage of vendor financing, providing an accessible ownership opportunity with flexible terms. Designed for versatility, the front area includes a flexible floor plan with a reception and showroom, adaptable for one or two businesses to operate independently.

Floor Plan
View Photo Floor Plan
  • Listing ID: 34171641

  • Date on Market: 12/12/2024

  • Last Updated:

  • Address: 7429 49 Ave, Red Deer, AB T4P 1N2

Link copied
Your LoopNet account has been created!

Please Share Your Feedback

We welcome any feedback on how we can improve LoopNet to better serve your needs.
X
{{ getErrorText(feedbackForm.starRating, "rating") }}
255 character limit ({{ remainingChars() }} charactercharacters remainingover)
{{ getErrorText(feedbackForm.msg, "rating") }}
{{ getErrorText(feedbackForm.fname, "first name") }}
{{ getErrorText(feedbackForm.lname, "last name") }}
{{ getErrorText(feedbackForm.phone, "phone number") }}
{{ getErrorText(feedbackForm.phonex, "phone extension") }}
{{ getErrorText(feedbackForm.email, "email address") }}