Your email has been sent.
7429 49 Ave 3,360 SF Industrial Condo Unit Offered at $349,581 in Red Deer, AB T4P 1N2


Investment Highlights
- Located in the Northlands Industrial Park.
- Surface parking at this location.
- Located off of Gaetz Avenue.
Executive Summary
This versatile industrial property in Red Deer’s Northlands Industrial Park offers businesses a highly functional location with immediate access to major arterial routes and the region’s established commercial network. The building features a balanced mix of office, showroom, and warehouse characteristics suited for a wide range of service, light industrial, and trade-related operations. With both sale and lease options available, the asset provides exceptional flexibility for owners or occupiers seeking long-term value in a well-positioned industrial corridor.
1 Unit Available
Unit 7
| Unit Size | 3,360 SF | Condo Use | Industrial |
| Price | $349,581 USD | Sale Type | Investment |
| Price Per SF | $104.04 USD |
| Unit Size | 3,360 SF |
| Price | $349,581 USD |
| Price Per SF | $104.04 USD |
| Condo Use | Industrial |
| Sale Type | Investment |
Description
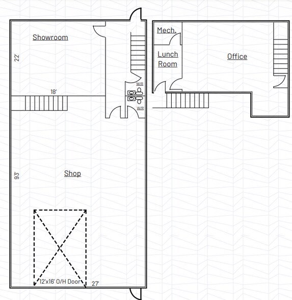
The condo’s layout includes washrooms and a spacious second-floor office concept, creating an open, collaborative workspace. Additional features include a lunch room for staff convenience and a warehouse equipped with an overhead door for streamlined loading and unloading. LED lighting will also be installed in the warehouse area, adding to the unit’s functionality and efficiency.
Sale Notes
A versatile industrial condo in Northlands Industrial Park, ideal for both new and established businesses. This property offers the unique advantage of vendor financing, providing an accessible ownership opportunity with flexible terms. Designed for versatility, the front area includes a flexible floor plan with a reception and showroom, adaptable for one or two businesses to operate independently.
Floor Plan
Property Facts
| Total Building Size | 92,680 SF | Typical Floor Size | 46,340 SF |
| Property Type | Industrial (Condo) | Year Built | 1977 |
| Building Class | B | Lot Size | 2.51 AC |
| Floors | 2 | ||
| Zoning | I1 - Industrial (Business Service) District | ||
| Total Building Size | 92,680 SF |
| Property Type | Industrial (Condo) |
| Building Class | B |
| Floors | 2 |
| Typical Floor Size | 46,340 SF |
| Year Built | 1977 |
| Lot Size | 2.51 AC |
| Zoning | I1 - Industrial (Business Service) District |
Utilities
- Lighting - LED
Presented by
7429 49 Ave
Hmm, there seems to have been an error sending your message. Please try again.
Thanks! Your message was sent.

