Your email has been sent.
7755 Tecumseh Rd E 2,150 SF of Retail Space Available in Windsor, ON N8T 1G3



HIGHLIGHTS
- Prominent exposure to vehicular traffic along one of the busiest arterial roads in Windsor, within direct proximity to other national retailers.
SPACE AVAILABILITY (1)
Display Rental Rate as
- SPACE
- SIZE
- TERM
- RENTAL RATE
- RENT TYPE
| Space | Size | Term | Rental Rate | Rent Type | ||
| 1st Floor, Ste 100 | 2,150 SF | Negotiable | $11.61 USD/SF/YR $0.97 USD/SF/MO $24,958 USD/YR $2,080 USD/MO | Triple Net (NNN) |
1st Floor, Ste 100
- Lease rate does not include utilities, property expenses or building services
Rent Types
The rent amount and type that the tenant (lessee) will be responsible to pay to the landlord (lessor) throughout the lease term is negotiated prior to both parties signing a lease agreement. The rent type will vary depending upon the services provided. For example, triple net rents are typically lower than full service rents due to additional expenses the tenant is required to pay in addition to the base rent. Contact the listing broker for a full understanding of any associated costs or additional expenses for each rent type.
1. Full Service: A rental rate that includes normal building standard services as provided by the landlord within a base year rental.
2. Double Net (NN): Tenant pays for only two of the building expenses; the landlord and tenant determine the specific expenses prior to signing the lease agreement.
3. Triple Net (NNN): A lease in which the tenant is responsible for all expenses associated with their proportional share of occupancy of the building.
4. Modified Gross: Modified Gross is a general type of lease rate where typically the tenant will be responsible for their proportional share of one or more of the expenses. The landlord will pay the remaining expenses. See the below list of common Modified Gross rental rate structures: 4. Plus All Utilities: A type of Modified Gross Lease where the tenant is responsible for their proportional share of utilities in addition to the rent. 4. Plus Cleaning: A type of Modified Gross Lease where the tenant is responsible for their proportional share of cleaning in addition to the rent. 4. Plus Electric: A type of Modified Gross Lease where the tenant is responsible for their proportional share of the electrical cost in addition to the rent. 4. Plus Electric & Cleaning: A type of Modified Gross Lease where the tenant is responsible for their proportional share of the electrical and cleaning cost in addition to the rent. 4. Plus Utilities and Char: A type of Modified Gross Lease where the tenant is responsible for their proportional share of the utilities and cleaning cost in addition to the rent. 4. Industrial Gross: A type of Modified Gross lease where the tenant pays one or more of the expenses in addition to the rent. The landlord and tenant determine these prior to signing the lease agreement.
5. Tenant Electric: The landlord pays for all services and the tenant is responsible for their usage of lights and electrical outlets in the space they occupy.
6. Negotiable or Upon Request: Used when the leasing contact does not provide the rent or service type.
7. TBD: To be determined; used for buildings for which no rent or service type is known, commonly utilized when the buildings are not yet built.
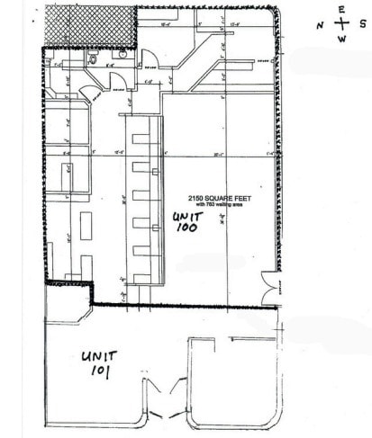
SITE PLAN
PROPERTY FACTS
| Total Space Available | 2,150 SF | Year Built | 1983 |
| Property Type | Retail | Parking Ratio | 9.06/1,000 SF |
| Gross Leasable Area | 10,042 SF |
| Total Space Available | 2,150 SF |
| Property Type | Retail |
| Gross Leasable Area | 10,042 SF |
| Year Built | 1983 |
| Parking Ratio | 9.06/1,000 SF |
ABOUT THE PROPERTY
This modern retail complex is situated on a site totaling approximately 1.17 acres at the corner of Tecumseh Road East and Annie St. It is a single Level commercial plaza contain a gross floor area of approx. 10,042 sq.ft. Currently there is 2,150 sq. ft available at the rear. Ideal for Bakery, Business Office, Child Care Centre, Commercial School, Medical Appliance Facility, Medical Office, Print Shop Professional Studio, Restaurant, retail store and more. The property has superior access to and from Tecumseh Road. The property is strategically situated in the City of Windsor, Ontario And in an excellent location with frontage on Tecumseh Road, which offers prominent exposure to vehicular traffic along one of the busiest arterial roads in Windsor, in the heart of the retail district within direct proximity to other national retailers. The site has paved parking and sufficient parking spaces for retail
NEARBY MAJOR RETAILERS
Presented by
7755 Tecumseh Rd E
Hmm, there seems to have been an error sending your message. Please try again.
Thanks! Your message was sent.

