Log In/Sign Up
Enter your email to login or create a free account
This feature is unavailable at the moment.
We apologize, but the feature you are trying to access is currently unavailable. We are aware of this issue and our team is working hard to resolve the matter.
Please check back in a few minutes. We apologize for the inconvenience.
- LoopNet Team
This Multifamily Property is no longer advertised on LoopNet.com.
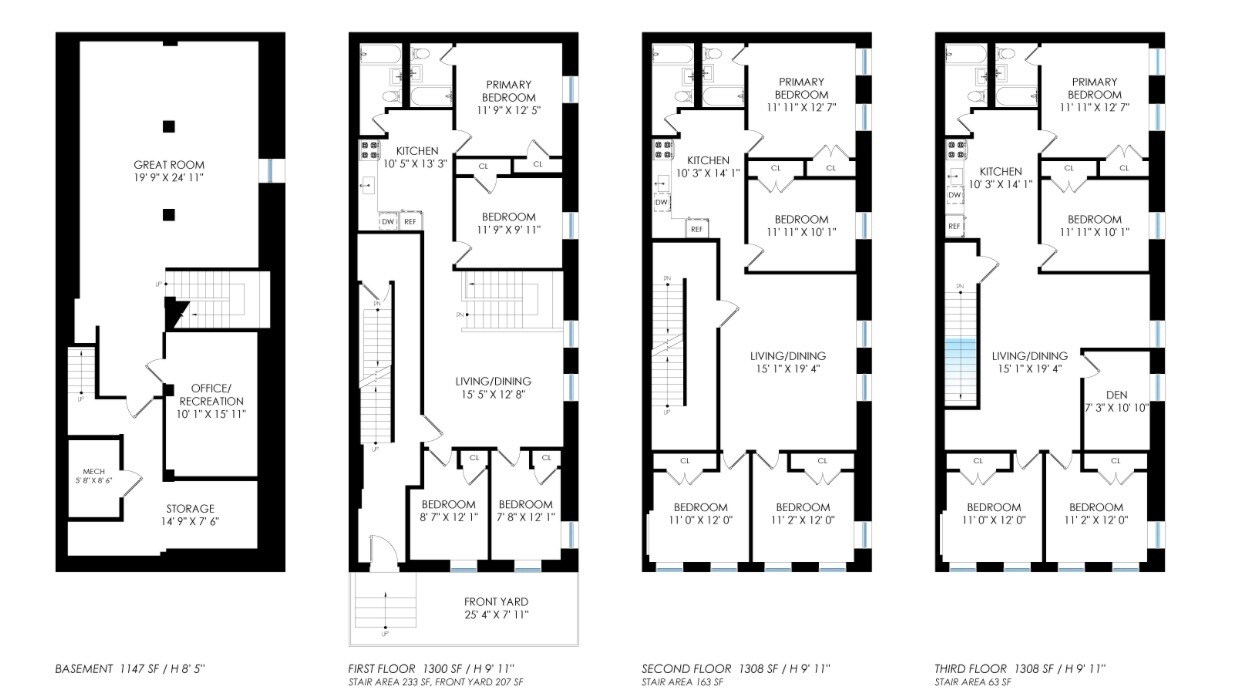
780 Madison St
Brooklyn, NY 11221
Multifamily Property For Sale
·
4 Units

Property Facts
| No. Units | 4 | Lot Size | 0.03 AC |
| Property Type | Multifamily | Building Size | 5,750 SF |
| Property Subtype | Apartment | Average Occupancy | 100% |
| Apartment Style | Low-Rise | No. Stories | 3 |
| Building Class | B | Year Built | 1910 |
| Zoning | R6B - R6B- Districts are often traditional row house districts, which preserve the scale and harmonious street-scape of residential neighborhoods. | ||
| No. Units | 4 |
| Property Type | Multifamily |
| Property Subtype | Apartment |
| Apartment Style | Low-Rise |
| Building Class | B |
| Lot Size | 0.03 AC |
| Building Size | 5,750 SF |
| Average Occupancy | 100% |
| No. Stories | 3 |
| Year Built | 1910 |
| Zoning | R6B - R6B- Districts are often traditional row house districts, which preserve the scale and harmonious street-scape of residential neighborhoods. |
Amenities
Unit Amenities
- Dishwasher
- Microwave
- Storage Space
- Heating
- Kitchen
- Hardwood Floors
- Refrigerator
- Stainless Steel Appliances
- Views
- Basement
- Instant Hot Water
Unit Mix Information
| Description | No. Units | Avg. Rent/Mo | SF |
|---|---|---|---|
| 4+1 | 4 | - | 1,000 |
Property Taxes
| Parcel Number | 01648-0111 | Improvements Assessment | $688,950 |
| Land Assessment | $15,750 | Total Assessment | $704,700 |
Property Taxes
Parcel Number
01648-0111
Land Assessment
$15,750
Improvements Assessment
$688,950
Total Assessment
$704,700
Listing ID: 24657420
Date on Market: 12/13/2021
Last Updated:
Address: 780 Madison St, Brooklyn, NY 11221
The Stuyvesant Heights Multifamily Property at 780 Madison St, Brooklyn, NY 11221 is no longer being advertised on LoopNet.com. Contact the broker for information on availability.
MULTIFAMILY PROPERTIES IN NEARBY NEIGHBORHOODS
- Bushwick Apartment Buildings
- Prospect Park Apartment Buildings
- Upper East Side Apartment Buildings
- Northeast Queens Apartment Buildings
- Northwestern Queens Apartment Buildings
- Williamsburg Apartment Buildings
- Lower West Side Apartment Buildings
- Flatbush Apartment Buildings
- Lower East Side Apartment Buildings
- Upper West Side Apartment Buildings
- Harlem Apartment Buildings
- Downtown Brooklyn Apartment Buildings
- South Bronx Apartment Buildings
- East Harlem Apartment Buildings
- Midtown South Apartment Buildings
NEARBY LISTINGS
- 177 Spring St, New York NY
- 1111 Willoughby Ave, Brooklyn NY
- 180 Fifth Ave, Brooklyn NY
- 293 Tompkins Ave, Brooklyn NY
- 41 Avenue B, New York NY
- 279 Tompkins Ave, Brooklyn NY
- 92 Diamond St, Brooklyn NY
- 500 4th Ave, Brooklyn NY
- 176 Atlantic Ave, Brooklyn NY
- 898 Hancock St, Brooklyn NY
- 556 Driggs Ave, Brooklyn NY
- 241 Church St, New York NY
- 14 Lincoln Pl, Brooklyn NY
- 170 Mercer St, New York NY
- 50 Orchard St, New York NY
1 of 1
Videos
Matterport 3D Exterior
Matterport 3D Tour
Photos
Street View
Street
Map

Link copied
Your LoopNet account has been created!
Thank you for your feedback.
Please Share Your Feedback
We welcome any feedback on how we can improve LoopNet to better serve your needs.X
{{ getErrorText(feedbackForm.starRating, "rating") }}
255 character limit ({{ remainingChars() }} charactercharacters remainingover)
{{ getErrorText(feedbackForm.msg, "rating") }}
{{ getErrorText(feedbackForm.fname, "first name") }}
{{ getErrorText(feedbackForm.lname, "last name") }}
{{ getErrorText(feedbackForm.phone, "phone number") }}
{{ getErrorText(feedbackForm.phonex, "phone extension") }}
{{ getErrorText(feedbackForm.email, "email address") }}
You can provide feedback any time using the Help button at the top of the page.