Log In/Sign Up
Your email has been sent.
Investment Highlights
- Quiet dead end street to build a building!
Executive Summary
Land is 2 tax lots totaling .30 acre
Financial Summary (Actual - 2025) Click Here to Access |
Annual | Annual Per AC |
|---|---|---|
| Taxes |
$99,999
|
$9.99
|
| Operating Expenses |
-
|
-
|
| Total Expenses |
$99,999
|
$9.99
|
Financial Summary (Actual - 2025) Click Here to Access
| Taxes | |
|---|---|
| Annual | $99,999 |
| Annual Per AC | $9.99 |
| Operating Expenses | |
|---|---|
| Annual | - |
| Annual Per AC | - |
| Total Expenses | |
|---|---|
| Annual | $99,999 |
| Annual Per AC | $9.99 |
Property Facts
| Price | $750,000 | Property Type | Land |
| Sale Type | Investment | Property Subtype | Commercial |
| Sale Condition | Redevelopment Project | Total Lot Size | 0.22 AC |
| No. Lots | 1 | ||
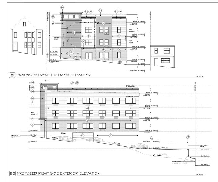
| Zoning | M - Approvals for 15 one bed apts with 20 onsite parking spots. .30 acre | ||
| Price | $750,000 |
| Sale Type | Investment |
| Sale Condition | Redevelopment Project |
| No. Lots | 1 |
| Property Type | Land |
| Property Subtype | Commercial |
| Total Lot Size | 0.22 AC |
| Zoning | M - Approvals for 15 one bed apts with 20 onsite parking spots. .30 acre |
1 Lot Available
Lot
| Price | $750,000 | Lot Size | 0.22 AC |
| Price Per AC | $3,409,090.91 |
| Price | $750,000 |
| Price Per AC | $3,409,090.91 |
| Lot Size | 0.22 AC |
Flat lot with gentle slop to the rear. Site plan approved by Planning board. 15 one bed apts,. 20 parking spaces-14 interior. 3 Story elevator building. Quiet dead end Street in Nodine Hill. Nice project in Yonkers!
Description
Garage on lot. .30 acre
1 1
Walk Score®
Very Walkable (78)
1 of 13
Videos
Matterport 3D Exterior
Matterport 3D Tour
Photos
Street View
Street
Map
1 of 1
Presented by
79 William St
Already a member? Log In
Hmm, there seems to have been an error sending your message. Please try again.
Thanks! Your message was sent.
Your message has been sent!
Activate your LoopNet account now to track properties, get real-time alerts, save time on future inquiries, and more.



