Log In/Sign Up
Your email has been sent.
Highlights
- Exceptional corner visibility with strong daily vehicle counts, ideal for retail, QSR, medical, or service-based tenants.
LOT Available
Display Rental Rate as
| Rental Rate |
|
Lot Size | 2.00 AC |
| Lease Term | Negotiable |
| Rental Rate | |
| Lease Term | Negotiable |
| Lot Size | 2.00 AC |
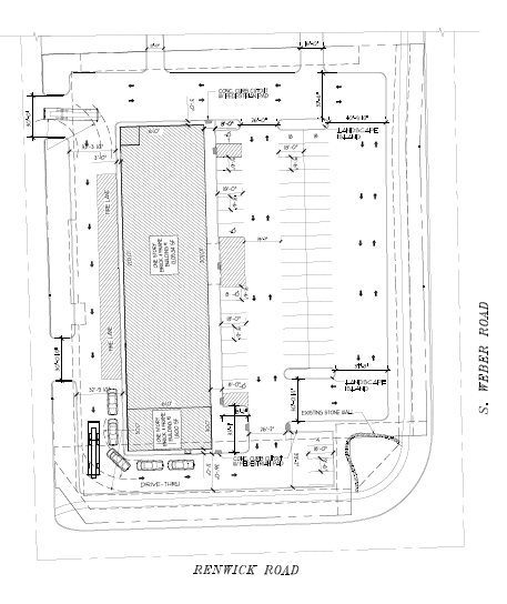
Prime Retail Opportunities!!! Newly Proposed Strip Center. Coming in 2026. Spaces: 1,500 – 11,500 SF available for lease with flexible Build-to-Suit options to accommodate tenant needs. Build-to-Suit Flexibility Custom design and construction options tailored to tenant specifications, perfect for national and regional brands. $32/ sq ft/ year with NNN lease
Property Overview
Strategic location: corner of Weber Rd & Renwick Rd- high traffic intersection with average traffic count of 51,800 vpd- one of the busiest and fastest-developing corridors in Chicagoland's southwest suburbs. High visibility. Surrounded by new and planned developments, including residential neighborhoods, industrial parks and commercial centers. Easy access to major interstates: I-80 (2 miles south) and I-55 ( 3 miles south). Great opportunity for retail center, QSR, medical center, offices and more- both national and regional brands.
Property Facts
1 1
1 of 12
Videos
Matterport 3D Exterior
Matterport 3D Tour
Photos
Street View
Street
Map
1 of 1
Presented by
PLAZA | 790 S Weber Rd
Already a member? Log In
Hmm, there seems to have been an error sending your message. Please try again.
Thanks! Your message was sent.



