Your email has been sent.
ESO Plaza - Multiple Unit Sizes Available 801-829 Atlantic Ave 894 - 3,588 SF of Office/Retail Space Available in Cocoa Beach, FL 32931



Highlights
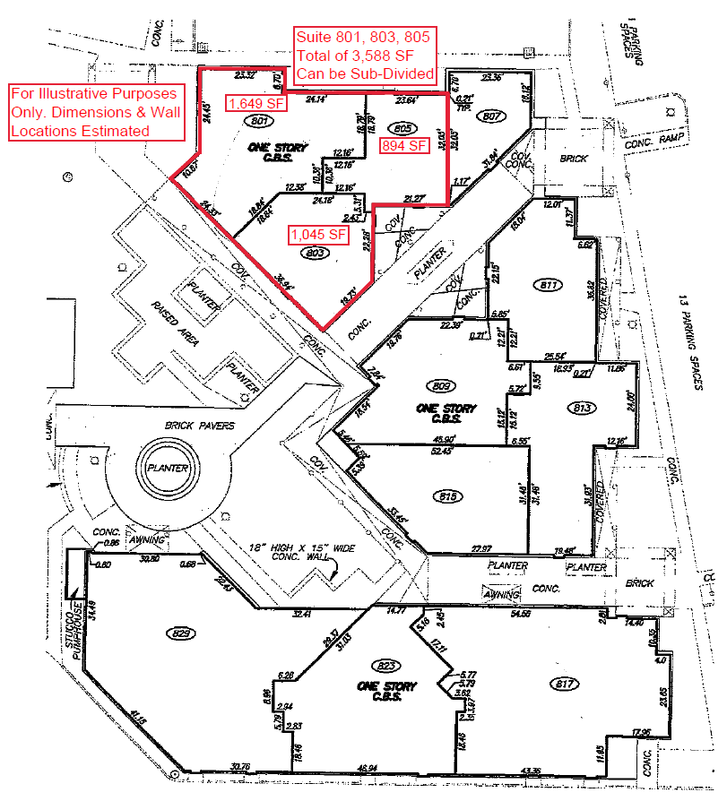
- Suite 801: 1,649 SF. Open Configuration, Exposed Ceiling, Large Windows
- Suite 805: 894 SF. Underground Grease Trap, Drop Ceiling
- Traffic Count est. 24,500 VPD on A1A.
- Suite 803: 1,045 SF. Open Configuration, Exposed Ceiling, Large Windows
- Can be Leased Individually or Combined for 3,588 SF
- Est. $6.84 PSF OPEX (Includes Water/Sewer).
Space Availability (3)
Display Rental Rate as
- Space
- Size
- Term
- Rental Rate
- Rent Type
| Space | Size | Term | Rental Rate | Rent Type | ||
| 1st Floor, Ste 801 | 1,649 SF | Negotiable | $14.95 /SF/YR $1.25 /SF/MO $24,653 /YR $2,054 /MO | Triple Net (NNN) | ||
| 1st Floor, Ste 803 | 1,045 SF | Negotiable | $14.95 /SF/YR $1.25 /SF/MO $15,623 /YR $1,302 /MO | Triple Net (NNN) | ||
| 1st Floor, Ste 805 | 894 SF | Negotiable | $14.95 /SF/YR $1.25 /SF/MO $13,365 /YR $1,114 /MO | Triple Net (NNN) |
1st Floor, Ste 801
Suite 801 is 1,649 SF. Interior is primarily open configuration with exposed ceiling. Lots of windows/sunlight. Est. $6.84 PSF OPEX. Suite 801 (1,649 SF) can be combined with Suite 803 (1,045 SF) and Suite 805 (894 SF). Total of 3,588 SF available.
- Lease rate does not include utilities, property expenses or building services
- Mostly Open Floor Plan Layout
- Space is in Excellent Condition
- Can be combined with additional space(s) for up to 3,588 SF of adjacent space
- Central Air Conditioning
- Drop Ceilings
- Exposed Ceiling
- Natural Light
- Open-Plan
- Suite 801 is 1,649 SF
- 100% HVAC. Exposed Ceilings
- Primarily Open Configuration. Large Windows
- Est. $6.84 PSF OPEX
1st Floor, Ste 803
Suite 803 is 1,045 SF. Interior is primarily open configuration with exposed ceiling. Lots of windows/sunlight. Est. $6.84 PSF OPEX. Suite 803 (1,045 SF) can be combined with Suite 801 (1,649 SF) and Suite 805 (894 SF). Total of 3,588 SF vacant.
- Lease rate does not include utilities, property expenses or building services
- Mostly Open Floor Plan Layout
- Space is in Excellent Condition
- Can be combined with additional space(s) for up to 3,588 SF of adjacent space
- Central Air Conditioning
- Corner Space
- Exposed Ceiling
- Natural Light
- Open-Plan
- Suite 803 is 1,045 SF
- Primarily Open Configuration. 100% HVAC
- Lots of Windows/Sunlight
- Est. $6.84 PSF OPEX
1st Floor, Ste 805
Suite 805 is 894 SF. Former restaurant with grease trap. Primarily open configuration with 1 restroom. 100% HVAC with mix of drop ceiling & exposed ceiling. Est. $6.84 PSF OPEX. Suite 805 (894 SF) can be combined with Suite 801 (1,649 SF) and Suite 803 (1,045 SF). Total of 3,588 SF available.
- Lease rate does not include utilities, property expenses or building services
- Fully Built-Out as a Restaurant or Café Space
- Mostly Open Floor Plan Layout
- Space is in Excellent Condition
- Can be combined with additional space(s) for up to 3,588 SF of adjacent space
- Central Air Conditioning
- Natural Light
- Open-Plan
- Suite 805 is 894 SF
- Former Restaurant with Grease Trap
- 100% HVAC. Lots of Windows/Sunlight
- Est. $6.84 PSF OPEX
Rent Types
The rent amount and type that the tenant (lessee) will be responsible to pay to the landlord (lessor) throughout the lease term is negotiated prior to both parties signing a lease agreement. The rent type will vary depending upon the services provided. For example, triple net rents are typically lower than full service rents due to additional expenses the tenant is required to pay in addition to the base rent. Contact the listing broker for a full understanding of any associated costs or additional expenses for each rent type.
1. Full Service: A rental rate that includes normal building standard services as provided by the landlord within a base year rental.
2. Double Net (NN): Tenant pays for only two of the building expenses; the landlord and tenant determine the specific expenses prior to signing the lease agreement.
3. Triple Net (NNN): A lease in which the tenant is responsible for all expenses associated with their proportional share of occupancy of the building.
4. Modified Gross: Modified Gross is a general type of lease rate where typically the tenant will be responsible for their proportional share of one or more of the expenses. The landlord will pay the remaining expenses. See the below list of common Modified Gross rental rate structures: 4. Plus All Utilities: A type of Modified Gross Lease where the tenant is responsible for their proportional share of utilities in addition to the rent. 4. Plus Cleaning: A type of Modified Gross Lease where the tenant is responsible for their proportional share of cleaning in addition to the rent. 4. Plus Electric: A type of Modified Gross Lease where the tenant is responsible for their proportional share of the electrical cost in addition to the rent. 4. Plus Electric & Cleaning: A type of Modified Gross Lease where the tenant is responsible for their proportional share of the electrical and cleaning cost in addition to the rent. 4. Plus Utilities and Char: A type of Modified Gross Lease where the tenant is responsible for their proportional share of the utilities and cleaning cost in addition to the rent. 4. Industrial Gross: A type of Modified Gross lease where the tenant pays one or more of the expenses in addition to the rent. The landlord and tenant determine these prior to signing the lease agreement.
5. Tenant Electric: The landlord pays for all services and the tenant is responsible for their usage of lights and electrical outlets in the space they occupy.
6. Negotiable or Upon Request: Used when the leasing contact does not provide the rent or service type.
7. TBD: To be determined; used for buildings for which no rent or service type is known, commonly utilized when the buildings are not yet built.
Property Facts
| Total Space Available | 3,588 SF | Gross Leasable Area | 18,577 SF |
| Property Type | Retail | Year Built/Renovated | 1986/2008 |
| Property Subtype | Storefront Retail/Office | Parking Ratio | 9.04/1,000 SF |
| Total Space Available | 3,588 SF |
| Property Type | Retail |
| Property Subtype | Storefront Retail/Office |
| Gross Leasable Area | 18,577 SF |
| Year Built/Renovated | 1986/2008 |
| Parking Ratio | 9.04/1,000 SF |
About the Property
Located in the heart of Cocoa Beach approximately halfway between Patrick Space Force Base and Port Canaveral. State Road 520 and State Road 528 are nearby, both of which provide immediate access to US1 and Interstate 95. Surrounding employers include Kennedy Space Center, Cocoa Beach High School, and Cape Canaveral Hospital to name a few. Make this the future home for your business today!
- 24 Hour Access
- Corner Lot
- Property Manager on Site
- Pylon Sign
- Signage
- Air Conditioning
Nearby Major Retailers
Presented by
ESO Plaza - Multiple Unit Sizes Available | 801-829 Atlantic Ave
Hmm, there seems to have been an error sending your message. Please try again.
Thanks! Your message was sent.









