Your email has been sent.
Highlights
- 30 Parking Spaces
- Public water, sewer, and gas
Features
All Available Spaces(2)
Display Rental Rate as
- Space
- Size
- Term
- Rental Rate
- Space Use
- Build-Out
- Available
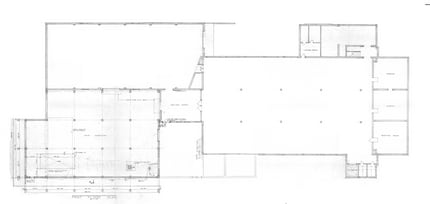
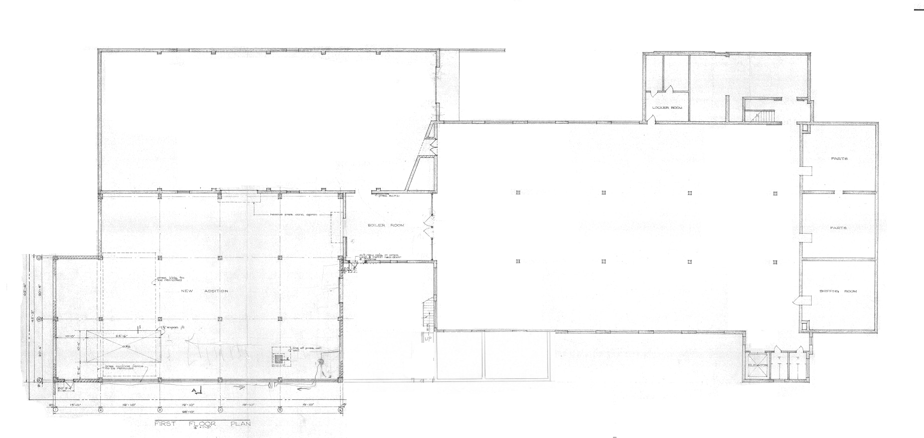
Position your operations in the heart of Allentown’s thriving industrial corridor with this versatile two-story facility at 801 W Greenleaf Street. Offering 36,260 SF of functional space, this property is designed to accommodate a wide range of production, storage, and distribution needs. The ground floor features multiple production rooms, maintenance shops, storage areas, and a dedicated office and break room, complemented by one dock door and one drive-in door for efficient loading and unloading. Ceiling heights range from 11’ to 15.5’, ensuring flexibility for equipment and racking systems. The second floor provides additional warehouse space with a 10’ clear ceiling height and a conditioned office area accessible from the street, ideal for administrative functions. A 3,500 lb. freight elevator enhances vertical movement, while robust infrastructure—including 920-amp, 3-phase electric service and a wet sprinkler system—supports heavy-duty operations. Public water, sewer, and gas utilities are in place, and the property includes a lighted parking lot for staff and visitors. Strategically located just one mile from Route 22 and minutes from I-78, I-476, and Route 309, this site offers exceptional connectivity to major highways and the Lehigh Valley International Airport. Businesses benefit from proximity to Philadelphia (60 minutes) and New York City (90 minutes), placing you within a one-day drive of one-third of the U.S. population. This prime location in the Lehigh Valley—a dynamic hub for manufacturing and logistics—positions your company for growth and efficiency.
- Lease rate does not include utilities, property expenses or building services
- Can be combined with additional space(s) for up to 36,260 SF of adjacent space
- freight elevator
- available now
- Includes 1,219 SF of dedicated office space
- Warehouse, offices
- dock & drive-in doors
Position your operations in the heart of Allentown’s thriving industrial corridor with this versatile two-story facility at 801 W Greenleaf Street. Offering 36,260 SF of functional space, this property is designed to accommodate a wide range of production, storage, and distribution needs. The ground floor features multiple production rooms, maintenance shops, storage areas, and a dedicated office and break room, complemented by one dock door and one drive-in door for efficient loading and unloading. Ceiling heights range from 11’ to 15.5’, ensuring flexibility for equipment and racking systems. The second floor provides additional warehouse space with a 10’ clear ceiling height and a conditioned office area accessible from the street, ideal for administrative functions. A 3,500 lb. freight elevator enhances vertical movement, while robust infrastructure—including 920-amp, 3-phase electric service and a wet sprinkler system—supports heavy-duty operations. Public water, sewer, and gas utilities are in place, and the property includes a lighted parking lot for staff and visitors. Strategically located just one mile from Route 22 and minutes from I-78, I-476, and Route 309, this site offers exceptional connectivity to major highways and the Lehigh Valley International Airport. Businesses benefit from proximity to Philadelphia (60 minutes) and New York City (90 minutes), placing you within a one-day drive of one-third of the U.S. population. This prime location in the Lehigh Valley—a dynamic hub for manufacturing and logistics—positions your company for growth and efficiency.
- Lease rate does not include utilities, property expenses or building services
- Can be combined with additional space(s) for up to 36,260 SF of adjacent space
- freight elevator
- available now
- Includes 1,219 SF of dedicated office space
- Warehouse, offices
- dock & drive-in doors
| Space | Size | Term | Rental Rate | Space Use | Build-Out | Available |
| 1st Floor | 25,280 SF | Negotiable | $6.00 /SF/YR $0.50 /SF/MO $151,680 /YR $12,640 /MO | Industrial | Full Build-Out | Now |
| 2nd Floor | 10,980 SF | Negotiable | $6.00 /SF/YR $0.50 /SF/MO $65,880 /YR $5,490 /MO | Industrial | Full Build-Out | Now |
1st Floor
| Size |
| 25,280 SF |
| Term |
| Negotiable |
| Rental Rate |
| $6.00 /SF/YR $0.50 /SF/MO $151,680 /YR $12,640 /MO |
| Space Use |
| Industrial |
| Build-Out |
| Full Build-Out |
| Available |
| Now |
2nd Floor
| Size |
| 10,980 SF |
| Term |
| Negotiable |
| Rental Rate |
| $6.00 /SF/YR $0.50 /SF/MO $65,880 /YR $5,490 /MO |
| Space Use |
| Industrial |
| Build-Out |
| Full Build-Out |
| Available |
| Now |
1st Floor
| Size | 25,280 SF |
| Term | Negotiable |
| Rental Rate | $6.00 /SF/YR |
| Space Use | Industrial |
| Build-Out | Full Build-Out |
| Available | Now |
Position your operations in the heart of Allentown’s thriving industrial corridor with this versatile two-story facility at 801 W Greenleaf Street. Offering 36,260 SF of functional space, this property is designed to accommodate a wide range of production, storage, and distribution needs. The ground floor features multiple production rooms, maintenance shops, storage areas, and a dedicated office and break room, complemented by one dock door and one drive-in door for efficient loading and unloading. Ceiling heights range from 11’ to 15.5’, ensuring flexibility for equipment and racking systems. The second floor provides additional warehouse space with a 10’ clear ceiling height and a conditioned office area accessible from the street, ideal for administrative functions. A 3,500 lb. freight elevator enhances vertical movement, while robust infrastructure—including 920-amp, 3-phase electric service and a wet sprinkler system—supports heavy-duty operations. Public water, sewer, and gas utilities are in place, and the property includes a lighted parking lot for staff and visitors. Strategically located just one mile from Route 22 and minutes from I-78, I-476, and Route 309, this site offers exceptional connectivity to major highways and the Lehigh Valley International Airport. Businesses benefit from proximity to Philadelphia (60 minutes) and New York City (90 minutes), placing you within a one-day drive of one-third of the U.S. population. This prime location in the Lehigh Valley—a dynamic hub for manufacturing and logistics—positions your company for growth and efficiency.
- Lease rate does not include utilities, property expenses or building services
- Includes 1,219 SF of dedicated office space
- Can be combined with additional space(s) for up to 36,260 SF of adjacent space
- Warehouse, offices
- freight elevator
- dock & drive-in doors
- available now
2nd Floor
| Size | 10,980 SF |
| Term | Negotiable |
| Rental Rate | $6.00 /SF/YR |
| Space Use | Industrial |
| Build-Out | Full Build-Out |
| Available | Now |
Position your operations in the heart of Allentown’s thriving industrial corridor with this versatile two-story facility at 801 W Greenleaf Street. Offering 36,260 SF of functional space, this property is designed to accommodate a wide range of production, storage, and distribution needs. The ground floor features multiple production rooms, maintenance shops, storage areas, and a dedicated office and break room, complemented by one dock door and one drive-in door for efficient loading and unloading. Ceiling heights range from 11’ to 15.5’, ensuring flexibility for equipment and racking systems. The second floor provides additional warehouse space with a 10’ clear ceiling height and a conditioned office area accessible from the street, ideal for administrative functions. A 3,500 lb. freight elevator enhances vertical movement, while robust infrastructure—including 920-amp, 3-phase electric service and a wet sprinkler system—supports heavy-duty operations. Public water, sewer, and gas utilities are in place, and the property includes a lighted parking lot for staff and visitors. Strategically located just one mile from Route 22 and minutes from I-78, I-476, and Route 309, this site offers exceptional connectivity to major highways and the Lehigh Valley International Airport. Businesses benefit from proximity to Philadelphia (60 minutes) and New York City (90 minutes), placing you within a one-day drive of one-third of the U.S. population. This prime location in the Lehigh Valley—a dynamic hub for manufacturing and logistics—positions your company for growth and efficiency.
- Lease rate does not include utilities, property expenses or building services
- Includes 1,219 SF of dedicated office space
- Can be combined with additional space(s) for up to 36,260 SF of adjacent space
- Warehouse, offices
- freight elevator
- dock & drive-in doors
- available now
Property Overview
• Two-story standalone 36,260 SF industrial for lease • Ground floor warehouse area features various production rooms, maintenance shops, storage, office area, and break room. One dock door, one drive-in door, and ceiling heights range from 11’-15.5’. • Second floor features warehouse space with 10’ clear ceiling height, plus conditioned office area of 1,219 SF, which is accessible from the street • Lighted Parking Lot included with lease • Freight Elevator rated at 3,500 lbs. • 920 amp, 3-phase electric, 240 volts • Wet sprinkler system • Public water, sewer, and gas
Warehouse Facility Facts
Select Tenants
- Floor
- Tenant Name
- Industry
- 1st
- Allentown Economic Development Corp
- -
- Multiple
- Spartan Brands
- Manufacturing
Presented by
801 W Greenleaf St
Hmm, there seems to have been an error sending your message. Please try again.
Thanks! Your message was sent.




