Your email has been sent.
The Crystal Pavilion 805 Third Ave 1,310 - 479,418 SF of 4-Star Office Space Available in New York, NY 10022



HIGHLIGHTS
- Iconic Midtown East tower designed by Emery Roth & Sons
- Abundant natural light and panoramic East River views
- Surrounded by luxury hotels and renowned restaurants
- Three-level atrium with fine dining and retail amenities
- Steps from Grand Central Terminal and multiple subway lines
- Premier location for corporate identity and visibility
ALL AVAILABLE SPACES(42)
Display Rental Rate as
- SPACE
- SIZE
- TERM
- RENTAL RATE
- SPACE USE
- CONDITION
- AVAILABLE
Recently built with 4 interior offices, 4 windowed offices, windowed conference room, 1 interior conference room, wet pantry, and reception area. Landlord will consider reasonable modifications.
- Fully Built-Out as Standard Office
- 8 Private Offices
- Space is in Excellent Condition
- Central Air Conditioning
- Mix of windowed and interior offices
- Mostly Open Floor Plan Layout
- 2 Conference Rooms
- Can be combined with additional space(s) for up to 10,640 SF of adjacent space
- Can be combined with adjacent suite
Recently built with 6 windowed offices, open area for 8-10, interior conference room. Landlord will consider reasonable modifications.
- Fully Built-Out as Standard Office
- Partitioned Offices
- Space is in Excellent Condition
- Natural Light
- Mostly Open Floor Plan Layout
- Conference Rooms
- Can be combined with additional space(s) for up to 10,640 SF of adjacent space
- Windowed offices and open work space
Great small office space, located right off elevator. Suite features 5 windowed office and 1 conference room
- Fully Built-Out as Law Office
- 1 Conference Room
- Space is in Excellent Condition
- Elevator Access
- Private offices and conference room.
- 5 Private Offices
- Finished Ceilings: 9’
- Can be combined with additional space(s) for up to 10,640 SF of adjacent space
- Direct elevator exposure
North facing suite with 5 windowed offices, interior conference room and some furniture included.
- Fully Built-Out as Standard Office
- 1 Conference Room
- Natural Light
- 5 Private Offices
- Can be combined with additional space(s) for up to 6,578 SF of adjacent space
- Partially furnished office suite
Built with 5 windowed offices, 1 interior conference room, 10 workstations, and wet pantry. Some furniture can be made available.
- Fully Built-Out as Standard Office
- 5 Private Offices
- 10 Workstations
- Natural Light
- Mostly Open Floor Plan Layout
- 1 Conference Room
- Can be combined with additional space(s) for up to 6,578 SF of adjacent space
- Available for immediate move in
Space to be delivered in white box condition. Landlord will build to a reasonable standard.
- Fully Built-Out as Standard Office
- Partitioned Offices
- Space is in Excellent Condition
- Central Air Conditioning
- Fully Carpeted
- Drop Ceilings
- Mostly Open Floor Plan Layout
- Conference Rooms
- Can be combined with additional space(s) for up to 15,846 SF of adjacent space
- Reception Area
- Corner Space
- Former law office
Space is built with 8 windowed offices, 2 internal offices, Internal conference room, pantry and large open area. Features double door entry.
- Fully Built-Out as Standard Office
- 10 Private Offices
- Can be combined with additional space(s) for up to 15,846 SF of adjacent space
- Mostly Open Floor Plan Layout
- 1 Conference Room
- Mix of windowed and internal offices.
Space is raw, landlord will consider building to a reasonable standard. Great corner unit facing South/East.
- Can be combined with additional space(s) for up to 15,846 SF of adjacent space
- Corner Space
- Corner office suite with open floor plan.
- Central Air Conditioning
- Open-Plan
Space is built with 7 windowed offices, 1 internal office, 1 windowed conference room, pantry and open area
- Fully Built-Out as Standard Office
- Partitioned Offices
- Space is in Excellent Condition
- Fully Carpeted
- Natural Light
- Mostly Open Floor Plan Layout
- 1 Conference Room
- Central Air Conditioning
- Drop Ceilings
- Mix of partitioned offices and open area.
Space is built with 9 offices, 1 conference room, reception, wet pantry, and open area. Landlord will consider reasonable modifications.
- Fully Built-Out as Standard Office
- 9 Private Offices
- Space is in Excellent Condition
- Available now for move in.
- Mostly Open Floor Plan Layout
- 1 Conference Room
- Central Air Conditioning
Space is built with 8 offices, 2 conference rooms, wet pantry, reception and potential to create large open area.
- Fully Built-Out as Standard Office
- 8 Private Offices
- Space is in Excellent Condition
- Central Air Conditioning
- Open-Plan
- Mostly Open Floor Plan Layout
- 2 Conference Rooms
- Can be combined with additional space(s) for up to 10,954 SF of adjacent space
- Corner Space
Recently built installation with 1 glass office, 1 glass conference room, wet pantry, open area and reception area. Some furniture can be made available.
- Fully Built-Out as Standard Office
- 1 Private Office
- Space is in Excellent Condition
- Central Air Conditioning
- Fully Carpeted
- Mix of partitioned offices and open space
- Mostly Open Floor Plan Layout
- 1 Conference Room
- Can be combined with additional space(s) for up to 10,954 SF of adjacent space
- Reception Area
- Drop Ceilings
- High end finishes and stainless pantry appliances
East-facing 11th floor office suite with reception, 1 interior conference room, 2 windowed offices, open area and pantry.
- Fully Built-Out as Standard Office
- 2 Private Offices
- Space is in Excellent Condition
- Reception Area
- Drop Ceilings
- Mostly Open Floor Plan Layout
- 1 Conference Room
- Central Air Conditioning
- Fully Carpeted
- Drop ceilings, carpet and 1 conference room
Space is recently built with 1 conference room, wet pantry, reception, and large open area. Third Avenue facing space.
- Partially Built-Out as Standard Office
- 1 Conference Room
- Natural Light
- Mostly Open Floor Plan Layout
- Can be combined with additional space(s) for up to 10,954 SF of adjacent space
- Third Avenue facing space.
Existing legal installation with 10 offices, 1 conference room, wet pantry, and reception. Landlord will consider reasonable modifications.
- Fully Built-Out as Standard Office
- 10 Private Offices
- Space is in Excellent Condition
- Reception Area
- Mostly Open Floor Plan Layout
- 1 Conference Room
- Can be combined with additional space(s) for up to 11,633 SF of adjacent space
- Available now for move in.
Existing legal services installation with 10 offices, 1 conference room, wet pantry, and reception. Landlord will consider reasonable modifications.
- Fully Built-Out as Standard Office
- Partitioned Offices
- Can be combined with additional space(s) for up to 11,633 SF of adjacent space
- Fully Carpeted
- Office suite with private offices.
- Mostly Open Floor Plan Layout
- Space is in Excellent Condition
- Central Air Conditioning
- Drop Ceilings
Recently built corner unit, with 4 offices, 1 conference room, wet pantry and open area. Landlord will consider reasonable modifications.
- Fully Built-Out as Standard Office
- 4 Private Offices
- Can be combined with additional space(s) for up to 6,696 SF of adjacent space
- Landlord will consider reasonable modifications.
- Mostly Open Floor Plan Layout
- 1 Conference Room
- Natural Light
Very bright corner unit with 3 offices, 2 conference rooms, wet pantry and open area.
- Fully Built-Out as Standard Office
- 3 Private Offices
- Space is in Excellent Condition
- Central Air Conditioning
- Corner Space
- Natural Light
- Mostly Open Floor Plan Layout
- 2 Conference Rooms
- Can be combined with additional space(s) for up to 6,696 SF of adjacent space
- Fully Carpeted
- Drop Ceilings
- Corner office suite with conference room.
West facing 14th floor office suite with glass conference room, open office area, pantry.
- Fully Built-Out as Standard Office
- 1 Conference Room
- Central Air Conditioning
- Open floor plan with conference room.
- Mostly Open Floor Plan Layout
- Space is in Excellent Condition
- Reception Area
River views. Move in condition. 5 windowed offices, interior conference room, small open area, pantry and reception. Faces South and East.
- Fully Built-Out as Standard Office
- 5 Private Offices
- Space is in Excellent Condition
- Move in condition
- Mostly Open Floor Plan Layout
- 1 Conference Room
- Central Air Conditioning
- Faces south and east with river views.
Existing legal services installation with 8 offices, 2 conference rooms, wet pantry, and reception. Landlord will consider reasonable modifications. Features great natural light and views.
- Fully Built-Out as Standard Office
- 8 Private Offices
- Space is in Excellent Condition
- Central Air Conditioning
- Natural Light
- Offices with river views
- Mostly Open Floor Plan Layout
- 2 Conference Rooms
- Can be combined with additional space(s) for up to 363,034 SF of adjacent space
- Reception Area
- Furnished and move in ready
15th floor office suite with reception, interior conference room, windowed conference room, bright open area, 2 windowed offices, IT and pantry and interior work room. Landlord will consider reasonable modifications.
- Fully Built-Out as Standard Office
- 2 Private Offices
- Space is in Excellent Condition
- Central Air Conditioning
- Mostly Open Floor Plan Layout
- 2 Conference Rooms
- Can be combined with additional space(s) for up to 363,034 SF of adjacent space
- Landlord will consider reasonable modifications.
To be delivered in white box condition, landlord to build.
- Fully Built-Out as Standard Office
- 4 Private Offices
- Space is in Excellent Condition
- Central Air Conditioning
- Mostly Open Floor Plan Layout
- 1 Conference Room
- Can be combined with additional space(s) for up to 363,034 SF of adjacent space
- 15th floor office suite available now
Trading floor build-out with two glass offices and one glass conference room. Faces North and West. Very bright. Pantry and small reception
- Fully Built-Out as Standard Office
- 2 Private Offices
- Space is in Excellent Condition
- Central Air Conditioning
- Mostly Open Floor Plan Layout
- 1 Conference Room
- Can be combined with additional space(s) for up to 363,034 SF of adjacent space
- Very bright 15th floor office with trading floor
Very bright east facing 15th floor office suite with Reception, 1 windowed office, open space and pantry.
- Fully Built-Out as Standard Office
- 1 Private Office
- Can be combined with additional space(s) for up to 363,034 SF of adjacent space
- Reception Area
- Very bright east facing 15th floor office suite.
- Mostly Open Floor Plan Layout
- Space is in Excellent Condition
- Central Air Conditioning
- Natural Light
Built with 17 offices and 2 conference rooms. Interconnecting stairs to the 17th floor in place. Features great natural light and views.
- Fully Built-Out as Standard Office
- 17 Private Offices
- Can be combined with additional space(s) for up to 363,034 SF of adjacent space
- Office suite available now for move in
- Mostly Open Floor Plan Layout
- 2 Conference Rooms
- Central Air Conditioning
Space is recently built with 5 offices, 1 conference room, wet pantry and open area
- Can be combined with additional space(s) for up to 363,034 SF of adjacent space
Space is recently built with 3 conference rooms and a large open area. Interconnecting staircase to the 16th floor in place. Features great natural light and views.
- Partially Built-Out as Standard Office
- 3 Conference Rooms
- Natural Light
- Open Floor Plan Layout
- Can be combined with additional space(s) for up to 363,034 SF of adjacent space
- 17th floor office suite available now for move in.
Full floor opportunity with great natural light and views.
- Fully Built-Out as Standard Office
- 2 Conference Rooms
- Natural Light
- 13 Private Offices
- Can be combined with additional space(s) for up to 363,034 SF of adjacent space
- Mix of open area and partitioned offices.
Full floor opportunity with a mix of partitioned offices and open areas. Available January 2027
- Partially Built-Out as Standard Office
- Can be combined with additional space(s) for up to 363,034 SF of adjacent space
- Entire office floor available for move in
- Mostly Open Floor Plan Layout
- Natural Light
Full floor opportunity with great natural light and views.
- Fully Built-Out as Standard Office
- 6 Private Offices
- Can be combined with additional space(s) for up to 363,034 SF of adjacent space
- Mix of open area and partitioned offices.
- Mostly Open Floor Plan Layout
- 1 Conference Room
- Natural Light
Full floor opportunity, recently built with 29 windowed offices and open area for 120+. Great natural light and East River views
- Fully Built-Out as Standard Office
- 29 Private Offices
- Can be combined with additional space(s) for up to 363,034 SF of adjacent space
- Mix of open area and partitioned offices.
- Mostly Open Floor Plan Layout
- 1 Conference Room
- Natural Light
Full floor opportunity with a mix of partitioned offices and open areas. Available January 2027
- Fully Built-Out as Standard Office
- Can be combined with additional space(s) for up to 363,034 SF of adjacent space
- Entire floor available for move in
- Mostly Open Floor Plan Layout
- Natural Light
Recently built full floor opportunity with 25 offices, 1 conference rooms and open area for 90+. Features high end installation, great natural light and views.
- Fully Built-Out as Standard Office
- 25 Private Offices
- Can be combined with additional space(s) for up to 363,034 SF of adjacent space
- Entire floor available for move in
- Mostly Open Floor Plan Layout
- 1 Conference Room
- Natural Light
Recently built full floor opportunity with 25 offices, 1 conference rooms and open area for 90+. Features high end installation, great natural light and views.
- Fully Built-Out as Standard Office
- 25 Private Offices
- Can be combined with additional space(s) for up to 363,034 SF of adjacent space
- Entire floor available for move in
- Mostly Open Floor Plan Layout
- 1 Conference Room
- Natural Light
Recently built full floor opportunity with 25 offices, 1 conference rooms and open area for 90+. Features high end installation, great natural light and views.
- Partially Built-Out as Standard Office
- 25 Private Offices
- Can be combined with additional space(s) for up to 363,034 SF of adjacent space
- Entire floor available for move in
- Mostly Open Floor Plan Layout
- 1 Conference Room
- Trading Floor
Recently built full floor opportunity with 25 offices, 1 conference rooms and open area for 90+. Features high end installation, great natural light and views.
- Can be combined with additional space(s) for up to 363,034 SF of adjacent space
Recently built full floor opportunity with 25 offices, 1 conference rooms and open area for 90+. Features high end installation, great natural light and views.
- Can be combined with additional space(s) for up to 363,034 SF of adjacent space
Recently built full floor opportunity with 25 offices, 1 conference rooms and open area for 90+. Features high end installation, great natural light and views.
- Can be combined with additional space(s) for up to 363,034 SF of adjacent space
Recently built full floor opportunity with 25 offices, 1 conference rooms and open area for 90+. Features high end installation, great natural light and views.
- Can be combined with additional space(s) for up to 363,034 SF of adjacent space
Full floor opportunity with 30 offices, 2 conference rooms, 3 smaller meeting rooms and open area for 30+. Features great natural light and views.
- Fully Built-Out as Standard Office
- 30 Private Offices
- Can be combined with additional space(s) for up to 32,596 SF of adjacent space
- Entire floor available for move in
- Mostly Open Floor Plan Layout
- 2 Conference Rooms
- Natural Light
Full floor penthouse opportunity with 14 offices, 1 conference room, open area for 11+. Space features 10-foot+ finished ceiling heights, an upgraded kitchen, high-top dining areas and a large wrap-around terrace with unobstructed views.
- Fully Built-Out as Standard Office
- 14 Private Offices
- Finished Ceilings: 10’
- Can be combined with additional space(s) for up to 32,596 SF of adjacent space
- Natural Light
- Mostly Open Floor Plan Layout
- 1 Conference Room
- Space is in Excellent Condition
- Balcony
- Penthouse full floor with high end finishes.
| Space | Size | Term | Rental Rate | Space Use | Condition | Available |
| 8th Floor, Ste 809 | 5,531 SF | Negotiable | Upon Request Upon Request Upon Request Upon Request | Office | Full Build-Out | Now |
| 8th Floor, Ste 810 | 2,718 SF | Negotiable | Upon Request Upon Request Upon Request Upon Request | Office | Full Build-Out | Now |
| 8th Floor, Ste 811 | 2,391 SF | Negotiable | Upon Request Upon Request Upon Request Upon Request | Office | Full Build-Out | Now |
| 8th Floor, Ste 820 | 3,789 SF | Negotiable | Upon Request Upon Request Upon Request Upon Request | Office | Full Build-Out | Now |
| 8th Floor, Ste 825 | 2,789 SF | Negotiable | Upon Request Upon Request Upon Request Upon Request | Office | Full Build-Out | Now |
| 9th Floor, Ste 920 | 3,239 SF | Negotiable | Upon Request Upon Request Upon Request Upon Request | Office | Full Build-Out | Now |
| 9th Floor, Ste 930 | 5,897 SF | Negotiable | Upon Request Upon Request Upon Request Upon Request | Office | Full Build-Out | Now |
| 9th Floor, Ste 940 | 6,710 SF | Negotiable | Upon Request Upon Request Upon Request Upon Request | Office | - | Now |
| 10th Floor | 8,389 SF | Negotiable | Upon Request Upon Request Upon Request Upon Request | Office | Full Build-Out | Now |
| 10th Floor, Ste 1030 | 5,742 SF | Negotiable | Upon Request Upon Request Upon Request Upon Request | Office | Full Build-Out | Now |
| 11th Floor | 5,373 SF | Negotiable | Upon Request Upon Request Upon Request Upon Request | Office | Full Build-Out | Now |
| 11th Floor, Ste 1110 | 2,081 SF | Negotiable | Upon Request Upon Request Upon Request Upon Request | Office | Full Build-Out | Now |
| 11th Floor, Ste 1120 | 3,083 SF | Negotiable | Upon Request Upon Request Upon Request Upon Request | Office | Full Build-Out | Now |
| 11th Floor, Ste 1135 | 3,500 SF | Negotiable | Upon Request Upon Request Upon Request Upon Request | Office | Partial Build-Out | Now |
| 12th Floor, Ste 1200 | 6,012 SF | Negotiable | Upon Request Upon Request Upon Request Upon Request | Office | Full Build-Out | Now |
| 12th Floor, Ste 1203 | 5,621 SF | Negotiable | Upon Request Upon Request Upon Request Upon Request | Office | Full Build-Out | Now |
| 12th Floor, Ste 1206 | 2,420 SF | Negotiable | Upon Request Upon Request Upon Request Upon Request | Office | Full Build-Out | Now |
| 12th Floor, Ste 1210 | 4,276 SF | Negotiable | Upon Request Upon Request Upon Request Upon Request | Office | Full Build-Out | Now |
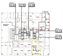
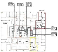
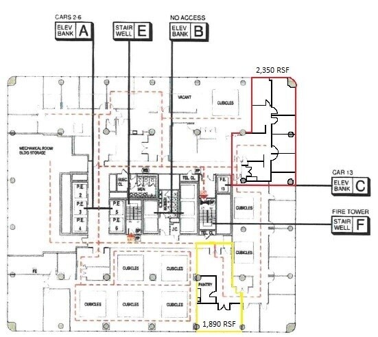
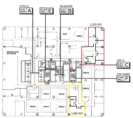
| 14th Floor, Ste 1421 | 1,890 SF | Negotiable | Upon Request Upon Request Upon Request Upon Request | Office | Full Build-Out | Now |
| 14th Floor, Ste 1450 | 2,337 SF | Negotiable | Upon Request Upon Request Upon Request Upon Request | Office | Full Build-Out | Now |
| 15th Floor, Ste 1500 | 6,239 SF | Negotiable | Upon Request Upon Request Upon Request Upon Request | Office | Full Build-Out | Now |
| 15th Floor, Ste 1520 | 3,035 SF | Negotiable | Upon Request Upon Request Upon Request Upon Request | Office | Full Build-Out | Now |
| 15th Floor, Ste 1540 | 2,197 SF | Negotiable | Upon Request Upon Request Upon Request Upon Request | Office | Full Build-Out | Now |
| 15th Floor, Ste 1550 | 3,221 SF | Negotiable | Upon Request Upon Request Upon Request Upon Request | Office | Full Build-Out | Now |
| 15th Floor, Ste 1560 | 1,310 SF | Negotiable | Upon Request Upon Request Upon Request Upon Request | Office | Full Build-Out | Now |
| 16th Floor | 24,183 SF | Negotiable | Upon Request Upon Request Upon Request Upon Request | Office | Full Build-Out | Now |
| 16th Floor, Ste 1600 | 3,897 SF | Negotiable | Upon Request Upon Request Upon Request Upon Request | Office | - | Now |
| 17th Floor | 24,465 SF | Negotiable | Upon Request Upon Request Upon Request Upon Request | Office | Partial Build-Out | Now |
| 18th Floor | 23,871 SF | Negotiable | Upon Request Upon Request Upon Request Upon Request | Office | Full Build-Out | Now |
| 19th Floor | 24,902 SF | Negotiable | Upon Request Upon Request Upon Request Upon Request | Office | Partial Build-Out | January 01, 2027 |
| 20th Floor, Ste 2000 | 5,500-24,902 SF | Negotiable | Upon Request Upon Request Upon Request Upon Request | Office | Full Build-Out | Now |
| 21st Floor | 24,902 SF | Negotiable | Upon Request Upon Request Upon Request Upon Request | Office | Full Build-Out | Now |
| 22nd Floor | 24,902 SF | Negotiable | Upon Request Upon Request Upon Request Upon Request | Office | Full Build-Out | January 01, 2027 |
| 23rd Floor | 23,800 SF | Negotiable | Upon Request Upon Request Upon Request Upon Request | Office | Full Build-Out | Now |
| 24th Floor | 23,800 SF | Negotiable | Upon Request Upon Request Upon Request Upon Request | Office | Full Build-Out | Now |
| 25th Floor | 23,800 SF | Negotiable | Upon Request Upon Request Upon Request Upon Request | Office | Partial Build-Out | Now |
| 26th Floor | 24,902 SF | Negotiable | Upon Request Upon Request Upon Request Upon Request | Office | - | January 01, 2027 |
| 27th Floor | 24,902 SF | Negotiable | Upon Request Upon Request Upon Request Upon Request | Office | - | January 01, 2027 |
| 28th Floor | 24,902 SF | Negotiable | Upon Request Upon Request Upon Request Upon Request | Office | - | January 01, 2027 |
| 29th Floor | 24,902 SF | Negotiable | Upon Request Upon Request Upon Request Upon Request | Office | Full Build-Out | January 01, 2027 |
| 30th Floor | 24,902 SF | Negotiable | Upon Request Upon Request Upon Request Upon Request | Office | Full Build-Out | Now |
| Penthouse, Ste Penthouse | 7,694 SF | Negotiable | Upon Request Upon Request Upon Request Upon Request | Office | Full Build-Out | Now |
8th Floor, Ste 809
| Size |
| 5,531 SF |
| Term |
| Negotiable |
| Rental Rate |
| Upon Request Upon Request Upon Request Upon Request |
| Space Use |
| Office |
| Condition |
| Full Build-Out |
| Available |
| Now |
8th Floor, Ste 810
| Size |
| 2,718 SF |
| Term |
| Negotiable |
| Rental Rate |
| Upon Request Upon Request Upon Request Upon Request |
| Space Use |
| Office |
| Condition |
| Full Build-Out |
| Available |
| Now |
8th Floor, Ste 811
| Size |
| 2,391 SF |
| Term |
| Negotiable |
| Rental Rate |
| Upon Request Upon Request Upon Request Upon Request |
| Space Use |
| Office |
| Condition |
| Full Build-Out |
| Available |
| Now |
8th Floor, Ste 820
| Size |
| 3,789 SF |
| Term |
| Negotiable |
| Rental Rate |
| Upon Request Upon Request Upon Request Upon Request |
| Space Use |
| Office |
| Condition |
| Full Build-Out |
| Available |
| Now |
8th Floor, Ste 825
| Size |
| 2,789 SF |
| Term |
| Negotiable |
| Rental Rate |
| Upon Request Upon Request Upon Request Upon Request |
| Space Use |
| Office |
| Condition |
| Full Build-Out |
| Available |
| Now |
9th Floor, Ste 920
| Size |
| 3,239 SF |
| Term |
| Negotiable |
| Rental Rate |
| Upon Request Upon Request Upon Request Upon Request |
| Space Use |
| Office |
| Condition |
| Full Build-Out |
| Available |
| Now |
9th Floor, Ste 930
| Size |
| 5,897 SF |
| Term |
| Negotiable |
| Rental Rate |
| Upon Request Upon Request Upon Request Upon Request |
| Space Use |
| Office |
| Condition |
| Full Build-Out |
| Available |
| Now |
9th Floor, Ste 940
| Size |
| 6,710 SF |
| Term |
| Negotiable |
| Rental Rate |
| Upon Request Upon Request Upon Request Upon Request |
| Space Use |
| Office |
| Condition |
| - |
| Available |
| Now |
10th Floor
| Size |
| 8,389 SF |
| Term |
| Negotiable |
| Rental Rate |
| Upon Request Upon Request Upon Request Upon Request |
| Space Use |
| Office |
| Condition |
| Full Build-Out |
| Available |
| Now |
10th Floor, Ste 1030
| Size |
| 5,742 SF |
| Term |
| Negotiable |
| Rental Rate |
| Upon Request Upon Request Upon Request Upon Request |
| Space Use |
| Office |
| Condition |
| Full Build-Out |
| Available |
| Now |
11th Floor
| Size |
| 5,373 SF |
| Term |
| Negotiable |
| Rental Rate |
| Upon Request Upon Request Upon Request Upon Request |
| Space Use |
| Office |
| Condition |
| Full Build-Out |
| Available |
| Now |
11th Floor, Ste 1110
| Size |
| 2,081 SF |
| Term |
| Negotiable |
| Rental Rate |
| Upon Request Upon Request Upon Request Upon Request |
| Space Use |
| Office |
| Condition |
| Full Build-Out |
| Available |
| Now |
11th Floor, Ste 1120
| Size |
| 3,083 SF |
| Term |
| Negotiable |
| Rental Rate |
| Upon Request Upon Request Upon Request Upon Request |
| Space Use |
| Office |
| Condition |
| Full Build-Out |
| Available |
| Now |
11th Floor, Ste 1135
| Size |
| 3,500 SF |
| Term |
| Negotiable |
| Rental Rate |
| Upon Request Upon Request Upon Request Upon Request |
| Space Use |
| Office |
| Condition |
| Partial Build-Out |
| Available |
| Now |
12th Floor, Ste 1200
| Size |
| 6,012 SF |
| Term |
| Negotiable |
| Rental Rate |
| Upon Request Upon Request Upon Request Upon Request |
| Space Use |
| Office |
| Condition |
| Full Build-Out |
| Available |
| Now |
12th Floor, Ste 1203
| Size |
| 5,621 SF |
| Term |
| Negotiable |
| Rental Rate |
| Upon Request Upon Request Upon Request Upon Request |
| Space Use |
| Office |
| Condition |
| Full Build-Out |
| Available |
| Now |
12th Floor, Ste 1206
| Size |
| 2,420 SF |
| Term |
| Negotiable |
| Rental Rate |
| Upon Request Upon Request Upon Request Upon Request |
| Space Use |
| Office |
| Condition |
| Full Build-Out |
| Available |
| Now |
12th Floor, Ste 1210
| Size |
| 4,276 SF |
| Term |
| Negotiable |
| Rental Rate |
| Upon Request Upon Request Upon Request Upon Request |
| Space Use |
| Office |
| Condition |
| Full Build-Out |
| Available |
| Now |
14th Floor, Ste 1421
| Size |
| 1,890 SF |
| Term |
| Negotiable |
| Rental Rate |
| Upon Request Upon Request Upon Request Upon Request |
| Space Use |
| Office |
| Condition |
| Full Build-Out |
| Available |
| Now |
14th Floor, Ste 1450
| Size |
| 2,337 SF |
| Term |
| Negotiable |
| Rental Rate |
| Upon Request Upon Request Upon Request Upon Request |
| Space Use |
| Office |
| Condition |
| Full Build-Out |
| Available |
| Now |
15th Floor, Ste 1500
| Size |
| 6,239 SF |
| Term |
| Negotiable |
| Rental Rate |
| Upon Request Upon Request Upon Request Upon Request |
| Space Use |
| Office |
| Condition |
| Full Build-Out |
| Available |
| Now |
15th Floor, Ste 1520
| Size |
| 3,035 SF |
| Term |
| Negotiable |
| Rental Rate |
| Upon Request Upon Request Upon Request Upon Request |
| Space Use |
| Office |
| Condition |
| Full Build-Out |
| Available |
| Now |
15th Floor, Ste 1540
| Size |
| 2,197 SF |
| Term |
| Negotiable |
| Rental Rate |
| Upon Request Upon Request Upon Request Upon Request |
| Space Use |
| Office |
| Condition |
| Full Build-Out |
| Available |
| Now |
15th Floor, Ste 1550
| Size |
| 3,221 SF |
| Term |
| Negotiable |
| Rental Rate |
| Upon Request Upon Request Upon Request Upon Request |
| Space Use |
| Office |
| Condition |
| Full Build-Out |
| Available |
| Now |
15th Floor, Ste 1560
| Size |
| 1,310 SF |
| Term |
| Negotiable |
| Rental Rate |
| Upon Request Upon Request Upon Request Upon Request |
| Space Use |
| Office |
| Condition |
| Full Build-Out |
| Available |
| Now |
16th Floor
| Size |
| 24,183 SF |
| Term |
| Negotiable |
| Rental Rate |
| Upon Request Upon Request Upon Request Upon Request |
| Space Use |
| Office |
| Condition |
| Full Build-Out |
| Available |
| Now |
16th Floor, Ste 1600
| Size |
| 3,897 SF |
| Term |
| Negotiable |
| Rental Rate |
| Upon Request Upon Request Upon Request Upon Request |
| Space Use |
| Office |
| Condition |
| - |
| Available |
| Now |
17th Floor
| Size |
| 24,465 SF |
| Term |
| Negotiable |
| Rental Rate |
| Upon Request Upon Request Upon Request Upon Request |
| Space Use |
| Office |
| Condition |
| Partial Build-Out |
| Available |
| Now |
18th Floor
| Size |
| 23,871 SF |
| Term |
| Negotiable |
| Rental Rate |
| Upon Request Upon Request Upon Request Upon Request |
| Space Use |
| Office |
| Condition |
| Full Build-Out |
| Available |
| Now |
19th Floor
| Size |
| 24,902 SF |
| Term |
| Negotiable |
| Rental Rate |
| Upon Request Upon Request Upon Request Upon Request |
| Space Use |
| Office |
| Condition |
| Partial Build-Out |
| Available |
| January 01, 2027 |
20th Floor, Ste 2000
| Size |
| 5,500-24,902 SF |
| Term |
| Negotiable |
| Rental Rate |
| Upon Request Upon Request Upon Request Upon Request |
| Space Use |
| Office |
| Condition |
| Full Build-Out |
| Available |
| Now |
21st Floor
| Size |
| 24,902 SF |
| Term |
| Negotiable |
| Rental Rate |
| Upon Request Upon Request Upon Request Upon Request |
| Space Use |
| Office |
| Condition |
| Full Build-Out |
| Available |
| Now |
22nd Floor
| Size |
| 24,902 SF |
| Term |
| Negotiable |
| Rental Rate |
| Upon Request Upon Request Upon Request Upon Request |
| Space Use |
| Office |
| Condition |
| Full Build-Out |
| Available |
| January 01, 2027 |
23rd Floor
| Size |
| 23,800 SF |
| Term |
| Negotiable |
| Rental Rate |
| Upon Request Upon Request Upon Request Upon Request |
| Space Use |
| Office |
| Condition |
| Full Build-Out |
| Available |
| Now |
24th Floor
| Size |
| 23,800 SF |
| Term |
| Negotiable |
| Rental Rate |
| Upon Request Upon Request Upon Request Upon Request |
| Space Use |
| Office |
| Condition |
| Full Build-Out |
| Available |
| Now |
25th Floor
| Size |
| 23,800 SF |
| Term |
| Negotiable |
| Rental Rate |
| Upon Request Upon Request Upon Request Upon Request |
| Space Use |
| Office |
| Condition |
| Partial Build-Out |
| Available |
| Now |
26th Floor
| Size |
| 24,902 SF |
| Term |
| Negotiable |
| Rental Rate |
| Upon Request Upon Request Upon Request Upon Request |
| Space Use |
| Office |
| Condition |
| - |
| Available |
| January 01, 2027 |
27th Floor
| Size |
| 24,902 SF |
| Term |
| Negotiable |
| Rental Rate |
| Upon Request Upon Request Upon Request Upon Request |
| Space Use |
| Office |
| Condition |
| - |
| Available |
| January 01, 2027 |
28th Floor
| Size |
| 24,902 SF |
| Term |
| Negotiable |
| Rental Rate |
| Upon Request Upon Request Upon Request Upon Request |
| Space Use |
| Office |
| Condition |
| - |
| Available |
| January 01, 2027 |
29th Floor
| Size |
| 24,902 SF |
| Term |
| Negotiable |
| Rental Rate |
| Upon Request Upon Request Upon Request Upon Request |
| Space Use |
| Office |
| Condition |
| Full Build-Out |
| Available |
| January 01, 2027 |
30th Floor
| Size |
| 24,902 SF |
| Term |
| Negotiable |
| Rental Rate |
| Upon Request Upon Request Upon Request Upon Request |
| Space Use |
| Office |
| Condition |
| Full Build-Out |
| Available |
| Now |
Penthouse, Ste Penthouse
| Size |
| 7,694 SF |
| Term |
| Negotiable |
| Rental Rate |
| Upon Request Upon Request Upon Request Upon Request |
| Space Use |
| Office |
| Condition |
| Full Build-Out |
| Available |
| Now |
8th Floor, Ste 809
| Size | 5,531 SF |
| Term | Negotiable |
| Rental Rate | Upon Request |
| Space Use | Office |
| Condition | Full Build-Out |
| Available | Now |
Recently built with 4 interior offices, 4 windowed offices, windowed conference room, 1 interior conference room, wet pantry, and reception area. Landlord will consider reasonable modifications.
- Fully Built-Out as Standard Office
- Mostly Open Floor Plan Layout
- 8 Private Offices
- 2 Conference Rooms
- Space is in Excellent Condition
- Can be combined with additional space(s) for up to 10,640 SF of adjacent space
- Central Air Conditioning
- Can be combined with adjacent suite
- Mix of windowed and interior offices
8th Floor, Ste 810
| Size | 2,718 SF |
| Term | Negotiable |
| Rental Rate | Upon Request |
| Space Use | Office |
| Condition | Full Build-Out |
| Available | Now |
Recently built with 6 windowed offices, open area for 8-10, interior conference room. Landlord will consider reasonable modifications.
- Fully Built-Out as Standard Office
- Mostly Open Floor Plan Layout
- Partitioned Offices
- Conference Rooms
- Space is in Excellent Condition
- Can be combined with additional space(s) for up to 10,640 SF of adjacent space
- Natural Light
- Windowed offices and open work space
8th Floor, Ste 811
| Size | 2,391 SF |
| Term | Negotiable |
| Rental Rate | Upon Request |
| Space Use | Office |
| Condition | Full Build-Out |
| Available | Now |
Great small office space, located right off elevator. Suite features 5 windowed office and 1 conference room
- Fully Built-Out as Law Office
- 5 Private Offices
- 1 Conference Room
- Finished Ceilings: 9’
- Space is in Excellent Condition
- Can be combined with additional space(s) for up to 10,640 SF of adjacent space
- Elevator Access
- Direct elevator exposure
- Private offices and conference room.
8th Floor, Ste 820
| Size | 3,789 SF |
| Term | Negotiable |
| Rental Rate | Upon Request |
| Space Use | Office |
| Condition | Full Build-Out |
| Available | Now |
North facing suite with 5 windowed offices, interior conference room and some furniture included.
- Fully Built-Out as Standard Office
- 5 Private Offices
- 1 Conference Room
- Can be combined with additional space(s) for up to 6,578 SF of adjacent space
- Natural Light
- Partially furnished office suite
8th Floor, Ste 825
| Size | 2,789 SF |
| Term | Negotiable |
| Rental Rate | Upon Request |
| Space Use | Office |
| Condition | Full Build-Out |
| Available | Now |
Built with 5 windowed offices, 1 interior conference room, 10 workstations, and wet pantry. Some furniture can be made available.
- Fully Built-Out as Standard Office
- Mostly Open Floor Plan Layout
- 5 Private Offices
- 1 Conference Room
- 10 Workstations
- Can be combined with additional space(s) for up to 6,578 SF of adjacent space
- Natural Light
- Available for immediate move in
9th Floor, Ste 920
| Size | 3,239 SF |
| Term | Negotiable |
| Rental Rate | Upon Request |
| Space Use | Office |
| Condition | Full Build-Out |
| Available | Now |
Space to be delivered in white box condition. Landlord will build to a reasonable standard.
- Fully Built-Out as Standard Office
- Mostly Open Floor Plan Layout
- Partitioned Offices
- Conference Rooms
- Space is in Excellent Condition
- Can be combined with additional space(s) for up to 15,846 SF of adjacent space
- Central Air Conditioning
- Reception Area
- Fully Carpeted
- Corner Space
- Drop Ceilings
- Former law office
9th Floor, Ste 930
| Size | 5,897 SF |
| Term | Negotiable |
| Rental Rate | Upon Request |
| Space Use | Office |
| Condition | Full Build-Out |
| Available | Now |
Space is built with 8 windowed offices, 2 internal offices, Internal conference room, pantry and large open area. Features double door entry.
- Fully Built-Out as Standard Office
- Mostly Open Floor Plan Layout
- 10 Private Offices
- 1 Conference Room
- Can be combined with additional space(s) for up to 15,846 SF of adjacent space
- Mix of windowed and internal offices.
9th Floor, Ste 940
| Size | 6,710 SF |
| Term | Negotiable |
| Rental Rate | Upon Request |
| Space Use | Office |
| Condition | - |
| Available | Now |
Space is raw, landlord will consider building to a reasonable standard. Great corner unit facing South/East.
- Can be combined with additional space(s) for up to 15,846 SF of adjacent space
- Central Air Conditioning
- Corner Space
- Open-Plan
- Corner office suite with open floor plan.
10th Floor
| Size | 8,389 SF |
| Term | Negotiable |
| Rental Rate | Upon Request |
| Space Use | Office |
| Condition | Full Build-Out |
| Available | Now |
Space is built with 7 windowed offices, 1 internal office, 1 windowed conference room, pantry and open area
- Fully Built-Out as Standard Office
- Mostly Open Floor Plan Layout
- Partitioned Offices
- 1 Conference Room
- Space is in Excellent Condition
- Central Air Conditioning
- Fully Carpeted
- Drop Ceilings
- Natural Light
- Mix of partitioned offices and open area.
10th Floor, Ste 1030
| Size | 5,742 SF |
| Term | Negotiable |
| Rental Rate | Upon Request |
| Space Use | Office |
| Condition | Full Build-Out |
| Available | Now |
Space is built with 9 offices, 1 conference room, reception, wet pantry, and open area. Landlord will consider reasonable modifications.
- Fully Built-Out as Standard Office
- Mostly Open Floor Plan Layout
- 9 Private Offices
- 1 Conference Room
- Space is in Excellent Condition
- Central Air Conditioning
- Available now for move in.
11th Floor
| Size | 5,373 SF |
| Term | Negotiable |
| Rental Rate | Upon Request |
| Space Use | Office |
| Condition | Full Build-Out |
| Available | Now |
Space is built with 8 offices, 2 conference rooms, wet pantry, reception and potential to create large open area.
- Fully Built-Out as Standard Office
- Mostly Open Floor Plan Layout
- 8 Private Offices
- 2 Conference Rooms
- Space is in Excellent Condition
- Can be combined with additional space(s) for up to 10,954 SF of adjacent space
- Central Air Conditioning
- Corner Space
- Open-Plan
11th Floor, Ste 1110
| Size | 2,081 SF |
| Term | Negotiable |
| Rental Rate | Upon Request |
| Space Use | Office |
| Condition | Full Build-Out |
| Available | Now |
Recently built installation with 1 glass office, 1 glass conference room, wet pantry, open area and reception area. Some furniture can be made available.
- Fully Built-Out as Standard Office
- Mostly Open Floor Plan Layout
- 1 Private Office
- 1 Conference Room
- Space is in Excellent Condition
- Can be combined with additional space(s) for up to 10,954 SF of adjacent space
- Central Air Conditioning
- Reception Area
- Fully Carpeted
- Drop Ceilings
- Mix of partitioned offices and open space
- High end finishes and stainless pantry appliances
11th Floor, Ste 1120
| Size | 3,083 SF |
| Term | Negotiable |
| Rental Rate | Upon Request |
| Space Use | Office |
| Condition | Full Build-Out |
| Available | Now |
East-facing 11th floor office suite with reception, 1 interior conference room, 2 windowed offices, open area and pantry.
- Fully Built-Out as Standard Office
- Mostly Open Floor Plan Layout
- 2 Private Offices
- 1 Conference Room
- Space is in Excellent Condition
- Central Air Conditioning
- Reception Area
- Fully Carpeted
- Drop Ceilings
- Drop ceilings, carpet and 1 conference room
11th Floor, Ste 1135
| Size | 3,500 SF |
| Term | Negotiable |
| Rental Rate | Upon Request |
| Space Use | Office |
| Condition | Partial Build-Out |
| Available | Now |
Space is recently built with 1 conference room, wet pantry, reception, and large open area. Third Avenue facing space.
- Partially Built-Out as Standard Office
- Mostly Open Floor Plan Layout
- 1 Conference Room
- Can be combined with additional space(s) for up to 10,954 SF of adjacent space
- Natural Light
- Third Avenue facing space.
12th Floor, Ste 1200
| Size | 6,012 SF |
| Term | Negotiable |
| Rental Rate | Upon Request |
| Space Use | Office |
| Condition | Full Build-Out |
| Available | Now |
Existing legal installation with 10 offices, 1 conference room, wet pantry, and reception. Landlord will consider reasonable modifications.
- Fully Built-Out as Standard Office
- Mostly Open Floor Plan Layout
- 10 Private Offices
- 1 Conference Room
- Space is in Excellent Condition
- Can be combined with additional space(s) for up to 11,633 SF of adjacent space
- Reception Area
- Available now for move in.
12th Floor, Ste 1203
| Size | 5,621 SF |
| Term | Negotiable |
| Rental Rate | Upon Request |
| Space Use | Office |
| Condition | Full Build-Out |
| Available | Now |
Existing legal services installation with 10 offices, 1 conference room, wet pantry, and reception. Landlord will consider reasonable modifications.
- Fully Built-Out as Standard Office
- Mostly Open Floor Plan Layout
- Partitioned Offices
- Space is in Excellent Condition
- Can be combined with additional space(s) for up to 11,633 SF of adjacent space
- Central Air Conditioning
- Fully Carpeted
- Drop Ceilings
- Office suite with private offices.
12th Floor, Ste 1206
| Size | 2,420 SF |
| Term | Negotiable |
| Rental Rate | Upon Request |
| Space Use | Office |
| Condition | Full Build-Out |
| Available | Now |
Recently built corner unit, with 4 offices, 1 conference room, wet pantry and open area. Landlord will consider reasonable modifications.
- Fully Built-Out as Standard Office
- Mostly Open Floor Plan Layout
- 4 Private Offices
- 1 Conference Room
- Can be combined with additional space(s) for up to 6,696 SF of adjacent space
- Natural Light
- Landlord will consider reasonable modifications.
12th Floor, Ste 1210
| Size | 4,276 SF |
| Term | Negotiable |
| Rental Rate | Upon Request |
| Space Use | Office |
| Condition | Full Build-Out |
| Available | Now |
Very bright corner unit with 3 offices, 2 conference rooms, wet pantry and open area.
- Fully Built-Out as Standard Office
- Mostly Open Floor Plan Layout
- 3 Private Offices
- 2 Conference Rooms
- Space is in Excellent Condition
- Can be combined with additional space(s) for up to 6,696 SF of adjacent space
- Central Air Conditioning
- Fully Carpeted
- Corner Space
- Drop Ceilings
- Natural Light
- Corner office suite with conference room.
14th Floor, Ste 1421
| Size | 1,890 SF |
| Term | Negotiable |
| Rental Rate | Upon Request |
| Space Use | Office |
| Condition | Full Build-Out |
| Available | Now |
West facing 14th floor office suite with glass conference room, open office area, pantry.
- Fully Built-Out as Standard Office
- Mostly Open Floor Plan Layout
- 1 Conference Room
- Space is in Excellent Condition
- Central Air Conditioning
- Reception Area
- Open floor plan with conference room.
14th Floor, Ste 1450
| Size | 2,337 SF |
| Term | Negotiable |
| Rental Rate | Upon Request |
| Space Use | Office |
| Condition | Full Build-Out |
| Available | Now |
River views. Move in condition. 5 windowed offices, interior conference room, small open area, pantry and reception. Faces South and East.
- Fully Built-Out as Standard Office
- Mostly Open Floor Plan Layout
- 5 Private Offices
- 1 Conference Room
- Space is in Excellent Condition
- Central Air Conditioning
- Move in condition
- Faces south and east with river views.
15th Floor, Ste 1500
| Size | 6,239 SF |
| Term | Negotiable |
| Rental Rate | Upon Request |
| Space Use | Office |
| Condition | Full Build-Out |
| Available | Now |
Existing legal services installation with 8 offices, 2 conference rooms, wet pantry, and reception. Landlord will consider reasonable modifications. Features great natural light and views.
- Fully Built-Out as Standard Office
- Mostly Open Floor Plan Layout
- 8 Private Offices
- 2 Conference Rooms
- Space is in Excellent Condition
- Can be combined with additional space(s) for up to 363,034 SF of adjacent space
- Central Air Conditioning
- Reception Area
- Natural Light
- Furnished and move in ready
- Offices with river views
15th Floor, Ste 1520
| Size | 3,035 SF |
| Term | Negotiable |
| Rental Rate | Upon Request |
| Space Use | Office |
| Condition | Full Build-Out |
| Available | Now |
15th floor office suite with reception, interior conference room, windowed conference room, bright open area, 2 windowed offices, IT and pantry and interior work room. Landlord will consider reasonable modifications.
- Fully Built-Out as Standard Office
- Mostly Open Floor Plan Layout
- 2 Private Offices
- 2 Conference Rooms
- Space is in Excellent Condition
- Can be combined with additional space(s) for up to 363,034 SF of adjacent space
- Central Air Conditioning
- Landlord will consider reasonable modifications.
15th Floor, Ste 1540
| Size | 2,197 SF |
| Term | Negotiable |
| Rental Rate | Upon Request |
| Space Use | Office |
| Condition | Full Build-Out |
| Available | Now |
To be delivered in white box condition, landlord to build.
- Fully Built-Out as Standard Office
- Mostly Open Floor Plan Layout
- 4 Private Offices
- 1 Conference Room
- Space is in Excellent Condition
- Can be combined with additional space(s) for up to 363,034 SF of adjacent space
- Central Air Conditioning
- 15th floor office suite available now
15th Floor, Ste 1550
| Size | 3,221 SF |
| Term | Negotiable |
| Rental Rate | Upon Request |
| Space Use | Office |
| Condition | Full Build-Out |
| Available | Now |
Trading floor build-out with two glass offices and one glass conference room. Faces North and West. Very bright. Pantry and small reception
- Fully Built-Out as Standard Office
- Mostly Open Floor Plan Layout
- 2 Private Offices
- 1 Conference Room
- Space is in Excellent Condition
- Can be combined with additional space(s) for up to 363,034 SF of adjacent space
- Central Air Conditioning
- Very bright 15th floor office with trading floor
15th Floor, Ste 1560
| Size | 1,310 SF |
| Term | Negotiable |
| Rental Rate | Upon Request |
| Space Use | Office |
| Condition | Full Build-Out |
| Available | Now |
Very bright east facing 15th floor office suite with Reception, 1 windowed office, open space and pantry.
- Fully Built-Out as Standard Office
- Mostly Open Floor Plan Layout
- 1 Private Office
- Space is in Excellent Condition
- Can be combined with additional space(s) for up to 363,034 SF of adjacent space
- Central Air Conditioning
- Reception Area
- Natural Light
- Very bright east facing 15th floor office suite.
16th Floor
| Size | 24,183 SF |
| Term | Negotiable |
| Rental Rate | Upon Request |
| Space Use | Office |
| Condition | Full Build-Out |
| Available | Now |
Built with 17 offices and 2 conference rooms. Interconnecting stairs to the 17th floor in place. Features great natural light and views.
- Fully Built-Out as Standard Office
- Mostly Open Floor Plan Layout
- 17 Private Offices
- 2 Conference Rooms
- Can be combined with additional space(s) for up to 363,034 SF of adjacent space
- Central Air Conditioning
- Office suite available now for move in
16th Floor, Ste 1600
| Size | 3,897 SF |
| Term | Negotiable |
| Rental Rate | Upon Request |
| Space Use | Office |
| Condition | - |
| Available | Now |
Space is recently built with 5 offices, 1 conference room, wet pantry and open area
- Can be combined with additional space(s) for up to 363,034 SF of adjacent space
17th Floor
| Size | 24,465 SF |
| Term | Negotiable |
| Rental Rate | Upon Request |
| Space Use | Office |
| Condition | Partial Build-Out |
| Available | Now |
Space is recently built with 3 conference rooms and a large open area. Interconnecting staircase to the 16th floor in place. Features great natural light and views.
- Partially Built-Out as Standard Office
- Open Floor Plan Layout
- 3 Conference Rooms
- Can be combined with additional space(s) for up to 363,034 SF of adjacent space
- Natural Light
- 17th floor office suite available now for move in.
18th Floor
| Size | 23,871 SF |
| Term | Negotiable |
| Rental Rate | Upon Request |
| Space Use | Office |
| Condition | Full Build-Out |
| Available | Now |
Full floor opportunity with great natural light and views.
- Fully Built-Out as Standard Office
- 13 Private Offices
- 2 Conference Rooms
- Can be combined with additional space(s) for up to 363,034 SF of adjacent space
- Natural Light
- Mix of open area and partitioned offices.
19th Floor
| Size | 24,902 SF |
| Term | Negotiable |
| Rental Rate | Upon Request |
| Space Use | Office |
| Condition | Partial Build-Out |
| Available | January 01, 2027 |
Full floor opportunity with a mix of partitioned offices and open areas. Available January 2027
- Partially Built-Out as Standard Office
- Mostly Open Floor Plan Layout
- Can be combined with additional space(s) for up to 363,034 SF of adjacent space
- Natural Light
- Entire office floor available for move in
20th Floor, Ste 2000
| Size | 5,500-24,902 SF |
| Term | Negotiable |
| Rental Rate | Upon Request |
| Space Use | Office |
| Condition | Full Build-Out |
| Available | Now |
Full floor opportunity with great natural light and views.
- Fully Built-Out as Standard Office
- Mostly Open Floor Plan Layout
- 6 Private Offices
- 1 Conference Room
- Can be combined with additional space(s) for up to 363,034 SF of adjacent space
- Natural Light
- Mix of open area and partitioned offices.
21st Floor
| Size | 24,902 SF |
| Term | Negotiable |
| Rental Rate | Upon Request |
| Space Use | Office |
| Condition | Full Build-Out |
| Available | Now |
Full floor opportunity, recently built with 29 windowed offices and open area for 120+. Great natural light and East River views
- Fully Built-Out as Standard Office
- Mostly Open Floor Plan Layout
- 29 Private Offices
- 1 Conference Room
- Can be combined with additional space(s) for up to 363,034 SF of adjacent space
- Natural Light
- Mix of open area and partitioned offices.
22nd Floor
| Size | 24,902 SF |
| Term | Negotiable |
| Rental Rate | Upon Request |
| Space Use | Office |
| Condition | Full Build-Out |
| Available | January 01, 2027 |
Full floor opportunity with a mix of partitioned offices and open areas. Available January 2027
- Fully Built-Out as Standard Office
- Mostly Open Floor Plan Layout
- Can be combined with additional space(s) for up to 363,034 SF of adjacent space
- Natural Light
- Entire floor available for move in
23rd Floor
| Size | 23,800 SF |
| Term | Negotiable |
| Rental Rate | Upon Request |
| Space Use | Office |
| Condition | Full Build-Out |
| Available | Now |
Recently built full floor opportunity with 25 offices, 1 conference rooms and open area for 90+. Features high end installation, great natural light and views.
- Fully Built-Out as Standard Office
- Mostly Open Floor Plan Layout
- 25 Private Offices
- 1 Conference Room
- Can be combined with additional space(s) for up to 363,034 SF of adjacent space
- Natural Light
- Entire floor available for move in
24th Floor
| Size | 23,800 SF |
| Term | Negotiable |
| Rental Rate | Upon Request |
| Space Use | Office |
| Condition | Full Build-Out |
| Available | Now |
Recently built full floor opportunity with 25 offices, 1 conference rooms and open area for 90+. Features high end installation, great natural light and views.
- Fully Built-Out as Standard Office
- Mostly Open Floor Plan Layout
- 25 Private Offices
- 1 Conference Room
- Can be combined with additional space(s) for up to 363,034 SF of adjacent space
- Natural Light
- Entire floor available for move in
25th Floor
| Size | 23,800 SF |
| Term | Negotiable |
| Rental Rate | Upon Request |
| Space Use | Office |
| Condition | Partial Build-Out |
| Available | Now |
Recently built full floor opportunity with 25 offices, 1 conference rooms and open area for 90+. Features high end installation, great natural light and views.
- Partially Built-Out as Standard Office
- Mostly Open Floor Plan Layout
- 25 Private Offices
- 1 Conference Room
- Can be combined with additional space(s) for up to 363,034 SF of adjacent space
- Trading Floor
- Entire floor available for move in
26th Floor
| Size | 24,902 SF |
| Term | Negotiable |
| Rental Rate | Upon Request |
| Space Use | Office |
| Condition | - |
| Available | January 01, 2027 |
Recently built full floor opportunity with 25 offices, 1 conference rooms and open area for 90+. Features high end installation, great natural light and views.
- Can be combined with additional space(s) for up to 363,034 SF of adjacent space
27th Floor
| Size | 24,902 SF |
| Term | Negotiable |
| Rental Rate | Upon Request |
| Space Use | Office |
| Condition | - |
| Available | January 01, 2027 |
Recently built full floor opportunity with 25 offices, 1 conference rooms and open area for 90+. Features high end installation, great natural light and views.
- Can be combined with additional space(s) for up to 363,034 SF of adjacent space
28th Floor
| Size | 24,902 SF |
| Term | Negotiable |
| Rental Rate | Upon Request |
| Space Use | Office |
| Condition | - |
| Available | January 01, 2027 |
Recently built full floor opportunity with 25 offices, 1 conference rooms and open area for 90+. Features high end installation, great natural light and views.
- Can be combined with additional space(s) for up to 363,034 SF of adjacent space
29th Floor
| Size | 24,902 SF |
| Term | Negotiable |
| Rental Rate | Upon Request |
| Space Use | Office |
| Condition | Full Build-Out |
| Available | January 01, 2027 |
Recently built full floor opportunity with 25 offices, 1 conference rooms and open area for 90+. Features high end installation, great natural light and views.
- Can be combined with additional space(s) for up to 363,034 SF of adjacent space
30th Floor
| Size | 24,902 SF |
| Term | Negotiable |
| Rental Rate | Upon Request |
| Space Use | Office |
| Condition | Full Build-Out |
| Available | Now |
Full floor opportunity with 30 offices, 2 conference rooms, 3 smaller meeting rooms and open area for 30+. Features great natural light and views.
- Fully Built-Out as Standard Office
- Mostly Open Floor Plan Layout
- 30 Private Offices
- 2 Conference Rooms
- Can be combined with additional space(s) for up to 32,596 SF of adjacent space
- Natural Light
- Entire floor available for move in
Penthouse, Ste Penthouse
| Size | 7,694 SF |
| Term | Negotiable |
| Rental Rate | Upon Request |
| Space Use | Office |
| Condition | Full Build-Out |
| Available | Now |
Full floor penthouse opportunity with 14 offices, 1 conference room, open area for 11+. Space features 10-foot+ finished ceiling heights, an upgraded kitchen, high-top dining areas and a large wrap-around terrace with unobstructed views.
- Fully Built-Out as Standard Office
- Mostly Open Floor Plan Layout
- 14 Private Offices
- 1 Conference Room
- Finished Ceilings: 10’
- Space is in Excellent Condition
- Can be combined with additional space(s) for up to 32,596 SF of adjacent space
- Balcony
- Natural Light
- Penthouse full floor with high end finishes.
PROPERTY OVERVIEW
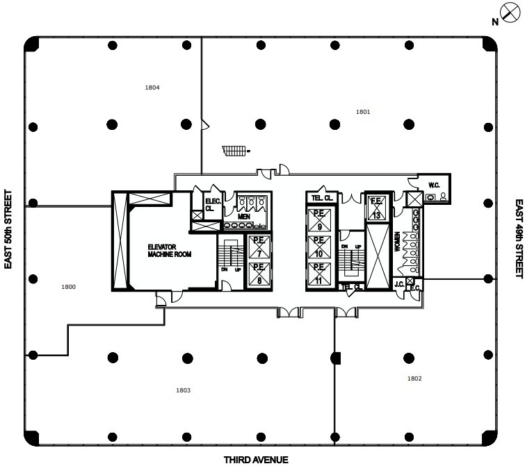
805 Third Avenue, also known as The Crystal Pavilion, is a distinguished Midtown East office tower offering a blend of architectural pedigree and modern convenience. Designed by Emery Roth & Sons, this 31-story building stands prominently at the corner of Third Avenue and East 50th Street, steps from Grand Central Terminal and surrounded by top-tier hotels, restaurants, and transit options. The building features a striking three-level public atrium lined with upscale dining and retail, creating a vibrant and elegant arrival experience for tenants and visitors. Its design maximizes natural light and delivers sweeping views of the East River and Manhattan skyline, contributing to a productive and inspiring work environment. 805 Third Avenue benefits from exceptional commuter access, with the E/M subway lines just three blocks away and the 6 train at 51st Street only two blocks from the property. Multiple bus lines and proximity to Grand Central Terminal further enhance regional connectivity, making it a strategic location for firms seeking convenience and prestige. The surrounding neighborhood is a hub of business activity and lifestyle amenities, with renowned restaurants such as Smith & Wollensky, The Grill, and Avra Estiatorio, as well as luxury hotels like the Waldorf Astoria and Lotte New York Palace. This dynamic setting supports both corporate operations and client-facing engagement.
- 24 Hour Access
- Atrium
- Bus Line
- Food Service
- Metro/Subway
- Restaurant
- Security System
- Air Conditioning
- On-Site Security Staff
PROPERTY FACTS
SELECT TENANTS
- FLOOR
- TENANT NAME
- INDUSTRY
- 14th
- Alpha Alternatives
- Professional, Scientific, and Technical Services
- Multiple
- Extell Development Company
- Real Estate
- 2nd
- Gyu-Kaku Japanese BBQ
- Accommodation and Food Services
- Multiple
- Kroll Bond Rating Agency, LLC.
- Administrative and Support Services
- 19th
- Newsmax Media
- Information
- 14th
- RBSM LLP
- Professional, Scientific, and Technical Services
- 11th
- Seven Points Capital LLC
- Finance and Insurance
- 12th
- The Pagan Law Firm, P.C.
- Professional, Scientific, and Technical Services
- 10th
- Thylan Associates, Inc.
- Real Estate
- 10th
- Toyota Tsusho America
- Professional, Scientific, and Technical Services
Presented by
The Crystal Pavilion | 805 Third Ave
Hmm, there seems to have been an error sending your message. Please try again.
Thanks! Your message was sent.






























































