Your email has been sent.
Highlights
- 4 Computerized High-speed Elevators
- Card Access, On-site Security & Nightly Patrols
- Sound-controlled Environment
- 10’ Restricted Loading Area
- Spectacular Views
- 292 Unreserved Parking Stalls
All Available Spaces(5)
Display Rental Rate as
- Space
- Size
- Term
- Rental Rate
- Space Use
- Build-Out
- Available
Corner office suite with large reception area and three private offices.
- Fully Built-Out as Standard Office
- 3 Private Offices
- Reception Area
- Mostly Open Floor Plan Layout
- Space In Need of Renovation
- Corner Space
Medical office built out with 4 offices, reception and waiting room with beautiful water and mountain views.
- Fully Built-Out as Standard Office
- 4 Private Offices
- Mostly Open Floor Plan Layout
- Reception Area
Built-out space with a kitchenette, private office, and open area.
- 1 Private Office
- Open-Plan
- Kitchen
Large reception area and staff room, several offices.
- Fully Built-Out as Standard Office
- 4 Private Offices
- Mostly Open Floor Plan Layout
- Reception Area
Fully built-out space featuring a kitchen, two private offices, welcoming reception area, and seating area for visitors.
- Fully Built-Out as Standard Office
- 2 Private Offices
- Kitchen
- Mostly Open Floor Plan Layout
- Reception Area
| Space | Size | Term | Rental Rate | Space Use | Build-Out | Available |
| 8th Floor, Ste 801 | 934 SF | Negotiable | Upon Request Upon Request Upon Request Upon Request | Office/Medical | Full Build-Out | Now |
| 8th Floor, Ste 803 | 923 SF | Negotiable | Upon Request Upon Request Upon Request Upon Request | Office/Medical | Full Build-Out | Now |
| 9th Floor, Ste 907 | 593 SF | Negotiable | Upon Request Upon Request Upon Request Upon Request | Office/Medical | Full Build-Out | Now |
| 10th Floor, Ste 1001 | 1,290 SF | Negotiable | Upon Request Upon Request Upon Request Upon Request | Office/Medical | Full Build-Out | Now |
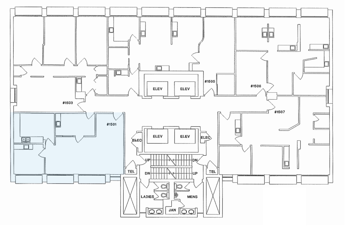
| 15th Floor, Ste 1501 | 818 SF | Negotiable | Upon Request Upon Request Upon Request Upon Request | Office/Medical | Full Build-Out | Now |
8th Floor, Ste 801
| Size |
| 934 SF |
| Term |
| Negotiable |
| Rental Rate |
| Upon Request Upon Request Upon Request Upon Request |
| Space Use |
| Office/Medical |
| Build-Out |
| Full Build-Out |
| Available |
| Now |
8th Floor, Ste 803
| Size |
| 923 SF |
| Term |
| Negotiable |
| Rental Rate |
| Upon Request Upon Request Upon Request Upon Request |
| Space Use |
| Office/Medical |
| Build-Out |
| Full Build-Out |
| Available |
| Now |
9th Floor, Ste 907
| Size |
| 593 SF |
| Term |
| Negotiable |
| Rental Rate |
| Upon Request Upon Request Upon Request Upon Request |
| Space Use |
| Office/Medical |
| Build-Out |
| Full Build-Out |
| Available |
| Now |
10th Floor, Ste 1001
| Size |
| 1,290 SF |
| Term |
| Negotiable |
| Rental Rate |
| Upon Request Upon Request Upon Request Upon Request |
| Space Use |
| Office/Medical |
| Build-Out |
| Full Build-Out |
| Available |
| Now |
15th Floor, Ste 1501
| Size |
| 818 SF |
| Term |
| Negotiable |
| Rental Rate |
| Upon Request Upon Request Upon Request Upon Request |
| Space Use |
| Office/Medical |
| Build-Out |
| Full Build-Out |
| Available |
| Now |
8th Floor, Ste 801
| Size | 934 SF |
| Term | Negotiable |
| Rental Rate | Upon Request |
| Space Use | Office/Medical |
| Build-Out | Full Build-Out |
| Available | Now |
Corner office suite with large reception area and three private offices.
- Fully Built-Out as Standard Office
- Mostly Open Floor Plan Layout
- 3 Private Offices
- Space In Need of Renovation
- Reception Area
- Corner Space
8th Floor, Ste 803
| Size | 923 SF |
| Term | Negotiable |
| Rental Rate | Upon Request |
| Space Use | Office/Medical |
| Build-Out | Full Build-Out |
| Available | Now |
Medical office built out with 4 offices, reception and waiting room with beautiful water and mountain views.
- Fully Built-Out as Standard Office
- Mostly Open Floor Plan Layout
- 4 Private Offices
- Reception Area
9th Floor, Ste 907
| Size | 593 SF |
| Term | Negotiable |
| Rental Rate | Upon Request |
| Space Use | Office/Medical |
| Build-Out | Full Build-Out |
| Available | Now |
Built-out space with a kitchenette, private office, and open area.
- 1 Private Office
- Kitchen
- Open-Plan
10th Floor, Ste 1001
| Size | 1,290 SF |
| Term | Negotiable |
| Rental Rate | Upon Request |
| Space Use | Office/Medical |
| Build-Out | Full Build-Out |
| Available | Now |
Large reception area and staff room, several offices.
- Fully Built-Out as Standard Office
- Mostly Open Floor Plan Layout
- 4 Private Offices
- Reception Area
15th Floor, Ste 1501
| Size | 818 SF |
| Term | Negotiable |
| Rental Rate | Upon Request |
| Space Use | Office/Medical |
| Build-Out | Full Build-Out |
| Available | Now |
Fully built-out space featuring a kitchen, two private offices, welcoming reception area, and seating area for visitors.
- Fully Built-Out as Standard Office
- Mostly Open Floor Plan Layout
- 2 Private Offices
- Reception Area
- Kitchen
Property Overview
805 West Broadway, located one block north of Vancouver General Hospital, is offering one of the most comprehensive office facilities to the professions of health sciences. In addition to the proximity to one of the largest health complexes in Canada, it is also the pivot location from which other major Vancouver hospitals can be reached within five minutes driving time: VGH 100m, BC Women’s Hospital 2.7km, St. Paul’s Hospital 3.4km, and Mount St. Joseph hospital 2.3km. The building office units are directed towards the utmost flexibility to accommodate the doctors with individual or group practices and integrated clinics. The retail units are directed towards a broad range of potential uses. The unique design of the project presents a novel solution in creating a better environment within and around the building. Lots of parking for clients and staff. The landlord will consider a range of office and retail type uses, including medical, dental, therapeutic, health care related, insurance office, or general business office use.
- Atrium
- Bio-Tech/ Lab Space
- Bus Line
- Controlled Access
- Metro/Subway
- Property Manager on Site
- Restaurant
- Security System
- Wheelchair Accessible
- Air Conditioning
- Smoke Detector
- On-Site Security Staff
Property Facts
Presented by
805 W Broadway
Hmm, there seems to have been an error sending your message. Please try again.
Thanks! Your message was sent.













