Your email has been sent.
Highlights
- Economic Development Investment Program (EDIP) – Grants provided by Chesapeake based on job creation, wages and company investment
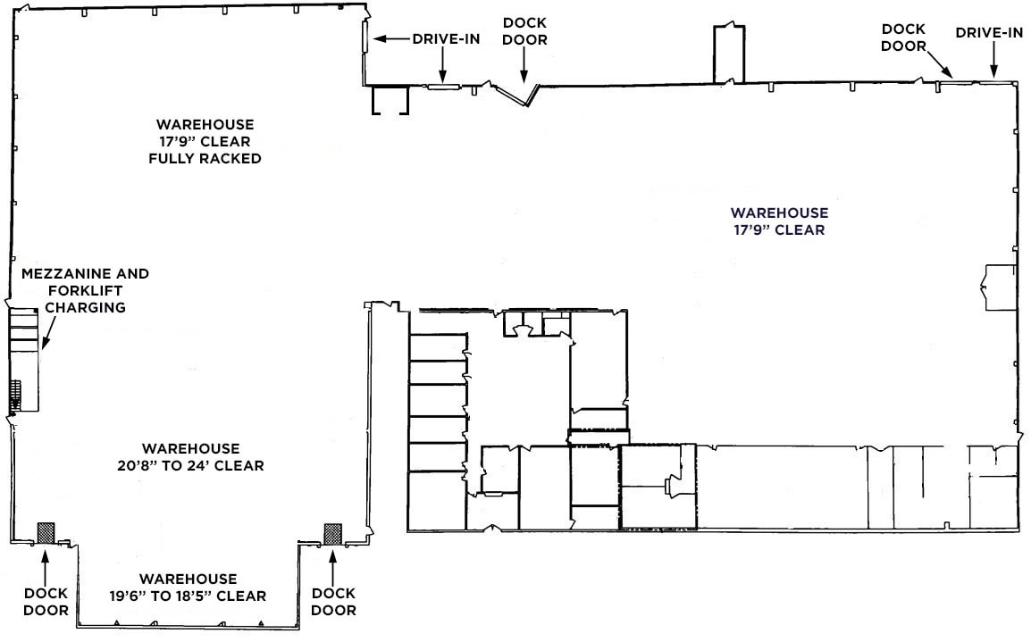
- Small mezzanine with forklift charging area underneath to stay
- Building is fully conditioned
- Commonwealth Opportunity Fund (COF), Virginia Jobs Investment Program, Green Job Creation Tax Credit, Port of Virginia Economic and Infrastructure Dev
Features
All Available Space(1)
Display Rental Rate as
- Space
- Size
- Term
- Rental Rate
- Space Use
- Build-Out
- Available
Warehouse clear heights range from roughly 17’9” to 24’.
- Lease rate does not include utilities, property expenses or building services
- 3 Drive Ins
- 4 Loading Docks
- EOD levelers on rear of building
- Includes 10,082 SF of dedicated office space
- Space is in Excellent Condition
- Drop Ceilings
- Pit levelers on front of building
| Space | Size | Term | Rental Rate | Space Use | Build-Out | Available |
| 1st Floor | 64,060 SF | Negotiable | $11.50 /SF/YR $0.96 /SF/MO $736,690 /YR $61,391 /MO | Industrial | Full Build-Out | Now |
1st Floor
| Size |
| 64,060 SF |
| Term |
| Negotiable |
| Rental Rate |
| $11.50 /SF/YR $0.96 /SF/MO $736,690 /YR $61,391 /MO |
| Space Use |
| Industrial |
| Build-Out |
| Full Build-Out |
| Available |
| Now |
1st Floor
| Size | 64,060 SF |
| Term | Negotiable |
| Rental Rate | $11.50 /SF/YR |
| Space Use | Industrial |
| Build-Out | Full Build-Out |
| Available | Now |
Warehouse clear heights range from roughly 17’9” to 24’.
- Lease rate does not include utilities, property expenses or building services
- Includes 10,082 SF of dedicated office space
- 3 Drive Ins
- Space is in Excellent Condition
- 4 Loading Docks
- Drop Ceilings
- EOD levelers on rear of building
- Pit levelers on front of building
Property Overview
The Greenbrier submarket sits in the heart of the Hampton Roads MSA, offering easy access to Norfolk, Virginia Beach, and Portsmouth via I-64, the MSA’s main arterial roadway. Conveniently located with direct interstate access, the Property can accommodate commuters from the entire Hampton Roads area while benefiting from close proximity to major corporate users. Greenbrier is a dense trade area with over 3M SF of office space, 8M SF of industrial space, and 4.2M SF of existing retail space, making it the largest mixed-use development and most highly sought-after submarket in the entire region.
Manufacturing Facility Facts
Presented by
809 Principal Ct
Hmm, there seems to have been an error sending your message. Please try again.
Thanks! Your message was sent.





