Your email has been sent.
8131 LBJ 8131 Lyndon B Johnson Fwy 1,082 - 131,902 SF of 4-Star Office Space Available in Dallas, TX 75251



HIGHLIGHTS
- Direct Access to US-75 and Interstate 635, Close Proximity to Numerous Restaurants/Retail
- New Tenant Lounge
- Covered Parking
- Onsite Security
- Grab n’ Go Food Service
- Training Room
ALL AVAILABLE SPACES(14)
Display Rental Rate as
- SPACE
- SIZE
- TERM
- RENTAL RATE
- SPACE USE
- CONDITION
- AVAILABLE
This first floor space is located in the corner of the building and has multiple offices, open area, and a break room.
- Listed lease rate plus proportional share of electrical cost
- Mostly Open Floor Plan Layout
- 1 Conference Room
- Corner Space
- Fully Built-Out as Standard Office
- 4 Private Offices
- Space is in Excellent Condition
Four private offices and reception area.
- Listed lease rate plus proportional share of electrical cost
- 4 Private Offices
- Corner Space
- Fully Built-Out as Standard Office
- Space is in Excellent Condition
Suite 115 recently completed a massive facelift. It contains 3 offices with sidelights, a beautiful large glass conference room, open area for workstations, and a break area with updated countertops and millwork.
- Listed lease rate plus proportional share of electrical cost
- 1 Conference Room
- Kitchen
- Corner Space
- Natural Light
- Virtual Tour Link - https://tour.giraffe360.com/81
- 3 Private Offices
- Central Air Conditioning
- Wi-Fi Connectivity
- High Ceilings
- Open-Plan
2nd generation space with multiple private offices throughout, a break room, dedication reception area and large conference room.
- Listed lease rate plus proportional share of electrical cost
- 15 Private Offices
- Space is in Excellent Condition
- Elevator Access
- Natural Light
- Fully Built-Out as Standard Office
- 2 Conference Rooms
- Central Air Conditioning
- Corner Space
- Atrium
Mostly open plan that has one conference room, one office, reception area, break room, and storage closet. This space is perfect for a small to mid size sales team.
- Listed lease rate plus proportional share of electrical cost
- Mostly Open Floor Plan Layout
- 1 Conference Room
- Corner Space
- Fully Built-Out as Standard Office
- 1 Private Office
- Reception Area
- Secure Storage
Spec Suite 260 has a reception area, conference room, 4 private offices and break room as well as a large open office area.
- Listed lease rate plus proportional share of electrical cost
- 4 Private Offices
- 1 Workstation
- Mostly Open Floor Plan Layout
- 1 Conference Room
- Reception Area
Suite 325 has direct access to a central stairwell.
- Listed lease rate plus proportional share of electrical cost
- Mostly Open Floor Plan Layout
- 1 Conference Room
- Can be combined with additional space(s) for up to 9,683 SF of adjacent space
- Reception Area
- Fully Built-Out as Standard Office
- 4 Private Offices
- Space is in Excellent Condition
- Central Air Conditioning
Shell Space available to be built to exact specifications.
- Listed lease rate plus proportional share of electrical cost
- Can be combined with additional space(s) for up to 9,683 SF of adjacent space
- Open Floor Plan Layout
- Elevator Access
Large floor plan with multiple private offices throughout. The 4th floor has the ability to be demised down to 4,366 square feet if necessary.
- Listed lease rate plus proportional share of electrical cost
- Office intensive layout
- Can be combined with additional space(s) for up to 51,462 SF of adjacent space
- Corner Space
- Fully Built-Out as Standard Office
- Space is in Excellent Condition
- Central Air Conditioning
Full floor opportunity or able to be demised. Suite 500 can be demised into smaller space to accommodate a smaller company if needed. The attachments show how we could demise the space to accommodate a 3,000-4,000 square foot user or a 7,000-8,000 square foot user or even a 10,000-12,000 square foot user.
- Listed lease rate plus proportional share of electrical cost
- 4 Private Offices
- Space is in Excellent Condition
- Central Air Conditioning
- Secure Storage
- Partially Built-Out as Standard Office
- 1 Conference Room
- Can be combined with additional space(s) for up to 51,462 SF of adjacent space
- Corner Space
Suite 725 has 4 offices, a conference room, and reception area.
- Listed lease rate plus proportional share of electrical cost
- 4 Private Offices
- Space is in Excellent Condition
- Reception Area
- Natural Light
- Fully Built-Out as Standard Office
- 1 Conference Room
- Central Air Conditioning
- Wi-Fi Connectivity
- Virtual Tour link - https://tour.giraffe360.com/3d
Spec Suite with 2 offices, a conference room, open area for workstations, and an open break area.
- Listed lease rate plus proportional share of electrical cost
- 1 Conference Room
- Kitchen
- Natural Light
- Virtual Tour link - https://tour.giraffe360.com/81
- 2 Private Offices
- Space is in Excellent Condition
- Wi-Fi Connectivity
- Open-Plan
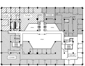
The 8th floor has ~20,000 square feet vacant. There is great views from the top floor of the building along with multiple offices, break room, and open area for cubicles. The floor can be subdivided since there is already a corridor in place.
- Listed lease rate plus proportional share of electrical cost
- 2 Private Offices
- 50 Workstations
- Elevator Access
- Corner Space
- Fully Built-Out as Standard Office
- 7 Conference Rooms
- Space is in Excellent Condition
- Private Restrooms
- Atrium
| Space | Size | Term | Rental Rate | Space Use | Condition | Available |
| 1st Floor, Ste 105 | 2,055 SF | 3-10 Years | $18.00 /SF/YR $1.50 /SF/MO $36,990 /YR $3,083 /MO | Office | Full Build-Out | Now |
| 1st Floor, Ste 110 | 1,082 SF | 3-5 Years | $18.00 /SF/YR $1.50 /SF/MO $19,476 /YR $1,623 /MO | Office | Full Build-Out | Now |
| 1st Floor, Ste Spec Suite 115 | 3,183 SF | 3-5 Years | $18.00 /SF/YR $1.50 /SF/MO $57,294 /YR $4,775 /MO | Office | Spec Suite | Now |
| 2nd Floor, Ste 220 | 5,720 SF | 3-5 Years | $18.00 /SF/YR $1.50 /SF/MO $102,960 /YR $8,580 /MO | Office | Full Build-Out | Now |
| 2nd Floor, Ste 280 | 4,069 SF | 3-5 Years | $18.00 /SF/YR $1.50 /SF/MO $73,242 /YR $6,104 /MO | Office | Full Build-Out | Now |
| 2nd Floor, Ste Spec Suite 260 | 1,981 SF | 3-10 Years | $18.00 /SF/YR $1.50 /SF/MO $35,658 /YR $2,972 /MO | Office | Spec Suite | Now |
| 3rd Floor, Ste 325 | 4,016 SF | 3-5 Years | $18.00 /SF/YR $1.50 /SF/MO $72,288 /YR $6,024 /MO | Office | Full Build-Out | Now |
| 3rd Floor, Ste 330 | 5,667 SF | 3-5 Years | $18.00 /SF/YR $1.50 /SF/MO $102,006 /YR $8,501 /MO | Office | Shell Space | Now |
| 4th Floor, Ste 400 | 4,336-22,609 SF | 3-5 Years | $18.00 /SF/YR $1.50 /SF/MO $406,962 /YR $33,914 /MO | Office | Full Build-Out | 30 Days |
| 5th Floor, Ste 500 | 18,210-28,853 SF | 3-5 Years | $18.00 /SF/YR $1.50 /SF/MO $519,354 /YR $43,280 /MO | Office | Partial Build-Out | Now |
| 6th Floor, Ste 600 | 29,299 SF | 3-5 Years | $19.00 /SF/YR $1.58 /SF/MO $556,681 /YR $46,390 /MO | Office | - | January 01, 2026 |
| 7th Floor, Ste 725 | 1,372 SF | 3-5 Years | $18.00 /SF/YR $1.50 /SF/MO $24,696 /YR $2,058 /MO | Office | Full Build-Out | Now |
| 7th Floor, Ste Spec Suite 780 | 1,627 SF | 3-5 Years | $18.00 /SF/YR $1.50 /SF/MO $29,286 /YR $2,441 /MO | Office | Spec Suite | Now |
| 8th Floor, Ste 800 | 8,405-20,369 SF | 3-5 Years | $18.00 /SF/YR $1.50 /SF/MO $366,642 /YR $30,554 /MO | Office | Full Build-Out | Now |
1st Floor, Ste 105
| Size |
| 2,055 SF |
| Term |
| 3-10 Years |
| Rental Rate |
| $18.00 /SF/YR $1.50 /SF/MO $36,990 /YR $3,083 /MO |
| Space Use |
| Office |
| Condition |
| Full Build-Out |
| Available |
| Now |
1st Floor, Ste 110
| Size |
| 1,082 SF |
| Term |
| 3-5 Years |
| Rental Rate |
| $18.00 /SF/YR $1.50 /SF/MO $19,476 /YR $1,623 /MO |
| Space Use |
| Office |
| Condition |
| Full Build-Out |
| Available |
| Now |
1st Floor, Ste Spec Suite 115
| Size |
| 3,183 SF |
| Term |
| 3-5 Years |
| Rental Rate |
| $18.00 /SF/YR $1.50 /SF/MO $57,294 /YR $4,775 /MO |
| Space Use |
| Office |
| Condition |
| Spec Suite |
| Available |
| Now |
2nd Floor, Ste 220
| Size |
| 5,720 SF |
| Term |
| 3-5 Years |
| Rental Rate |
| $18.00 /SF/YR $1.50 /SF/MO $102,960 /YR $8,580 /MO |
| Space Use |
| Office |
| Condition |
| Full Build-Out |
| Available |
| Now |
2nd Floor, Ste 280
| Size |
| 4,069 SF |
| Term |
| 3-5 Years |
| Rental Rate |
| $18.00 /SF/YR $1.50 /SF/MO $73,242 /YR $6,104 /MO |
| Space Use |
| Office |
| Condition |
| Full Build-Out |
| Available |
| Now |
2nd Floor, Ste Spec Suite 260
| Size |
| 1,981 SF |
| Term |
| 3-10 Years |
| Rental Rate |
| $18.00 /SF/YR $1.50 /SF/MO $35,658 /YR $2,972 /MO |
| Space Use |
| Office |
| Condition |
| Spec Suite |
| Available |
| Now |
3rd Floor, Ste 325
| Size |
| 4,016 SF |
| Term |
| 3-5 Years |
| Rental Rate |
| $18.00 /SF/YR $1.50 /SF/MO $72,288 /YR $6,024 /MO |
| Space Use |
| Office |
| Condition |
| Full Build-Out |
| Available |
| Now |
3rd Floor, Ste 330
| Size |
| 5,667 SF |
| Term |
| 3-5 Years |
| Rental Rate |
| $18.00 /SF/YR $1.50 /SF/MO $102,006 /YR $8,501 /MO |
| Space Use |
| Office |
| Condition |
| Shell Space |
| Available |
| Now |
4th Floor, Ste 400
| Size |
| 4,336-22,609 SF |
| Term |
| 3-5 Years |
| Rental Rate |
| $18.00 /SF/YR $1.50 /SF/MO $406,962 /YR $33,914 /MO |
| Space Use |
| Office |
| Condition |
| Full Build-Out |
| Available |
| 30 Days |
5th Floor, Ste 500
| Size |
| 18,210-28,853 SF |
| Term |
| 3-5 Years |
| Rental Rate |
| $18.00 /SF/YR $1.50 /SF/MO $519,354 /YR $43,280 /MO |
| Space Use |
| Office |
| Condition |
| Partial Build-Out |
| Available |
| Now |
6th Floor, Ste 600
| Size |
| 29,299 SF |
| Term |
| 3-5 Years |
| Rental Rate |
| $19.00 /SF/YR $1.58 /SF/MO $556,681 /YR $46,390 /MO |
| Space Use |
| Office |
| Condition |
| - |
| Available |
| January 01, 2026 |
7th Floor, Ste 725
| Size |
| 1,372 SF |
| Term |
| 3-5 Years |
| Rental Rate |
| $18.00 /SF/YR $1.50 /SF/MO $24,696 /YR $2,058 /MO |
| Space Use |
| Office |
| Condition |
| Full Build-Out |
| Available |
| Now |
7th Floor, Ste Spec Suite 780
| Size |
| 1,627 SF |
| Term |
| 3-5 Years |
| Rental Rate |
| $18.00 /SF/YR $1.50 /SF/MO $29,286 /YR $2,441 /MO |
| Space Use |
| Office |
| Condition |
| Spec Suite |
| Available |
| Now |
8th Floor, Ste 800
| Size |
| 8,405-20,369 SF |
| Term |
| 3-5 Years |
| Rental Rate |
| $18.00 /SF/YR $1.50 /SF/MO $366,642 /YR $30,554 /MO |
| Space Use |
| Office |
| Condition |
| Full Build-Out |
| Available |
| Now |
1st Floor, Ste 105
| Size | 2,055 SF |
| Term | 3-10 Years |
| Rental Rate | $18.00 /SF/YR |
| Space Use | Office |
| Condition | Full Build-Out |
| Available | Now |
This first floor space is located in the corner of the building and has multiple offices, open area, and a break room.
- Listed lease rate plus proportional share of electrical cost
- Fully Built-Out as Standard Office
- Mostly Open Floor Plan Layout
- 4 Private Offices
- 1 Conference Room
- Space is in Excellent Condition
- Corner Space
1st Floor, Ste 110
| Size | 1,082 SF |
| Term | 3-5 Years |
| Rental Rate | $18.00 /SF/YR |
| Space Use | Office |
| Condition | Full Build-Out |
| Available | Now |
Four private offices and reception area.
- Listed lease rate plus proportional share of electrical cost
- Fully Built-Out as Standard Office
- 4 Private Offices
- Space is in Excellent Condition
- Corner Space
1st Floor, Ste Spec Suite 115
| Size | 3,183 SF |
| Term | 3-5 Years |
| Rental Rate | $18.00 /SF/YR |
| Space Use | Office |
| Condition | Spec Suite |
| Available | Now |
Suite 115 recently completed a massive facelift. It contains 3 offices with sidelights, a beautiful large glass conference room, open area for workstations, and a break area with updated countertops and millwork.
- Listed lease rate plus proportional share of electrical cost
- 3 Private Offices
- 1 Conference Room
- Central Air Conditioning
- Kitchen
- Wi-Fi Connectivity
- Corner Space
- High Ceilings
- Natural Light
- Open-Plan
- Virtual Tour Link - https://tour.giraffe360.com/81
2nd Floor, Ste 220
| Size | 5,720 SF |
| Term | 3-5 Years |
| Rental Rate | $18.00 /SF/YR |
| Space Use | Office |
| Condition | Full Build-Out |
| Available | Now |
2nd generation space with multiple private offices throughout, a break room, dedication reception area and large conference room.
- Listed lease rate plus proportional share of electrical cost
- Fully Built-Out as Standard Office
- 15 Private Offices
- 2 Conference Rooms
- Space is in Excellent Condition
- Central Air Conditioning
- Elevator Access
- Corner Space
- Natural Light
- Atrium
2nd Floor, Ste 280
| Size | 4,069 SF |
| Term | 3-5 Years |
| Rental Rate | $18.00 /SF/YR |
| Space Use | Office |
| Condition | Full Build-Out |
| Available | Now |
Mostly open plan that has one conference room, one office, reception area, break room, and storage closet. This space is perfect for a small to mid size sales team.
- Listed lease rate plus proportional share of electrical cost
- Fully Built-Out as Standard Office
- Mostly Open Floor Plan Layout
- 1 Private Office
- 1 Conference Room
- Reception Area
- Corner Space
- Secure Storage
2nd Floor, Ste Spec Suite 260
| Size | 1,981 SF |
| Term | 3-10 Years |
| Rental Rate | $18.00 /SF/YR |
| Space Use | Office |
| Condition | Spec Suite |
| Available | Now |
Spec Suite 260 has a reception area, conference room, 4 private offices and break room as well as a large open office area.
- Listed lease rate plus proportional share of electrical cost
- Mostly Open Floor Plan Layout
- 4 Private Offices
- 1 Conference Room
- 1 Workstation
- Reception Area
3rd Floor, Ste 325
| Size | 4,016 SF |
| Term | 3-5 Years |
| Rental Rate | $18.00 /SF/YR |
| Space Use | Office |
| Condition | Full Build-Out |
| Available | Now |
Suite 325 has direct access to a central stairwell.
- Listed lease rate plus proportional share of electrical cost
- Fully Built-Out as Standard Office
- Mostly Open Floor Plan Layout
- 4 Private Offices
- 1 Conference Room
- Space is in Excellent Condition
- Can be combined with additional space(s) for up to 9,683 SF of adjacent space
- Central Air Conditioning
- Reception Area
3rd Floor, Ste 330
| Size | 5,667 SF |
| Term | 3-5 Years |
| Rental Rate | $18.00 /SF/YR |
| Space Use | Office |
| Condition | Shell Space |
| Available | Now |
Shell Space available to be built to exact specifications.
- Listed lease rate plus proportional share of electrical cost
- Open Floor Plan Layout
- Can be combined with additional space(s) for up to 9,683 SF of adjacent space
- Elevator Access
4th Floor, Ste 400
| Size | 4,336-22,609 SF |
| Term | 3-5 Years |
| Rental Rate | $18.00 /SF/YR |
| Space Use | Office |
| Condition | Full Build-Out |
| Available | 30 Days |
Large floor plan with multiple private offices throughout. The 4th floor has the ability to be demised down to 4,366 square feet if necessary.
- Listed lease rate plus proportional share of electrical cost
- Fully Built-Out as Standard Office
- Office intensive layout
- Space is in Excellent Condition
- Can be combined with additional space(s) for up to 51,462 SF of adjacent space
- Central Air Conditioning
- Corner Space
5th Floor, Ste 500
| Size | 18,210-28,853 SF |
| Term | 3-5 Years |
| Rental Rate | $18.00 /SF/YR |
| Space Use | Office |
| Condition | Partial Build-Out |
| Available | Now |
Full floor opportunity or able to be demised. Suite 500 can be demised into smaller space to accommodate a smaller company if needed. The attachments show how we could demise the space to accommodate a 3,000-4,000 square foot user or a 7,000-8,000 square foot user or even a 10,000-12,000 square foot user.
- Listed lease rate plus proportional share of electrical cost
- Partially Built-Out as Standard Office
- 4 Private Offices
- 1 Conference Room
- Space is in Excellent Condition
- Can be combined with additional space(s) for up to 51,462 SF of adjacent space
- Central Air Conditioning
- Corner Space
- Secure Storage
6th Floor, Ste 600
| Size | 29,299 SF |
| Term | 3-5 Years |
| Rental Rate | $19.00 /SF/YR |
| Space Use | Office |
| Condition | - |
| Available | January 01, 2026 |
7th Floor, Ste 725
| Size | 1,372 SF |
| Term | 3-5 Years |
| Rental Rate | $18.00 /SF/YR |
| Space Use | Office |
| Condition | Full Build-Out |
| Available | Now |
Suite 725 has 4 offices, a conference room, and reception area.
- Listed lease rate plus proportional share of electrical cost
- Fully Built-Out as Standard Office
- 4 Private Offices
- 1 Conference Room
- Space is in Excellent Condition
- Central Air Conditioning
- Reception Area
- Wi-Fi Connectivity
- Natural Light
- Virtual Tour link - https://tour.giraffe360.com/3d
7th Floor, Ste Spec Suite 780
| Size | 1,627 SF |
| Term | 3-5 Years |
| Rental Rate | $18.00 /SF/YR |
| Space Use | Office |
| Condition | Spec Suite |
| Available | Now |
Spec Suite with 2 offices, a conference room, open area for workstations, and an open break area.
- Listed lease rate plus proportional share of electrical cost
- 2 Private Offices
- 1 Conference Room
- Space is in Excellent Condition
- Kitchen
- Wi-Fi Connectivity
- Natural Light
- Open-Plan
- Virtual Tour link - https://tour.giraffe360.com/81
8th Floor, Ste 800
| Size | 8,405-20,369 SF |
| Term | 3-5 Years |
| Rental Rate | $18.00 /SF/YR |
| Space Use | Office |
| Condition | Full Build-Out |
| Available | Now |
The 8th floor has ~20,000 square feet vacant. There is great views from the top floor of the building along with multiple offices, break room, and open area for cubicles. The floor can be subdivided since there is already a corridor in place.
- Listed lease rate plus proportional share of electrical cost
- Fully Built-Out as Standard Office
- 2 Private Offices
- 7 Conference Rooms
- 50 Workstations
- Space is in Excellent Condition
- Elevator Access
- Private Restrooms
- Corner Space
- Atrium
PROPERTY OVERVIEW
Welcome to the reinvigorated building under new ownership, poised to infuse vibrant energy into its surroundings. The building boasts a brand-new ambiance, thanks to recent renovations that have transformed the lobby and other common areas. Upon entering, you'll be greeted by the stunningly renovated lobby, now an inviting and modern space that sets the tone for the entire building. It's a welcoming area that sets a new standard for elegance and functionality. For the convenience and pleasure of its tenants, the building offers a state-of-the-art tenant lounge—a perfect retreat for relaxation and networking. Additionally, there's a convenient grab-and-go café, catering to those seeking a quick refreshment during busy workdays. A well-equipped tenant boardroom and a spacious tenant conference center provide ideal venues for meetings, presentations, and collaborations, enhancing the overall work environment. Parking is hassle-free with a structured parking facility, ensuring that tenants and visitors have easy access and peace of mind. The 3:5/1000 parking ratio assures ample space for all. In terms of visibility and branding, the building offers the opportunity for monument signage, allowing tenants to showcase their presence prominently. It's a building where business thrives, and opportunities abound. Welcome to the future of your workspace.
- Conferencing Facility
- Food Service
- Security System
- Signage

































