Your email has been sent.
The Lodge 818 Main 3,119 SF of Office Space Available in Lapel, IN 46051



All Available Space(1)
Display Rental Rate as
- Space
- Size
- Term
- Rental Rate
- Space Use
- Build-Out
- Available
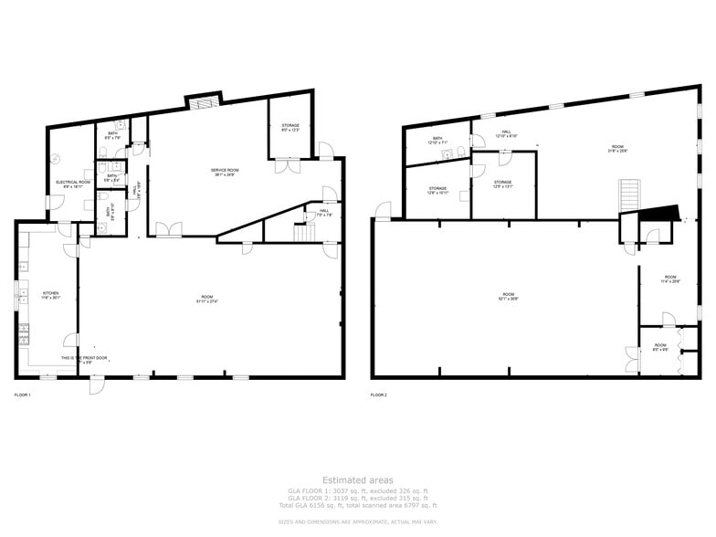
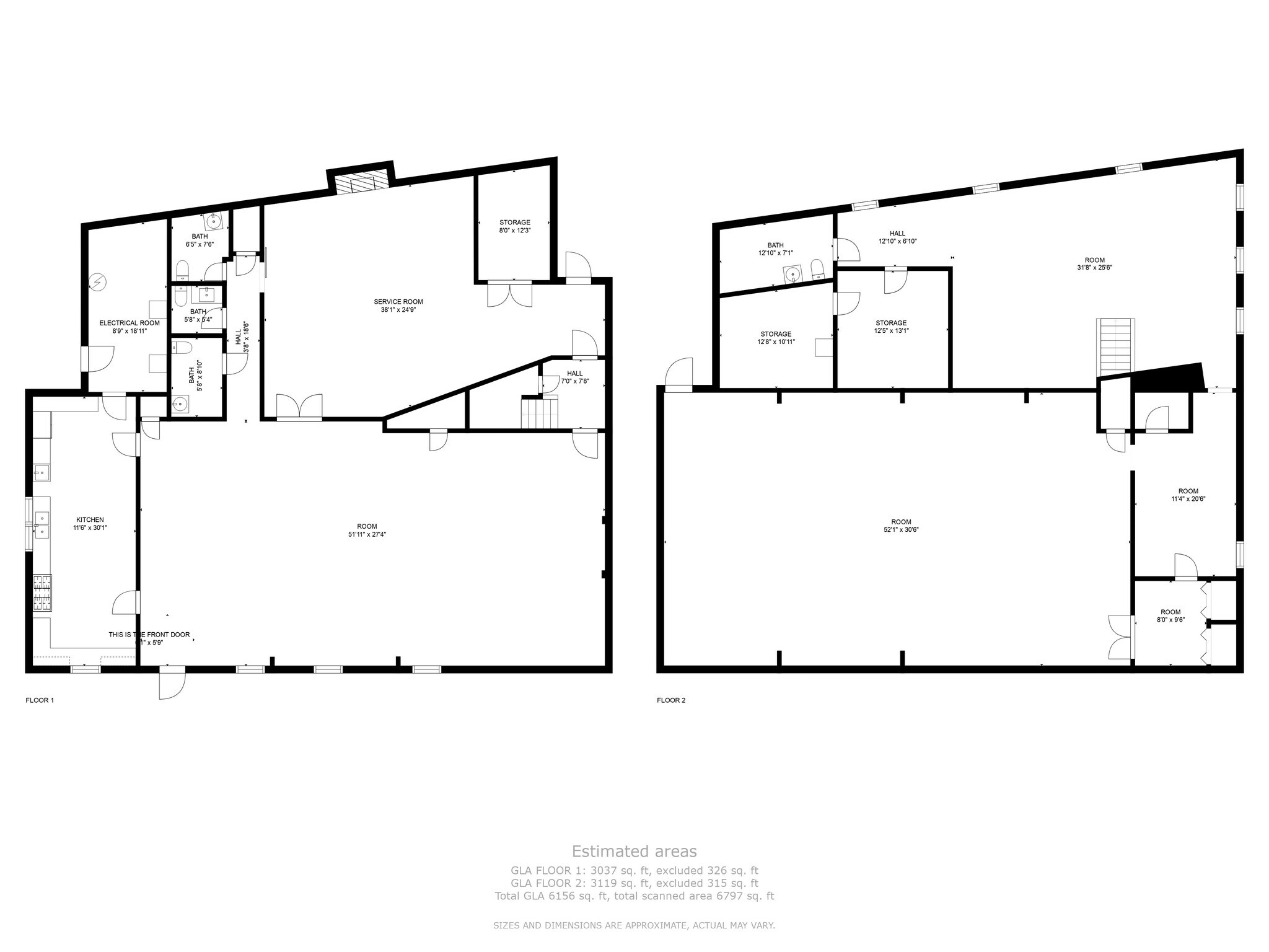
A quaint 2 story commercial building in the heart of downtown Lapel, IN. Renovated and currently used for event rentals and church service. Looking for a tenant to lease the 2nd floor, and/or activate the 1st floor during the week, or lease the entire building. Floor plans show mostly open area ready for any business.
- Open Floor Plan Layout
- Kitchen
- Space is in Excellent Condition
- Open-Plan
| Space | Size | Term | Rental Rate | Space Use | Build-Out | Available |
| 2nd Floor | 3,119 SF | Negotiable | Upon Request Upon Request Upon Request Upon Request | Office | Partial Build-Out | 30 Days |
2nd Floor
| Size |
| 3,119 SF |
| Term |
| Negotiable |
| Rental Rate |
| Upon Request Upon Request Upon Request Upon Request |
| Space Use |
| Office |
| Build-Out |
| Partial Build-Out |
| Available |
| 30 Days |
2nd Floor
| Size | 3,119 SF |
| Term | Negotiable |
| Rental Rate | Upon Request |
| Space Use | Office |
| Build-Out | Partial Build-Out |
| Available | 30 Days |
A quaint 2 story commercial building in the heart of downtown Lapel, IN. Renovated and currently used for event rentals and church service. Looking for a tenant to lease the 2nd floor, and/or activate the 1st floor during the week, or lease the entire building. Floor plans show mostly open area ready for any business.
- Open Floor Plan Layout
- Space is in Excellent Condition
- Kitchen
- Open-Plan
Property Overview
A quaint 2 story commercial building in the heart of downtown Lapel, IN. Renovated and currently used for event rentals and church service. Looking for a tenant to lease the 2nd floor, and/or activate the 1st floor during the week, or lease the entire building. Floor plans show mostly open area ready for any business.
- High Ceilings
- Hardwood Floors
- Yard
Property Facts
Presented by
The Lodge | 818 Main
Hmm, there seems to have been an error sending your message. Please try again.
Thanks! Your message was sent.



